Информационная система
«Ёшкин Кот»

Скачать базу одним архивом
Скачать обновления
История создания базы
Карта сайта

Скачать Типовой проект 407-3-640с.93 Альбом 2. Оборудование нестандартизированное

Дата актуализации: 10.08.2017

Типовой проект 407-3-640с.93

Альбом 2. Оборудование нестандартизированное

Обозначение: Типовой проект 407-3-640с.93
Обозначение англ: 407-3-640с.93
Статус:действует
Название рус.:Альбом 2. Оборудование нестандартизированное
Дата добавления в базу:01.09.2013
Дата актуализации:05.05.2017
Дата введения:01.01.1994
Оглавление:ТП 407-3-640с.93 ТМ 1.00 СБ Сани для блока 35кВ. Сборочный чертеж, л.1
ТП 407-3-640с.93 ТМ.1.00 СБ Сани для блока 35кВ. Сборочный чертеж, л.2
ТП 407-3-640с.93 ТМ.1.00 Сани для блока 35кВ. Спецификация
ТП 407-3-640с.93 ТМ.1.00.00.01 Палец
ТП 407-3-640с.93 ТМ.1.01 СБ Сани. Сборочный чертеж
ТП 407-3-640с.93 ТМ 1.01 Сани. Спецификация
ТП 407-3-640с.93 ТМ 1.01.00.01 Швеллер
ТП 407-3-640с.93 ТМ 1.01.00.02 Швеллер
ТП 407-3-640с.93 ТМ 1.01.00.03 Уголок
ТП 407-3-640с.93 ТМ 1.01.00.04 Накладка
ТП 407-3-640с.93 ТМ 1.01.00.05 Накладка
ТП 407-3-640с.93 ТМ 1.01.00.06 Ребро
ТП 407-3-640с.93 ТМ 1.01.00.07 Лыжа
ТП 407-3-640с.93 ТМ 1.02 Дышло. Спецификация
ТП 407-3-640с.93 ТМ 1.02 СБ Дышло. Сборочный чертеж
ТП 407-3-640с.93 ТМ 1.02.00.01 Труба
ТП 407-3-640с.93 ТМ 1.02.00.02 Труба
ТП 407-3-640с.93 ТМ 1.02.00.03 Скоба
ТП 407-3-640с.93 ТМ 1.02.00.04 Ребро
ТП 407-3-640с.93 ТМ 1.02.00.05 Ребро
ТП 407-3-640с.93 ТМ 1.02.00.06 Ребро
ТП 407-3-640с.93 ТМ 1.02.00.07 Бобышка
ТП 407-3-640с.93 ТМ 1.02.00.08 Заглушка
ТП 407-3-640с.93 ТМ 2.00 СБ Рама блока 35 кВ с выключателем ВГБЭ35. Сборочный чертеж, л.1
ТП 407-3-640с.93 ТМ 2.00 СБ Рама блока 35 кВ с выключателем ВГБЭ35. Сборочный чертеж, л.2
ТП 407-3-640с.93 ТМ 2.00 Рама блока 35кВ с выключателем ВГБЭ35. Спецификация
ТП 407-3-640с.93 ТМ 2.00.00.01 Швеллер
ТП 407-3-640с.93 ТМ 2.00.00.02 Уголок
ТП 407-3-640с.93 ТМ 2.00.00.03 Уголок
ТП 407-3-640с.93 ТМ 2.00.00.04 Уголок
ТП 407-3-640с.93 ТМ 2.00.00.05 Уголок
ТП 407-3-640с.93 ТМ 2.00.00.06 Уголок
ТП 407-3-640с.93 ТМ 2.00.00.07 Уголок
ТП 407-3-640с.93 ТМ 2.00.00.08 Косынка
ТП 407-3-640с.93 ТМ 2.00.00.09 Накладка
ТП 407-3-640с.93 ТМ 2.00.00.10 Лист
ТП 407-3-640с.93 ТМ 2.00.00.11 Шайба косая
ТП 407-3-640с.93 ТМ 3.00 СБ Рама блока 35кВ с выключателем 35м. Сборочный чертеж, л.1;л.2
ТП 407-3-640с.93 ТМ 3.00 Рама блока 35кВ с выключателем 35м. Спецификация
ТП 407-3-640с.93 ТМ 4.00 СБ Сани для РУ 6кВ. Сборочный чертеж, л.1
ТП 407-3-640с.93 ТМ 4.00 СБ Сани для РУ 6кВ. Сборочный чертеж, л.2
ТП 407-3-640с.93 4.00 Сани для РУ 6кВ. Спецификация
ТП 407-3-640с.93 ТМ 4.01 СБ Сани. Сборочный чертеж, л.1
ТП 407-3-640с.93 ТМ 4.01 СБ Сани. Сборочный чертеж, л.2
ТП 407-3-640с.93 ТМ 4.01 Сани. Спецификация
ТП 407-3-640с.93 ТМ 4.01.00.01 Швеллер
ТП 407-3-640с.93 ТМ 4.01.00.02 Швеллер
ТП 407-3-640с.93 ТМ 4.01.00.03 Уголок
ТП 407-3-640с.93 ТМ 4.01.00.04 Накладная
ТП 407-3-640с.93 ТМ 4.01.00.05 Швеллер
ТП 407-3-640с.93 ТМ 4.01.00.06 Лыжа
ТП 407-3-640с.93 ТМ 4.01.00.07 Ребро
ТП 407-3-640с.93 ТМ 4.02 Дышло. Спецификация
ТП 407-3-640с.93 ТМ 4.02 СБ Дышло. Сборочный чертеж
ТП 407-3-640с.93 ТМ 4.02.00.01 Труба
ТП 407-3-640с.93 ТМ 4.02.00.02 Труба
ТП 407-3-640с.93 ТМ 4.02.00.03 Ребро
ТП 407-3-640с.93 ТМ 4.02.00.04 Ребро
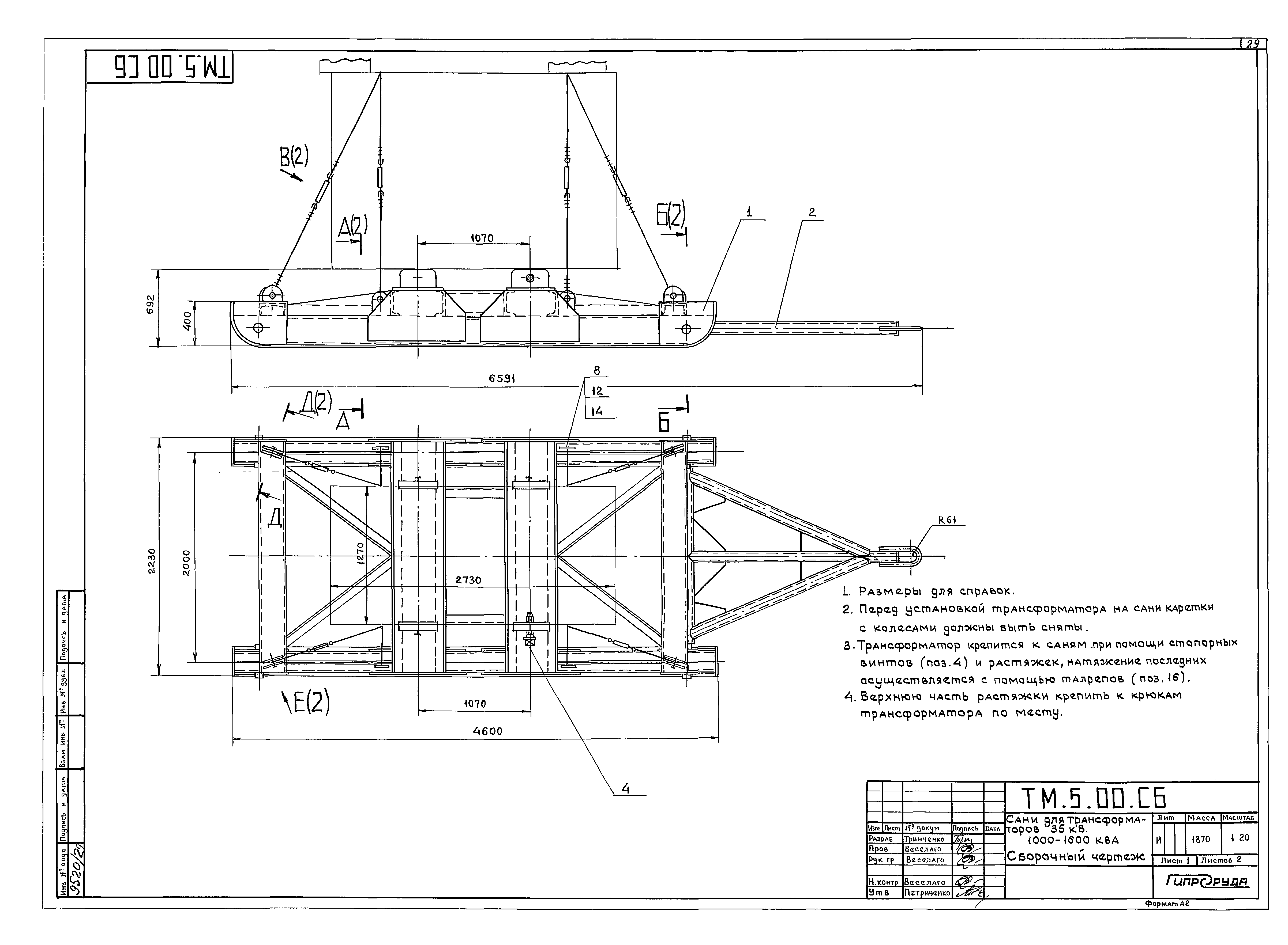
ТП 407-3-640с.93 ТМ 5.00 СБ Сани для трансформаторов 35кВ, 1000-1600 кВА. Сборочный чертеж, л.1
ТП 407-3-640с.93 ТМ 5.00 СБ Сани для трансформаторов 35кВ, 1000-1600 кВА. Сборочный чертеж, л.2
ТП 407-3-640с.93 ТМ 5.00 Сани для трансформаторов 35кВ, 1000-1600кВА. Спецификация
ТП 407-3-640с.93 ТМ 5.00.00.01 Винт стопорный
ТП 407-3-640с.93 ТМ 5.00.00.02 Скоба
ТП 407-3-640с.93 ТМ 5.00.00.03 Колодка
ТП 407-3-640с.93 ТМ 5.00.00.04 Палец
ТП 407-3-640с.93 ТМ 5.01 Сани. Спецификация
ТП 407-3-640с.93 ТМ 5.01 СБ Сани. Сборочный чертеж
ТП 407-3-640с.93 ТМ 5.01.00.01 Швеллер
ТП 407-3-640с.93 ТМ 5.01.00.02 Уголок
ТП 407-3-640с.93 ТМ 5.01.00.03 Лыжа
ТП 407-3-640с.93 ТМ 5.01.00.04 Бобышка
ТП 407-3-640с.93 ТМ 5.01.00.05 Проушина
ТП 407-3-640с.93 ТМ 5.01.00.06 Проушина
ТП 407-3-640с.93 ТМ 5.01.00.07 Накладка
ТП 407-3-640с.93 ТМ 5.01.00.08 Накладка
ТП 407-3-640с.93 ТМ 5.01.00.09 Накладка
ТП 407-3-640с.93 ТМ 5.01.00.10 Накладка
ТП 407-3-640с.93 ТМ 5.01.00.11 Ребро
ТП 407-3-640с.93 ТМ 5.02 Дышло. Спецификация
ТП 407-3-640с.93 ТМ 5.02 СБ Дышло. Сборочный чертеж
ТП 407-3-640с.93 ТМ 5.02.00.01 Труба
ТП 407-3-640с.93 ТМ 5.02.00.02 Труба
ТП 407-3-640с.93 ТМ 5.02.00.03 Ребро
ТП 407-3-640с.93 ТМ 5.02.00.04 Ребро
ТП 407-3-640с.93 ТМ 6.00 Сани для трансформатора 35кВ, 2500-4000кВА. Спецификация
ТП 407-3-640с.93 ТМ 6.00 СБ Сани для трансформатора 35кВ, 2500-4000кВА. Сборочный чертеж, л.1
ТП 407-3-640с.93 ТМ 6.00 СБ Сани для трансформатора 35кВ, 2500-4000кВА. Сборочный чертеж, л.2
ТП 407-3-640с.93 ТМ 6.01 СБ Сани. Сборочный чертеж
ТП 407-3-640с.93 ТМ 6.01 Сани. Спецификация
ТП 407-3-640с.93 ТМ 6.01.00.01 Швеллер
ТП 407-3-640с.93 ТМ 6.01.00.02 Уголок
ТП 407-3-640с.93 ТМ 6.01.00.03 Лыжа
ТП 407-3-640с.93 ТМ 6.01.00.04 Ребро
ТП 407-3-640с.93 ТМ 6.02 СБ Дышло. Сборочный чертеж
ТП 407-3-640с.93 ТМ 6.02 Дышло. Спецификация
ТП 407-3-640с.93 ТМ 6.02.00.01 Труба
ТП 407-3-640с.93 ТМ 6.02.00.02 Ребро
ТП 407-3-640с.93 ТМ 6.02.00.03 Ребро
ТП 407-3-640с.93 ТМ 7.00 СБ Сани для трансформатора 35кВ 6300кВА. Сборочный чертеж, л.1
ТП 407-3-640с.93 ТМ 7.00 СБ Сани для трансформатора 35кВ 6300кВА. Сборочный чертеж, л.2
ТП 407-3-640с.93 ТМ 7.01 СБ Сани. Сборочный чертеж, л.1
ТП 407-3-640с.93 ТМ 7.00 Сани для трансформатора 35кВ, 6300 кВА. Спецификация
ТП 407-3-640с.93 ТМ 7.01 СБ Сани. Сборочный чертеж, л.2
ТП 407-3-640с.93 ТМ 7.01 Сани. Спецификация
ТП 407-3-640с.93 ТМ 7.01.00.01 Уголок
ТП 407-3-640с.93 ТМ 7.01.00.02 Ребро
ТП 407-3-640с.93 ТМ 7.02 СБ Дышло. Сборочный чертеж
ТП 407-3-640с.93 ТМ 7.02 Дышло. Спецификация
ТП 407-3-640с.93 ТМ 7.02.00.01 Труба
ТП 407-3-640с.93 ТМ 7.02.00.02 Ребро
ТП 407-3-640с.93 ТМ 7.02.00.03 Ребро
ТП 407-3-640с.93 ТМ 8.00 Сани для трансформатора 35 кВ, 1000 кВА. Спецификация
ТП 407-3-640с.93 ТМ 8.00 СБ Сани для трансформатора 35 кВ, 1000 кВА. Сборочный чертеж, л.1
ТП 407-3-640с.93 ТМ 8.00 СБ Сани для трансформатора 35 кВ, 1000 кВА. Сборочный чертеж, л.2
ТП 407-3-640с.93 ТМ 8.01 СБ Сани. Сборочный чертеж, л.1
ТП 407-3-640с.93 ТМ 8.01 СБ Сани. Сборочный чертеж, л.2
ТП 407-3-640с.93 ТМ 8.01 Сани. Спецификация
ТП 407-3-640с.93 ТМ 8.01.00.01 Швеллер
ТП 407-3-640с.93 ТМ 8.01.00.02 Уголок
ТП 407-3-640с.93 ТМ 8.01.00.03 Лыжа
ТП 407-3-640с.93 ТМ 8.01.00.04 Ребро
ТП 407-3-640с.93 ТМ 8.02 СБ Дышло. Сборочный чертеж
ТП 407-3-640с.93 ТМ 8.02 Дышло. Спецификация
ТП 407-3-640с.93 ТМ 8.02.00.01 Труба
ТП 407-3-640с.93 ТМ 8.02.00.02 Ребро
ТП 407-3-640с.93 ТМ 8.02.00.03 Ребро
Разработан: Гипроруда Минчермета СССР
Утверждён:29.12.1993 Гипроруда (34)
Расположен в:Техническая документация Строительство Справочные документы Типовые строительные конструкции, изделия и узлы Общероссийский строительный каталог Промышленные предприятия, здания и сооружения Предприятия, здания и сооружения промышленности и электроэнергетики Электроэнергетика Устройства и подстанции распределительные
Типовой проект 407-3-640с.93Типовой проект 407-3-640с.93Типовой проект 407-3-640с.93Типовой проект 407-3-640с.93Типовой проект 407-3-640с.93Типовой проект 407-3-640с.93Типовой проект 407-3-640с.93Типовой проект 407-3-640с.93Типовой проект 407-3-640с.93Типовой проект 407-3-640с.93Типовой проект 407-3-640с.93Типовой проект 407-3-640с.93Типовой проект 407-3-640с.93Типовой проект 407-3-640с.93Типовой проект 407-3-640с.93Типовой проект 407-3-640с.93Типовой проект 407-3-640с.93Типовой проект 407-3-640с.93Типовой проект 407-3-640с.93Типовой проект 407-3-640с.93Типовой проект 407-3-640с.93Типовой проект 407-3-640с.93Типовой проект 407-3-640с.93Типовой проект 407-3-640с.93Типовой проект 407-3-640с.93Типовой проект 407-3-640с.93Типовой проект 407-3-640с.93Типовой проект 407-3-640с.93Типовой проект 407-3-640с.93Типовой проект 407-3-640с.93Типовой проект 407-3-640с.93Типовой проект 407-3-640с.93Типовой проект 407-3-640с.93Типовой проект 407-3-640с.93Типовой проект 407-3-640с.93Типовой проект 407-3-640с.93Типовой проект 407-3-640с.93Типовой проект 407-3-640с.93Типовой проект 407-3-640с.93Типовой проект 407-3-640с.93Типовой проект 407-3-640с.93Типовой проект 407-3-640с.93Типовой проект 407-3-640с.93Типовой проект 407-3-640с.93Типовой проект 407-3-640с.93Типовой проект 407-3-640с.93Типовой проект 407-3-640с.93Типовой проект 407-3-640с.93Типовой проект 407-3-640с.93Типовой проект 407-3-640с.93Типовой проект 407-3-640с.93Типовой проект 407-3-640с.93Типовой проект 407-3-640с.93Типовой проект 407-3-640с.93Типовой проект 407-3-640с.93Типовой проект 407-3-640с.93Типовой проект 407-3-640с.93Типовой проект 407-3-640с.93

© 2013 Ёшкин Кот :-) Карта сайта