Информационная система
«Ёшкин Кот»

Скачать базу одним архивом
Скачать обновления
История создания базы
Карта сайта

Скачать Типовой проект 903-1-246.87 Альбом 9. Силовое электрооборудование. Электрическое освещение. Связь и сигнализация. Чертежи монтажной зоны

Дата актуализации: 10.08.2017

Типовой проект 903-1-246.87

Альбом 9. Силовое электрооборудование. Электрическое освещение. Связь и сигнализация. Чертежи монтажной зоны

Обозначение: Типовой проект 903-1-246.87
Обозначение англ: 903-1-246.87
Статус:не определен законодательством
Название рус.:Альбом 9. Силовое электрооборудование. Электрическое освещение. Связь и сигнализация. Чертежи монтажной зоны
Дата добавления в базу:01.09.2013
Дата актуализации:05.05.2017
Дата введения:01.11.1987
Оглавление:Содержание альбома
Марка ЭМ1
   Силовое электрооборудование. Общие данные (начало)
   Силовое электрооборудование. Общие данные (окончание)
   КТП-2х400 кВА, 1 секция. Схема принципиальная однолинейная
   КТП-2х400 кВА, 2 секция. Схема принципиальная однолинейная
   Щит 1Щ (2Щ, 3Щ, 4Щ). Схема принципиальная однолинейная
   Щит 5Щ, 1 секция. Схема принципиальная однолинейная
   Щит 5Щ, 2 секция. Схема принципиальная однолинейная
   1ШР, 2ШР, 3ШР - Распределительная сеть ~380/220 В. Схема принципиальная однолинейная
   Схема подключений 1Щ, 2Щ, 3Щ, 4Щ
   Схема подключений 5Щ (начало)
   Схема подключений 5Щ (продолжение)
   Схема подключений 5Щ (окончание)
   Кабельный журнал (начало)
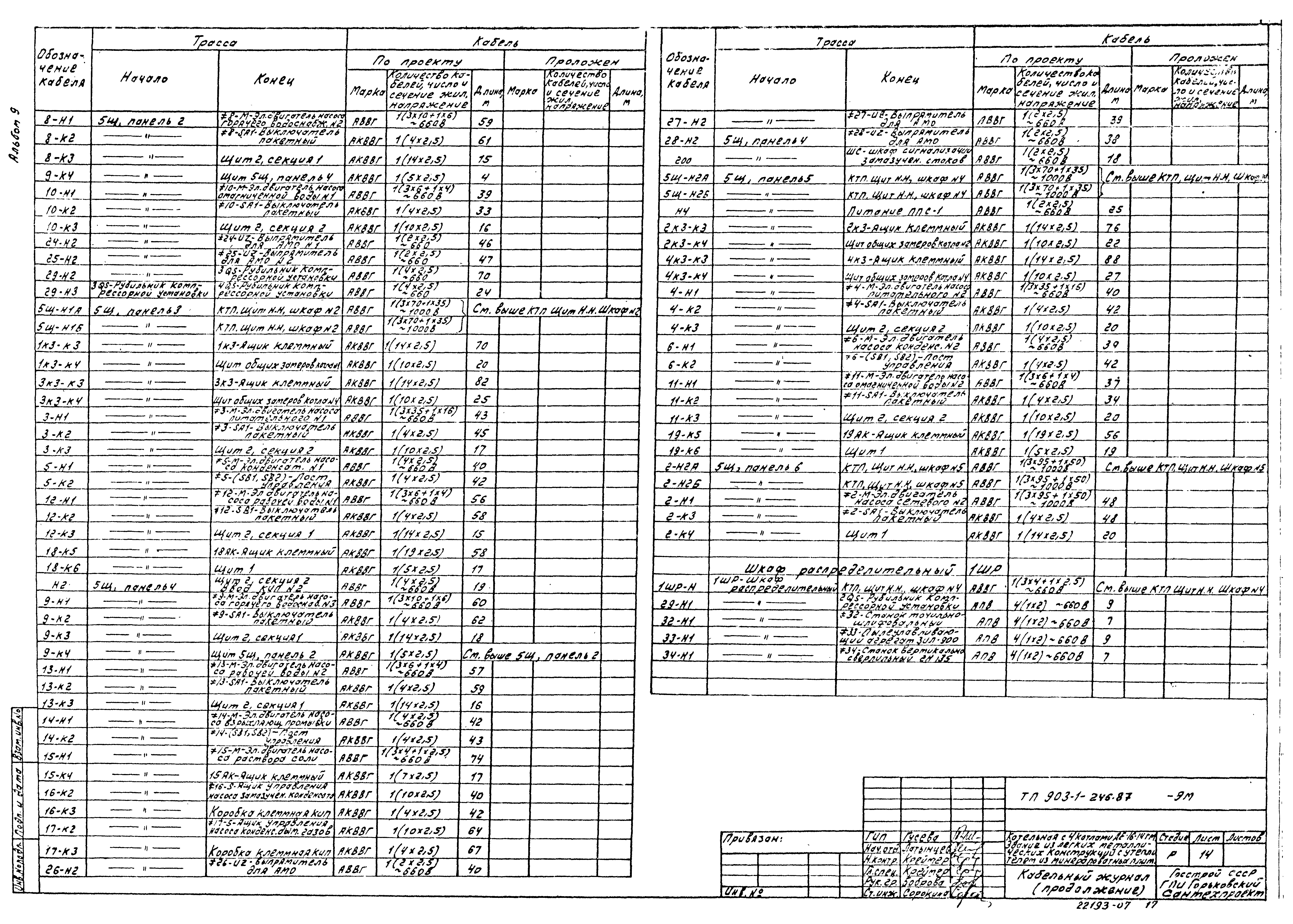
   Кабельный журнал (продолжение)
   Кабельный журнал (окончание)
   Расположение электрооборудования и прокладка кабелей. План (начало)
   Расположение электрооборудования и прокладка кабелей. План (продолжение)
   Расположение электрооборудования и прокладка кабелей. План. Разрезы (окончание)
   Расположение электрооборудования и прокладка кабелей. Спецификация
   Прокладка труб. План на отм. 0,00 в осях 1-7
   Прокладка труб. План на отм. 0,00 в осях 8-12
   Трубозаготовительная ведомость (начало)
   Трубозаготовительная ведомость (окончание)
   Ведомость заполнения труб кабелями
   Заземление. План (начало)
   Заземление. План (окончание). Спецификация
   КТП и ПСУ. Установка оборудования. План
Прилагаемые документы к листам марки ЭМ1
   Ведомость изделий МЭЗ
   Ведомость изделий и материалов для изготовления изделий МЭЗ
   КТП-2х400 кВА. Опросный лист
Марка ЭО
   Общие данные
   Питающая сеть. Схема принципиальная. План расположения оборудования и питающей сети на отм. 0,000
   План расположения оборудования и групповой осветительной сети в осях 1-7 на отм. 0,000
   План расположения оборудования и групповой осветительной сети в осях 7-12 на отм. 0,000
   План расположения оборудования и групповой осветительной сети на отм. 3,600 и площадок крупноблочных установок
   Аварийно-эвакуационное освещение. Схема принципиальная
   Аварийно-эвакуационное освещение. План расположения оборудования и осветительных сетей на отм. 0,000 и 3,600
   Шкаф аккумуляторный. Схема подключения
Прилагаемые документы к листам марки ЭО
   Ведомость изделий МЭЗ
   Ведомость изделий и материалов для изготовления изделий МЭЗ
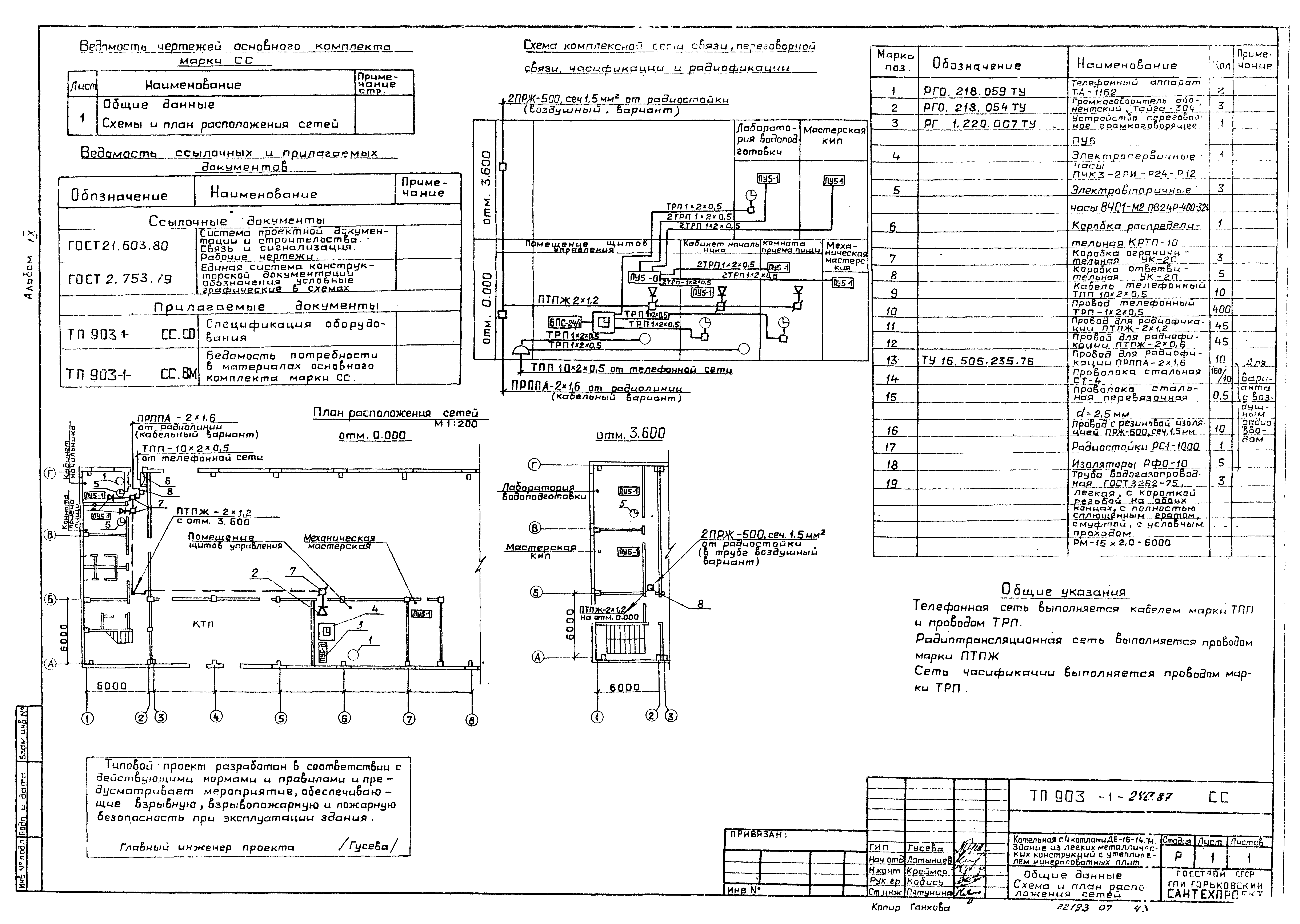
Марка СС
   Общие данные. План расположения сетей
Марка АПС
   Пожарная сигнализация. Общие данные. Схема электрическая принципиальная
   Пожарная сигнализация. Схема внешних проводок
   Пожарная сигнализация. План расположения оборудования и проводок
Разработан: Горьковский Сантехпроект
Утверждён:17.04.1987 Госстрой СССР (Государственный комитет Совета Министров СССР по делам строительства) (USSR Gosstroy А4-43)
Расположен в:Техническая документация Строительство Справочные документы Типовые строительные конструкции, изделия и узлы Общероссийский строительный каталог Промышленные предприятия, здания и сооружения Здания и сооружения санитарно-технические Теплоснабжение Котельные установки Закрытые системы теплоснабжения Топливо - газ, резерв - мазут
Типовой проект 903-1-246.87Типовой проект 903-1-246.87Типовой проект 903-1-246.87Типовой проект 903-1-246.87Типовой проект 903-1-246.87Типовой проект 903-1-246.87Типовой проект 903-1-246.87Типовой проект 903-1-246.87Типовой проект 903-1-246.87Типовой проект 903-1-246.87Типовой проект 903-1-246.87Типовой проект 903-1-246.87Типовой проект 903-1-246.87Типовой проект 903-1-246.87Типовой проект 903-1-246.87Типовой проект 903-1-246.87Типовой проект 903-1-246.87Типовой проект 903-1-246.87Типовой проект 903-1-246.87Типовой проект 903-1-246.87Типовой проект 903-1-246.87Типовой проект 903-1-246.87Типовой проект 903-1-246.87Типовой проект 903-1-246.87Типовой проект 903-1-246.87Типовой проект 903-1-246.87Типовой проект 903-1-246.87Типовой проект 903-1-246.87Типовой проект 903-1-246.87Типовой проект 903-1-246.87Типовой проект 903-1-246.87Типовой проект 903-1-246.87Типовой проект 903-1-246.87Типовой проект 903-1-246.87Типовой проект 903-1-246.87Типовой проект 903-1-246.87Типовой проект 903-1-246.87Типовой проект 903-1-246.87Типовой проект 903-1-246.87Типовой проект 903-1-246.87Типовой проект 903-1-246.87Типовой проект 903-1-246.87Типовой проект 903-1-246.87Типовой проект 903-1-246.87Типовой проект 903-1-246.87Типовой проект 903-1-246.87

© 2013 Ёшкин Кот :-) Карта сайта