Информационная система
«Ёшкин Кот»

Скачать базу одним архивом
Скачать обновления
История создания базы
Карта сайта

Скачать Типовой проект 402-12-52 Альбом I. Электрическая и механическая части

Дата актуализации: 10.08.2017

Типовой проект 402-12-52

Альбом I. Электрическая и механическая части

Обозначение: Типовой проект 402-12-52
Обозначение англ: 402-12-52
Статус:действует
Название рус.:Альбом I. Электрическая и механическая части
Дата добавления в базу:01.09.2013
Дата актуализации:05.05.2017
Оглавление:Титульный лист
Содержание альбома
Пояснительная записка
Варианты размещения и схема подключения электродренажа типа СДЗТ-600
Варианты размещения и схема подключения электродренажа типа СДЗТ-600 для защиты нескольких трубопроводов и кабелей трубопроводов и кабелей связи
Варианты размещения и схема подключения электродренажа типа СДЗТ-600 для защиты трубопровода совместно с существующими сооружениями
Установочный чертеж электрического дренажа
Электрический дренаж в ограждении
Принципиальная схема электродренажа типа СДЗТ-600 с универсальным блоком совместной защиты УБСЗ-50
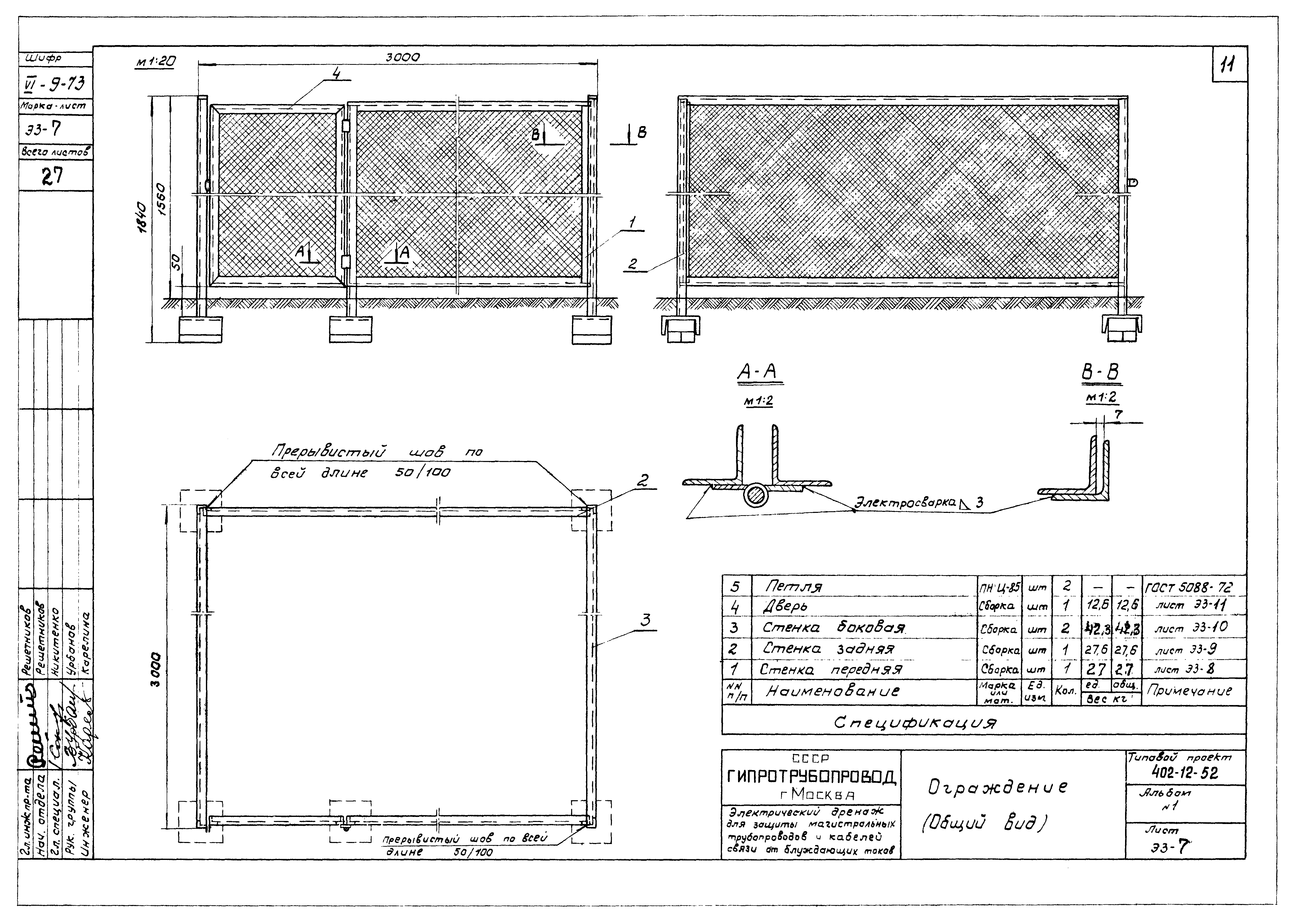
Ограждение (общий вид)
Ограждение (стенка передняя)
Ограждение (стенка задняя)
Ограждение (стенка боковая)
Ограждение (дверь)
Узел присоединения дренажного кабеля к трубопроводу
Узел присоединения дренажного кабеля к кабелю связи
Перепайка металлической оболочки кабеля связи с его броней
Узлы подключения 1-го, 2-х кабелей сечением 400 - 800 кв. мм к электродренажу
Узлы подключения 3-х дренажных кабелей сечением 625 кв. мм к электродренажу
Узлы подключения 1-го, 2-х кабелей сечением 400 - 800 кв. мм к средней точке дросселя ж.д.
Узлы подключения 3-х дренажных кабелей сечением 625 кв. мм к средней точке дросселя ж.д.
Узел подключения дренажного кабеля к тяговой подстанции ж.д.
Концевая заделка дренажного кабеля
Контрольно-измерительный пункт в ограждении электродренажа
Заказная спецификация
Разработан: Институт Гипротрубопровод
Утверждён:18.07.1973 Миннефтепром (Minnefteprom )
Расположен в:Техническая документация Строительство Справочные документы Типовые строительные конструкции, изделия и узлы Общероссийский строительный каталог Промышленные предприятия, здания и сооружения Предприятия, здания и сооружения промышленности и электроэнергетики Промышленность нефтяная и газовая Промышленность нефтяная Промышленность нефтедобывающая
Типовой проект 402-12-52Типовой проект 402-12-52Типовой проект 402-12-52Типовой проект 402-12-52Типовой проект 402-12-52Типовой проект 402-12-52Типовой проект 402-12-52Типовой проект 402-12-52Типовой проект 402-12-52Типовой проект 402-12-52Типовой проект 402-12-52Типовой проект 402-12-52Типовой проект 402-12-52Типовой проект 402-12-52Типовой проект 402-12-52Типовой проект 402-12-52Типовой проект 402-12-52Типовой проект 402-12-52Типовой проект 402-12-52Типовой проект 402-12-52Типовой проект 402-12-52Типовой проект 402-12-52Типовой проект 402-12-52Типовой проект 402-12-52Типовой проект 402-12-52Типовой проект 402-12-52Типовой проект 402-12-52

© 2013 Ёшкин Кот :-) Карта сайта