Информационная система
«Ёшкин Кот»

Скачать базу одним архивом
Скачать обновления
История создания базы
Карта сайта

Скачать Типовой проект 402-2-25 Альбом I. Электрическая и механическая части

Дата актуализации: 10.08.2017

Типовой проект 402-2-25

Альбом I. Электрическая и механическая части

Обозначение: Типовой проект 402-2-25
Обозначение англ: 402-2-25
Статус:действует
Название рус.:Альбом I. Электрическая и механическая части
Дата добавления в базу:01.09.2013
Дата актуализации:05.05.2017
Оглавление:ТП 402-2-25 Титульный лист
ТП 402-2-25 С-1 Содержание альбома
ТП 402-2-25 С-2 Перечень СНиП, СН, ГОСТ, нормалей
ТП 402-2-25 ПЗ Пояснительная записка
ТП 402-2-25 ЭЗ-1 Вариант размещения и схема подключения станции катодной защиты с питанием от ВЛ-220В и КИП для защиты одного трубопровода и одного кабеля связи
ТП 402-2-25 ЭЗ-2 Вариант размещения и схема подключения станции катодной защиты с питанием от ВЛ-10кВ и КИП для защиты группы трубопроводов и кабелей связи
ТП 402-2-25 ЭЗ-3 Принципиальная схема станции катодной защиты СКЗТ-3000 с блоком совместной защиты БДЗ
ТП 402-2-25 ЭЗ-4 Установочный чертеж станции катодной защиты СКЗТ-3000 с питанием от ВЛ-220В с блоками совместной защиты БДЗ
ТП 402-2-25 ЭЗ-5 Установочный чертеж станции катодной защиты СКЗТ-3000 с питанием от ВЛ-10кВ с блоками совместной защиты БДЗ
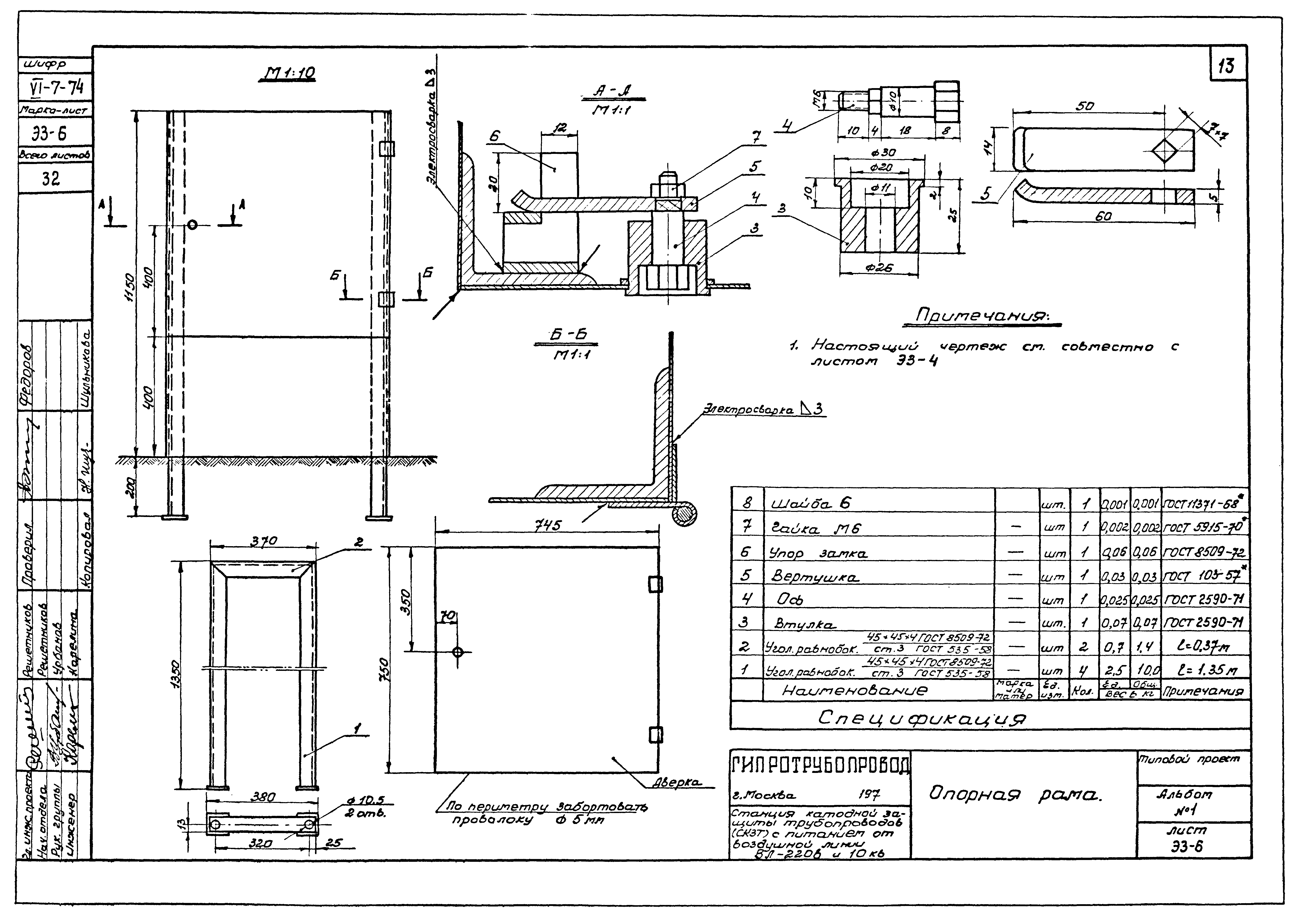
ТП 402-2-25 ЭЗ-6 Опорная рама
ТП 402-2-25 ЭЗ-7 Ограждение 3мх3м (общий вид)
ТП 402-2-25 ЭЗ-8 Ограждение 3мх6м (общий вид)
ТП 402-2-25 ЭЗ-9 Ограждение (стенка боковая)
ТП 402-2-25 ЭЗ-10 Ограждение (стенка передняя)
ТП 402-2-25 ЭЗ-11 Ограждение (стенка задняя)
ТП 402-2-25 ЭЗ-12 Ограждение (стенка дополнительная)
ТП 402-2-25 ЭЗ-13 Ограждение (дверь)
ТП 402-2-25 ЭЗ-14 Защитное заземление электроустановок
ТП 402-2-25 ЭЗ-15 Анодное заземление секционное из 4-х горизонтальных заземлителей в секции с КИК (тип1)
ТП 402-2-25 ЭЗ-16 Анодное заземление секционное из 6-и горизонтальных заземлителей в секции с КИК (тип2)
ТП 402-2-25 ЭЗ-17 Анодное заземление секционное из 8-и горизонтальных заземлителей в секции с КИК (тип3)
ТП 402-2-25 ЭЗ-18 Анодное заземление секционное из 3-х горизонтальных заземлителей в секции без КИК (тип4)
ТП 402-2-25 ЭЗ-19 Анодное заземление секционное из 8-и горизонтальных заземлителей в секции без КИК (тип5)
ТП 402-2-25 ЭЗ-20 Глубинное анодное заземление
ТП 402-2-25 ЭЗ-21 Глубинное анодное заземление (деталировка)
ТП 402-2-25 ЭЗ-22 Контрольно-измерительный пункт в ограждении СКЗТ
ТП 402-2-25 ЭЗ-23 Узел присоединения дренажного кабеля к трубопроводу
ТП 402-2-25 ЭЗ-24 Узел присоединения дренажного кабеля к кабелю связи
ТП 402-2-25 ЭЗ-25 Перепайка металлической оболочки кабеля с его броней
Разработан: Институт Гипротрубопровод
Утверждён:18.06.1974 Миннефтепром (Minnefteprom )
Расположен в:Техническая документация Строительство Справочные документы Типовые строительные конструкции, изделия и узлы Общероссийский строительный каталог Промышленные предприятия, здания и сооружения Предприятия, здания и сооружения промышленности и электроэнергетики Промышленность нефтяная и газовая Промышленность нефтяная Промышленность нефтедобывающая
Типовой проект 402-2-25Типовой проект 402-2-25Типовой проект 402-2-25Типовой проект 402-2-25Типовой проект 402-2-25Типовой проект 402-2-25Типовой проект 402-2-25Типовой проект 402-2-25Типовой проект 402-2-25Типовой проект 402-2-25Типовой проект 402-2-25Типовой проект 402-2-25Типовой проект 402-2-25Типовой проект 402-2-25Типовой проект 402-2-25Типовой проект 402-2-25Типовой проект 402-2-25Типовой проект 402-2-25Типовой проект 402-2-25Типовой проект 402-2-25Типовой проект 402-2-25Типовой проект 402-2-25Типовой проект 402-2-25Типовой проект 402-2-25Типовой проект 402-2-25Типовой проект 402-2-25Типовой проект 402-2-25Типовой проект 402-2-25Типовой проект 402-2-25Типовой проект 402-2-25Типовой проект 402-2-25Типовой проект 402-2-25

© 2013 Ёшкин Кот :-) Карта сайта