| ||||||||||||||||||||||||||
Скачать Типовые материалы для проектирования 904-02-35.88 Альбом 4. Часть 2. Строительные задания на секции кондиционеров модификаций базовой схемы 3Дата актуализации: 10.08.2017
|
| Обозначение: | Типовые материалы для проектирования 904-02-35.88 |
| Обозначение англ: | 904-02-35.88 |
| Статус: | cправочные материалы, мп, тпр |
| Название рус.: | Альбом 4. Часть 2. Строительные задания на секции кондиционеров модификаций базовой схемы 3 |
| Дата добавления в базу: | 01.09.2013 |
| Дата актуализации: | 05.05.2017 |
| Дата введения: | 01.03.1989 |
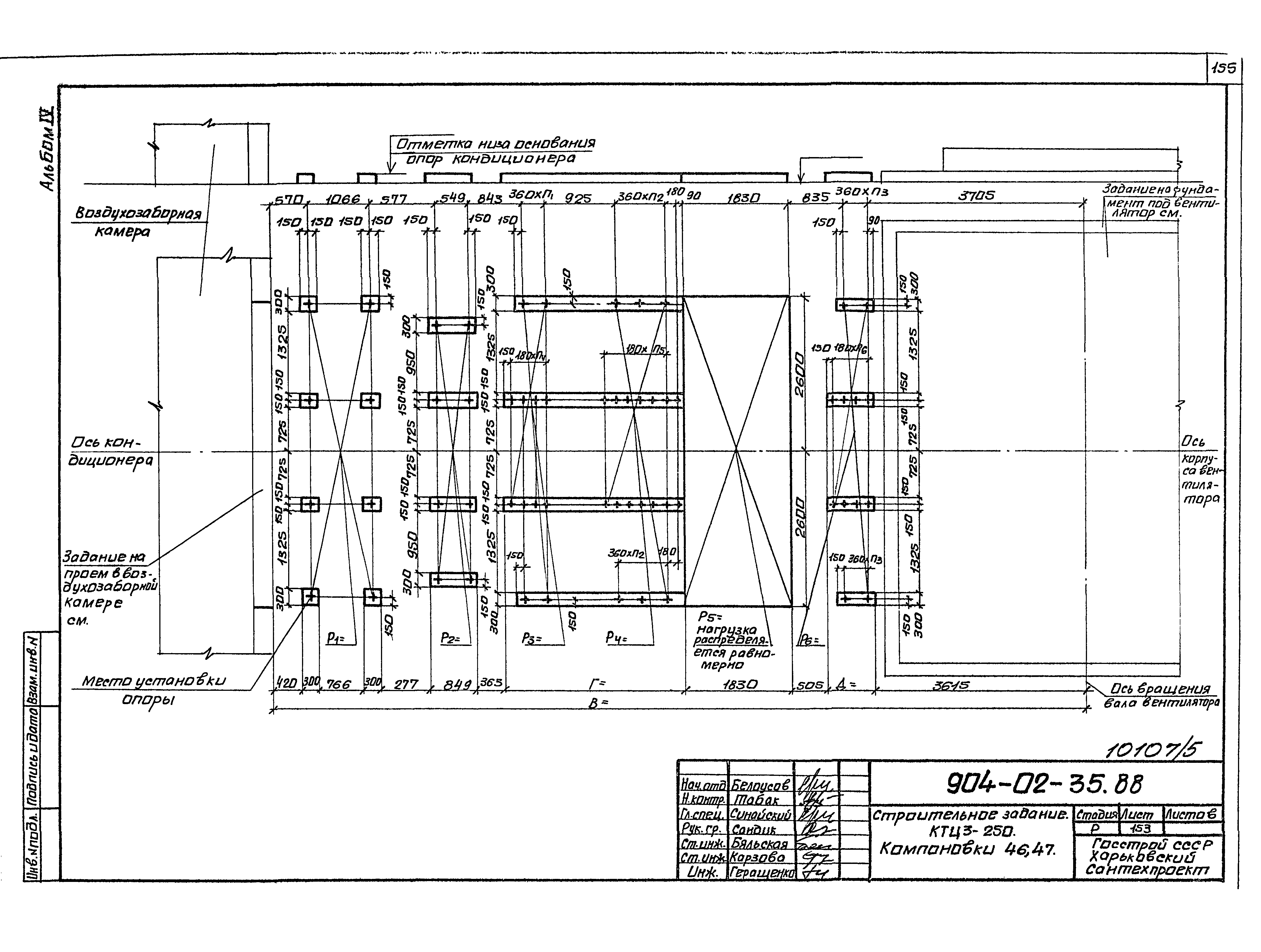
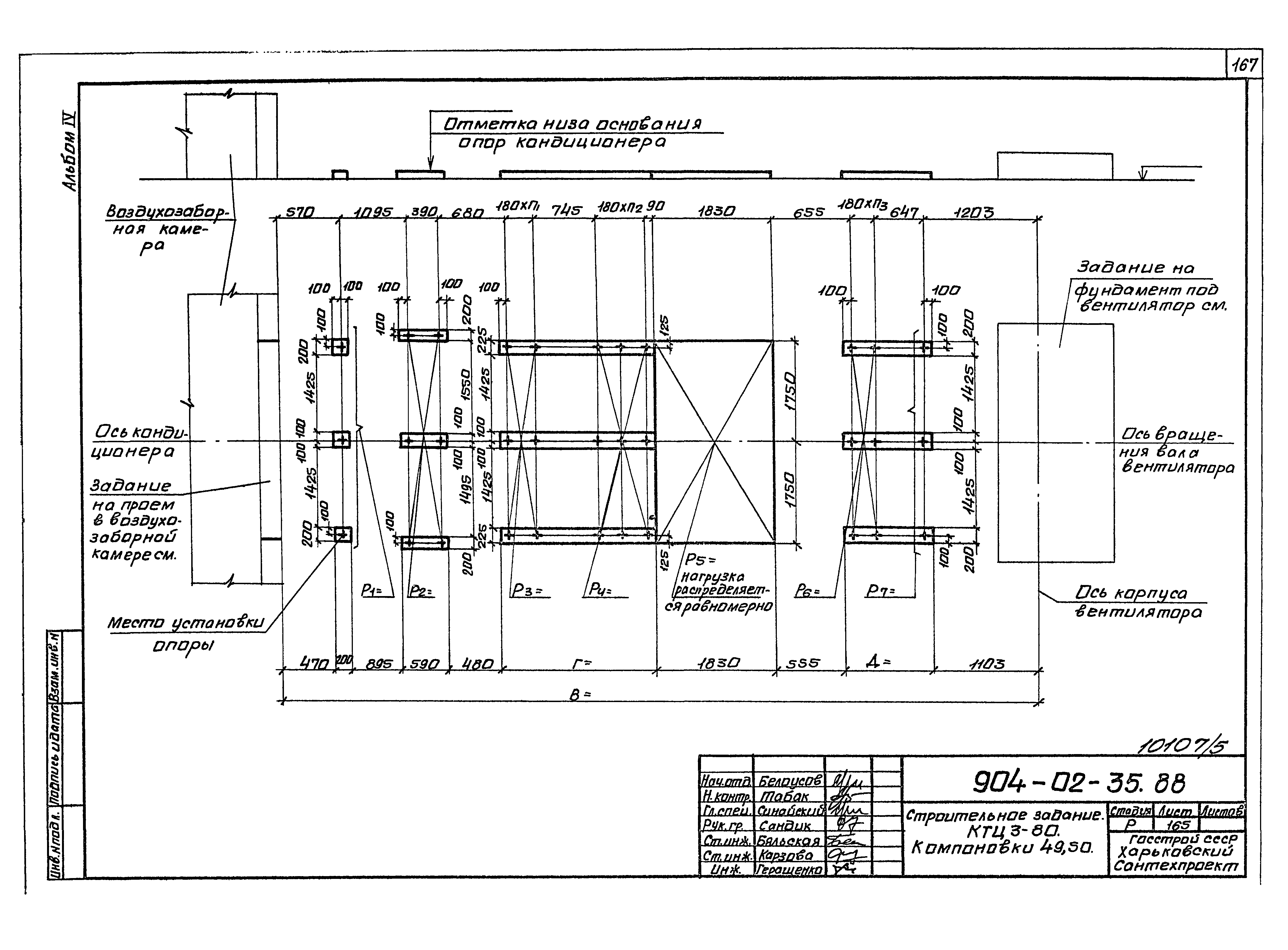
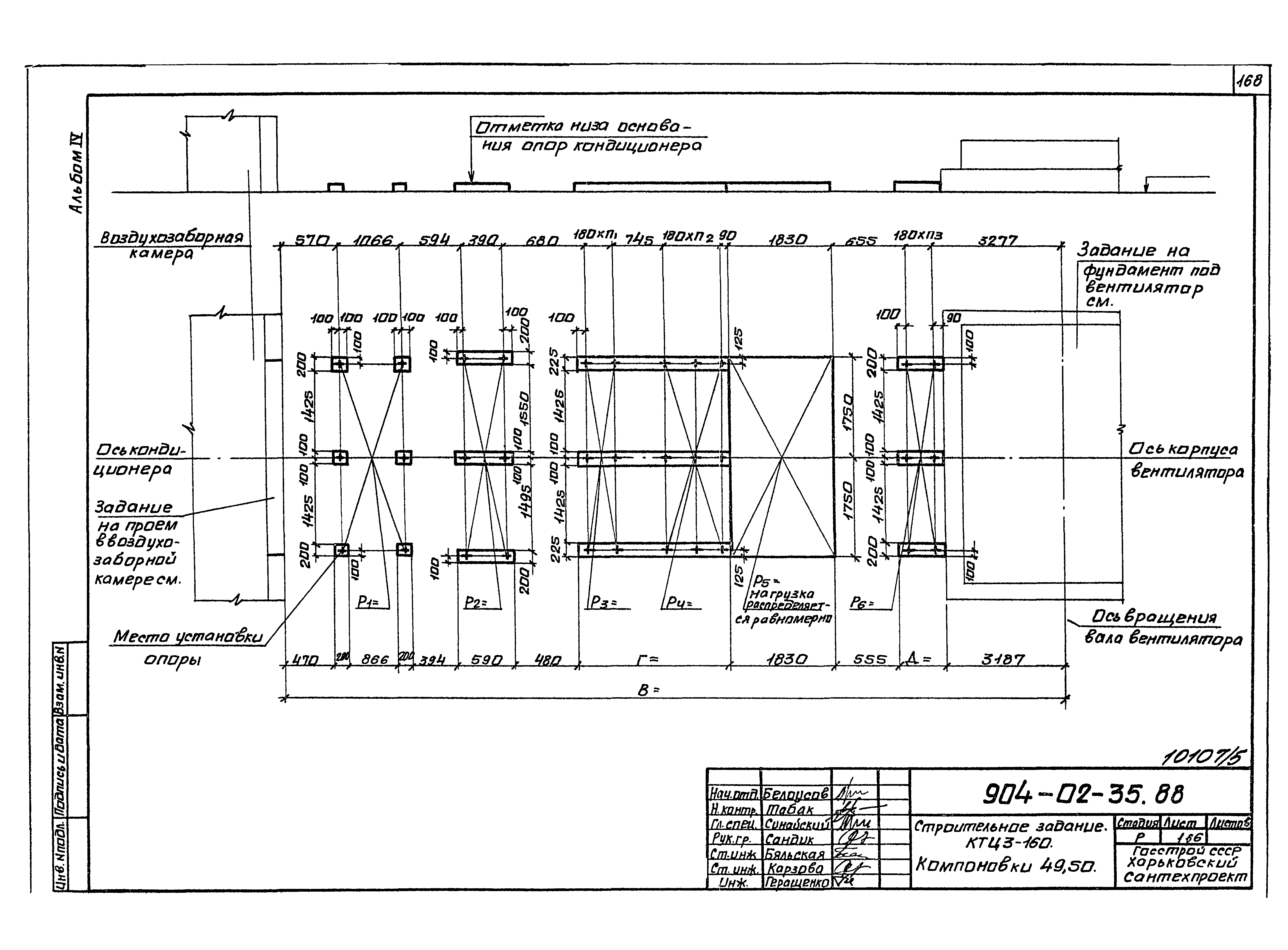
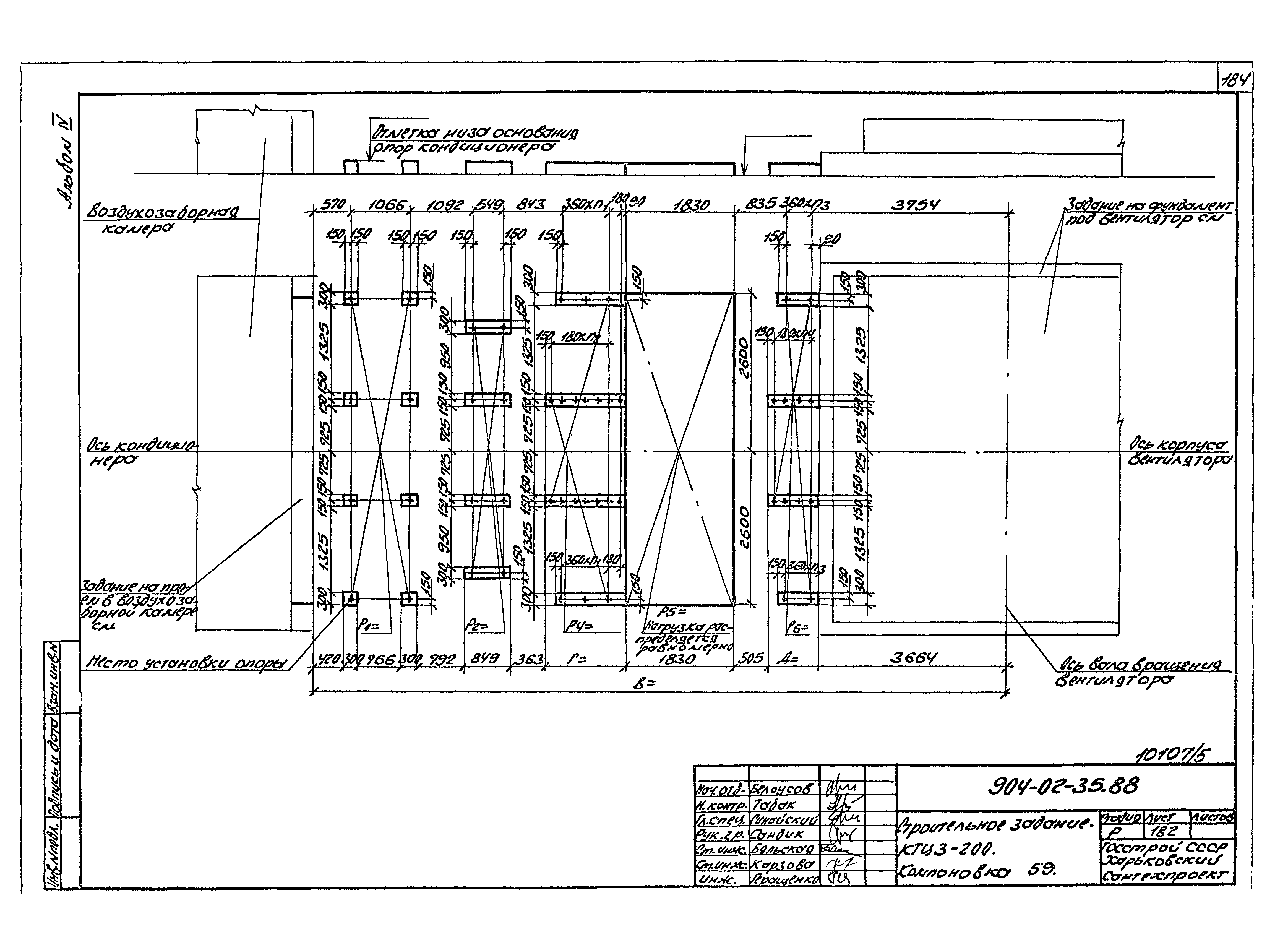
| Оглавление: | КТЦ3-80. Компоновки 46, 47 КТЦ3-160. Компоновки 46, 47 КТЦ3-250. Компоновки 46, 47 КТЦ3-40. Компоновка 47 КТЦ3-10. Компоновки 48, 50 КТЦ3-20. Компоновки 48, 50 КТЦ3-31,5. Компоновки 48, 50 КТЦ3-40. Компоновка 48 КТЦ3-63. Компоновки 48…50 КТЦ3-80. Компоновка 48 КТЦ3-125. Компоновки 48…50 КТЦ3-160. Компоновка 48 КТЦ3-200. Компоновки 48…50 КТЦ3-250. Компоновка 48 КТЦ3-80. Компоновки 49, 50 КТЦ3-160. Компоновки 49, 50 КТЦ3-250. Компоновки 49, 50 КТЦ3-40. Компоновка 50 КТЦ3-40. Компоновка 56 КТЦ3-125. Компоновка 56 КТЦ3-160. Компоновка 56 КТЦ3-200. Компоновка 56 КТЦ3-250. Компоновка 56 КТЦ3-40. Компоновка 57 КТЦ3-125. Компоновка 57 КТЦ3-160. Компоновка 57 КТЦ3-200. Компоновка 57 КТЦ3-250. Компоновка 57 КТЦ3-125. Компоновка 58 КТЦ3-200. Компоновка 58 КТЦ3-125. Компоновка 59 КТЦ3-200. Компоновка 59 КТЦ3-40. Компоновка 60 КТЦ3-125. Компоновка 60 КТЦ3-160. Компоновка 60 КТЦ3-200. Компоновка 60 КТЦ3-250. Компоновка 60 КТЦ3-125. Компоновка 61 КТЦ3-200. Компоновка 61 Таблица размеров и нагрузок |
| Разработан: | Харьковский Сантехпроект |
| Утверждён: | 14.10.1988 Главпроект Госстроя России (70) |
| Расположен в: |



















































































