| ||||||||||||||||||||||||||
Скачать Типовые материалы для проектирования 904-02-35.88 Альбом 4. Часть 1. Строительные задания на секции кондиционеров модификаций базовой схемы 3Дата актуализации: 10.08.2017
|
| Обозначение: | Типовые материалы для проектирования 904-02-35.88 |
| Обозначение англ: | 904-02-35.88 |
| Статус: | cправочные материалы, мп, тпр |
| Название рус.: | Альбом 4. Часть 1. Строительные задания на секции кондиционеров модификаций базовой схемы 3 |
| Дата добавления в базу: | 01.09.2013 |
| Дата актуализации: | 05.05.2017 |
| Дата введения: | 01.03.1989 |
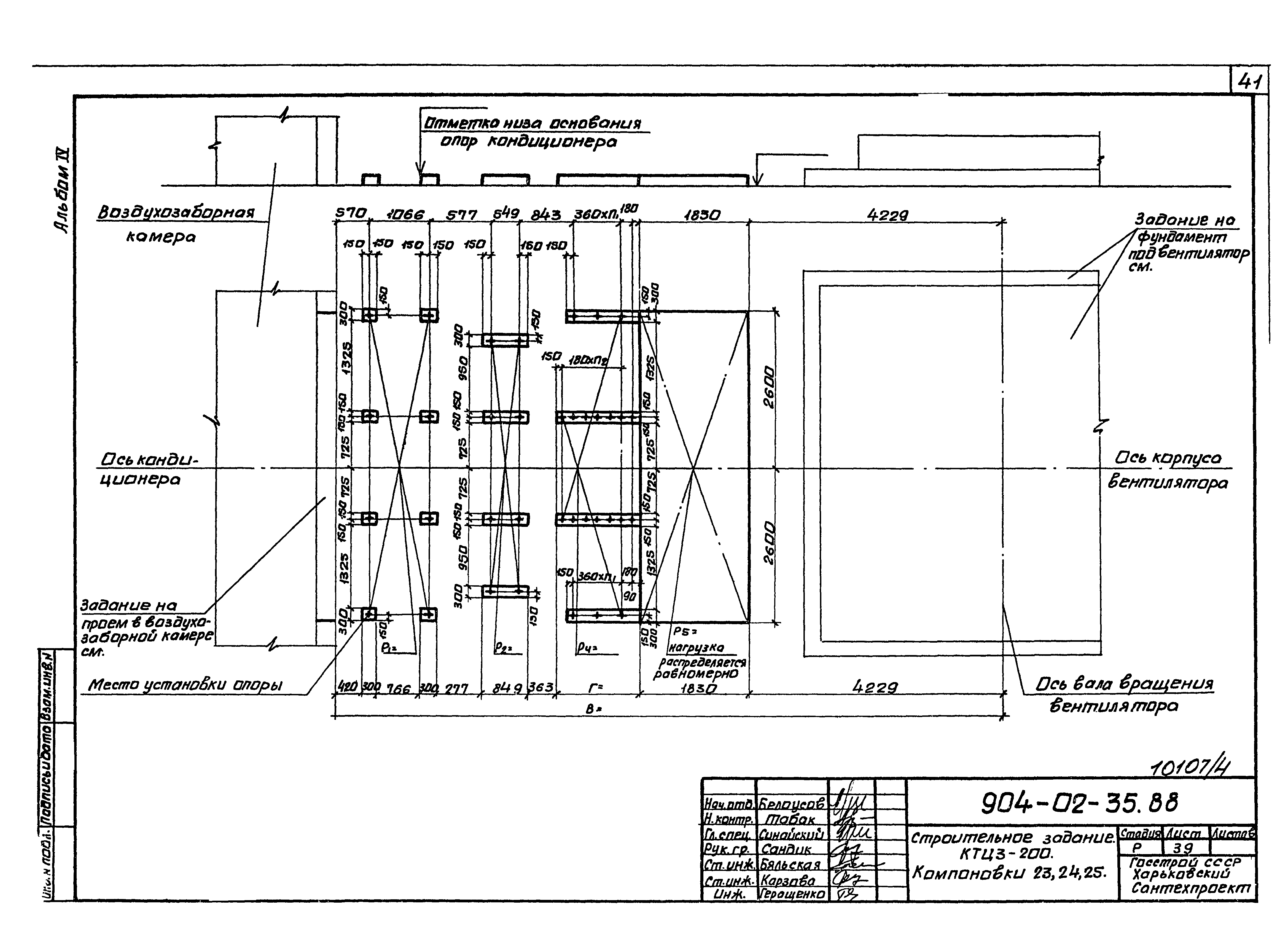
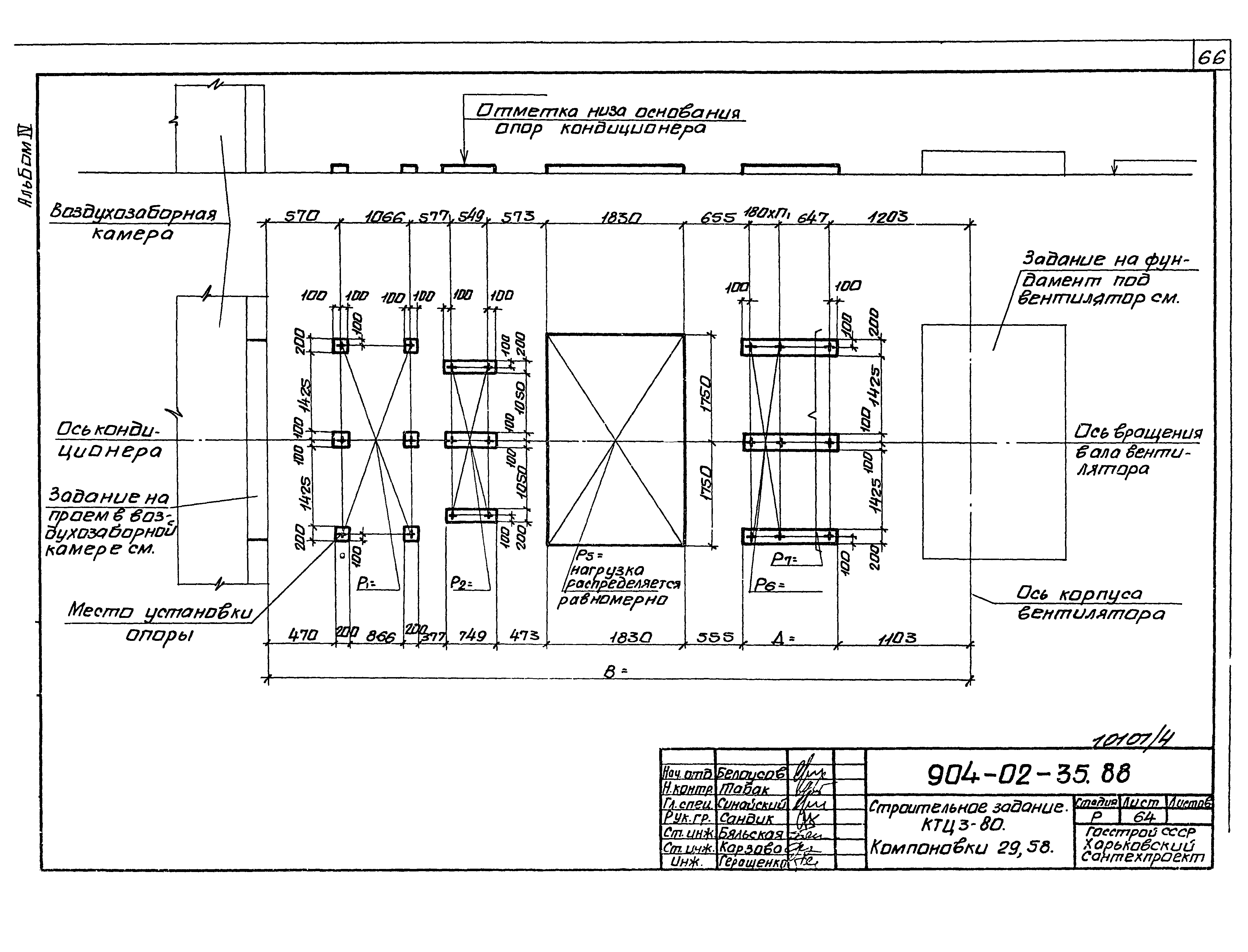
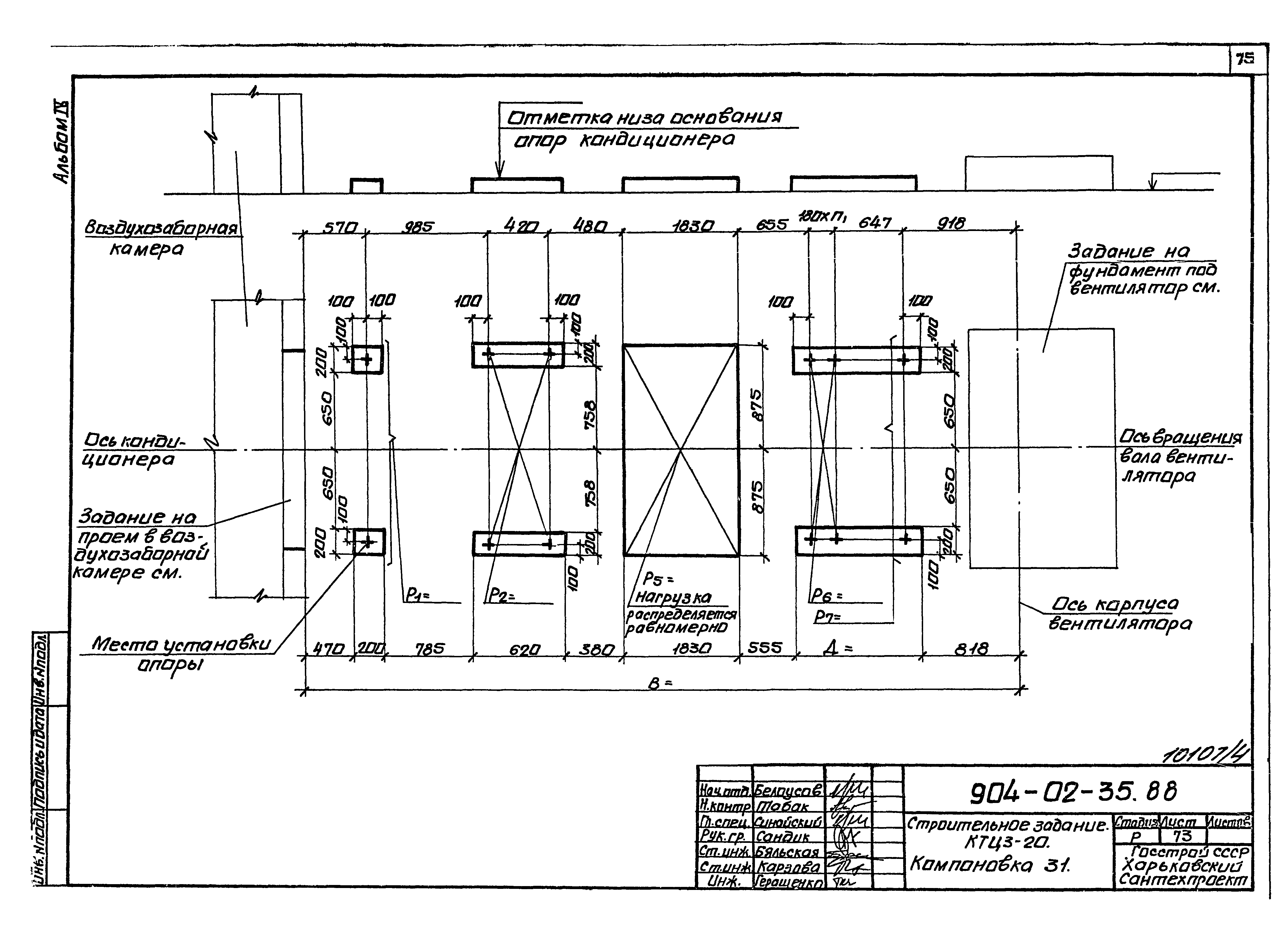
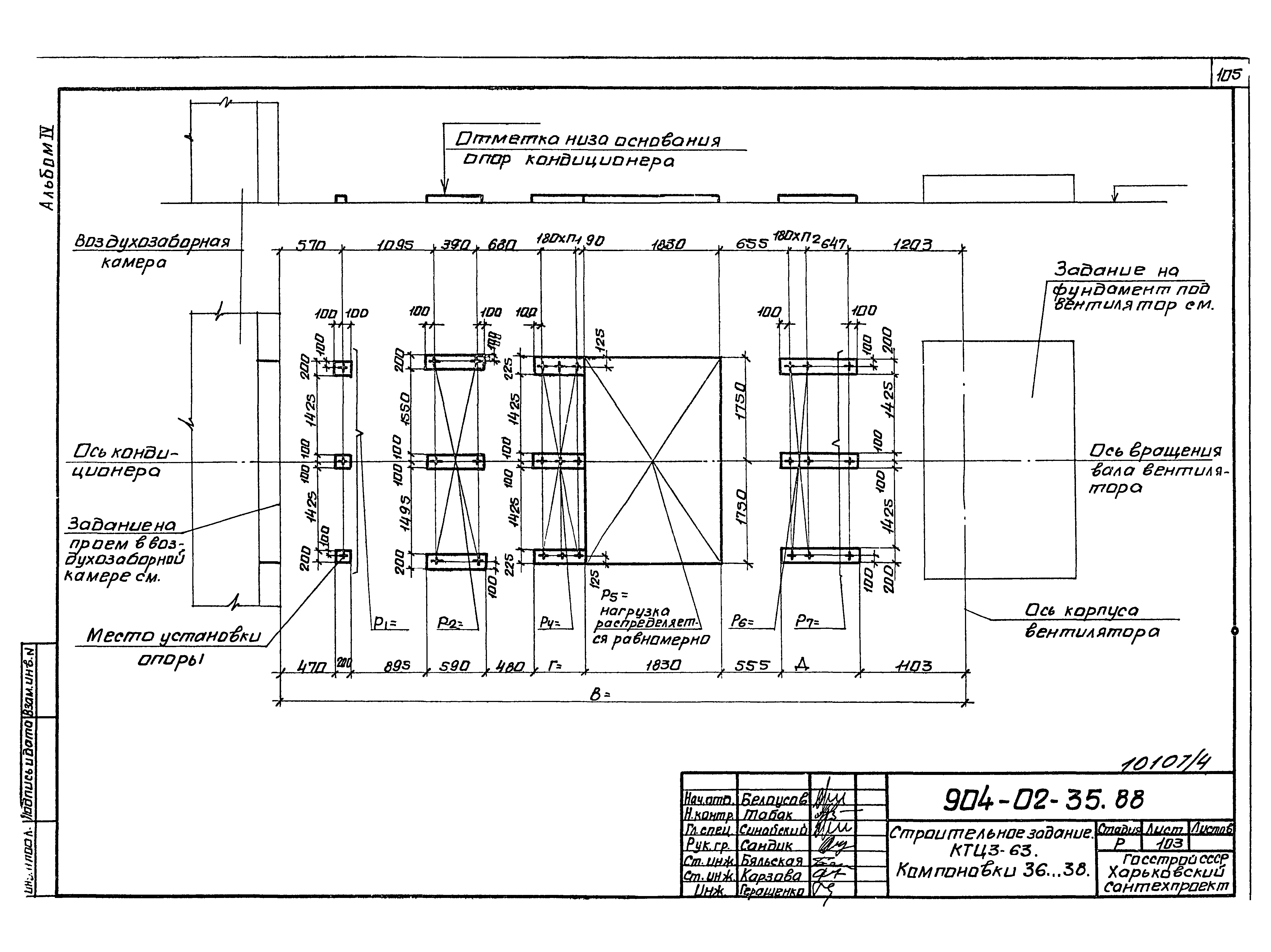
| Оглавление: | Содержание альбома КТЦ3-10. Компоновки 19, 56 КТЦ3-20. Компоновки 19, 56 КТЦ3-31,5. Компоновки 19, 56 КТЦ3-40. Компоновка 19 КТЦ3-63. Компоновки 19, 20, 56 КТЦ3-80. Компоновки 19, 56 КТЦ3-125. Компоновки 19, 20 КТЦ3-160. Компоновка 19 КТЦ3-200. Компоновки 19, 56 КТЦ3-250. Компоновка 19 КТЦ3-80. Компоновка 20 КТЦ3-160. Компоновка 20 КТЦ3-250. Компоновка 20 КТЦ3-10. Компоновка 21 КТЦ3-20. Компоновка 21 КТЦ3-31.5. Компоновка 21 КТЦ3-40. Компоновка 21 КТЦ3-63. Компоновки 21, 22 КТЦ3-80. Компоновка 21 КТЦ3-125. Компоновки 21, 22 КТЦ3-160. Компоновка 21 КТЦ3-200. Компоновки 21, 22 КТЦ3-250. Компоновка 21 КТЦ3-80. Компоновка 22 КТЦ3-160. Компоновка 22 КТЦ3-250. Компоновка 22 КТЦ3-10. Компоновки 23, 25, 57 КТЦ3-20. Компоновки 23, 25, 57 КТЦ3-31,5. Компоновки 23, 25, 57 КТЦ3-40. Компоновка 23 КТЦ3-63. Компоновки 23…25, 57 КТЦ3-80. Компоновки 23, 57 КТЦ3-125. Компоновки 23…25 КТЦ3-160. Компоновка 23 КТЦ3-200. Компоновки 23…25 КТЦ3-250. Компоновка 23 КТЦ3-80. Компоновки 24, 25 КТЦ3-160. Компоновки 24, 25 КТЦ3-250. Компоновки 24, 25 КТЦ3-40. Компоновка 25 КТЦ3-10. Компоновки 26, 28 КТЦ3-20. Компоновки 26, 28 КТЦ3-31,5. Компоновки 26, 28 КТЦ3-40. Компоновка 26 КТЦ3-63. Компоновки 26...28 КТЦ3-80. Компоновка 26 КТЦ3-125. Компоновки 26...28 КТЦ3-160. Компоновка 26 КТЦ3-200. Компоновки 26...28 КТЦ3-250. Компоновка 26 КТЦ3-80. Компоновки 27, 28 КТЦ3-160. Компоновки 27, 28 КТЦ3-250. Компоновки 27, 28 КТЦ3-40. Компоновка 28 КТЦ3-10. Компоновки 29, 58 КТЦ3-20. Компоновки 29, 58 КТЦ3-31,5. Компоновки 29, 58 КТЦ3-40. Компоновки 29, 58 КТЦ3-63. Компоновки 29, 30, 58 КТЦ3-80. Компоновки 29, 58 КТЦ3-125. Компоновки 29, 30 КТЦ3-160. Компоновки 29, 58 КТЦ3-200. Компоновки 29, 30 КТЦ3-250. Компоновки 29, 58 КТЦ3-80. Компоновка 30 КТЦ3-160. Компоновка 30 КТЦ3-250. Компоновка 30 КТЦ3-10. Компоновка 31 КТЦ3-20. Компоновка 31 КТЦ3-31,5. Компоновка 31 КТЦ3-40. Компоновка 31 КТЦ3-63. Компоновки 31, 32 КТЦ3-80. Компоновка 31 КТЦ3-125. Компоновки 31, 32 КТЦ3-160. Компоновка 31 КТЦ3-200. Компоновки 31, 32 КТЦ3-250. Компоновка 31 КТЦ3-80. Компоновка 32 КТЦ3-160. Компоновка 32 КТЦ3-250. Компоновка 32 КТЦ3-10. Компоновки 33, 35, 59 КТЦ3-20. Компоновки 33, 35, 59 КТЦ3-31,5. Компоновки 33, 35, 59 КТЦ3-40. Компоновки 33, 59 КТЦ3-63. Компоновки 33...35, 59 КТЦ3-80. Компоновки 33, 59 КТЦ3-125. Компоновки 33...35 КТЦ3-160. Компоновки 33, 59 КТЦ3-200. Компоновки 33...35 КТЦ3-250. Компоновки 33, 59 КТЦ3-80. Компоновки 34, 35 КТЦ3-160. Компоновки 34, 35 КТЦ3-250. Компоновки 34, 35 КТЦ3-40. Компоновка 35 КТЦ3-10. Компоновки 36, 38 КТЦ3-20. Компоновки 36, 38 КТЦ3-31,5. Компоновки 36, 38 КТЦ3-40. Компоновка 36 КТЦ3-63. Компоновки 36, 38 КТЦ3-80. Компоновка 36 КТЦ3-125. Компоновки 36, 38 КТЦ3-160. Компоновка 36 КТЦ3-200. Компоновки 36, 38 КТЦ3-250. Компоновка 36 КТЦ3-80. Компоновки 37, 38 КТЦ3-160. Компоновки 37, 38 КТЦ3-250. Компоновки 37, 38 КТЦ3-40. Компоновка 38 КТЦ3-10. Компоновки 39, 41, 60 КТЦ3-20. Компоновки 39, 41, 60 КТЦ3-31,5. Компоновки 39, 41, 60 КТЦ3-40. Компоновка 39 КТЦ3-63. Компоновки 39...41, 60 КТЦ3-80. Компоновки 39, 60 КТЦ3-125. Компоновки 39...41 КТЦ3-160. Компоновка 39 КТЦ3-200. Компоновки 39...41 КТЦ3-250. Компоновка 39 КТЦ3-80. Компоновки 40, 41 КТЦ3-160. Компоновки 40, 41 КТЦ3-250. Компоновки 40, 41 КТЦ3-40. Компоновка 41 КТЦ3-10. Компоновки 42, 44 КТЦ3-20. Компоновки 42, 44 КТЦ3-31,5. Компоновки 42, 44 КТЦ3-40. Компоновка 42 КТЦ3-63. Компоновки 42…44 КТЦ3-80. Компоновка 42 КТЦ3-125. Компоновки 42…44 КТЦ3-160. Компоновка 42 КТЦ3-200. Компоновки 42…44 КТЦ3-250. Компоновка 42 КТЦ3-80. Компоновки 43, 44 КТЦ3-160. Компоновки 43, 44 КТЦ3-250. Компоновки 43, 44 КТЦ3-40. Компоновка 44 КТЦ3-10. Компоновки 45, 47, 61 КТЦ3-20. Компоновки 45, 47, 61 КТЦ3-31,5. Компоновки 45, 47, 61 КТЦ3-40. Компоновки 45, 61 КТЦ3-63. Компоновки 45...47, 61 КТЦ3-80. Компоновки 45, 61 КТЦ3-125. Компоновки 45...47 КТЦ3-160. Компоновки 45, 61 КТЦ3-200. Компоновки 45...47 КТЦ3-250. Компоновки 45, 61 |
| Разработан: | Харьковский Сантехпроект |
| Утверждён: | 14.10.1988 Главпроект Госстроя России (70) |
| Расположен в: |
























































































































































