| ||||||||||||||||||||||||||
Скачать Типовые материалы для проектирования 904-02-35.88 Альбом 3. Строительные задания на секции кондиционеров модификаций базовых схем 1, 2Дата актуализации: 10.08.2017
|
| Обозначение: | Типовые материалы для проектирования 904-02-35.88 |
| Обозначение англ: | 904-02-35.88 |
| Статус: | cправочные материалы, мп, тпр |
| Название рус.: | Альбом 3. Строительные задания на секции кондиционеров модификаций базовых схем 1, 2 |
| Дата добавления в базу: | 01.09.2013 |
| Дата актуализации: | 05.05.2017 |
| Дата введения: | 01.03.1989 |
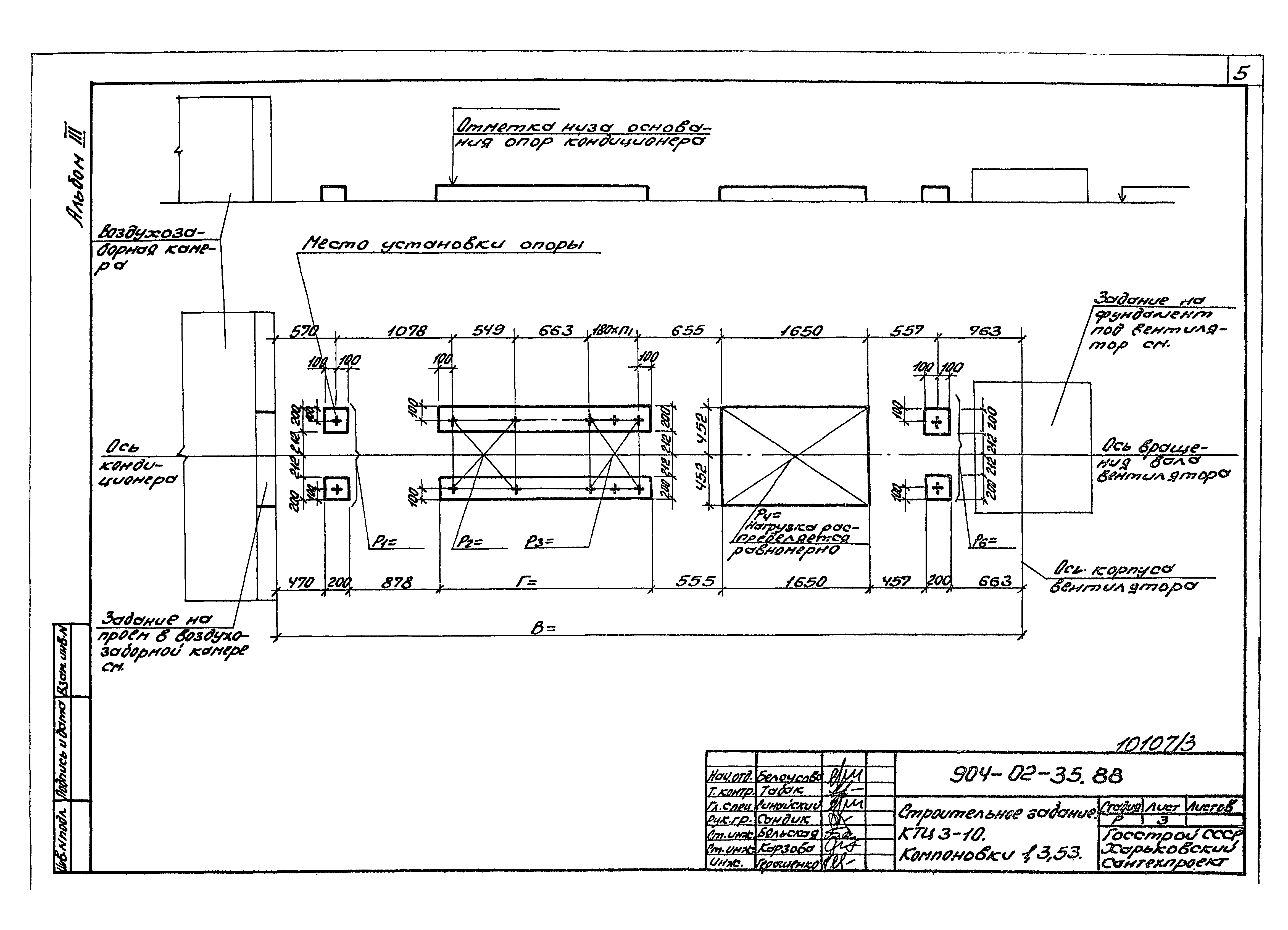
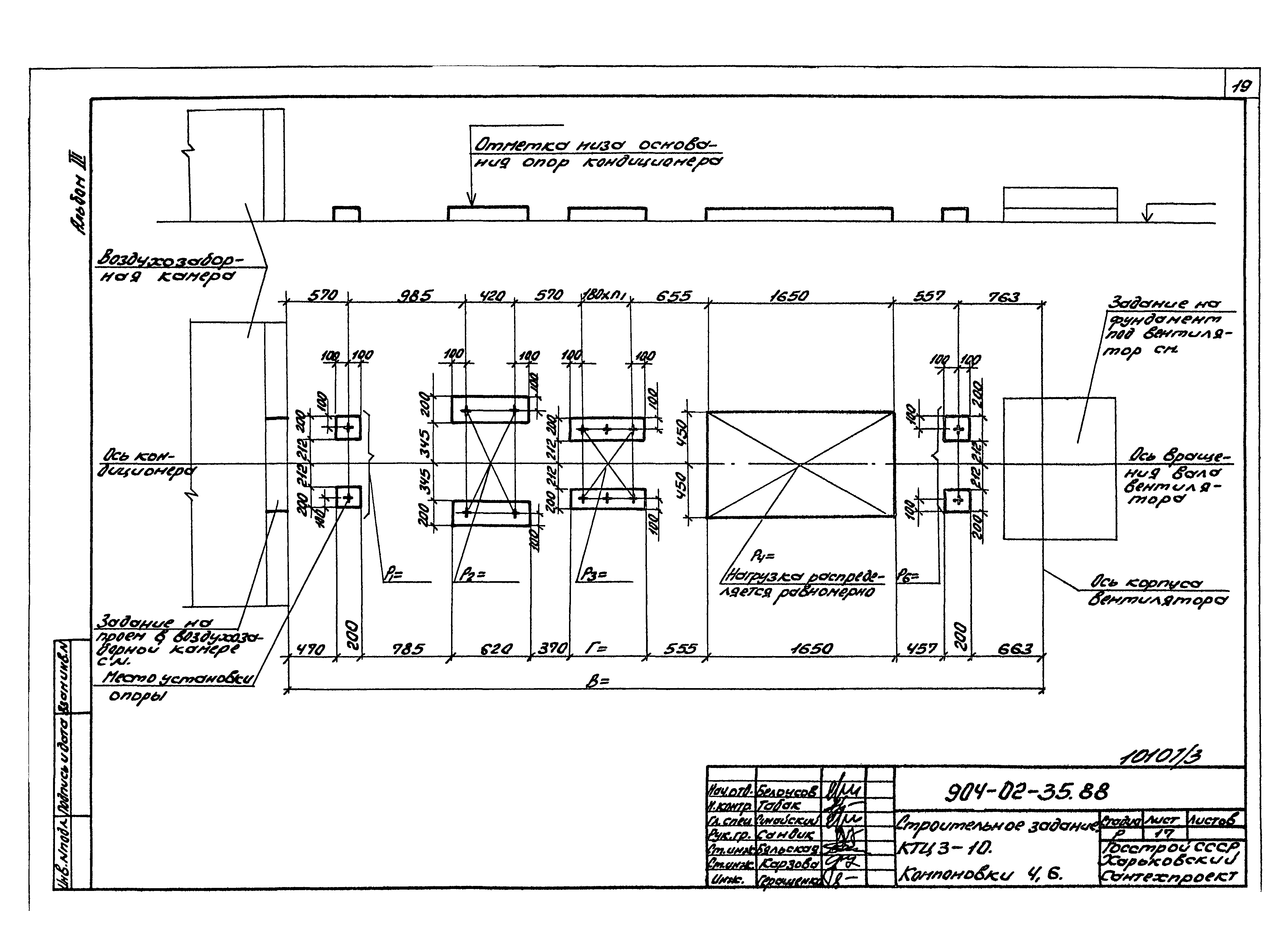
| Оглавление: | Содержание альбома КТЦ3-10. Компоновки 1, 3, 53 КТЦ3-20. Компоновки 1, 3, 53 КТЦ3-31,5. Компоновки 1, 3, 53 КТЦ3-40. Компоновка 1 КТЦ3-40. Компоновка 3 КТЦ3-63. Компоновки 1, 2, 3, 53 КТЦ3-80. Компоновки 1, 53 КТЦ3-80. Компоновки 2, 3 КТЦ3-125. Компоновки 1, 2, 3 КТЦ3-160. Компоновка 1 КТЦ3-160. Компоновки 2, 3 КТЦ3-200. Компоновки 1, 2, 3 КТЦ3-250. Компоновка 1 КТЦ3-250. Компоновки 2, 3 КТЦ3-10. Компоновки 4, 6 КТЦ3-20. Компоновки 4, 6 КТЦ3-31,5. Компоновки 4, 6 КТЦ3-40. Компоновка 4 КТЦ3-40. Компоновка 6 КТЦ3-63. Компоновки 4, 5, 6 КТЦ3-80. Компоновка 4 КТЦ3-80. Компоновки 5, 6 КТЦ3-125. Компоновки 4, 5, 6 КТЦ3-160. Компоновка 4 КТЦ3-160. Компоновки 5, 6 КТЦ3-200. Компоновки 4, 5, 6 КТЦ3-250. Компоновка 4 КТЦ3-250. Компоновки 5, 6 КТЦ3-10. Компоновки 7, 9, 54 КТЦ3-20. Компоновки 7, 9, 54 КТЦ3-31,5. Компоновки 7, 9, 54 КТЦ3-40. Компоновки 7, 54 КТЦ3-40. Компоновка 9 КТЦ3-63. Компоновки 7, 8, 9, 54 КТЦ3-80. Компоновки 7, 54 КТЦ3-80. Компоновки 8, 9 КТЦ3-125. Компоновки 7, 8, 9 КТЦ3-160. Компоновка 7 КТЦ3-160. Компоновки 8, 9 КТЦ3-200. Компоновки 7, 8, 9 КТЦ3-250. Компоновка 7 КТЦ3-250. Компоновки 8, 9 КТЦ3-10. Компоновки 10, 12 КТЦ3-20. Компоновки 10, 12 КТЦ3-31,5. Компоновки 10, 12 КТЦ3-40. Компоновка 10 КТЦ3-40. Компоновка 12 КТЦ3-63. Компоновки 10, 11, 12 КТЦ3-80. Компоновка 10 КТЦ3-80. Компоновки 11, 12 КТЦ3-125. Компоновки 10, 11, 12 КТЦ3-160. Компоновка 10 КТЦ3-160. Компоновки 11, 12 КТЦ3-200. Компоновки 10, 11, 12 КТЦ3-250. Компоновка 10 КТЦ3-250. Компоновки 11, 12 КТЦ3-10. Компоновки 13, 15, 55 КТЦ3-20. Компоновки 13, 15, 55 КТЦ3-31,5. Компоновки 13, 15, 55 КТЦ3-40. Компоновки 13, 55 КТЦ3-40. Компоновка 15 КТЦ3-63. Компоновки 13, 14, 15, 55 КТЦ3-80. Компоновки 13, 55 КТЦ3-80. Компоновки 14, 15 КТЦ3-125. Компоновки 13, 14, 15 КТЦ3-160. Компоновка 13 КТЦ3-160. Компоновки 14, 15 КТЦ3-200. Компоновки 13, 14, 15 КТЦ3-250. Компоновка 13 КТЦ3-250. Компоновки 14, 15 КТЦ3-10. Компоновки 16, 18 КТЦ3-20. Компоновки 16, 18 КТЦ3-31,5. Компоновки 16, 18 КТЦ3-40. Компоновка 16 КТЦ3-40. Компоновка 18 КТЦ3-63. Компоновки 16, 17, 18 КТЦ3-80. Компоновка 16 КТЦ3-80. Компоновки 17, 18 КТЦ3-125. Компоновки 16, 17, 18 КТЦ3-160. Компоновка 16 КТЦ3-160. Компоновки 17, 18 КТЦ3-200. Компоновки 16, 17, 18 КТЦ3-250. Компоновка 16 КТЦ3-250. Компоновки 17, 18 КТЦ3-40. Компоновка 53 КТЦ3-125. Компоновка 53 КТЦ3-160. Компоновка 53 КТЦ3-200. Компоновка 53 КТЦ3-250. Компоновка 53 КТЦ3-125. Компоновка 54 КТЦ3-200. Компоновка 54 КТЦ3-125. Компоновка 55 КТЦ3-200. Компоновка 55 Таблица размеров и нагрузок |
| Разработан: | Харьковский Сантехпроект |
| Утверждён: | 14.10.1988 Главпроект Госстроя России (70) |
| Расположен в: |

















































































































