Информационная система
«Ёшкин Кот»

Скачать базу одним архивом
Скачать обновления
История создания базы
Карта сайта

Скачать Типовой проект 704-1-171.84 Альбом VII. Проект производства монтажных работ. Приспособления для монтажа

Дата актуализации: 10.08.2017

Типовой проект 704-1-171.84

Альбом VII. Проект производства монтажных работ. Приспособления для монтажа

Обозначение: Типовой проект 704-1-171.84
Обозначение англ: 704-1-171.84
Статус:действует
Название рус.:Альбом VII. Проект производства монтажных работ. Приспособления для монтажа
Дата добавления в базу:01.09.2013
Дата актуализации:05.05.2017
Дата введения:23.05.1983
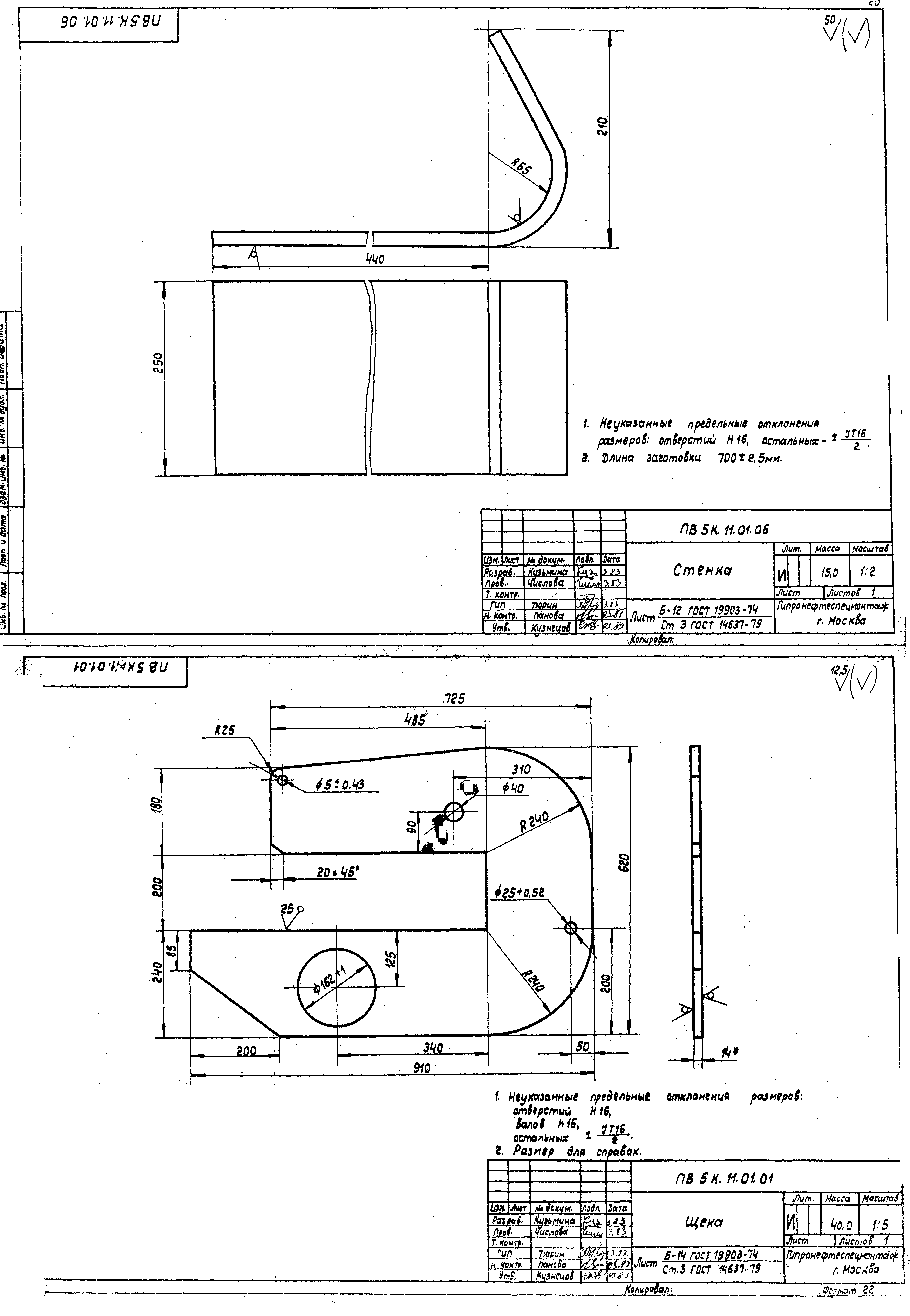
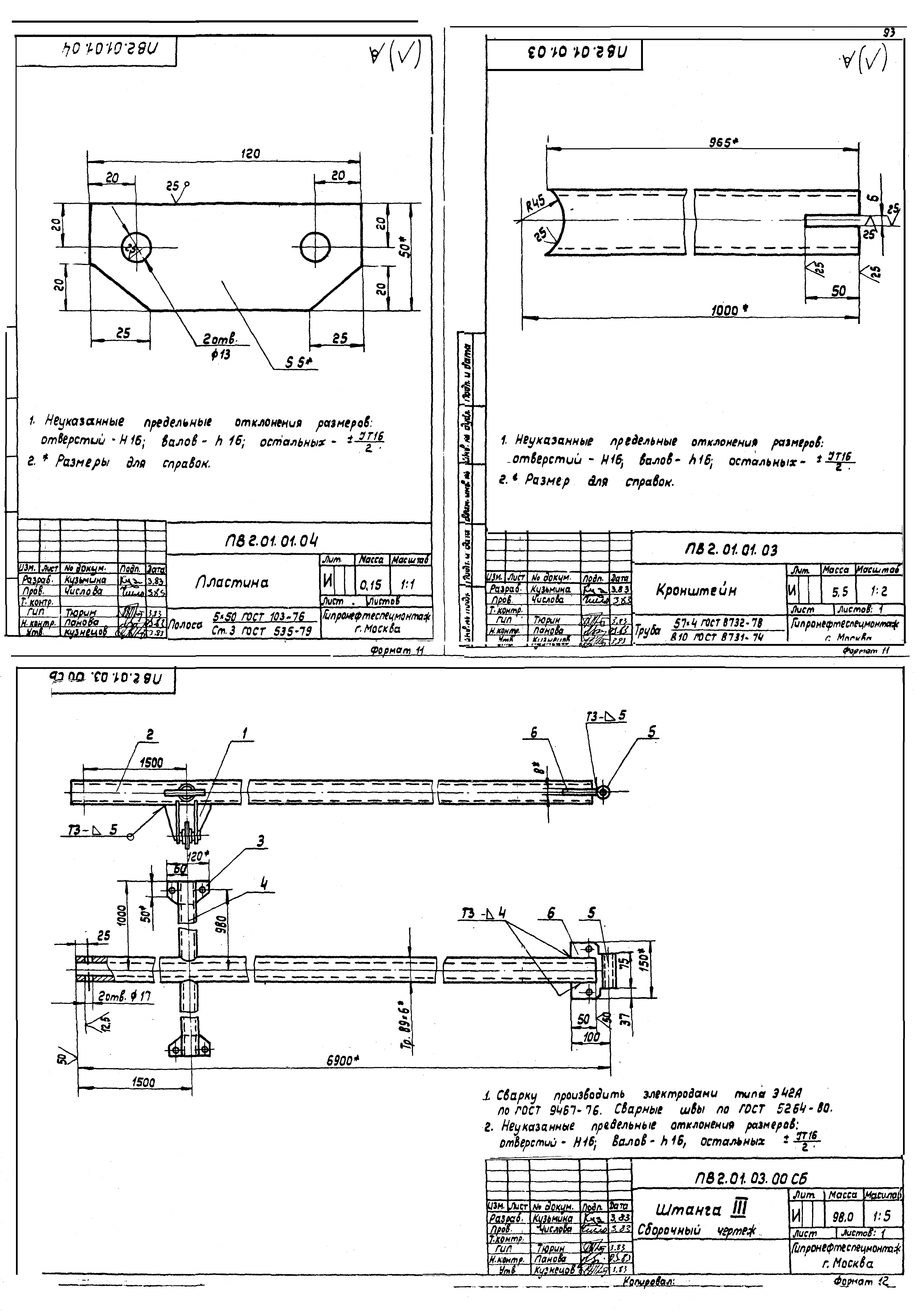
Оглавление:Устройство для раскатки рулонов
Шарнир для подъема рулонов массой 45 - 65 т краном
Захват для подъема рулонов массой 45 - 65 т краном
Скоба для развертывания рулона
Отвес
Поддон
Кронштейн для расчалок
Упор клиновой
Стяжное приспособление
Клин
Приспособление строповочное
Строп 4-х ветвевой Q = 6,5 т
Стойка монтажная
Козлы для демонтажа монтажной стойки
Скоба для навешивания балок
Строп 4-х ветвевой
Строп 3-х ветвевой
Скоба для крепления расчалок к опорному кольцу
Звено строповочное
Ловитель опорного кольца
Пробка для отвеса
Кронштейн для опорного кольца
Струбцина для прижатия опорного кольца
Стойка для приварки опорного кольца и кольца жесткости
Траверса для подъема укрупненных щитов покрытия
Ролик отводной для демонтажа монтажной стойки
Устройство для формообразования
Стенд-сани для сборки щитов покрытия
Лестница навесная
Скоба для установки навесной лестницы
Строп для монтажа окраек
Ролик поддерживающий
Приспособление для замыкания вертикального монтажного стыка
Стойка для сборки и сварки вертикального монтажного стыка
Приспособление для разметки
Укосина для монтажа понтона
Струбцина для монтажа понтона
Струбцина для прижима обвязочного уголка
Направляющая
Упор скользящий
Кронштейн для монтажа промежуточных колец жесткости
Струбцина для прижатия промежуточных колец жесткости
Разработан: Гипронефтеспецмонтаж Минмонтажспецстроя СССР (Giproneftespetsmontazh, Minmontazhspetsstroy (USSR) )
Утверждён:23.05.1983 Миннефтепром (Minnefteprom )
Расположен в:Техническая документация Строительство Справочные документы Типовые строительные конструкции, изделия и узлы Общероссийский строительный каталог Промышленные предприятия, здания и сооружения Предприятия, здания и сооружения складские Резервуары и склады для нефти и нефтепродуктов Резервуары стальные для нефти и нефтепродуктов
Типовой проект 704-1-171.84Типовой проект 704-1-171.84Типовой проект 704-1-171.84Типовой проект 704-1-171.84Типовой проект 704-1-171.84Типовой проект 704-1-171.84Типовой проект 704-1-171.84Типовой проект 704-1-171.84Типовой проект 704-1-171.84Типовой проект 704-1-171.84Типовой проект 704-1-171.84Типовой проект 704-1-171.84Типовой проект 704-1-171.84Типовой проект 704-1-171.84Типовой проект 704-1-171.84Типовой проект 704-1-171.84Типовой проект 704-1-171.84Типовой проект 704-1-171.84Типовой проект 704-1-171.84Типовой проект 704-1-171.84Типовой проект 704-1-171.84Типовой проект 704-1-171.84Типовой проект 704-1-171.84Типовой проект 704-1-171.84Типовой проект 704-1-171.84Типовой проект 704-1-171.84Типовой проект 704-1-171.84Типовой проект 704-1-171.84Типовой проект 704-1-171.84Типовой проект 704-1-171.84Типовой проект 704-1-171.84Типовой проект 704-1-171.84Типовой проект 704-1-171.84Типовой проект 704-1-171.84Типовой проект 704-1-171.84Типовой проект 704-1-171.84Типовой проект 704-1-171.84Типовой проект 704-1-171.84Типовой проект 704-1-171.84Типовой проект 704-1-171.84Типовой проект 704-1-171.84Типовой проект 704-1-171.84Типовой проект 704-1-171.84Типовой проект 704-1-171.84Типовой проект 704-1-171.84Типовой проект 704-1-171.84Типовой проект 704-1-171.84Типовой проект 704-1-171.84Типовой проект 704-1-171.84Типовой проект 704-1-171.84Типовой проект 704-1-171.84Типовой проект 704-1-171.84Типовой проект 704-1-171.84Типовой проект 704-1-171.84Типовой проект 704-1-171.84Типовой проект 704-1-171.84Типовой проект 704-1-171.84Типовой проект 704-1-171.84Типовой проект 704-1-171.84Типовой проект 704-1-171.84Типовой проект 704-1-171.84Типовой проект 704-1-171.84Типовой проект 704-1-171.84Типовой проект 704-1-171.84Типовой проект 704-1-171.84Типовой проект 704-1-171.84Типовой проект 704-1-171.84Типовой проект 704-1-171.84Типовой проект 704-1-171.84Типовой проект 704-1-171.84Типовой проект 704-1-171.84Типовой проект 704-1-171.84Типовой проект 704-1-171.84Типовой проект 704-1-171.84Типовой проект 704-1-171.84Типовой проект 704-1-171.84Типовой проект 704-1-171.84Типовой проект 704-1-171.84Типовой проект 704-1-171.84Типовой проект 704-1-171.84Типовой проект 704-1-171.84Типовой проект 704-1-171.84Типовой проект 704-1-171.84Типовой проект 704-1-171.84Типовой проект 704-1-171.84Типовой проект 704-1-171.84Типовой проект 704-1-171.84Типовой проект 704-1-171.84Типовой проект 704-1-171.84Типовой проект 704-1-171.84Типовой проект 704-1-171.84Типовой проект 704-1-171.84Типовой проект 704-1-171.84Типовой проект 704-1-171.84Типовой проект 704-1-171.84Типовой проект 704-1-171.84Типовой проект 704-1-171.84Типовой проект 704-1-171.84Типовой проект 704-1-171.84Типовой проект 704-1-171.84Типовой проект 704-1-171.84Типовой проект 704-1-171.84Типовой проект 704-1-171.84Типовой проект 704-1-171.84Типовой проект 704-1-171.84Типовой проект 704-1-171.84Типовой проект 704-1-171.84Типовой проект 704-1-171.84Типовой проект 704-1-171.84Типовой проект 704-1-171.84Типовой проект 704-1-171.84Типовой проект 704-1-171.84Типовой проект 704-1-171.84

© 2013 Ёшкин Кот :-) Карта сайта