Информационная система
«Ёшкин Кот»

Скачать базу одним архивом
Скачать обновления
История создания базы
Карта сайта

Скачать Типовой проект 903-1-245.87 Альбом 13. Задание монтажно-заготовительной мастерской

Дата актуализации: 10.08.2017

Типовой проект 903-1-245.87

Альбом 13. Задание монтажно-заготовительной мастерской

Обозначение: Типовой проект 903-1-245.87
Обозначение англ: 903-1-245.87
Статус:не определен законодательством
Название рус.:Альбом 13. Задание монтажно-заготовительной мастерской
Дата добавления в базу:01.09.2013
Дата актуализации:05.05.2017
Дата введения:17.04.1987
Оглавление:Титульный лист
ТП 903-1-245.87 АТМ3 Общие данные
ТП 903-1-245.87 АТМ3 Ведомость узлов и конструкций (начало)
ТП 903-1-245.87 АТМ3 Ведомость узлов и конструкций (продолжение)
ТП 903-1-245.87 АТМ3 Ведомость узлов и конструкций (окончание)
ТП 903-1-245.87 АТМ3 Котел ДЕ -16-14ГМ №1(2,3,4). Стенд приборов №1* (начало)
ТП 903-1-245.87 АТМ3 Котел ДЕ -16-14ГМ №1(2,3,4). Стенд приборов №1* (окончание)
ТП 903-1-245.87 АТМ3 Котел ДЕ -16-14ГМ №1(2,3,4). Стенд приборов №1** (начало)
ТП 903-1-245.87 АТМ3 Котел ДЕ -16-14ГМ №1(2,3,4). Стенд приборов №1** (окончание)
ТП 903-1-245.87 АТМ3 Котел ДЕ -16-14ГМ №1(2,3,4). Стенд приборов №2 (начало)
ТП 903-1-245.87 АТМ3 Котел ДЕ -16-14ГМ №1(2,3,4). Стенд приборов №2 (окончание)
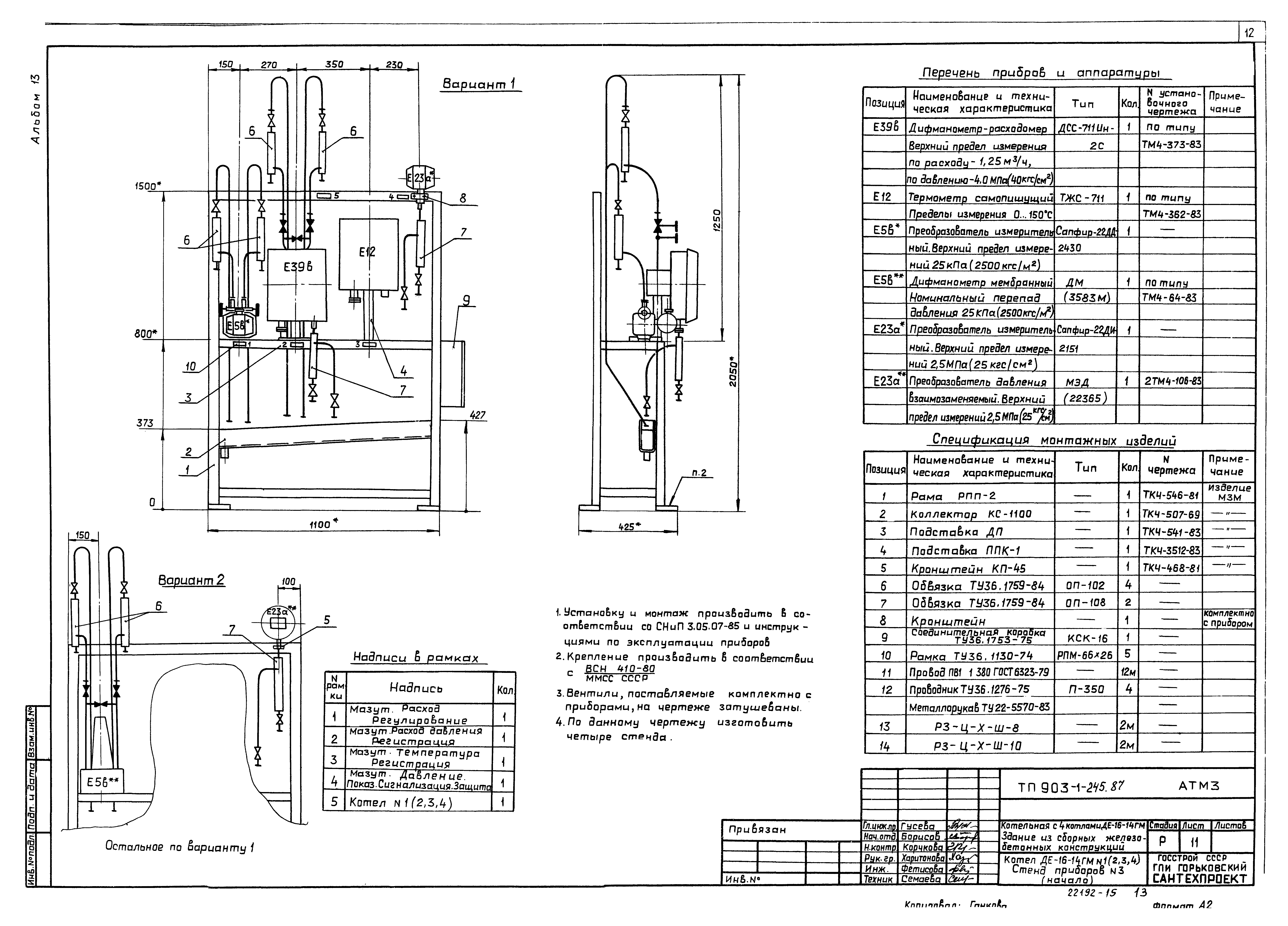
ТП 903-1-245.87 АТМ3 Котел ДЕ -16-14ГМ №1(2,3,4). Стенд приборов №3 (начало)
ТП 903-1-245.87 АТМ3 Котел ДЕ -16-14ГМ №1(2,3,4). Стенд приборов №3 (окончание)
ТП 903-1-245.87 АТМ3 Вспомогательное оборудование. Стенд приборов №1
ТП 903-1-245.87 АТМ3 Вспомогательное оборудование. Стенд приборов №2
ТП 903-1-245.87 АТМ3 Вспомогательное оборудование. Стенд приборов №3 (начало)
ТП 903-1-245.87 АТМ3 Вспомогательное оборудование. Стенд приборов №3 (окончание)
ТП 903-1-245.87 АТМ3 ГРУ. Стенд приборов (начало)
ТП 903-1-245.87 АТМ3 ГРУ. Стенд приборов (окончание)
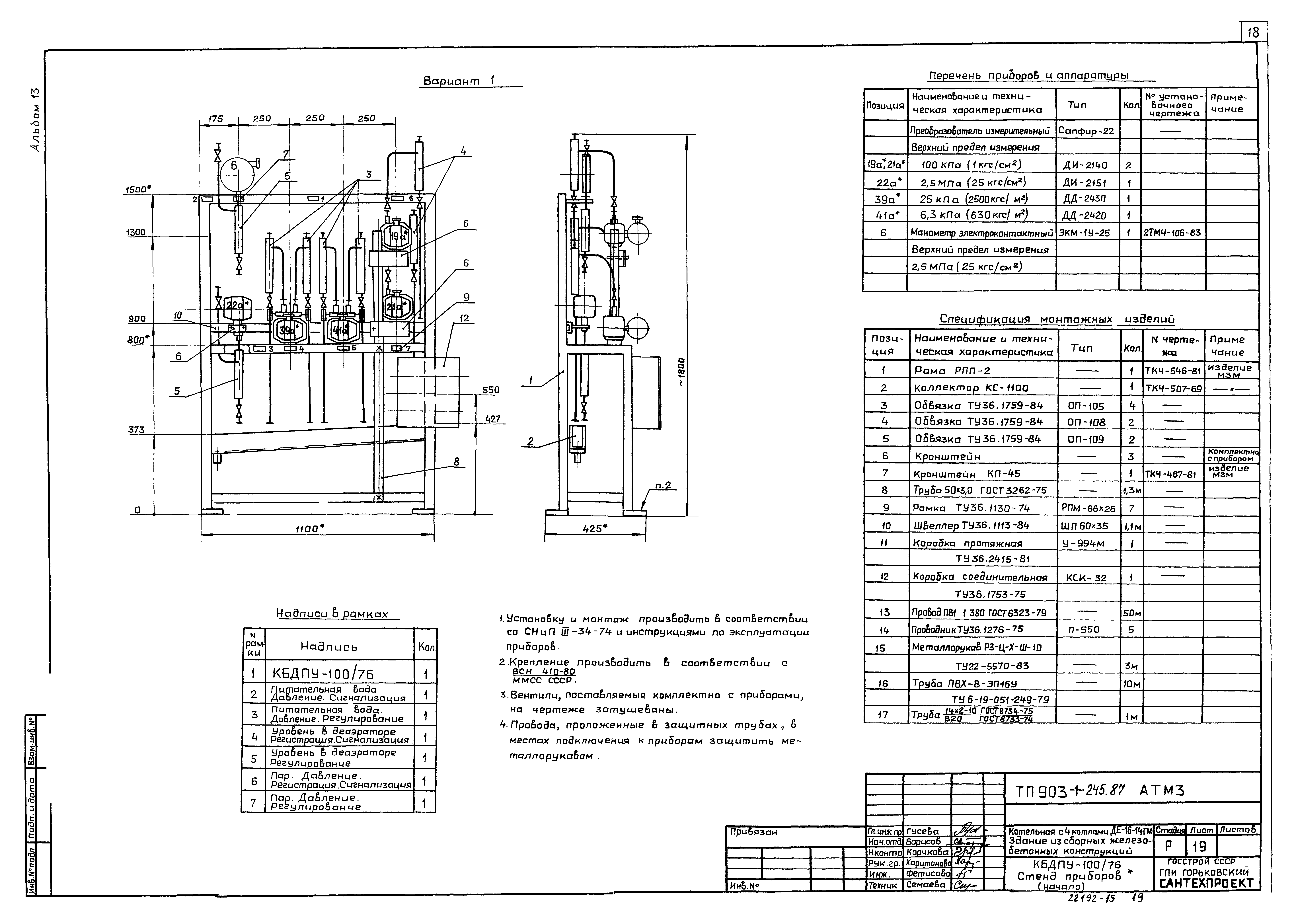
ТП 903-1-245.87 АТМ3 КБДПУ-100/76. Стенд приборов * (начало)
ТП 903-1-245.87 АТМ3 КБДПУ-100/76. Стенд приборов * (окончание)
ТП 903-1-245.87 АТМ3 КБДПУ-100/76. Стенд приборов ** (начало)
ТП 903-1-245.87 АТМ3 КБДПУ-100/76. Стенд приборов ** (окончание)
ТП 903-1-245.87 АТМ3 Блок горячего водоснабжения. Стенд приборов
ТП 903-1-245.87 АТМ3 Установка датчика типа "Сапфир" на аккумуляторном баке
ТП 903-1-245.87 АТМ3 Установка датчика типа ДМ на аккумуляторном баке
ТП 903-1-245.87 АТМ3 Установка датчика типа "Сапфир" на деаэрационной колонке
ТП 903-1-245.87 АТМ3 Установка датчика типа МЭД на деаэрационной колонке
ТП 903-1-245.87 АТМ3 Стойка исполнительного механизма СИМ - тип 1
ТП 903-1-245.87 АТМ3 Стойка исполнительного механизма СИМ - тип 2, СИМ - тип 3
ТП 903-1-245.87 АТМ3 Стойка исполнительного механизма СИМ - тип 4
ТП 903-1-245.87 АТМ3 Стойка исполнительного механизма СИМ - тип 5
ТП 903-1-245.87 АТМ3 Измерение расхода мазута. Коническая диафрагма
Разработан: Горьковский Сантехпроект
Утверждён:17.04.1987 Госстрой СССР (Государственный комитет Совета Министров СССР по делам строительства) (USSR Gosstroy А4-43)
Расположен в:Техническая документация Строительство Справочные документы Типовые строительные конструкции, изделия и узлы Общероссийский строительный каталог Промышленные предприятия, здания и сооружения Здания и сооружения санитарно-технические Теплоснабжение Котельные установки Закрытые системы теплоснабжения Топливо - газ, резерв - мазут
Заменяет собой:
Типовой проект 903-1-245.87Типовой проект 903-1-245.87Типовой проект 903-1-245.87Типовой проект 903-1-245.87Типовой проект 903-1-245.87Типовой проект 903-1-245.87Типовой проект 903-1-245.87Типовой проект 903-1-245.87Типовой проект 903-1-245.87Типовой проект 903-1-245.87Типовой проект 903-1-245.87Типовой проект 903-1-245.87Типовой проект 903-1-245.87Типовой проект 903-1-245.87Типовой проект 903-1-245.87Типовой проект 903-1-245.87Типовой проект 903-1-245.87Типовой проект 903-1-245.87Типовой проект 903-1-245.87Типовой проект 903-1-245.87Типовой проект 903-1-245.87Типовой проект 903-1-245.87Типовой проект 903-1-245.87Типовой проект 903-1-245.87Типовой проект 903-1-245.87Типовой проект 903-1-245.87Типовой проект 903-1-245.87Типовой проект 903-1-245.87

© 2013 Ёшкин Кот :-) Карта сайта