Информационная система
«Ёшкин Кот»

Скачать базу одним архивом
Скачать обновления
История создания базы
Карта сайта

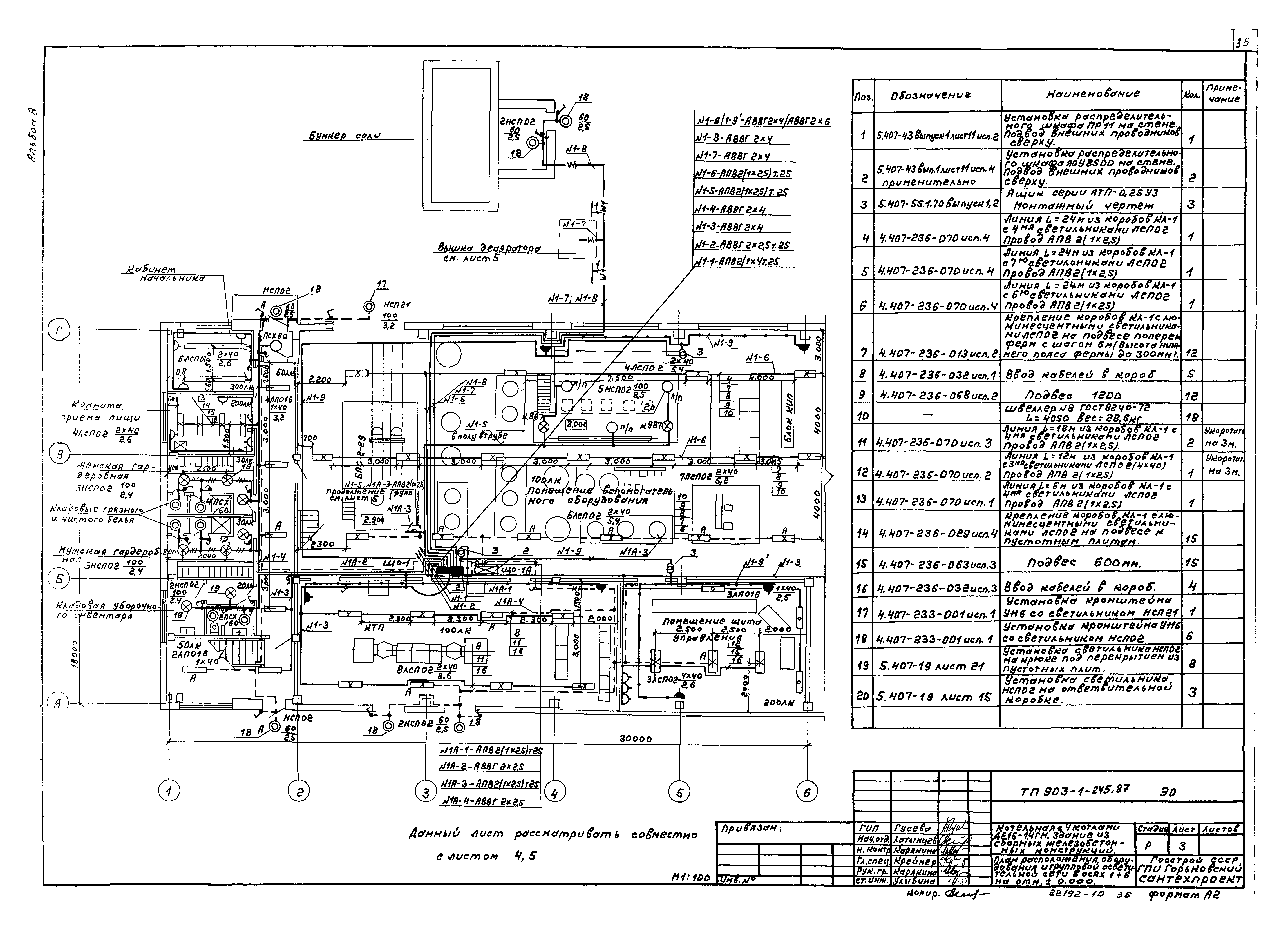
Скачать Типовой проект 903-1-245.87 Альбом 8. Силовое электрооборудование. Электрическое освещение. Связь и сигнализация. Чертежи монтажной зоны

Дата актуализации: 10.08.2017

Типовой проект 903-1-245.87

Альбом 8. Силовое электрооборудование. Электрическое освещение. Связь и сигнализация. Чертежи монтажной зоны

Обозначение: Типовой проект 903-1-245.87
Обозначение англ: 903-1-245.87
Статус:не определен законодательством
Название рус.:Альбом 8. Силовое электрооборудование. Электрическое освещение. Связь и сигнализация. Чертежи монтажной зоны
Дата добавления в базу:01.10.2014
Дата актуализации:05.05.2017
Дата введения:17.04.1987
Разработан: Горьковский Сантехпроект
Утверждён:17.04.1987 Госстрой СССР (Государственный комитет Совета Министров СССР по делам строительства) (USSR Gosstroy А4-43)
Расположен в:Техническая документация Строительство Справочные документы Типовые строительные конструкции, изделия и узлы Общероссийский строительный каталог Промышленные предприятия, здания и сооружения Здания и сооружения санитарно-технические Теплоснабжение Котельные установки Закрытые системы теплоснабжения Топливо - газ, резерв - мазут
Заменяет собой:
Типовой проект 903-1-245.87Типовой проект 903-1-245.87Типовой проект 903-1-245.87Типовой проект 903-1-245.87Типовой проект 903-1-245.87Типовой проект 903-1-245.87Типовой проект 903-1-245.87Типовой проект 903-1-245.87Типовой проект 903-1-245.87Типовой проект 903-1-245.87Типовой проект 903-1-245.87Типовой проект 903-1-245.87Типовой проект 903-1-245.87Типовой проект 903-1-245.87Типовой проект 903-1-245.87Типовой проект 903-1-245.87Типовой проект 903-1-245.87Типовой проект 903-1-245.87Типовой проект 903-1-245.87Типовой проект 903-1-245.87Типовой проект 903-1-245.87Типовой проект 903-1-245.87Типовой проект 903-1-245.87Типовой проект 903-1-245.87Типовой проект 903-1-245.87Типовой проект 903-1-245.87Типовой проект 903-1-245.87Типовой проект 903-1-245.87Типовой проект 903-1-245.87Типовой проект 903-1-245.87Типовой проект 903-1-245.87Типовой проект 903-1-245.87Типовой проект 903-1-245.87Типовой проект 903-1-245.87Типовой проект 903-1-245.87Типовой проект 903-1-245.87Типовой проект 903-1-245.87Типовой проект 903-1-245.87Типовой проект 903-1-245.87Типовой проект 903-1-245.87Типовой проект 903-1-245.87Типовой проект 903-1-245.87Типовой проект 903-1-245.87Типовой проект 903-1-245.87Типовой проект 903-1-245.87

© 2013 Ёшкин Кот :-) Карта сайта