Информационная система
«Ёшкин Кот»

Скачать базу одним архивом
Скачать обновления
История создания базы
Карта сайта

Скачать Типовой проект 903-1-245.87 Альбом 2. Тепломеханические решения

Дата актуализации: 10.08.2017

Типовой проект 903-1-245.87

Альбом 2. Тепломеханические решения

Обозначение: Типовой проект 903-1-245.87
Обозначение англ: 903-1-245.87
Статус:не определен законодательством
Название рус.:Альбом 2. Тепломеханические решения
Дата добавления в базу:01.09.2013
Дата актуализации:05.05.2017
Дата введения:17.04.1987
Оглавление:Содержание альбома
Чертежи марки ТМ
   Общие данные
   Компоновка оборудования. План - вид сверху. Фрагмент плана на отм. 0,000
   Компоновка оборудования. Разрезы 1-1, 2-2, 303
   Газоходы котлоагрегата
   Воздуховоды котлоагрегата
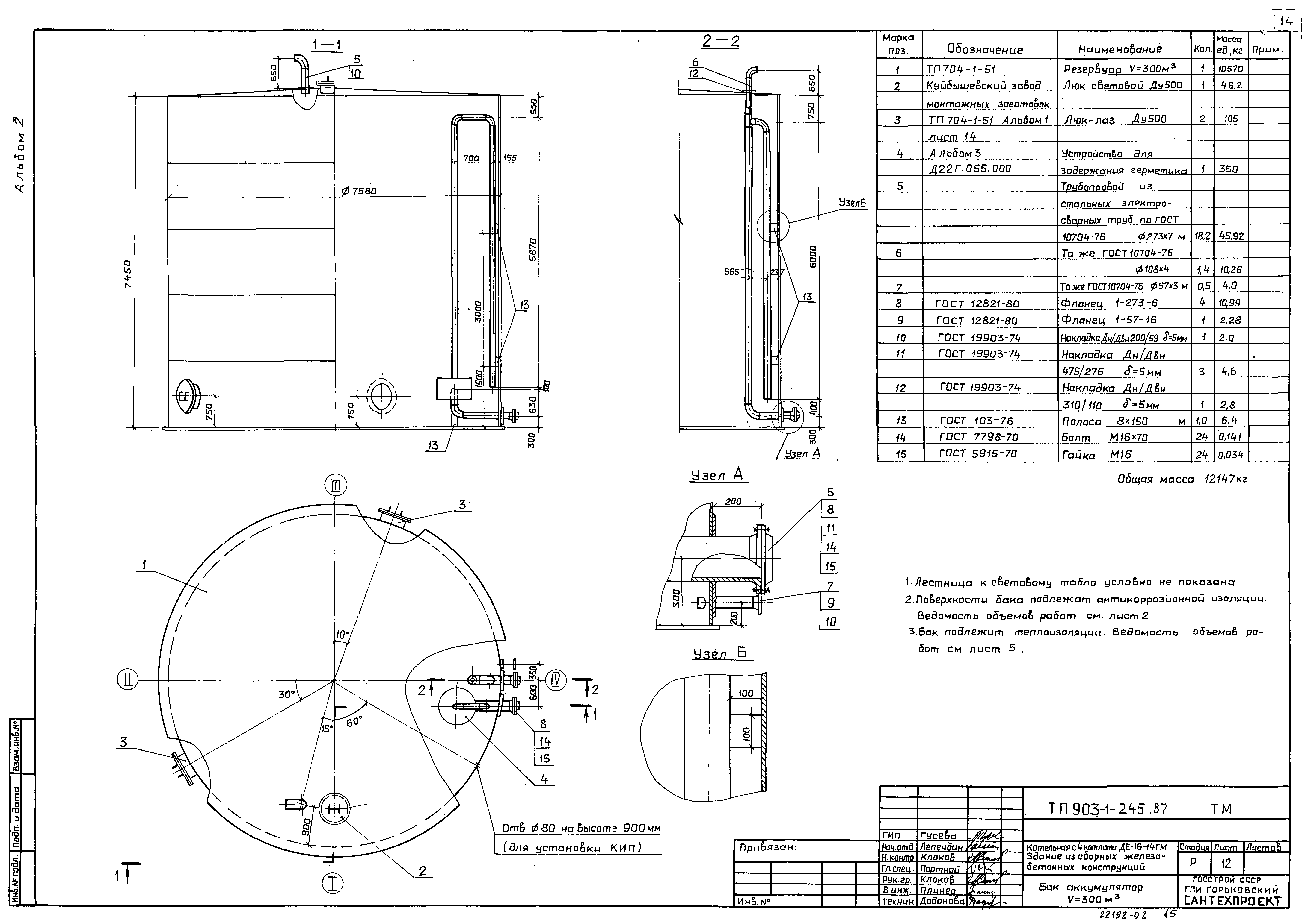
   Бак-аккумулятор V = 300 куб. м
   Блок холодильника проб К10
   Блок горячего водоснабжения К20. Схема блока. Спецификация
   Блок горячего водоснабжения К20. План - вид сверху. План на отм. 0,000. Разрезы 1-1, 2-2, 3-3, 4-4, 5-5, 6-6
   Блок горячего водоснабжения К20. Металлоконструкция. Технические требования
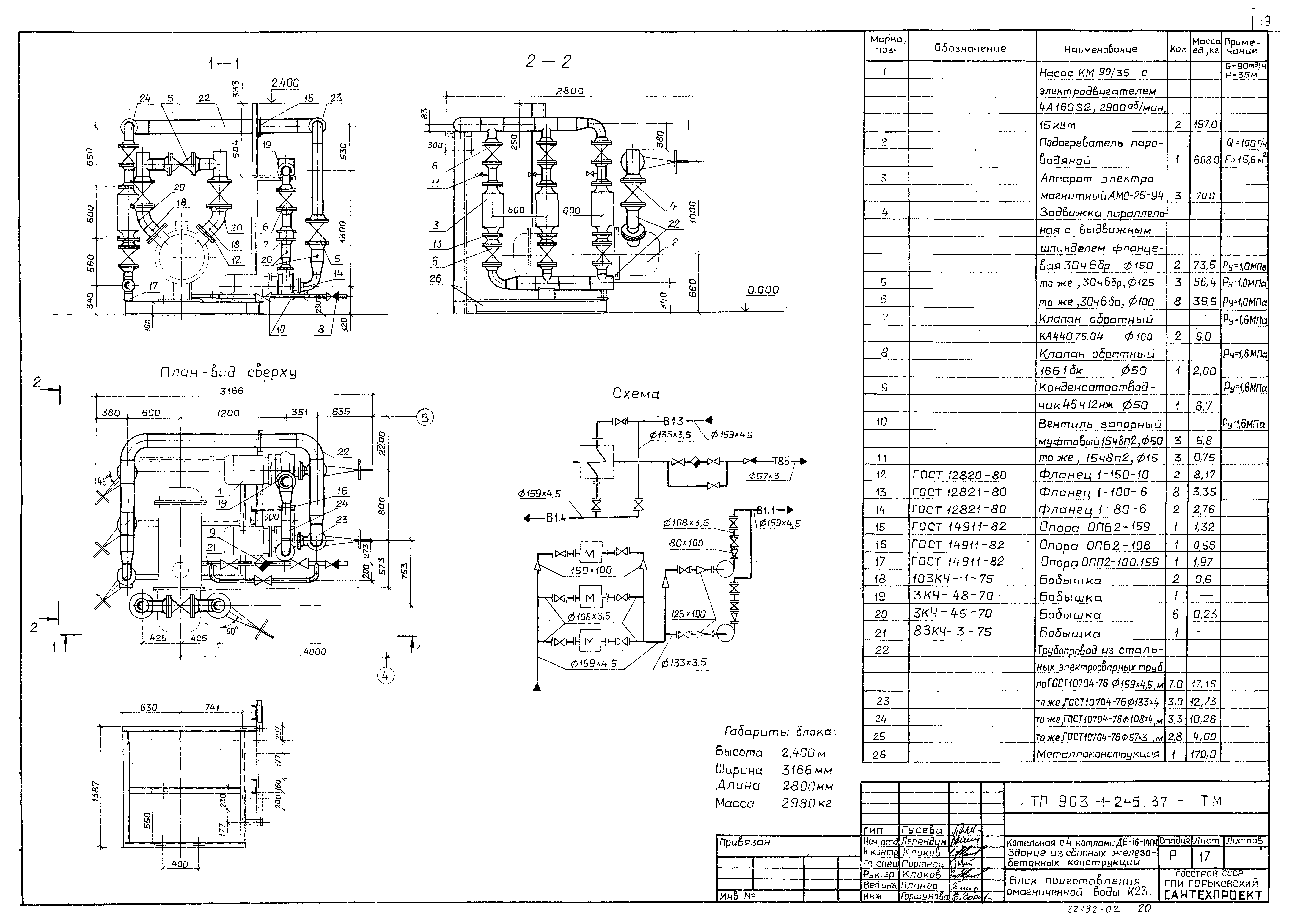
   Блок приготовления омагниченной воды К23
   Типы крепления оборудования
   Схема трубопроводов
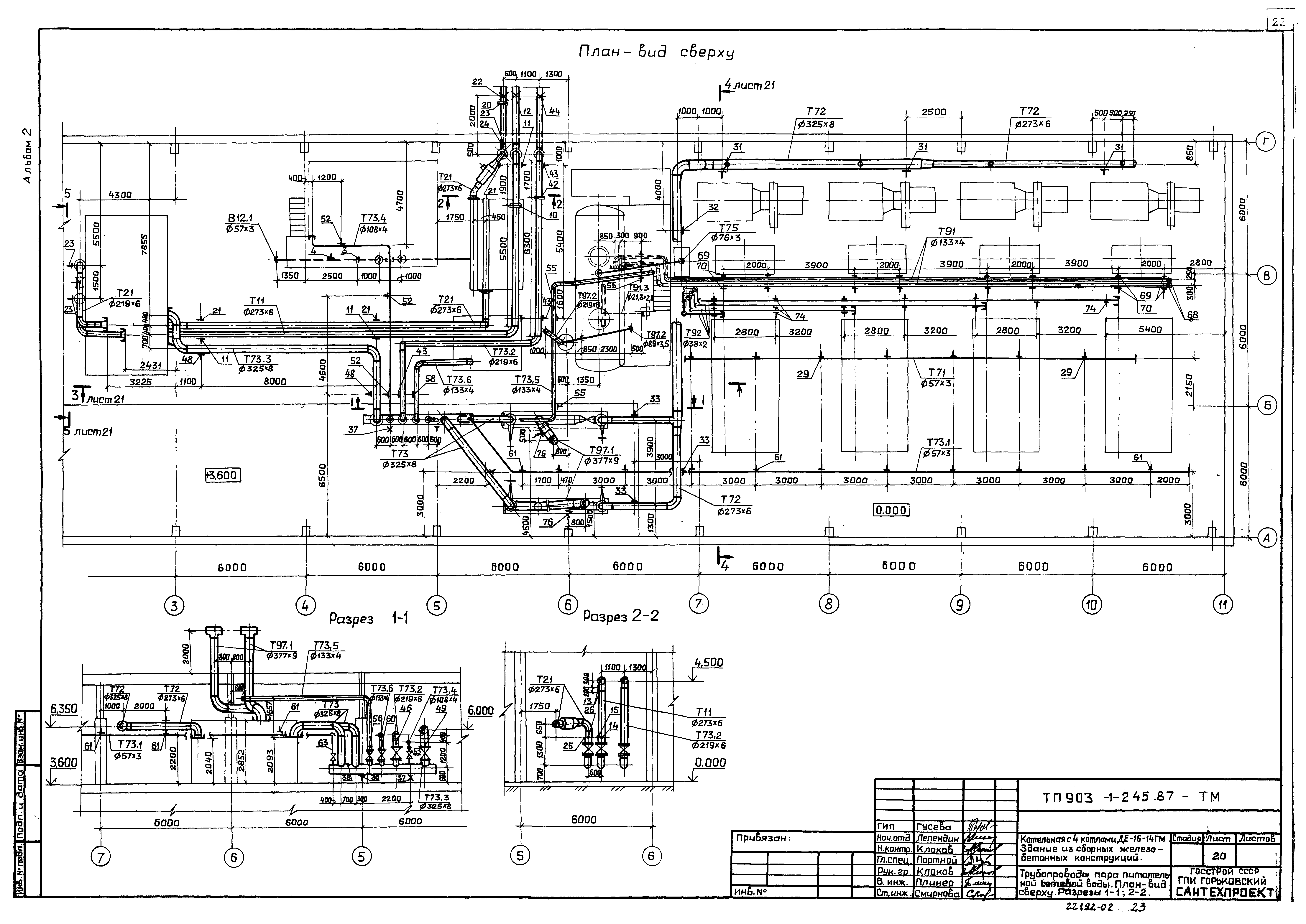
   Трубопроводы пара, питательной сетевой воды. План - вид сверху. Разрезы 1-1, 2-2
   Трубопроводы пара, питательной сетевой воды. Разрезы 3-3, 4-4, 5-5. Спецификация
   Трубопроводы горячего водоснабжения конденсата, омагниченной воды, сливные. План - вид сверху
   Трубопроводы горячего водоснабжения конденсата, омагниченной воды, сливные. Разрезы 1-1, 2-2, 3-3, 4-4, 5-5, 6-6, 7-7
   Трубопроводы горячего водоснабжения конденсата, омагниченной воды, сливные. План наружных трубопроводов. Разрезы 1-1, 2-2, 3-3. Сечения а-а, б-б
   Трубопроводы горячего водоснабжения конденсата, омагниченной воды, сливные. Спецификация
   Схема трубопроводов котлоагрегата
   Трубопроводы котлоагрегата. План. Разрезы 1-1, 2-2, 3-3, 4-4
   Трубопроводы котлоагрегата. Разрезы 5-5, 6-6, 7-7
   Спецификация трубопроводов котлоагрегата
   Площадка для окон К34
Чертежи марки ТМН
   Содержание
   Изоляция паромазутопроводов
   Изоляция дымососа ДН-11.2
   Изоляция цилиндрической части горизонтального деаэраторного бака
   Изоляция цилиндрической части бака-аккумулятора
   Изоляция днищ цилиндрических аппаратов
   Изоляция теплоутилизатора и газоходов прямоугольного сечения
Разработан: Горьковский Сантехпроект
Утверждён:17.04.1987 Госстрой СССР (Государственный комитет Совета Министров СССР по делам строительства) (USSR Gosstroy А4-43)
Расположен в:Техническая документация Строительство Справочные документы Типовые строительные конструкции, изделия и узлы Общероссийский строительный каталог Промышленные предприятия, здания и сооружения Здания и сооружения санитарно-технические Теплоснабжение Котельные установки Закрытые системы теплоснабжения Топливо - газ, резерв - мазут
Заменяет собой:
Типовой проект 903-1-245.87Типовой проект 903-1-245.87Типовой проект 903-1-245.87Типовой проект 903-1-245.87Типовой проект 903-1-245.87Типовой проект 903-1-245.87Типовой проект 903-1-245.87Типовой проект 903-1-245.87Типовой проект 903-1-245.87Типовой проект 903-1-245.87Типовой проект 903-1-245.87Типовой проект 903-1-245.87Типовой проект 903-1-245.87Типовой проект 903-1-245.87Типовой проект 903-1-245.87Типовой проект 903-1-245.87Типовой проект 903-1-245.87Типовой проект 903-1-245.87Типовой проект 903-1-245.87Типовой проект 903-1-245.87Типовой проект 903-1-245.87Типовой проект 903-1-245.87Типовой проект 903-1-245.87Типовой проект 903-1-245.87Типовой проект 903-1-245.87Типовой проект 903-1-245.87Типовой проект 903-1-245.87Типовой проект 903-1-245.87Типовой проект 903-1-245.87Типовой проект 903-1-245.87Типовой проект 903-1-245.87Типовой проект 903-1-245.87Типовой проект 903-1-245.87Типовой проект 903-1-245.87Типовой проект 903-1-245.87Типовой проект 903-1-245.87Типовой проект 903-1-245.87Типовой проект 903-1-245.87Типовой проект 903-1-245.87Типовой проект 903-1-245.87Типовой проект 903-1-245.87

© 2013 Ёшкин Кот :-) Карта сайта