Скачать Типовой проект 416-6-27.88 Альбом I. Пояснительная записка, технологические решения, архитектурные решения и конструкции железобетонныеДата актуализации: 10.08.2017 Типовой проект 416-6-27.88
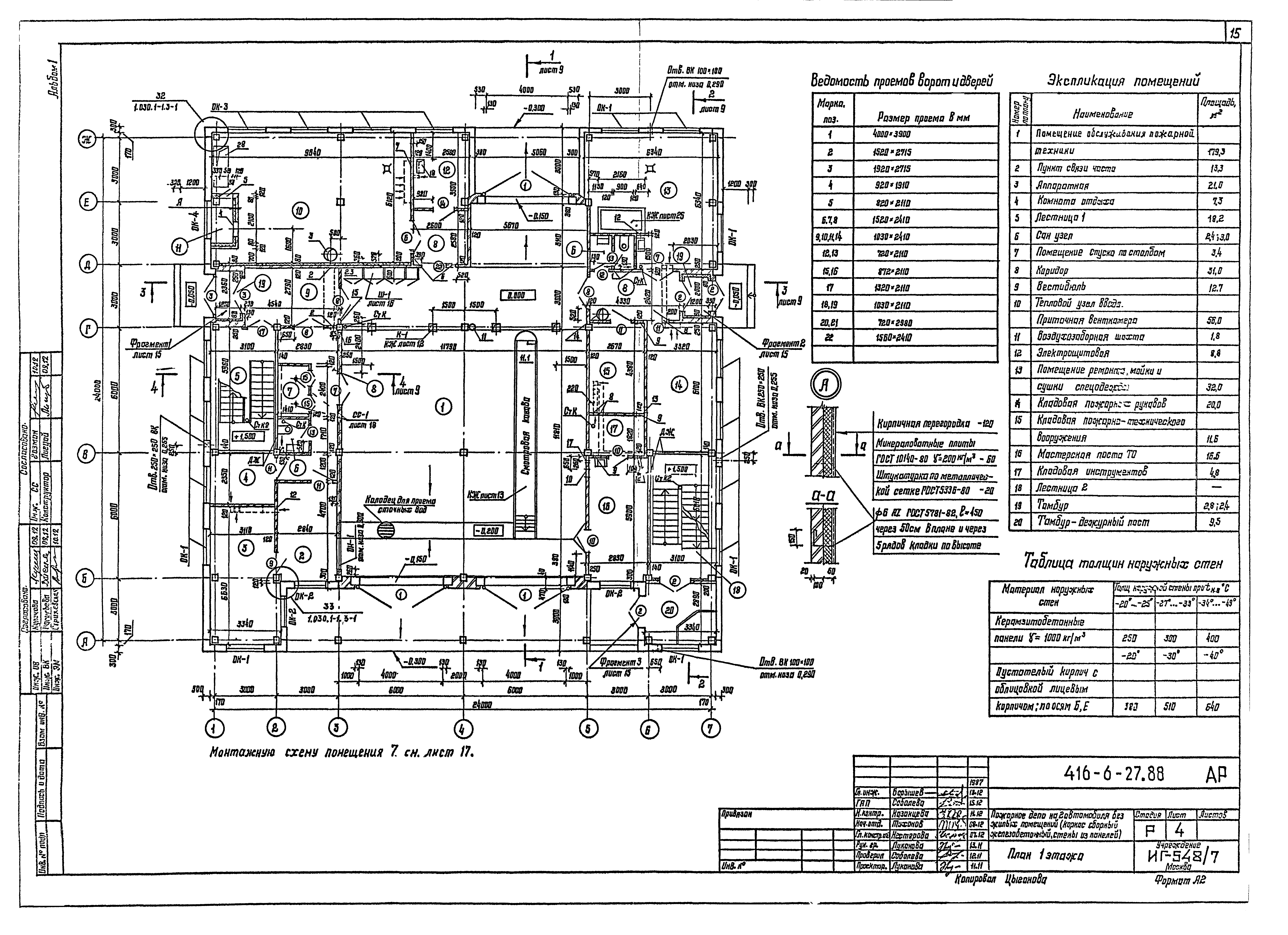
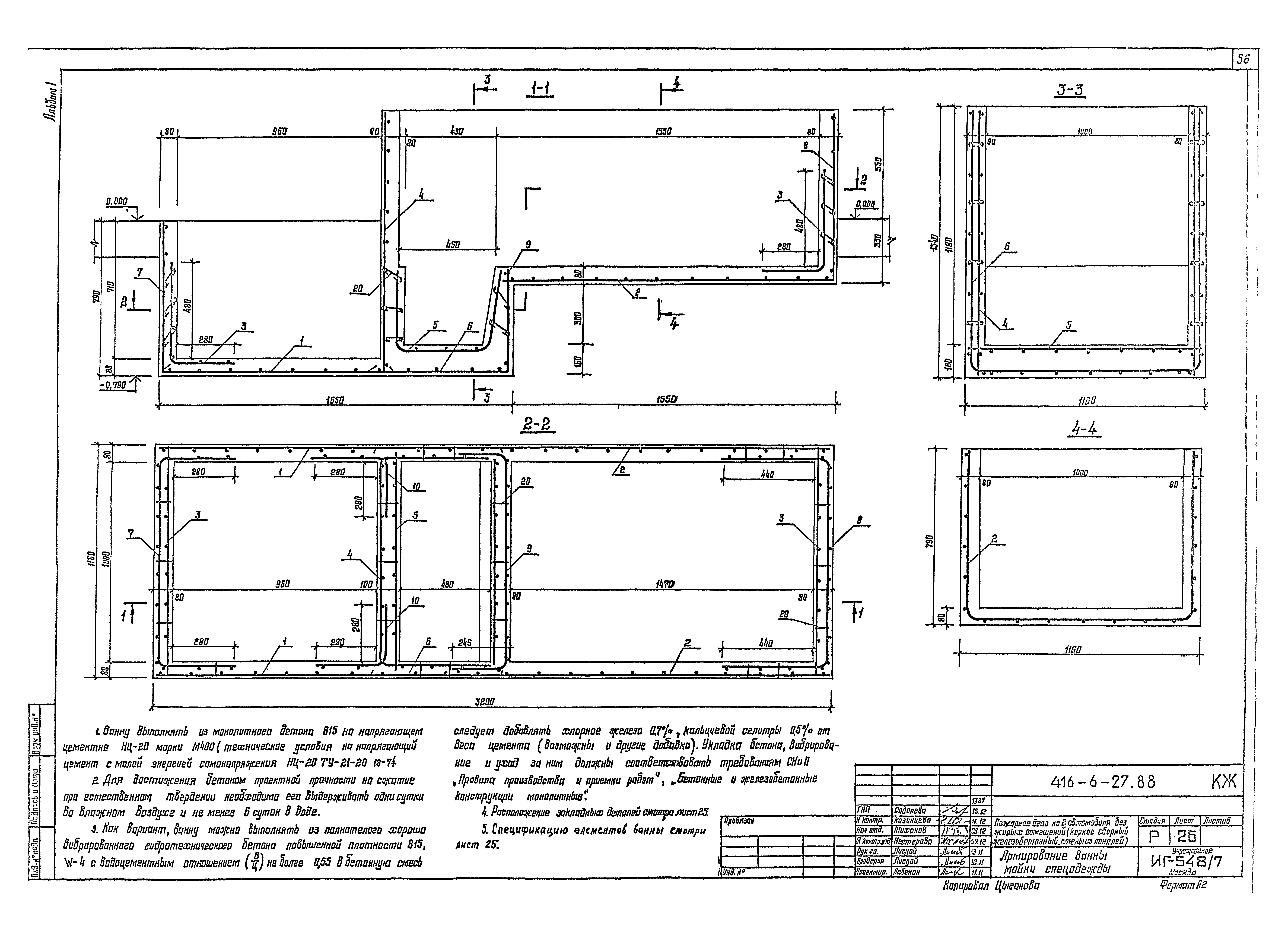
Альбом I. Пояснительная записка, технологические решения, архитектурные решения и конструкции железобетонныеОбозначение: | Типовой проект 416-6-27.88 | Обозначение англ: | 416-6-27.88 | Статус: | не определен законодательством | Название рус.: | Альбом I. Пояснительная записка, технологические решения, архитектурные решения и конструкции железобетонные | Дата добавления в базу: | 01.09.2013 | Дата актуализации: | 05.05.2017 | Дата введения: | 25.12.1987 | Оглавление: | ТП 416-6-27.88 ПЗ Пояснительная записка ТП 416-6-27.88 ТХ Чертежи марки ТХ ТП 416-6-27.88 ТХ-1 Общие данные ТП 416-6-27.88 ТХ-2 План расположения технологического оборудования 1 и 2 этажей ТП 416-6-27.88 ТХ-3 План расположения оборудования и мебели 1 и 2 этажей ТП 416-6-27.88 АР Чертежи марки АР ТП 416-6-27.88 АР-1 Общие данные (начало) ТП 416-6-27.88 АР-2 Общие данные (продолжение) ТП 416-6-27.88 АР-3 Общие данные (окончание) ТП 416-6-27.88 АР-4 План 1 этажа ТП 416-6-27.88 АР-5 План 2 этажа ТП 416-6-27.88 АР-6 План на отм.-3.500 ТП 416-6-27.88 АР-7 Спецификация заполнения проемов и встроенных шкафов ТП 416-6-27.88 АР-8 Фасады ТП 416-6-27.88 АР-9 Разрезы. Детали ТП 416-6-27.88 АР-10 План кровли. Шахты вентиляционные ШВ-5…ШВ-13 ТП 416-6-27.88 АР-11 Планы полов ТП 416-6-27.88 АР-12 Схема расположения элементов перемычек 1 этажа ТП 416-6-27.88 АР-13 Схема расположения элементов перемычек и сборных перегородок 2 этажа ТП 416-6-27.88 АР-14 Вентиляционные шахты ШВ-1…ШВ-4 ТП 416-6-27.88 АР-15 Фрагменты 1,2,3 ТП 416-6-27.88 АР-16 Встроенные шкафы ТП 416-6-27.88 АР-17 Монтажные схемы ДБИ-1,ДБИ-1а,БР-1 ТП 416-6-27.88 АР-18 Пожарная лестница МПЛ и установка спусковых столбов СС-1 ТП 416-6-27.88 АР-19 Схемы, установки телестойки, радиостойки и мачты МУК8 ТП 416-6-27.88 КЖ Чертежи марки КЖ ТП 416-6-27.88 КЖ-1 Общие данные (начало) ТП 416-6-27.88 КЖ-2 Общие данные (продолжение) ТП 416-6-27.88 КЖ-3 Общие данные (окончание) ТП 416-6-27.88 КЖ-4 Схемы расчетных нагрузок на фундаменты ТП 416-6-27.88 КЖ-5 Схема расположения элементов фундаментов ТП 416-6-27.88 КЖ-6 Сечения элементов фундаментов 1-1…12-12 ТП 416-6-27.88 КЖ-7 Сечения элементов фундаментов 13-13,14-14 ТП 416-6-27.88 КЖ-8 Монолитные фундаменты под диафрагмой жесткости ТП 416-6-27.88 КЖ-9 Спецификации ТП 416-6-27.88 КЖ-10 Конструкция перехода ТП 416-6-27.88 КЖ-11 Схемы расположения элементов подпольных каналов и желобов ТП 416-6-27.88 КЖ-12 Сечения элементов подпольных каналов ТП 416-6-27.88 КЖ-13 Смотровая канава. Планы, виды, сечения, деталь ТП 416-6-27.88 КЖ-14 Смотровая канава. Детали ТП 416-6-27.88 КЖ-15 Схемы расположения элементов каркасов ТП 416-6-27.88 КЖ-16 Спецификация элементов каркаса. Спецификация соединительных изделий ТП 416-6-27.88 КЖ-17 Монтажные схемы лестниц ТП 416-6-27.88 КЖ-18 Спецификации ТП 416-6-27.88 КЖ-19 Схемы расположения элементов перекрытия 1 этажа и подвала ТП 416-6-27.88 КЖ-20 План покрытия ТП 416-6-27.88 КЖ-21 Спецификация монолитных участков ТП 416-6-27.88 КЖ-22 Схемы расположения панелей наружных стен по осям А,Б,Ж,Е,1,2,4,5,6,7 ТП 416-6-27.88 КЖ-23 Спецификации стеновых панелей (начало) ТП 416-6-27.88 КЖ-24 Спецификации стеновых панелей (продолжение), карнизных панелей и соединительных изделий ТП 416-6-27.88 КЖ-25 Ванна мойки спецодежды ТП 416-6-27.88 КЖ-26 Армирование ванны мойки спецодежды ТП 416-6-27.88 КЖ-27 Конструкция асбоцементного воздуховода ТП 416-6-27.88 КЖ-28 Эстакада для мойки автомобилей ТП 416-6-27.88 КЖ-29 Конструкция эстакады | Разработан: | Учреждение ИГ-548/7
| Утверждён: | 27.11.1986 МВД СССР (USSR Ministry of Internal Affairs 172-86)
| Расположен в: |
|
                                                          
|