Скачать Типовой проект 903-9-28.89 Альбом 2. Противокоррозионная защита (из ТП 903-9-26.89)Дата актуализации: 10.08.2017 Типовой проект 903-9-28.89
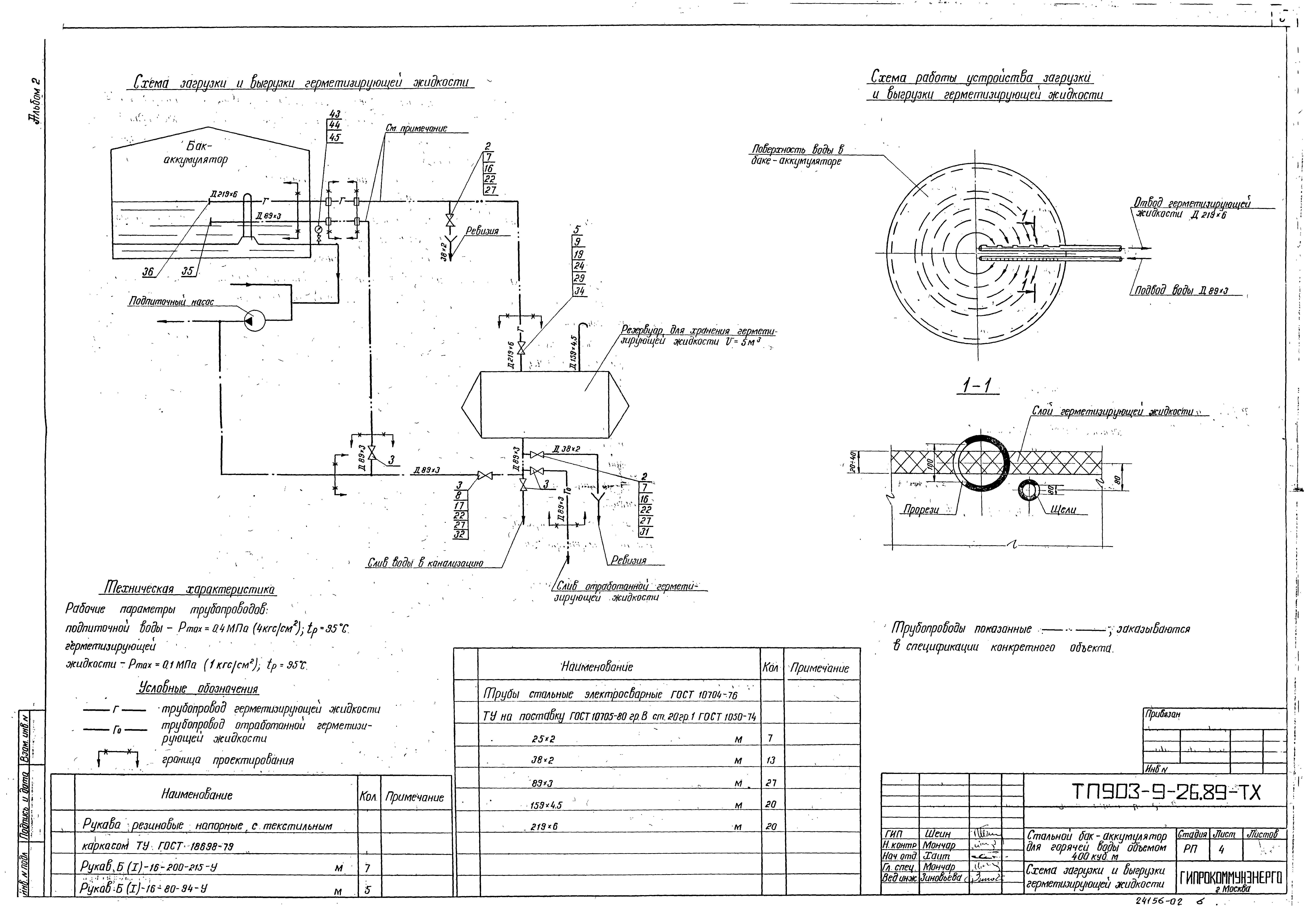
Альбом 2. Противокоррозионная защита (из ТП 903-9-26.89)Обозначение: | Типовой проект 903-9-28.89 | Обозначение англ: | 903-9-28.89 | Статус: | не действует | Название рус.: | Альбом 2. Противокоррозионная защита (из ТП 903-9-26.89) | Дата добавления в базу: | 01.09.2013 | Дата актуализации: | 05.05.2017 | Разработан: | Гипрокоммунэнерго
| Утверждён: | 18.07.1988 Министерство жилищно-коммунального хозяйства РСФСР (201)
| Издан: | ЦИТП Госстроя СССР (CITP, Gosstroy (USSR) 1990 г. )
| Расположен в: |
|
        
|