| ||||||||||||||||||||||||||
Скачать Шифр А39-96 Установка низковольтных комплектных устройств (НКУ) открыто. Материалы для проектирования и рабочие чертежиДата актуализации: 10.08.2017
|
| Обозначение: | Шифр А39-96 |
| Обозначение англ: | А39-96 |
| Статус: | cправочные материалы, мп, тпр |
| Название рус.: | Установка низковольтных комплектных устройств (НКУ) открыто. Материалы для проектирования и рабочие чертежи |
| Дата добавления в базу: | 01.09.2013 |
| Дата актуализации: | 05.05.2017 |
| Область применения: | Альбом предназначен для проектирования и монтажа открытых щитов НКУ |
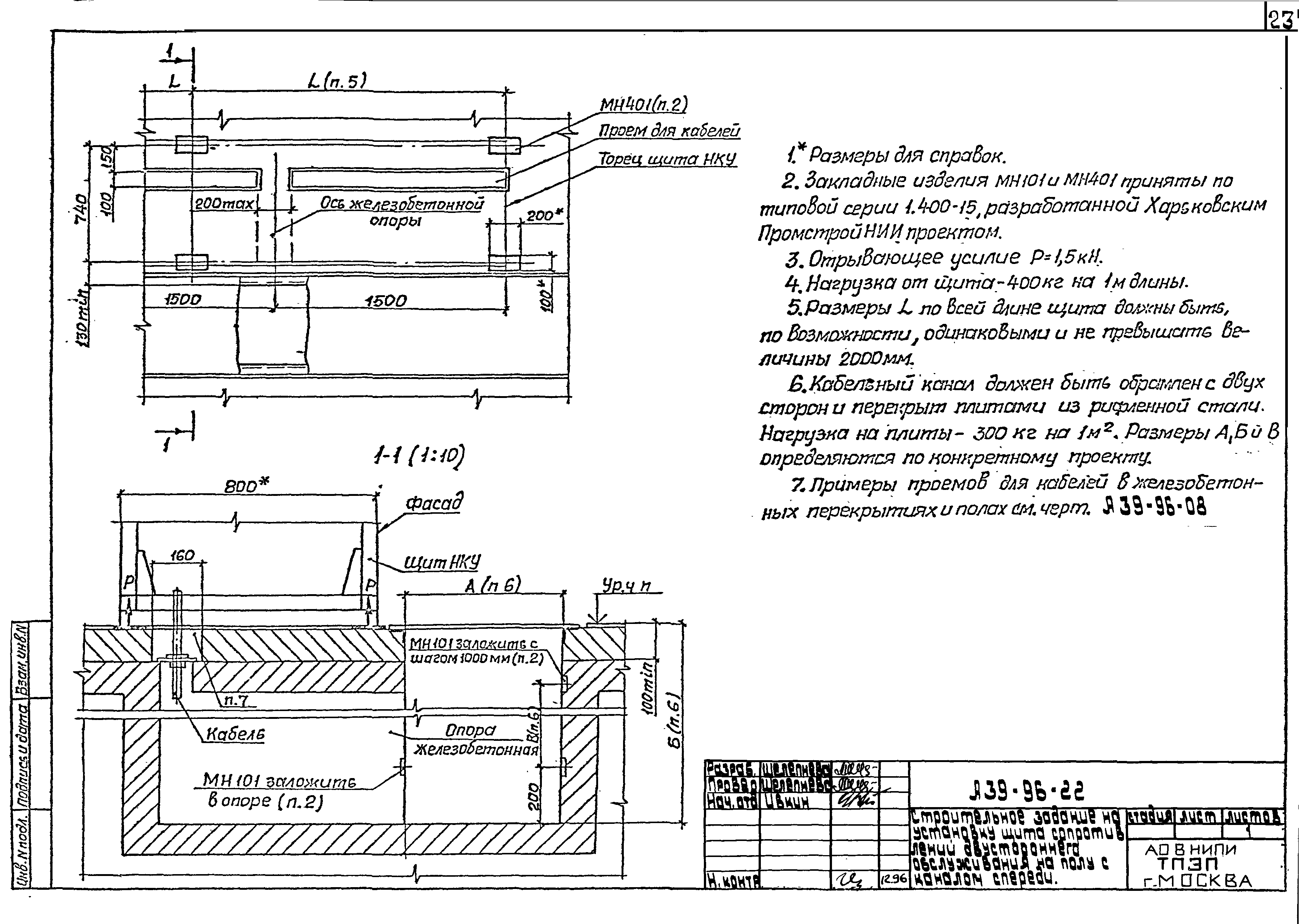
| Оглавление: | А39-96 Содержание А39-96-01ПЗ Пояснительная записка А39-96-02ГЧ Каркасы щитов НКУ. Габаритный чертеж А39-96-03 Минимальные размеры проходов вдоль щитов НКУ одностороннего обслуживания глубиной 600 мм А39-96-04 Минимальные размеры проходов вдоль однорядных щитов НКУ двустороннего обслуживания глубиной 800 мм А39-96-05 Минимальные размеры проходов вдоль двухрядных щитов НКУ двустороннего обслуживания глубиной 800 мм А39-96-06 Минимальные размеры боковых проходов для щитов НКУ А39-96-07 Строительные задания на установку щитов НКУ. Пример А39-96-08 Строительные задания на проемы для кабелей в железобетонных перекрытиях и полах. Пример А39-96-09 Строительное задание на установку щита одностороннего обслуживания на перекрытии А39-96-10 Строительное задание на установку щита двустороннего обслуживания на перекрытии А39-96-11 Строительное задание на установку щита двустороннего обслуживания на перекрытии А39-96-12 Строительное задание на установку щита одностороннего обслуживания на полу с каналом сзади А39-96-13 Строительное задание на установку щита двустороннего обслуживания на полу с каналом сзади А39-96-14 Строительное задание на установку щита одностороннего обслуживания на полу с каналом спереди А39-96-15 Строительное задание на установку щита двустороннего обслуживания на полу с каналом спереди А39-96-16 Строительное задание на установку щита двустороннего обслуживания на полу с каналом спереди и сзади А39-96-17 Строительное задание на установку щита сопротивлений одностороннего обслуживания на перекрытии А39-96-18 Строительное задание на установку щита сопротивлений одностороннего обслуживания на полу с каналом сзади А39-96-19 Строительное задание на установку щита сопротивлений одностороннего обслуживания на полу с каналом спереди А39-96-20 Строительное задание на установку щита сопротивлений одностороннего обслуживания на полу А39-96-21 Строительное задание на установку щита сопротивлений двустороннего обслуживания на полу с каналом сзади А39-96-22 Строительное задание на установку щита сопротивлений двустороннего обслуживания на полу с каналом спереди А39-96-23 Установка щитов НКУ. Пример А39-96-24 Установка щита на перекрытии А 39-96-25 Установка щита двустороннего обслуживания на перекрытии А39-96-26 Установка щита на полу с кабельным каналом сзади А39-96-27 Установка щита на полу с кабельным каналом спереди А39-96-28 Установка щита двустороннего обслуживания на полу с кабельным каналом сзади и спереди А39-96-29 Установка щита сопротивлений на перекрытии А39-96-30 Установка щита сопротивлений одностороннего обслуживания на полу с кабельным каналом сзади и спереди А39-96-31 Установка щита сопротивлений двустороннего обслуживания на полу с кабельным каналом сзади А39-96-31 Установка щита сопротивлений двустороннего обслуживания на полу с кабельным каналом спереди |
| Разработан: | ВНИПИ Тяжпромэлектропроект им. Ф.Б. Якубовского |
| Утверждён: | 16.12.1996 ВНИПИ Тяжпромэлектропроект им. Ф.Б. Якубовского (F.B.Yakubovskiy Tyazhpromelektroproject VNIPI 23) |
| Расположен в: |
































