Информационная система
«Ёшкин Кот»

Скачать базу одним архивом
Скачать обновления
История создания базы
Карта сайта

Скачать Типовой проект 903-1-242.87 Альбом 3. Станция водоподготовки. Мазутоснабжение. Газоснабжение

Дата актуализации: 10.08.2017

Типовой проект 903-1-242.87

Альбом 3. Станция водоподготовки. Мазутоснабжение. Газоснабжение

Обозначение: Типовой проект 903-1-242.87
Обозначение англ: 903-1-242.87
Статус:не определен законодательством
Название рус.:Альбом 3. Станция водоподготовки. Мазутоснабжение. Газоснабжение
Дата добавления в базу:01.09.2013
Дата актуализации:05.05.2017
Дата введения:01.11.1987
Оглавление:Содержание альбома
Чертежи марки ВП
   Общие данные (начало)
   Общие данные (окончание)
   Компоновка оборудования. План - вид сверху. Разрезы 1-1, 2-2. План на отм. 3,600
   Блок натрий-катионных фильтров I ступени (А1)
   Блок натрий-катионных фильтров II ступени (А2)
   Блок натрий-катионных фильтров I ступени (А3)
   Блок фильтров очистки конденсата (А6)
   Блок сбора конденсата и оборотного водоснабжения (А7) (начало)
   Блок сбора конденсата и оборотного водоснабжения (А7) (окончание)
   Схема трубопроводов
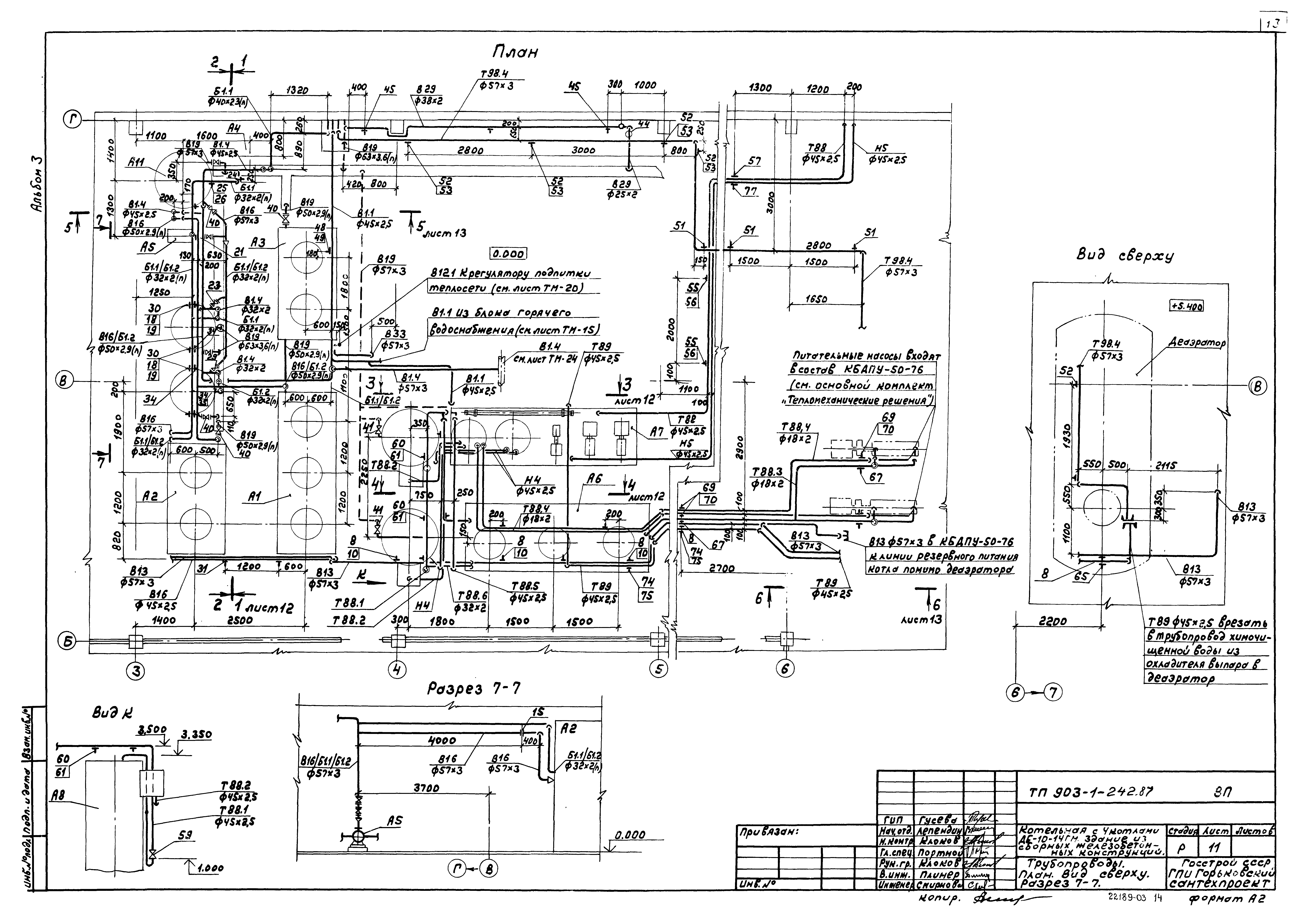
   Трубопроводы. План - вид сверху. Разрез 7-7
   Трубопроводы. Разрезы 1-1, 2-2, 3-3, 4-4
   Трубопроводы. Разрезы 5-5, 6-6. Спецификация (начало)
   Трубопроводы. Спецификация (продолжение)
   Трубопроводы. Опорные конструкции. Спецификация (окончание). Схема гидроперегрузки
   Трубопроводы бункера мокрого хранения соли. План. Разрезы 1-1, 2-2. Спецификация
Чертежи марки ГС
   Общие данные
   Аксонометрическая схема газопроводов
   Общекотельные трубопроводы газа. План. Разрезы 1-1, 2-2
   Трубопроводы газа котлоагрегата. План. Разрезы 1-1, 2-2. Спецификация
Чертежи марки МС
   Общие данные
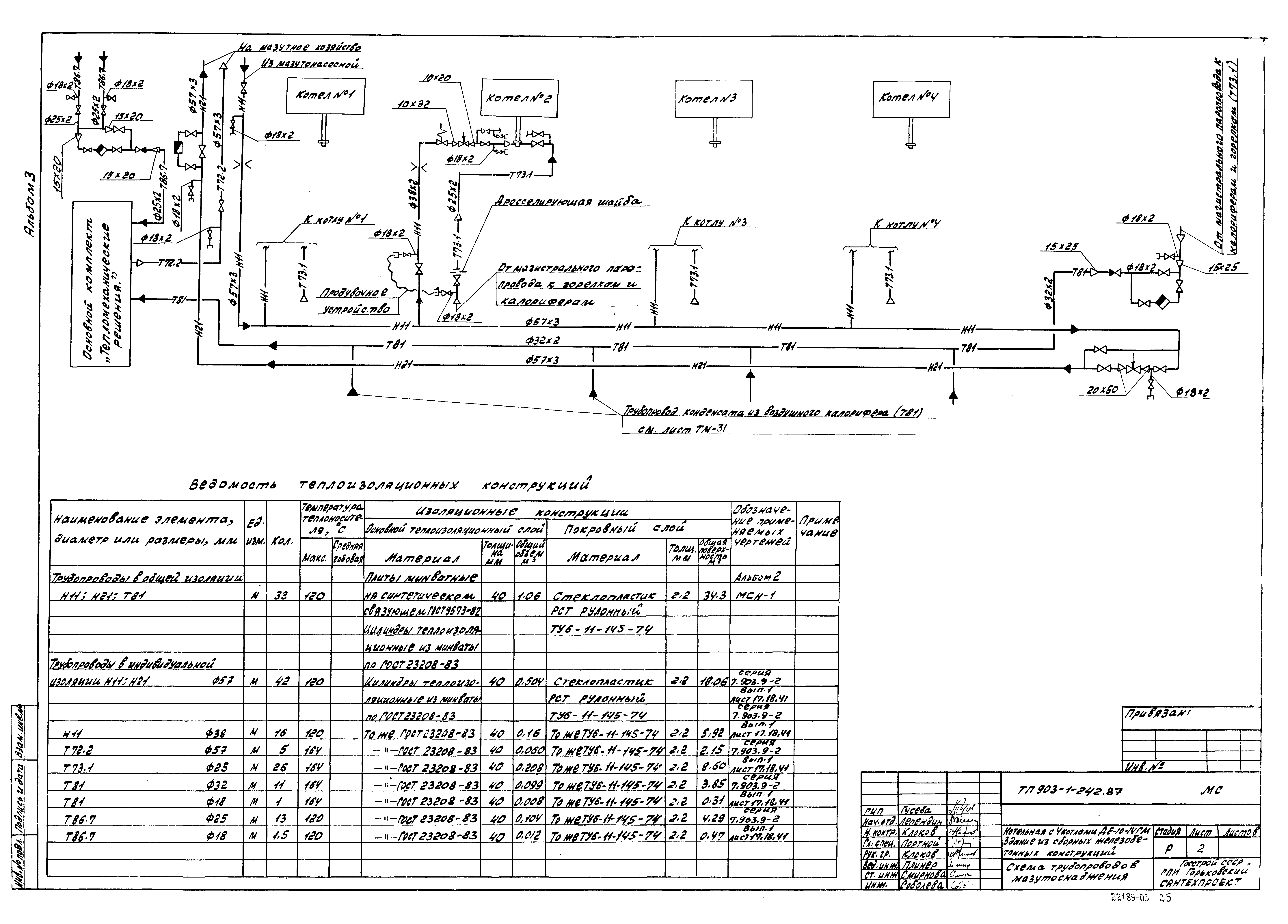
   Схема трубопроводов мазутоснабжения. Ведомость теплоизоляционных конструкций
   Трубопроводы мазутоснабжения. План. Разрезы 1-1, 2-2, 3-3, 4-4, 5-5, 6-6
   Спецификации трубопроводов мазутоснабжения
Разработан: Горьковский Сантехпроект
Утверждён:17.04.1987 Госстрой СССР (Государственный комитет Совета Министров СССР по делам строительства) (USSR Gosstroy А4-43)
Расположен в:Техническая документация Строительство Справочные документы Типовые строительные конструкции, изделия и узлы Общероссийский строительный каталог Промышленные предприятия, здания и сооружения Здания и сооружения санитарно-технические Теплоснабжение Котельные установки Закрытые системы теплоснабжения Топливо - газ, резерв - мазут
Заменяет собой:
Типовой проект 903-1-242.87Типовой проект 903-1-242.87Типовой проект 903-1-242.87Типовой проект 903-1-242.87Типовой проект 903-1-242.87Типовой проект 903-1-242.87Типовой проект 903-1-242.87Типовой проект 903-1-242.87Типовой проект 903-1-242.87Типовой проект 903-1-242.87Типовой проект 903-1-242.87Типовой проект 903-1-242.87Типовой проект 903-1-242.87Типовой проект 903-1-242.87Типовой проект 903-1-242.87Типовой проект 903-1-242.87Типовой проект 903-1-242.87Типовой проект 903-1-242.87Типовой проект 903-1-242.87Типовой проект 903-1-242.87Типовой проект 903-1-242.87Типовой проект 903-1-242.87Типовой проект 903-1-242.87Типовой проект 903-1-242.87Типовой проект 903-1-242.87Типовой проект 903-1-242.87Типовой проект 903-1-242.87

© 2013 Ёшкин Кот :-) Карта сайта