Скачать Типовой проект 903-9-25.89 Альбом 1. Технологическое оборудование. Молниезащита. Контроль и сигнализация. Тепловая изоляция защитыДата актуализации: 10.08.2017 Типовой проект 903-9-25.89
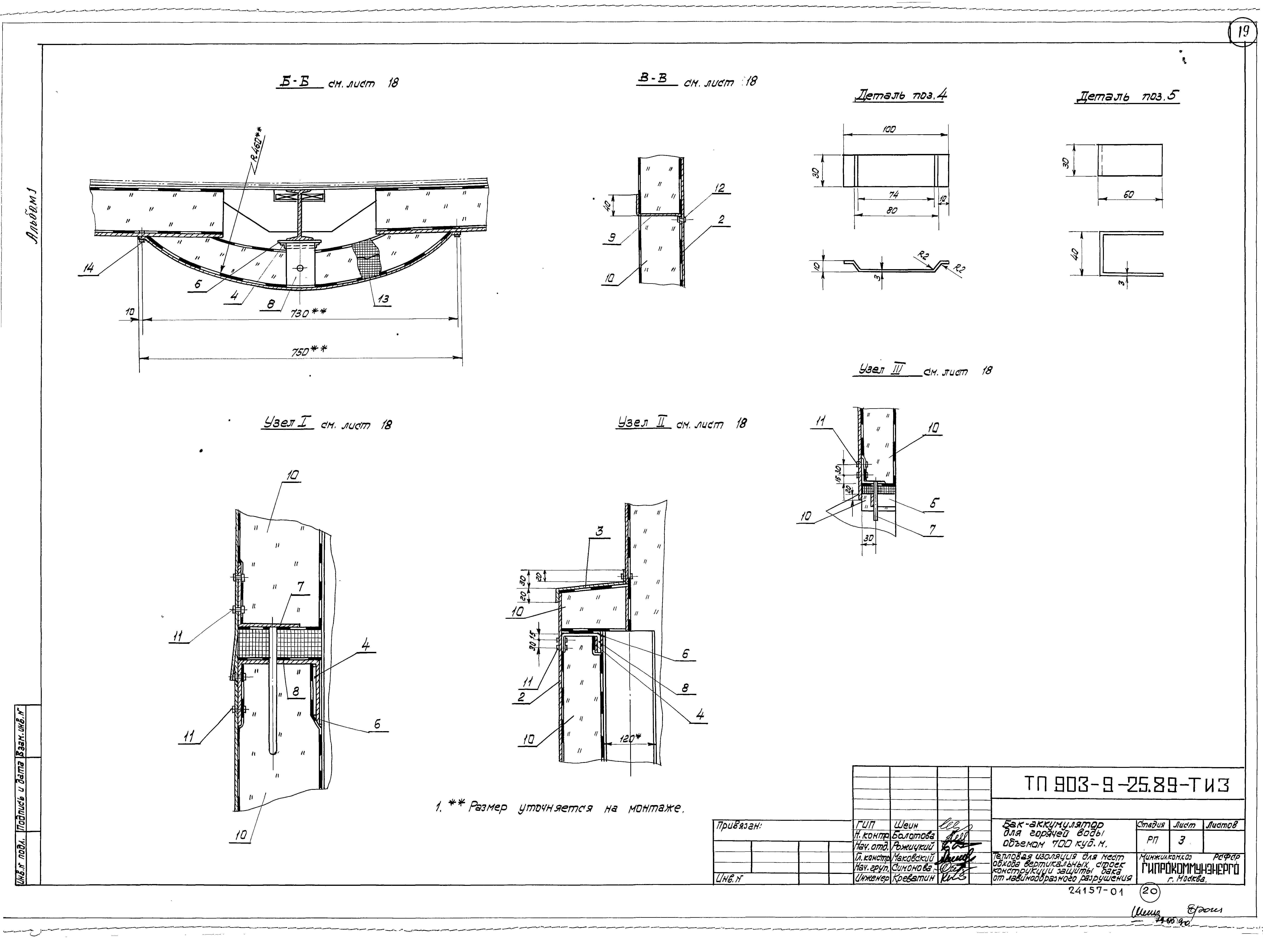
Альбом 1. Технологическое оборудование. Молниезащита. Контроль и сигнализация. Тепловая изоляция защитыОбозначение: | Типовой проект 903-9-25.89 | Обозначение англ: | 903-9-25.89 | Статус: | не действует | Название рус.: | Альбом 1. Технологическое оборудование. Молниезащита. Контроль и сигнализация. Тепловая изоляция защиты | Дата добавления в базу: | 01.09.2013 | Дата актуализации: | 05.05.2017 | Разработан: | Гипрокоммунэнерго
| Утверждён: | 21.12.1987 Министерство жилищно-коммунального хозяйства РСФСР (513)
| Расположен в: |
|
                  
|