Информационная система
«Ёшкин Кот»

Скачать базу одним архивом
Скачать обновления
История создания базы
Карта сайта

Скачать Типовой проект 902-3-7 Альбом 5. Нестандартизированное оборудование (из ТП 902-3-10)

Дата актуализации: 10.08.2017

Типовой проект 902-3-7

Альбом 5. Нестандартизированное оборудование (из ТП 902-3-10)

Обозначение: Типовой проект 902-3-7
Обозначение англ: 902-3-7
Статус:не определен законодательством
Название рус.:Альбом 5. Нестандартизированное оборудование (из ТП 902-3-10)
Дата добавления в базу:01.09.2013
Дата актуализации:05.05.2017
Дата введения:01.01.1981
Оглавление:Тутульный лист
Содержание альбома
907.00.00.000 ВО Установка аэратора механического плавающего. Чертеж общего вида
907.01.00.000 ВО Аэратор механический плавающий. Чертеж общего вида. Лист 1
907.01.01.000 ВО Рама. Чертеж общего вида
907.01.02.000 ВО Пантон. Чертеж общего вида
907.01.03.000 ВО Привод аэратора. Чертеж общего вида. Лист 1
907.01.03.000 ВО Привод аэратора. Чертеж общего вида. Лист 2
907.01.04.000 ВО Ротор аэратора. Чертеж общего вида.
907.00.00.000 ТП Установка аэратора механического плавающего. Ведомость технического проекта
907.01.00.000 ВО Аэратор механический плавающий. Чертеж общего вида. Лист 2
907.01.00.000 ТП Аэратор механический плавающий. Ведомость технического проекта. Лист 1
907.01.00.000 ТП Аэратор механический плавающий. Ведомость технического проекта. Лист 2
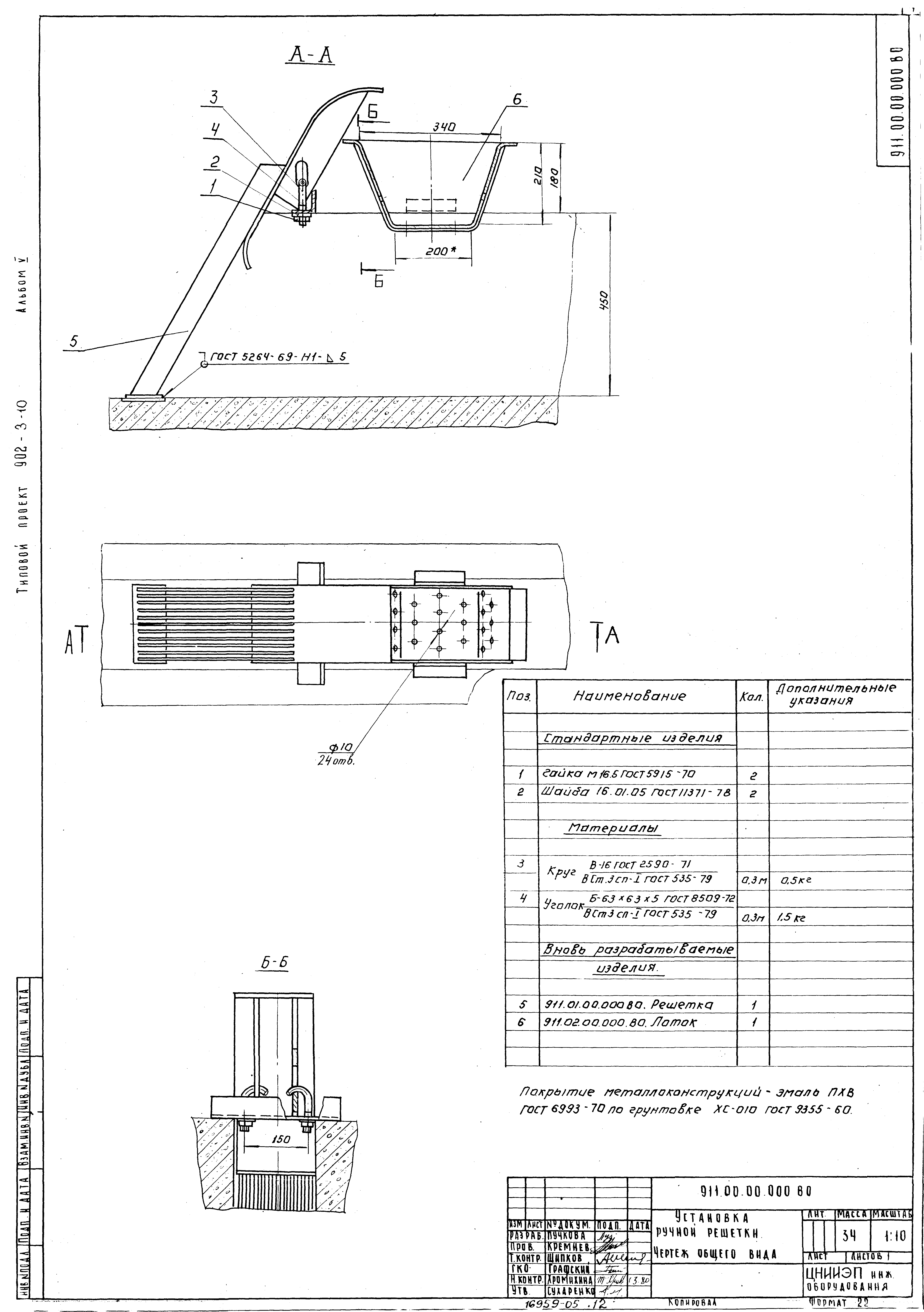
911.00.00.000 ВО Установка ручной решетки. Чертеж общего вида
911.01.00.000 ВО Решетка. Чертеж общего вида
Разработан: ЦНИИЭП иженерного оборудования
Утверждён:11.03.1980 Госгражданстрой (Gosgrazhdanstroy 75)
Расположен в:Техническая документация Строительство Справочные документы Типовые строительные конструкции, изделия и узлы Общероссийский строительный каталог Промышленные предприятия, здания и сооружения Здания и сооружения санитарно-технические Канализация Сооружения биологической (биохимической) очистки Аэротенки, аэрируемые биопруды, аэроакселаторы
Типовой проект 902-3-7Типовой проект 902-3-7Типовой проект 902-3-7Типовой проект 902-3-7Типовой проект 902-3-7Типовой проект 902-3-7Типовой проект 902-3-7Типовой проект 902-3-7Типовой проект 902-3-7Типовой проект 902-3-7Типовой проект 902-3-7Типовой проект 902-3-7Типовой проект 902-3-7Типовой проект 902-3-7

© 2013 Ёшкин Кот :-) Карта сайта