Скачать Типовой проект 904-1-74.87 Альбом 3. Силовое электрооборудование, электрическое освещение, связь и сигнализацияДата актуализации: 10.08.2017 Типовой проект 904-1-74.87
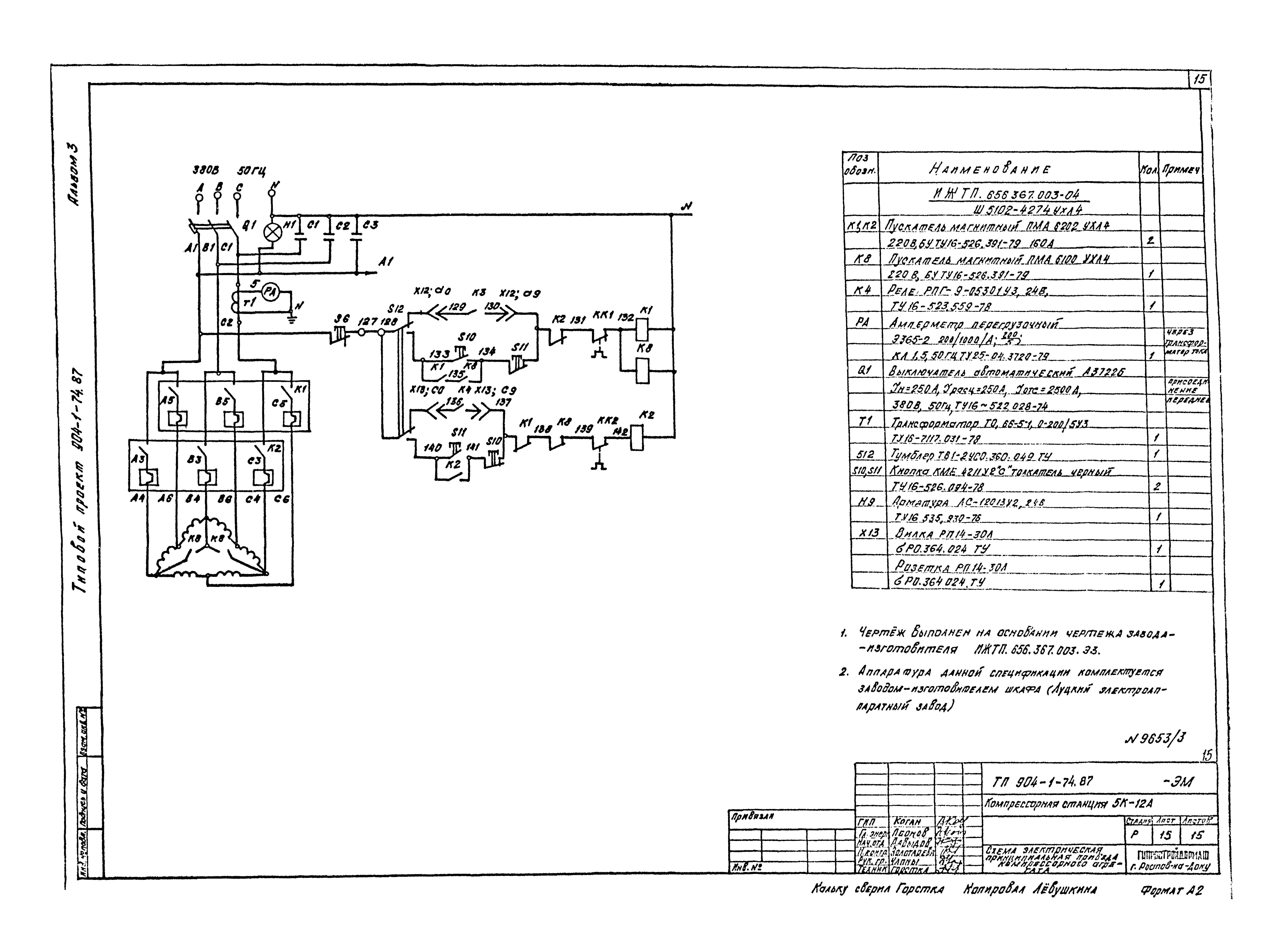
Альбом 3. Силовое электрооборудование, электрическое освещение, связь и сигнализацияОбозначение: | Типовой проект 904-1-74.87 | Обозначение англ: | 904-1-74.87 | Статус: | не определен законодательством | Название рус.: | Альбом 3. Силовое электрооборудование, электрическое освещение, связь и сигнализация | Дата добавления в базу: | 01.09.2013 | Дата актуализации: | 05.05.2017 | Дата введения: | 01.10.1987 | Оглавление: | Содержание альбома Силовое электрооборудование Общие данные Таблица технических данных электроприемников Схема электрическая подключения компрессорного агрегата Комплектная трансформаторная подстанция КТПН-1, 2. Принципиальная однолинейная схема Шкафы распределительные ШР-1, ШР-2. Расчетная схема КТПН-1, 2. Установка КТПН-1, 2. Прокладка кабелей Кабельный журнал Прокладка кабелей на отм. 0,000. План Прокладка кабелей на отм. -3,000. План и разрезы Заземление Схема электрическая принципиальная привода компрессорного агрегата Электроосвещение Общие данные План на отм. 0,000; -3,050. Схема расчетная принципиальная Связь и сигнализация Общие данные План расположения сети Схемы расположения сети Схемы расположения сети пожарной сигнализации | Разработан: | Гипростройдормаш
| Утверждён: | 20.05.1987 Минстройдормаш (Minstroydormash 307)
| Расположен в: |
|
                    
|