Информационная система
«Ёшкин Кот»

Скачать базу одним архивом
Скачать обновления
История создания базы
Карта сайта

Скачать Типовой проект 407-3-633.92 Альбом 1. Пояснительная записка. Электротехническая часть. Конструкции строительные

Дата актуализации: 10.08.2017

Типовой проект 407-3-633.92

Альбом 1. Пояснительная записка. Электротехническая часть. Конструкции строительные

Обозначение: Типовой проект 407-3-633.92
Обозначение англ: 407-3-633.92
Статус:не определен законодательством
Название рус.:Альбом 1. Пояснительная записка. Электротехническая часть. Конструкции строительные
Дата добавления в базу:01.09.2013
Дата актуализации:05.05.2017
Дата введения:03.07.1992
Оглавление:Содержание альбома
Пояснительная записка
Электротехническая часть
   Общие данные
   РУ 10 кВ. Схема главных цепей
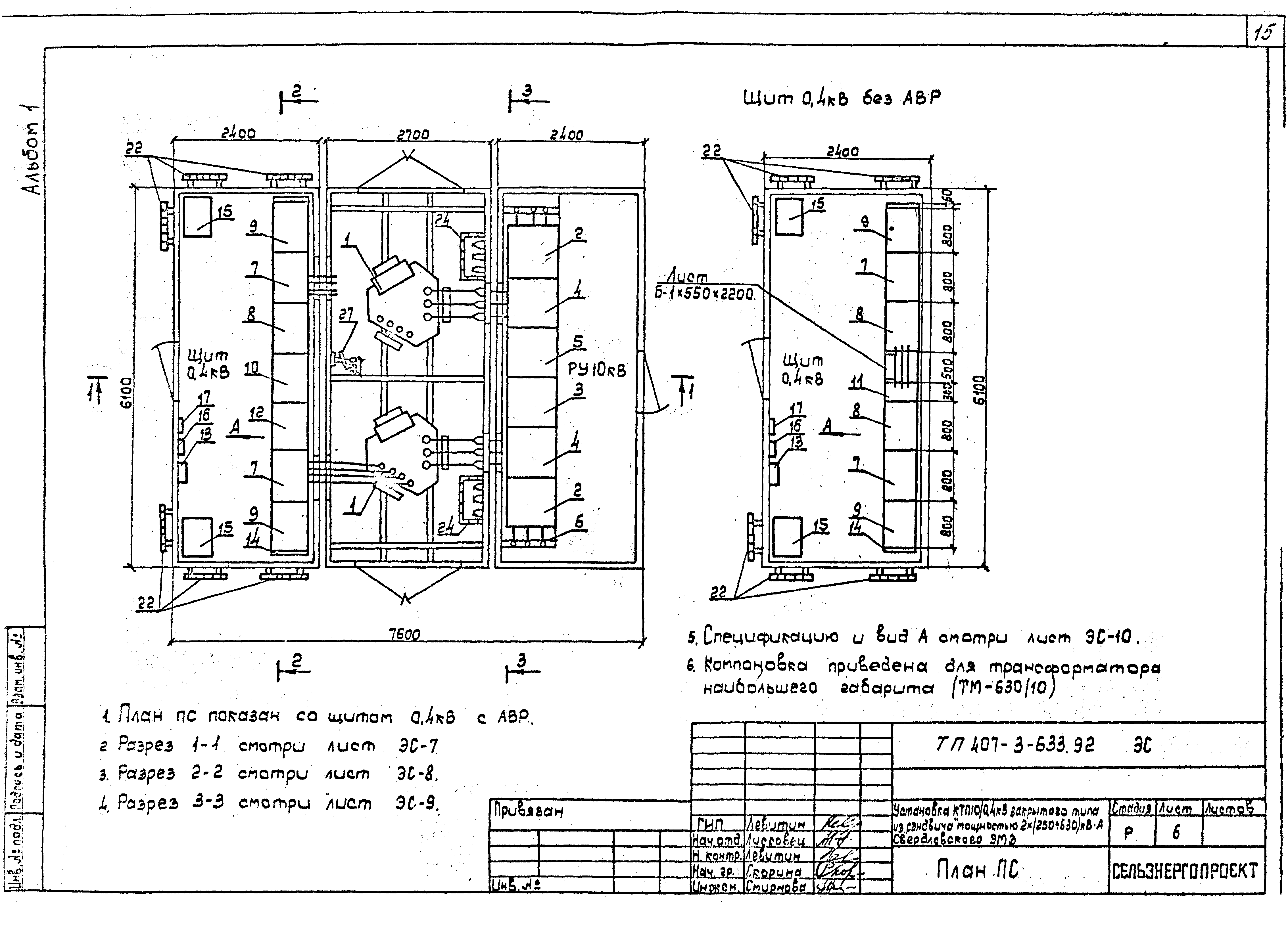
   Щит 0,4 кВ. Схема главных цепей (вариант без АВР)
   Щит 0,4 кВ. Схема главных цепей (вариант с АВР)
   План ПС
   Разрез 1-1 ПС
   Разрез 2-2 ПС
   Разрез 3-3 ПС
   Спецификация. Вид А
   Внутренний контур заземления ПС
   Наружный контур заземления ПС
   Присоединение ВЛ 10 и 0,4 кВ к подстанции с воздушными вводами
   Узел А. Уел Б
   Присоединение шин 10 и 0,4 кВ к выводам трансформатора
   Установка КТПБ на фундамент
   Конструкция с зеркалом
   Ряды зажимов панелей ЩО70 для схемы с АВР
   Кабельный журнал
   План раскладки кабелей
Конструкции строительные
   Общие данные
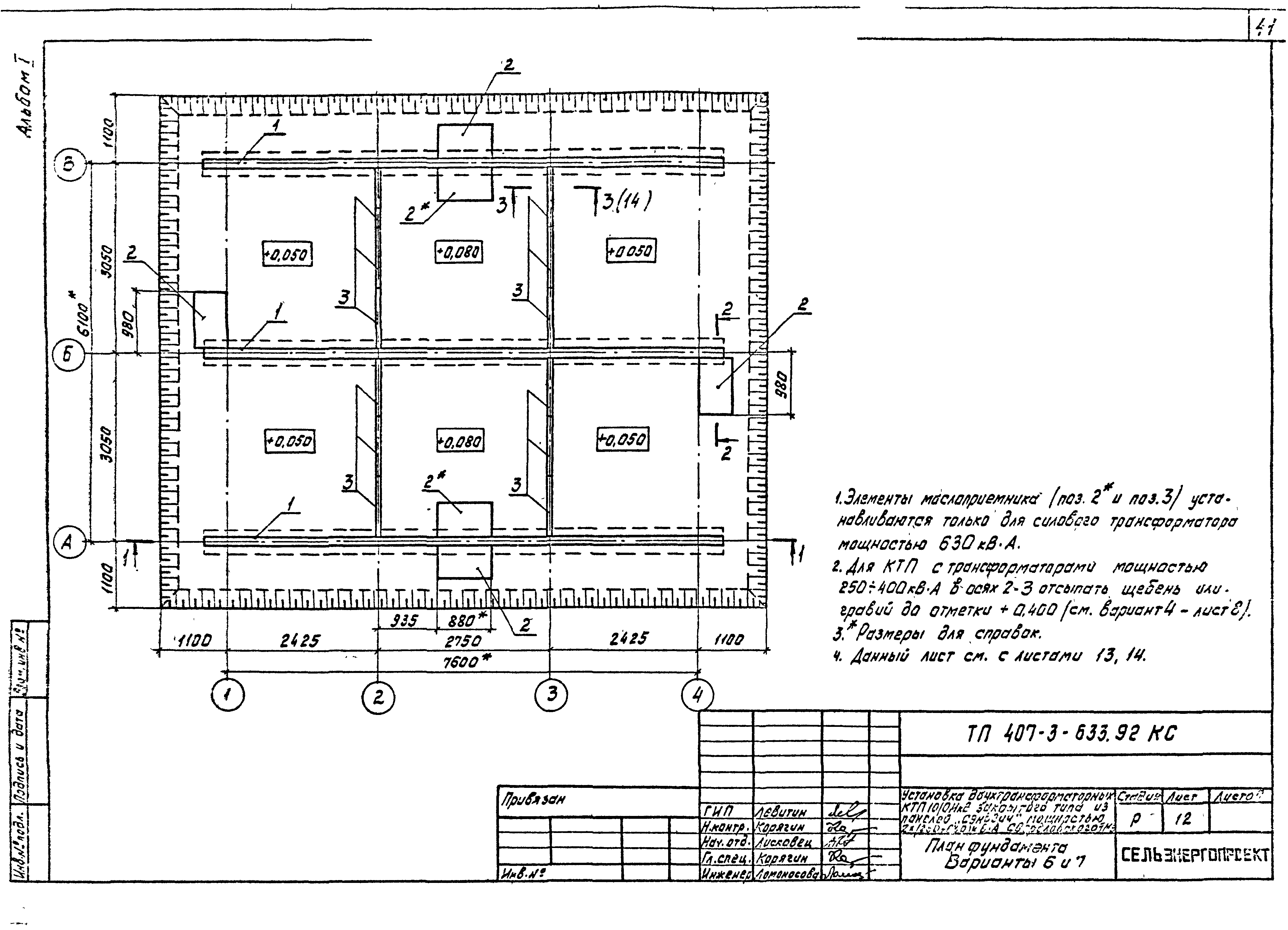
   План фундамента. Вариант 1
   Разрезы 1-1, 2-2. Спецификация. Вариант 1
   План фундамента. Вариант 2
   Разрезы 1-1, 2-2. Спецификация. Вариант 2
   План фундамента. Вариант 3
   Разрезы 1-1, 2-2. Спецификация. Вариант 3
   План фундамента. Вариант 4
   Разрезы 1-1, 2-2. Спецификация. Вариант 4
   План фундамента. Вариант 5
   Разрезы 1-1. Уел 1. Спецификация. Вариант 5
   План фундамента. Вариант 6 и 7
   Разрезы 1-1, 2-2. Спецификация. Вариант 6 и 7
   Узел 1. Разрез 3-3. Вариант 6 и 7
   План фундамента. Вариант 8
   Разрез 1-1. Спецификация. Вариант 8
   План фундамента. Вариант 9
   Разрезы 1-1, 2-2. Вариант 9
   Узел 1. Спецификация. Вариант 9
   Ведомости потребности в материалах
Разработан: Сельэнергопроект Минэнерго СССР
Утверждён:03.07.1992 Сельэнергопроект (21-П)
Расположен в:Техническая документация Строительство Справочные документы Типовые строительные конструкции, изделия и узлы Общероссийский строительный каталог Промышленные предприятия, здания и сооружения Предприятия, здания и сооружения промышленности и электроэнергетики Электроэнергетика Устройства и подстанции распределительные
Типовой проект 407-3-633.92Типовой проект 407-3-633.92Типовой проект 407-3-633.92Типовой проект 407-3-633.92Типовой проект 407-3-633.92Типовой проект 407-3-633.92Типовой проект 407-3-633.92Типовой проект 407-3-633.92Типовой проект 407-3-633.92Типовой проект 407-3-633.92Типовой проект 407-3-633.92Типовой проект 407-3-633.92Типовой проект 407-3-633.92Типовой проект 407-3-633.92Типовой проект 407-3-633.92Типовой проект 407-3-633.92Типовой проект 407-3-633.92Типовой проект 407-3-633.92Типовой проект 407-3-633.92Типовой проект 407-3-633.92Типовой проект 407-3-633.92Типовой проект 407-3-633.92Типовой проект 407-3-633.92Типовой проект 407-3-633.92Типовой проект 407-3-633.92Типовой проект 407-3-633.92Типовой проект 407-3-633.92Типовой проект 407-3-633.92Типовой проект 407-3-633.92Типовой проект 407-3-633.92Типовой проект 407-3-633.92Типовой проект 407-3-633.92Типовой проект 407-3-633.92Типовой проект 407-3-633.92Типовой проект 407-3-633.92Типовой проект 407-3-633.92Типовой проект 407-3-633.92Типовой проект 407-3-633.92Типовой проект 407-3-633.92Типовой проект 407-3-633.92Типовой проект 407-3-633.92Типовой проект 407-3-633.92Типовой проект 407-3-633.92Типовой проект 407-3-633.92Типовой проект 407-3-633.92Типовой проект 407-3-633.92Типовой проект 407-3-633.92Типовой проект 407-3-633.92Типовой проект 407-3-633.92Типовой проект 407-3-633.92Типовой проект 407-3-633.92Типовой проект 407-3-633.92Типовой проект 407-3-633.92Типовой проект 407-3-633.92

© 2013 Ёшкин Кот :-) Карта сайта