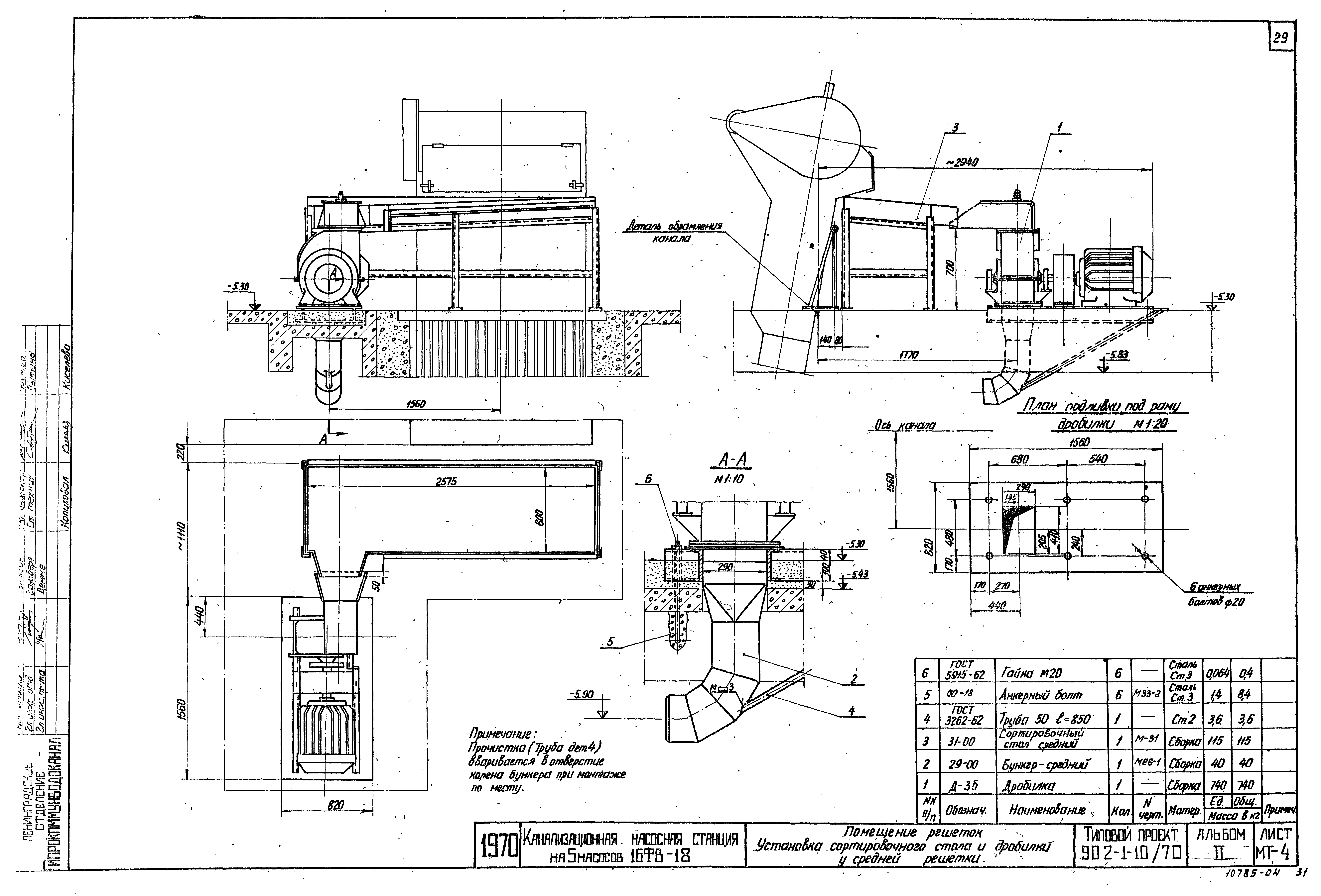
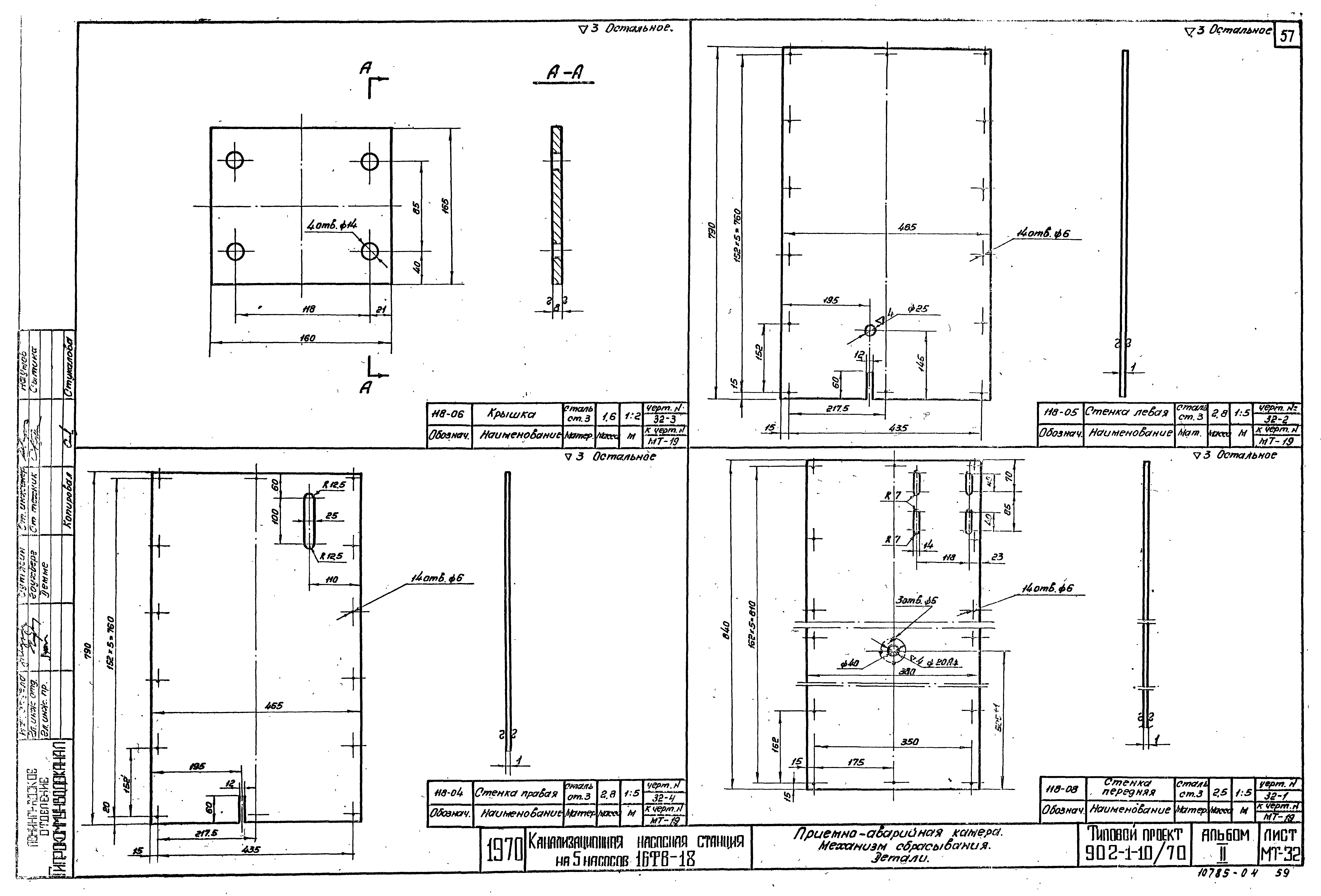
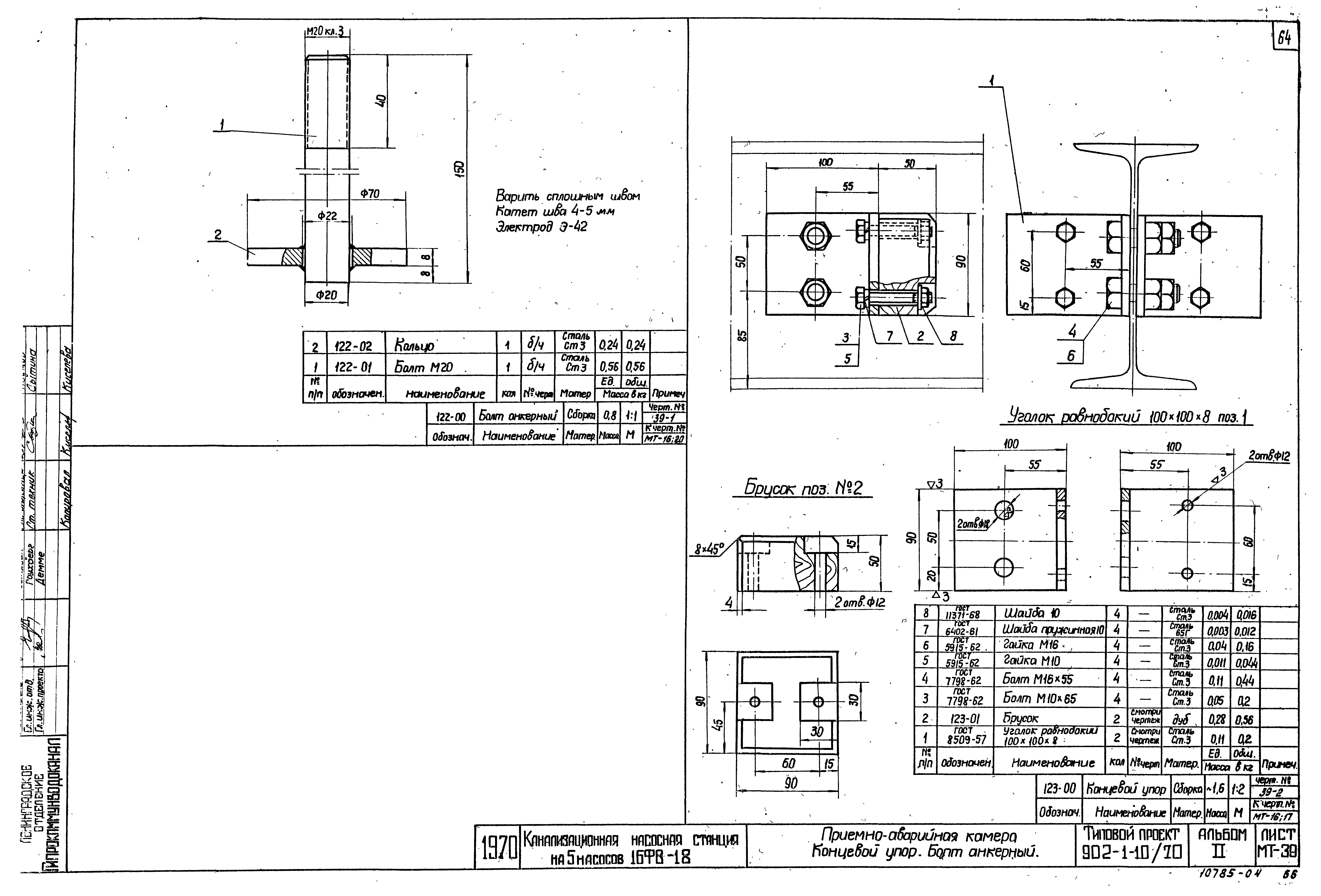
Скачать Типовой проект 902-1-10/70 Альбом II. Технологическое, механическое и сантехническое оборудованиеДата актуализации: 10.08.2017 Типовой проект 902-1-10/70
Альбом II. Технологическое, механическое и сантехническое оборудованиеОбозначение: | Типовой проект 902-1-10/70 | Обозначение англ: | 902-1-10/70 | Статус: | не действует | Название рус.: | Альбом II. Технологическое, механическое и сантехническое оборудование | Дата добавления в базу: | 01.09.2013 | Дата актуализации: | 05.05.2017 | Дата окончания срока действия: | 01.01.1986 | Разработан: | Ленинградское отделение института Гипрокоммунводоканал
| Утверждён: | 21.05.1971 Министерство коммунального хозяйства РСФСР (4тд)
| Расположен в: |
| Чем заменён: | |
                                                                                                  
|