Информационная система
«Ёшкин Кот»

Скачать базу одним архивом
Скачать обновления
История создания базы
Карта сайта

Скачать Типовой проект 902-1-136.88 Альбом 2. Технология производства. Внутренний водопровод и канализация. Отопление и вентиляция

Дата актуализации: 10.08.2017

Типовой проект 902-1-136.88

Альбом 2. Технология производства. Внутренний водопровод и канализация. Отопление и вентиляция

Обозначение: Типовой проект 902-1-136.88
Обозначение англ: 902-1-136.88
Статус:не определен законодательством
Название рус.:Альбом 2. Технология производства. Внутренний водопровод и канализация. Отопление и вентиляция
Дата добавления в базу:01.09.2013
Дата актуализации:05.05.2017
Дата введения:19.07.1988
Оглавление:Технология производства ТХ
   Общие данные
   План подземной части (сборный вариант). План подземной части (монолитный вариант)
   Разрез 1-1. Разрез 2-2
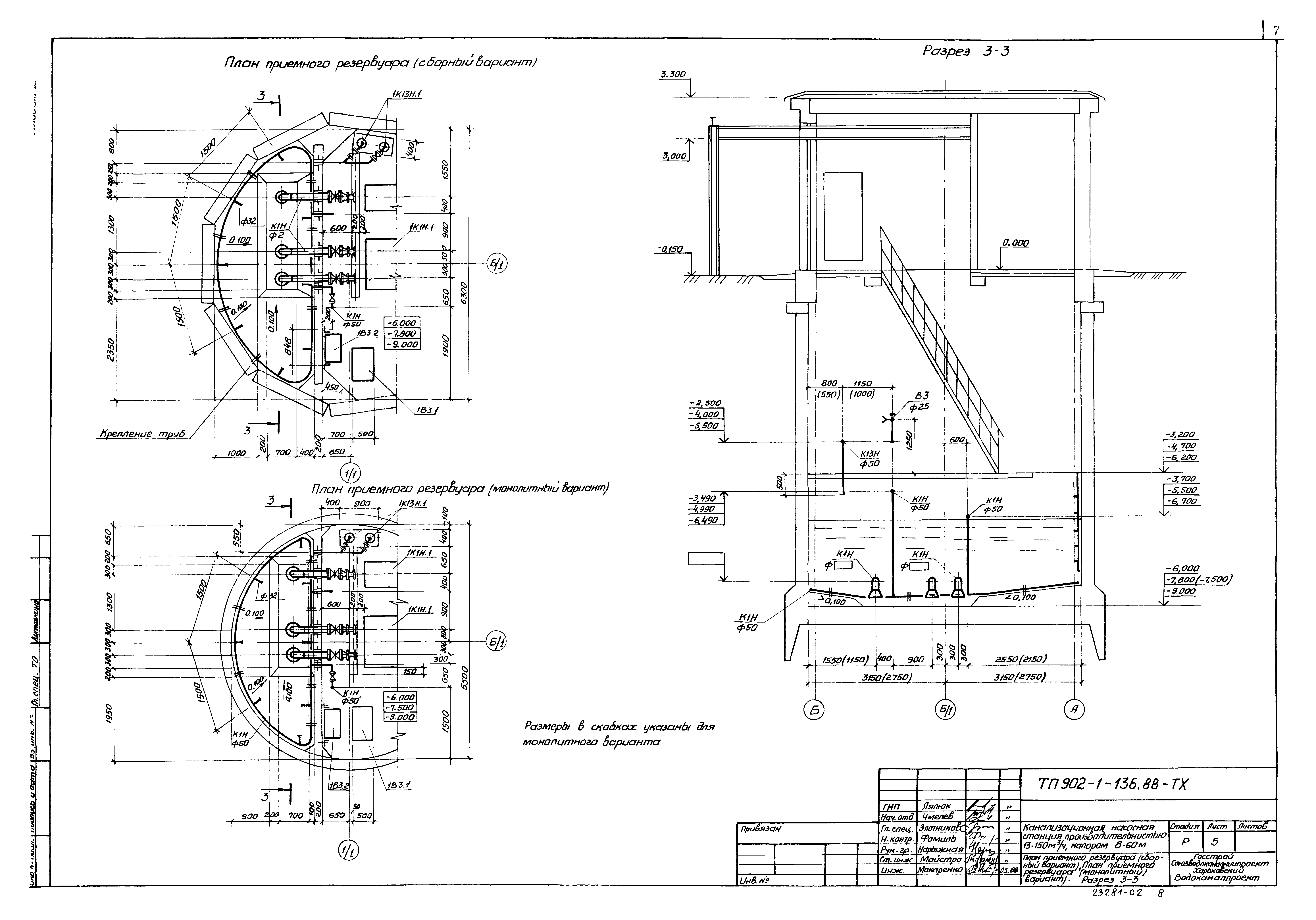
   План приемного резервуара (сборный вариант). План приемного резервуара (монолитный вариант). Разрез 3-3
   Схемы системы 1К1Н
   План машинного зала с системой ВЗ. Схемы систем 1ВЗ, 1К13, 1К13Н
Внутренний водопровод и канализация ВК
   Общие данные. План на отм. 0.000. Схемы систем В1,К1
Отопление и вентиляция ОВ
   Общие данные
   План на отм. 0.000 и подземной части. Разрез 1-1
   Схемы систем отопления, теплоснабжения установки П1, узла управления, систем П1, П2, В1, В2, В3, ВЕ1
   Установка систем П1,П2
   Установка систем В1,В2
Разработан: Харьковский Водоканалпроект
Утверждён:19.07.1988 Госстрой СССР (Государственный комитет Совета Министров СССР по делам строительства) (USSR Gosstroy 46)
Расположен в:Техническая документация Строительство Справочные документы Типовые строительные конструкции, изделия и узлы Общероссийский строительный каталог Промышленные предприятия, здания и сооружения Здания и сооружения санитарно-технические Канализация Станции насосные Станции насосные для перекачки бытовых сточных вод
Заменяет собой:
Типовой проект 902-1-136.88Типовой проект 902-1-136.88Типовой проект 902-1-136.88Типовой проект 902-1-136.88Типовой проект 902-1-136.88Типовой проект 902-1-136.88Типовой проект 902-1-136.88Типовой проект 902-1-136.88Типовой проект 902-1-136.88Типовой проект 902-1-136.88Типовой проект 902-1-136.88Типовой проект 902-1-136.88Типовой проект 902-1-136.88Типовой проект 902-1-136.88Типовой проект 902-1-136.88Типовой проект 902-1-136.88Типовой проект 902-1-136.88

© 2013 Ёшкин Кот :-) Карта сайта