Скачать Типовой проект 902-9-33.85 Альбом 2. Технологическая, строительная частиДата актуализации: 10.08.2017 Типовой проект 902-9-33.85
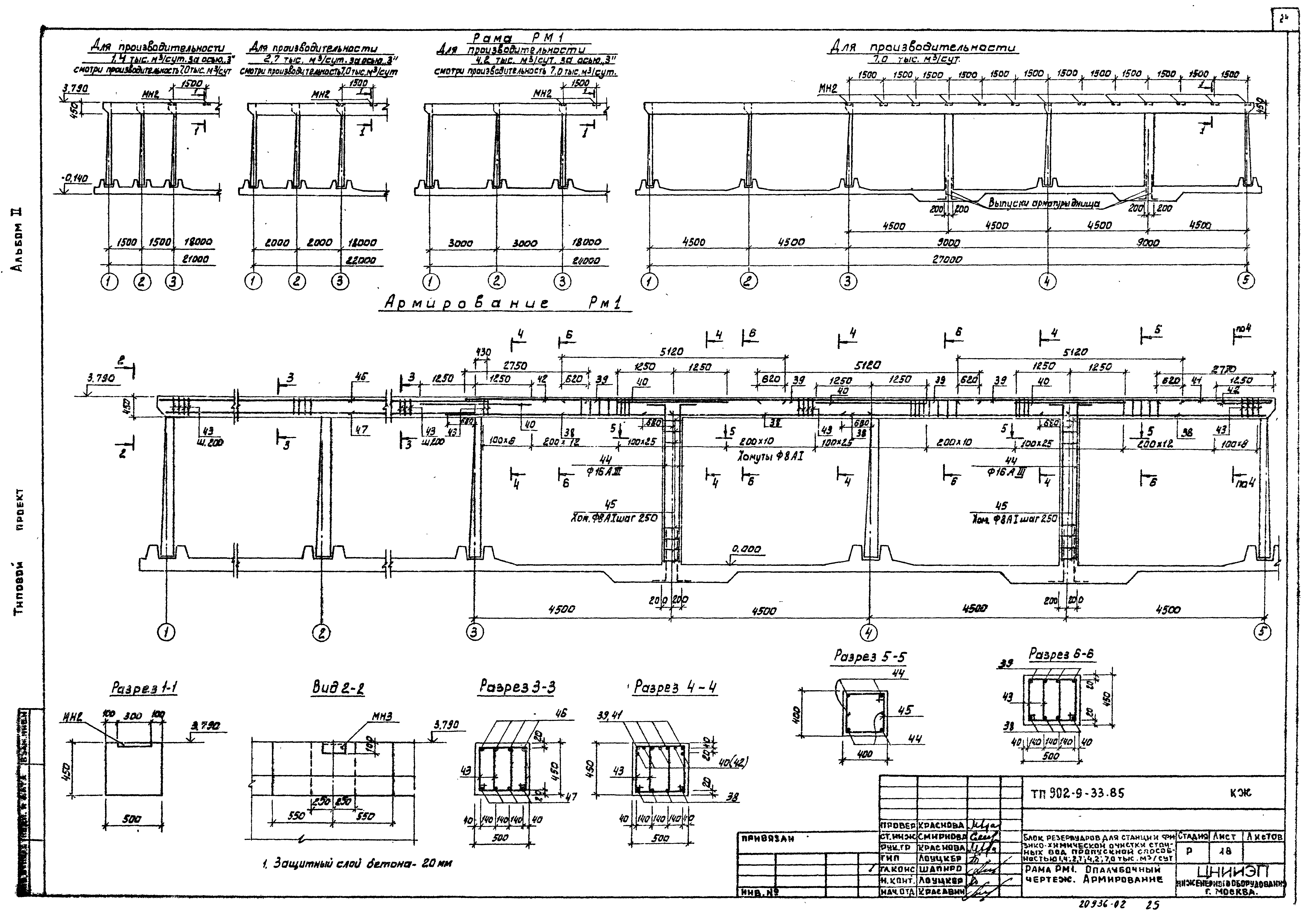
Альбом 2. Технологическая, строительная частиОбозначение: | Типовой проект 902-9-33.85 | Обозначение англ: | 902-9-33.85 | Статус: | не определен законодательством | Название рус.: | Альбом 2. Технологическая, строительная части | Дата добавления в базу: | 01.09.2013 | Дата актуализации: | 05.05.2017 | Дата введения: | 01.03.1986 | Оглавление: | Технологическая часть Общие данные План. Разрезы 1-1, 2-2, 3-3, 4-4. Таблица Спецификация оборудования для станций пропускной способностью 1,4; 2,7 тыс куб. м/сутки Спецификация оборудования для станций пропускной способностью 4,2; 7,0 тыс куб. м/сутки Строительная часть Общие данные Схема арсположения стеновых панелей. Разрез 1-1 Схема расположения плит покрытия и лотков. Вид 2-2 Разрезы 3-3…8-8 Спецификация к схемам расположения стеновых панелей, плит покрытия и лотков Узлы к схеме расположения плит покрытия. Щит 5 Узлы 7…9. Деталь крепления струенаправляющих щитков Днище. Опалубочный чертеж. Разрезы 1-1, 2-2 Днище. Опалубочный чертеж. Разрез 3-3. Узлы Днище. Армирование. Схема расположения нижних сеток. Разрез 1-1 Днище. Армирование. Схема расположения верхних сеток. Разрез 2-2…4-4 Днище. Армирование. Разрезы 5-5…8-8. Узлы Днище. Армирование. Спецификация к схемам расположения арматурных изделий Монолитные участки стен. Опалубочный чертеж Монолитные участки стен. Ум1, Ум2. Армирование Монолитные участки стен. Ум3... Ум8. Армирование Монолитные участки стен. Ум9... Ум22. Армирование Рама Рм1. Опалубочный чертеж. Армирование Спецификация элементов монолитных участков стен Монолитные участки стен. Ведомость расхода стали на элемент | Разработан: | ЦНИИЭП инженерного оборудования
| Утверждён: | 21.08.1985 Госгражданстрой (Gosgrazhdanstroy 252)
| Расположен в: |
|
                          
|