Скачать Типовой проект 902-9-11 Альбом 2. Технологическая, санитарно-техническая, архитектурно-строительная частиДата актуализации: 10.08.2017 Типовой проект 902-9-11
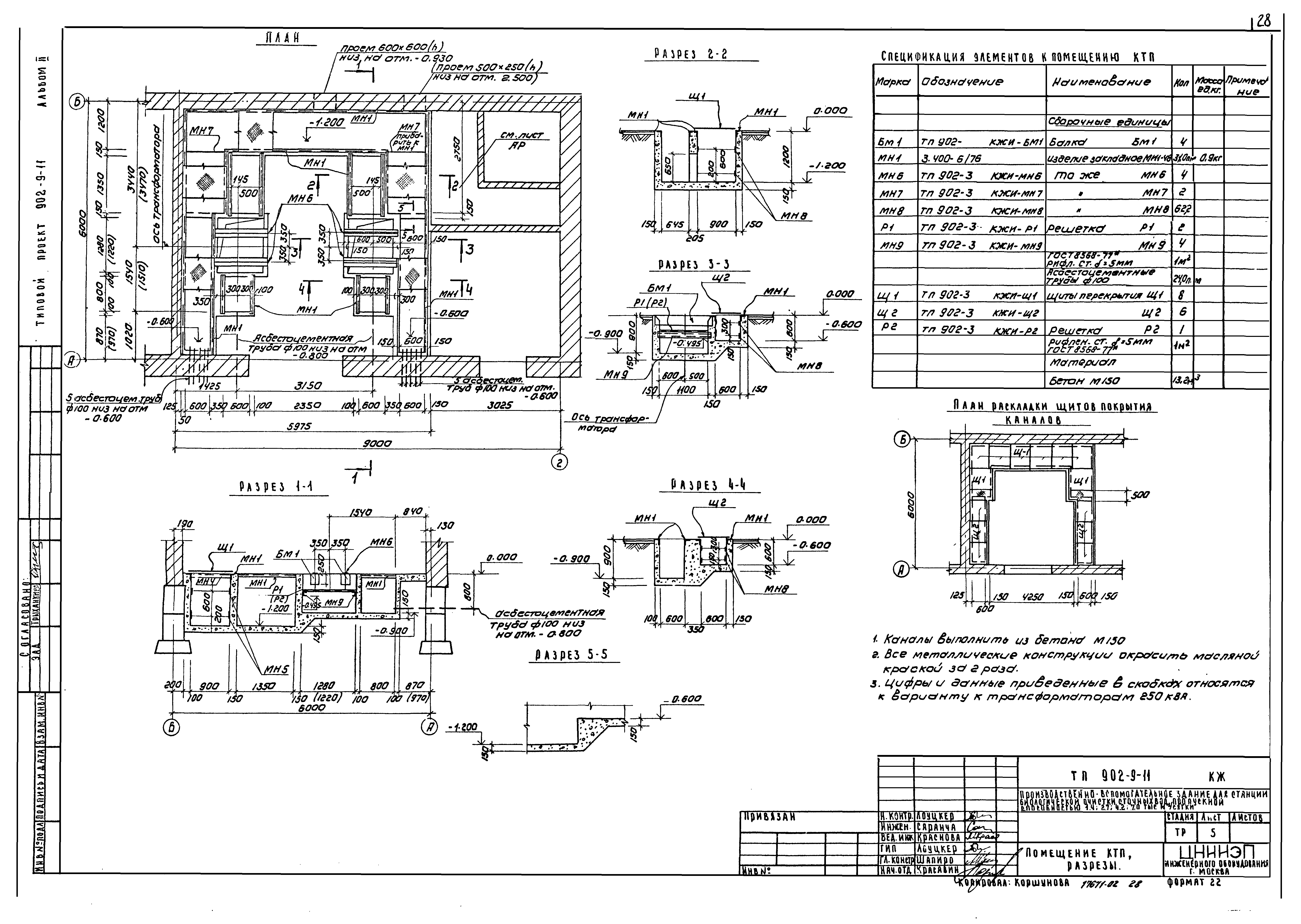
Альбом 2. Технологическая, санитарно-техническая, архитектурно-строительная частиОбозначение: | Типовой проект 902-9-11 | Обозначение англ: | 902-9-11 | Статус: | не определен законодательством | Название рус.: | Альбом 2. Технологическая, санитарно-техническая, архитектурно-строительная части | Дата добавления в базу: | 01.09.2013 | Дата актуализации: | 05.05.2017 | Дата введения: | 08.07.1981 | Оглавление: | Содержание альбома Технологическая часть Общие данные Планы на отметках 0.000 и - 3.600 Насосное отделение. План на отм. - 3.600 Насосное отделение. Разрезы Насосное отделение. Схема трубопроводов Газодувная. План на отм. 0.000. Разрезы Газодувная. Схема трубопроводов Воздуходувная. План на отм. 0.000. Разрезы Воздуходувная. Схема трубопроводов Спецификация Отопление и вентиляция Общие данные План на отметках 0.000 и - 3.600. Схема отопления. Схема системы вентиляции В1 Вытяжная венткамера, камера фильтров на отм. 0.000. Планы. Разрезы 1-1, 2-2 Спецификация Архитектурные решения Общие данные Планы на отм. 0.000 и - 3.600. Разрезы 1-1, 2-2. Фасады 1-2, 2-1 и А-В Фрагменты 1, 2, 3 Конструкции железобетонные Общие данные Схема расположения фундаментов. Разрезы 1-1…10-10 Схема расположения подпольных каналов и фундаментов под оборудование Схема расположения плит покрытий и перекрытий Помещение КТП, разрезы Схемы расположения подвесных путей | Разработан: | ЦНИИЭП иженерного оборудования
| Утверждён: | 20.02.1981 Госгражданстрой (Gosgrazhdanstroy 59)
| Расположен в: |
|
                            
|