Информационная система
«Ёшкин Кот»

Скачать базу одним архивом
Скачать обновления
История создания базы
Карта сайта

Скачать Типовой проект 903-9-26.89 Альбом 4. Основания и фундаменты

Дата актуализации: 10.08.2017

Типовой проект 903-9-26.89

Альбом 4. Основания и фундаменты

Обозначение: Типовой проект 903-9-26.89
Обозначение англ: 903-9-26.89
Статус:не действует
Название рус.:Альбом 4. Основания и фундаменты
Дата добавления в базу:01.09.2013
Дата актуализации:05.05.2017
Дата введения:01.04.2003
Оглавление:Содержание альбома
Общие данные
Схема расположения фундаментов. Разрез 1-1
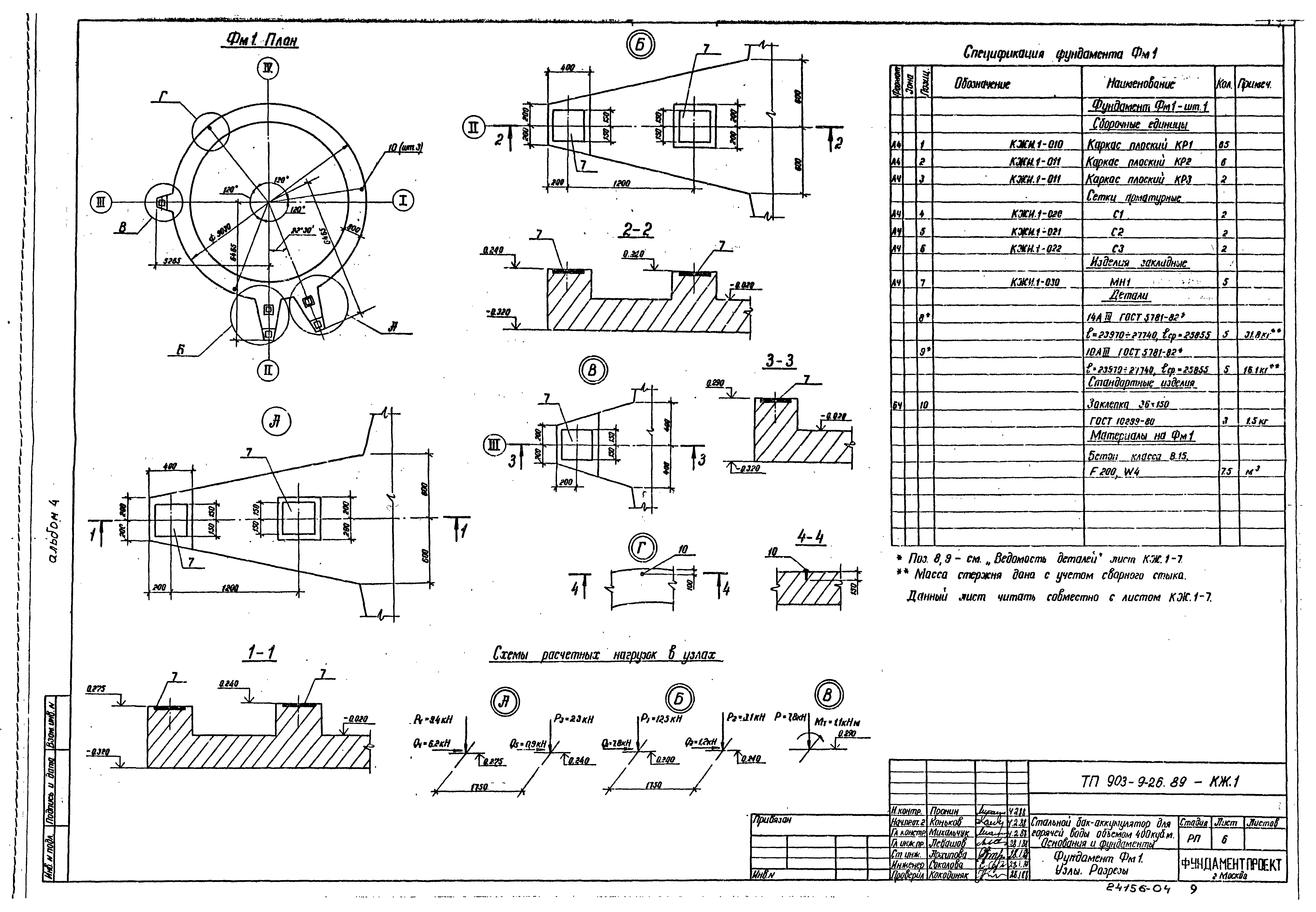
Фундамент Фм1. Узлы. Разрезы
Фм1. Схема армирования
Фундамент Фм2
КЖИ.1-010 Каркас плоский КР1
КЖИ.1-011 Каркас плоский КР2, КР3
КЖИ.1-012 Каркас пространственный КП1
КЖИ.1-030 Закладная деталь МН1
КЖИ.1-020 Сетка арматурная С1
КЖИ.1-021 Сетка арматурная С2
КЖИ.1-012 Сетка арматурная С3
Фундамент Фм1. Общие данные
Разработан: Фундаментпроект
Гипрокоммунэнерго
Утверждён:18.07.1988 Министерство жилищно-коммунального хозяйства РСФСР (201)
Издан: ЦИТП Госстроя СССР (CITP, Gosstroy (USSR) 1990 г. )
Расположен в:Техническая документация Строительство Справочные документы Типовые строительные конструкции, изделия и узлы Общероссийский строительный каталог Промышленные предприятия, здания и сооружения Здания и сооружения санитарно-технические Теплоснабжение Здания и сооружения разные
Типовой проект 903-9-26.89Типовой проект 903-9-26.89Типовой проект 903-9-26.89Типовой проект 903-9-26.89Типовой проект 903-9-26.89Типовой проект 903-9-26.89Типовой проект 903-9-26.89Типовой проект 903-9-26.89Типовой проект 903-9-26.89Типовой проект 903-9-26.89Типовой проект 903-9-26.89Типовой проект 903-9-26.89Типовой проект 903-9-26.89Типовой проект 903-9-26.89

© 2013 Ёшкин Кот :-) Карта сайта