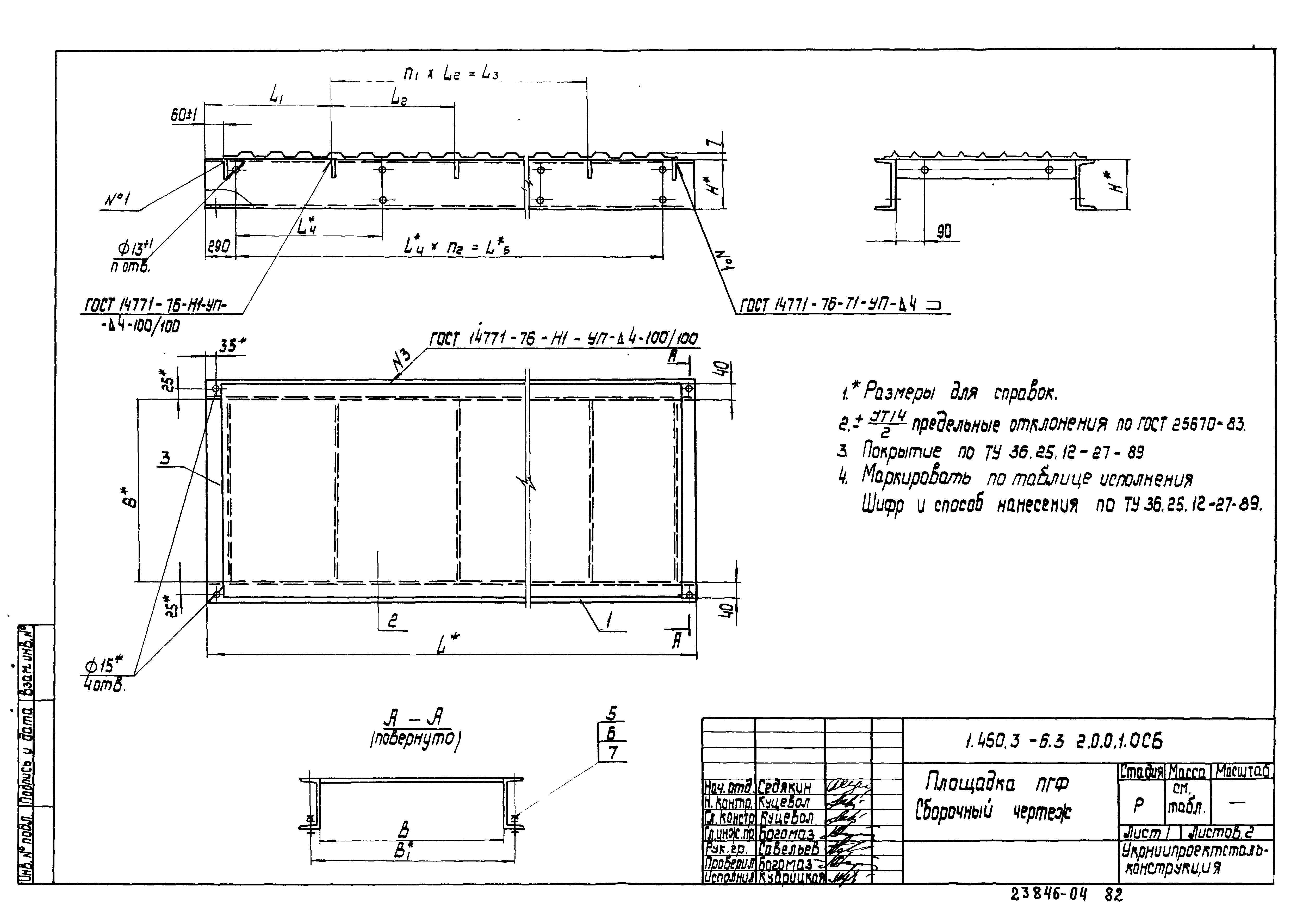
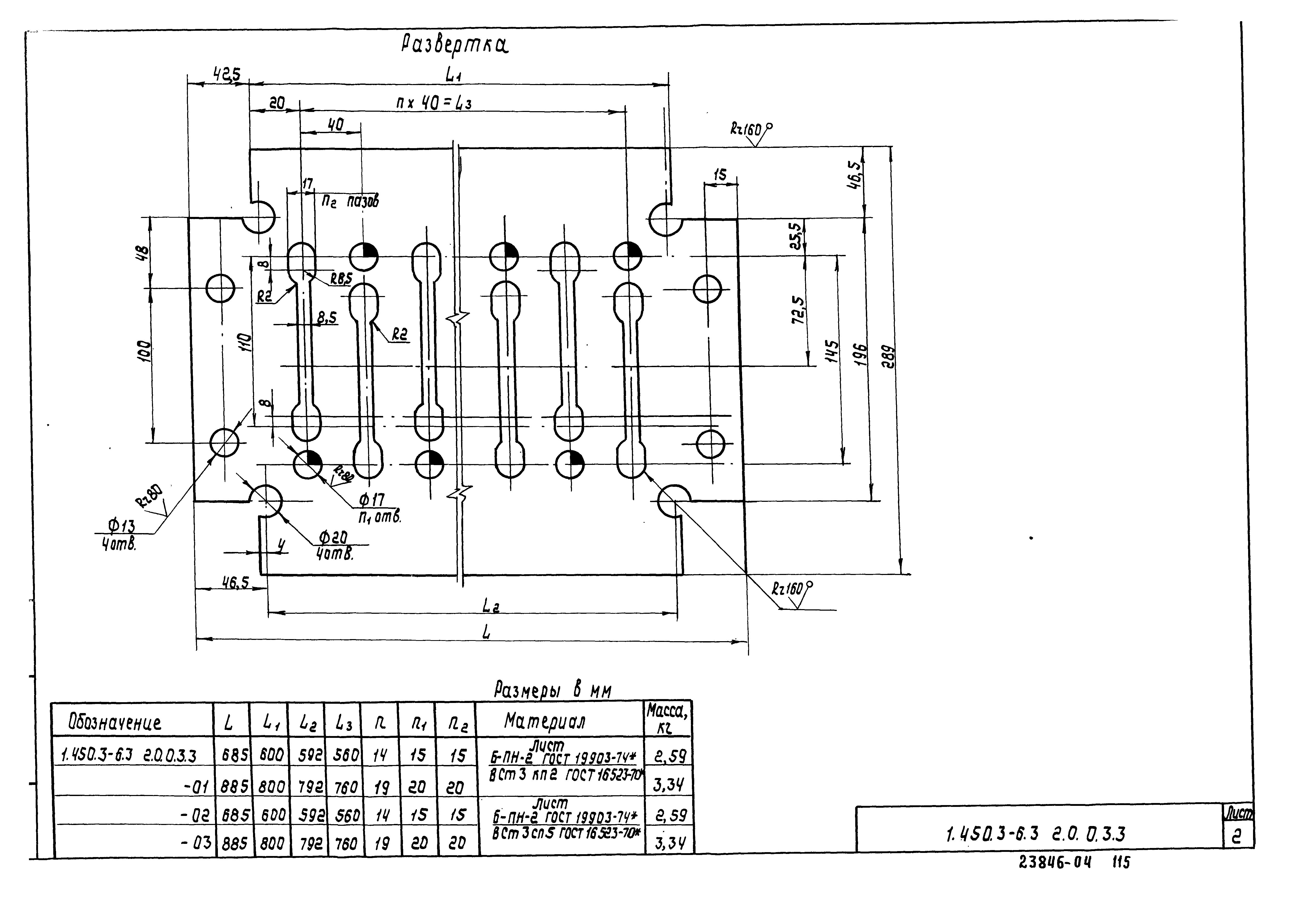
Скачать Серия 1.450.3-6 Выпуск 3. Конструкции из горячекатаных профилей. Чертежи КМДДата актуализации: 10.08.2017 Серия 1.450.3-6
Выпуск 3. Конструкции из горячекатаных профилей. Чертежи КМД| Обозначение: | Серия 1.450.3-6 | | Обозначение англ: | Series 1.450.3-6 | | Статус: | заменен | | Название рус.: | Выпуск 3. Конструкции из горячекатаных профилей. Чертежи КМД | | Дата добавления в базу: | 01.09.2013 | | Дата актуализации: | 05.05.2017 | | Разработан: | Укрниипроектстальконструкция
| | Утверждён: | 18.04.1989 Союзлегконструкция (65)
| | Издан: | ЦИТП Госстроя СССР (CITP, Gosstroy (USSR) 1989 г. )
| | Расположен в: |
| | Чем заменён: | |
                                                                                                                                                           
|