| ||||||||||||||||||||||||||
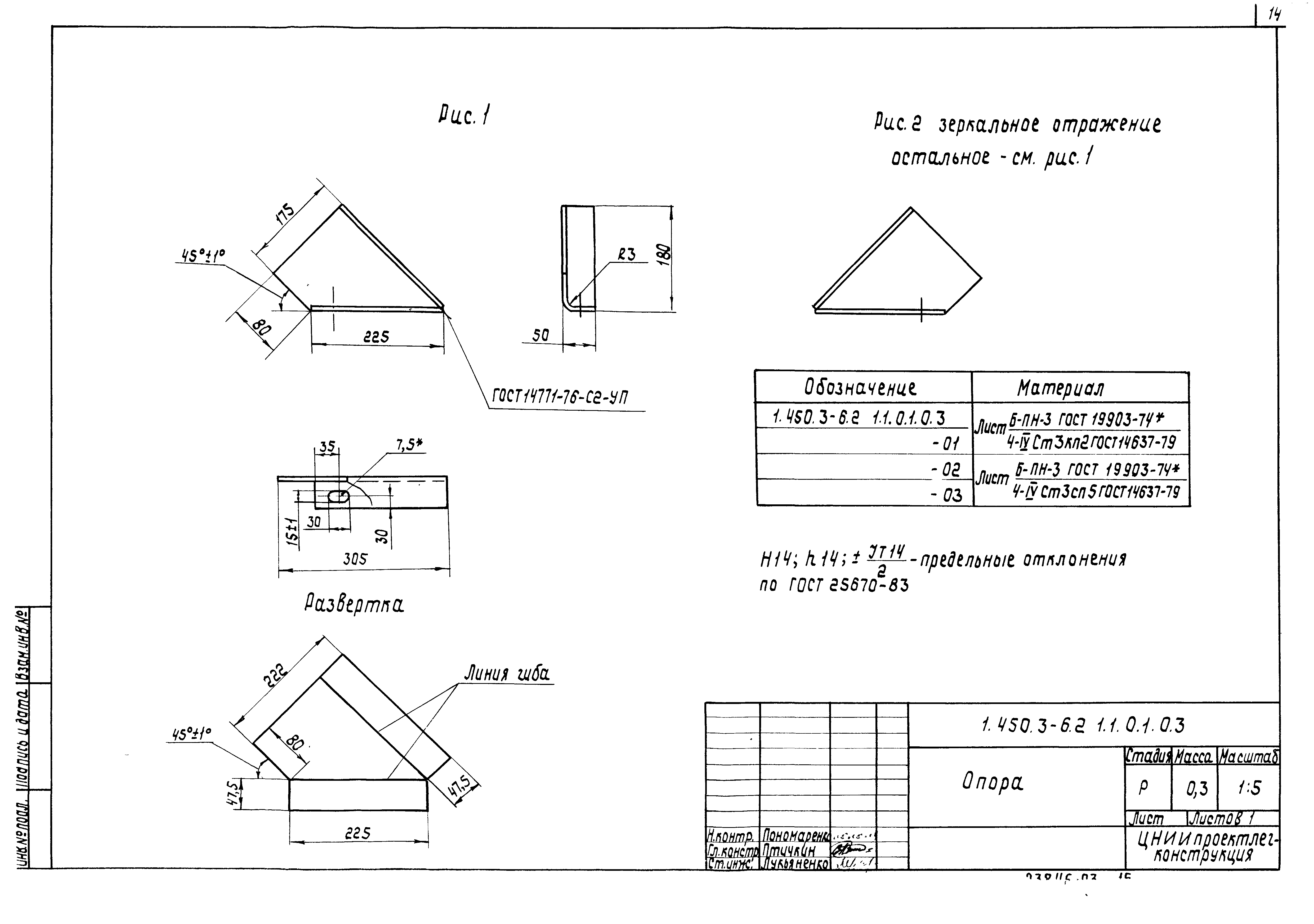
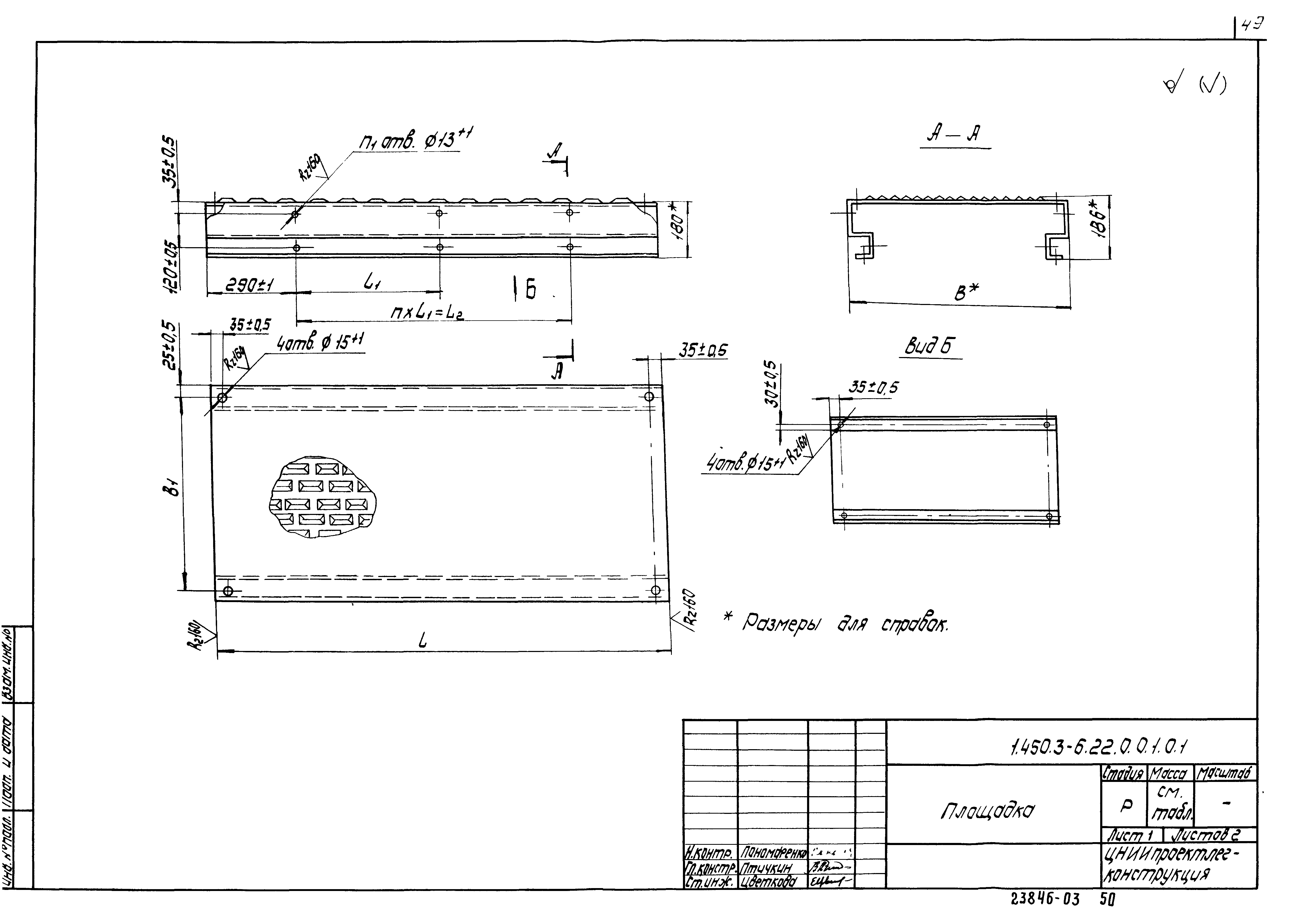
Скачать Серия 1.450.3-6 Выпуск 2. Конструкции из цельнокатаных профилей (перспективный вариант). Чертежи КМДДата актуализации: 10.08.2017
|
| Обозначение: | Серия 1.450.3-6 |
| Обозначение англ: | Series 1.450.3-6 |
| Статус: | не действует |
| Название рус.: | Выпуск 2. Конструкции из цельнокатаных профилей (перспективный вариант). Чертежи КМД |
| Дата добавления в базу: | 01.09.2013 |
| Дата актуализации: | 05.05.2017 |
| Разработан: | ЦНИИпроектстальконструкция Укрниипроектстальконструкция |
| Утверждён: | 18.04.1989 Союзлегконструкция (65) |
| Издан: | ЦИТП Госстроя СССР (CITP, Gosstroy (USSR) 1989 г. ) |
| Расположен в: | |
| Чем заменён: |













































































