| 
 Скачать Альбом СК 2201-88 Сборные железобетонные колодцы на подземных трубопроводах. Материалы для проектированияДата актуализации: 10.08.2017   Альбом СК 2201-88
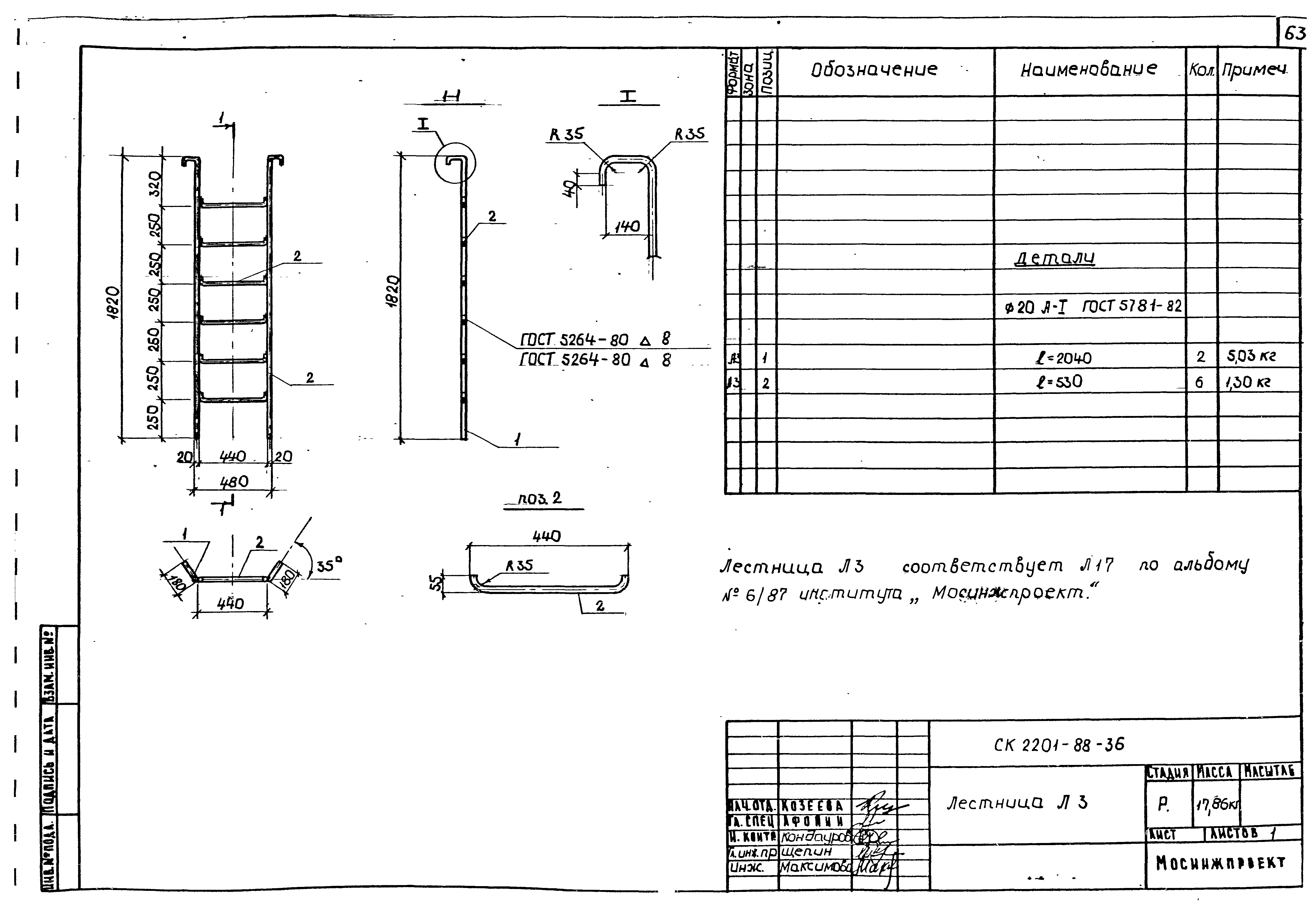
Сборные железобетонные колодцы на подземных трубопроводах. Материалы для проектирования| Обозначение: |  Альбом СК 2201-88 |  | Обозначение англ: |  СК 2201-88 |  | Статус: | не определен законодательством |  | Название рус.: | Сборные железобетонные колодцы на подземных трубопроводах. Материалы для проектирования |  | Дата добавления в базу: | 01.09.2013 |  | Дата актуализации: | 05.05.2017 |  | Дата введения: | 10.05.1988 |  | Разработан: | Мосинжпроект 
 |  | Утверждён: | 10.05.1988 Мосинжпроект (Mosinzhproject 12) 
 |  | Расположен в: | 
 | 
                                                                       |