| 
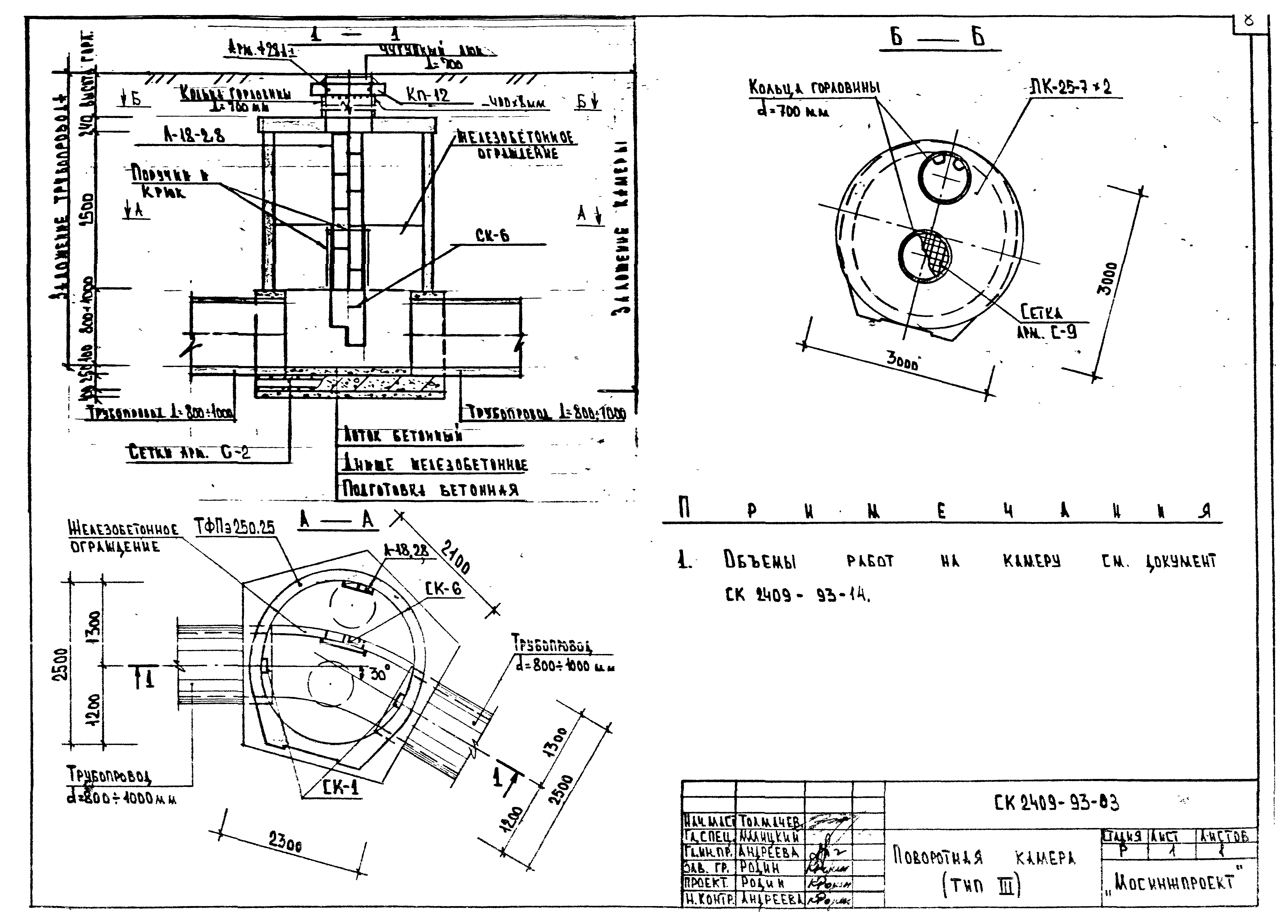
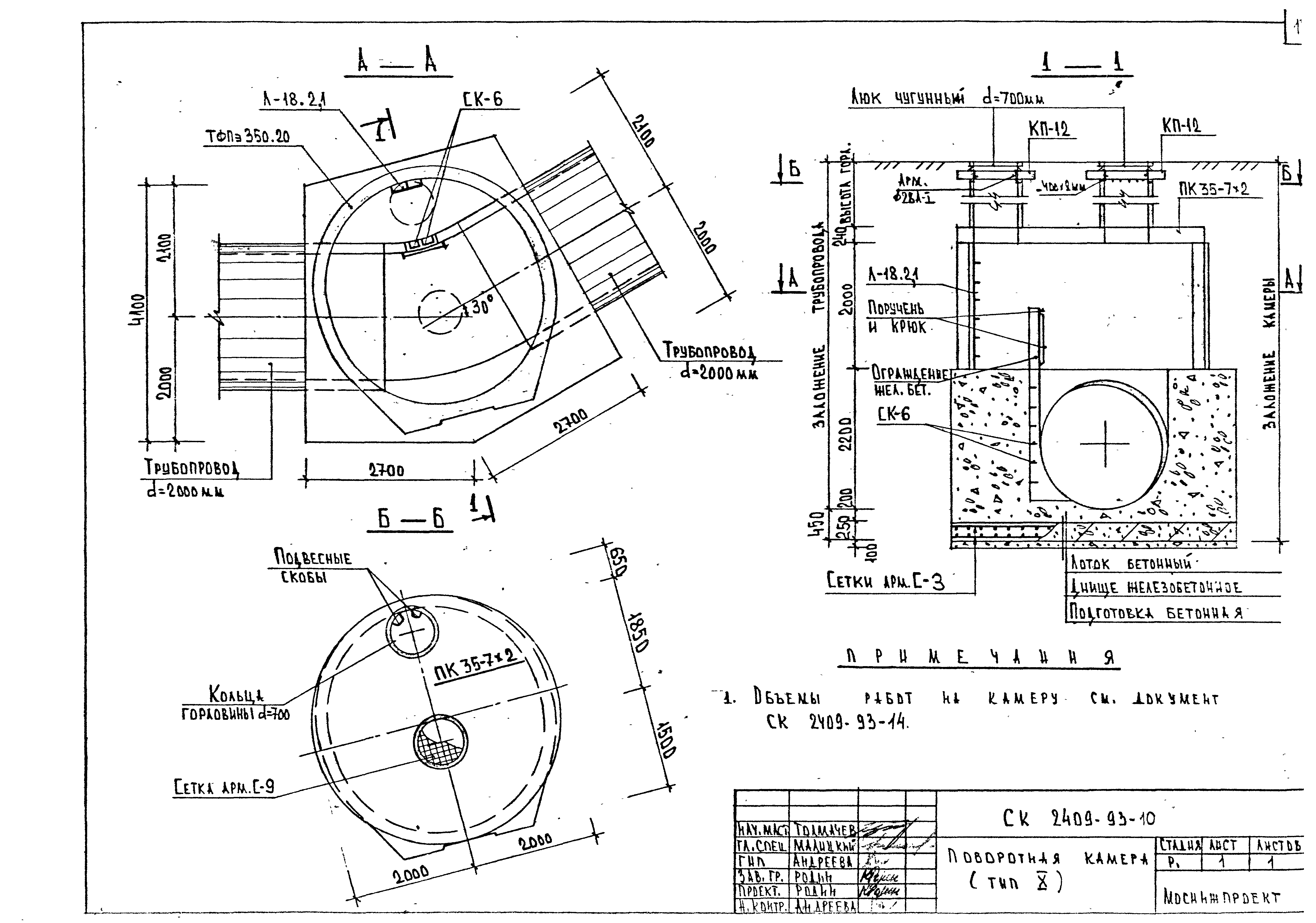
 Скачать Альбом СК 2409-93 Конструкции линейных, поворотных и перепадных камер на канализационных коллекторах Ду = 300 - 2500 мм с применением индустриальных изделий. Материалы для проектированияДата актуализации: 10.08.2017   Альбом СК 2409-93
Конструкции линейных, поворотных и перепадных камер на канализационных коллекторах Ду = 300 - 2500 мм с применением индустриальных изделий. Материалы для проектирования| Обозначение: |  Альбом СК 2409-93 |  | Обозначение англ: |  СК 2409-93 |  | Статус: | не определен законодательством |  | Название рус.: | Конструкции линейных, поворотных и перепадных камер на канализационных коллекторах Ду = 300 - 2500 мм с применением индустриальных изделий. Материалы для проектирования |  | Дата добавления в базу: | 01.09.2013 |  | Дата актуализации: | 05.05.2017 |  | Дата введения: | 01.01.1993 |  | Разработан: | Мосинжпроект 
 |  | Утверждён: | 01.01.1993 Мосинжпроект (Mosinzhproject ) 
 |  | Расположен в: | 
 | 
                                                   |