| ||||||||||||||||||||||||||
Скачать Серия 3.501-49 Выпуск 8. Металлические железнодорожные пролетные строения с ездой поверху на балласте пролетами 45,0 м; 55,0 м в северном исполнении. Деталировочные чертежи железобетонной плитыДата актуализации: 10.08.2017
|
| Обозначение: | Серия 3.501-49 |
| Обозначение англ: | Series 3.501-49 |
| Статус: | не определен законодательством |
| Название рус.: | Выпуск 8. Металлические железнодорожные пролетные строения с ездой поверху на балласте пролетами 45,0 м; 55,0 м в северном исполнении. Деталировочные чертежи железобетонной плиты |
| Дата добавления в базу: | 01.09.2013 |
| Дата актуализации: | 05.05.2017 |
| Дата введения: | 01.03.1971 |
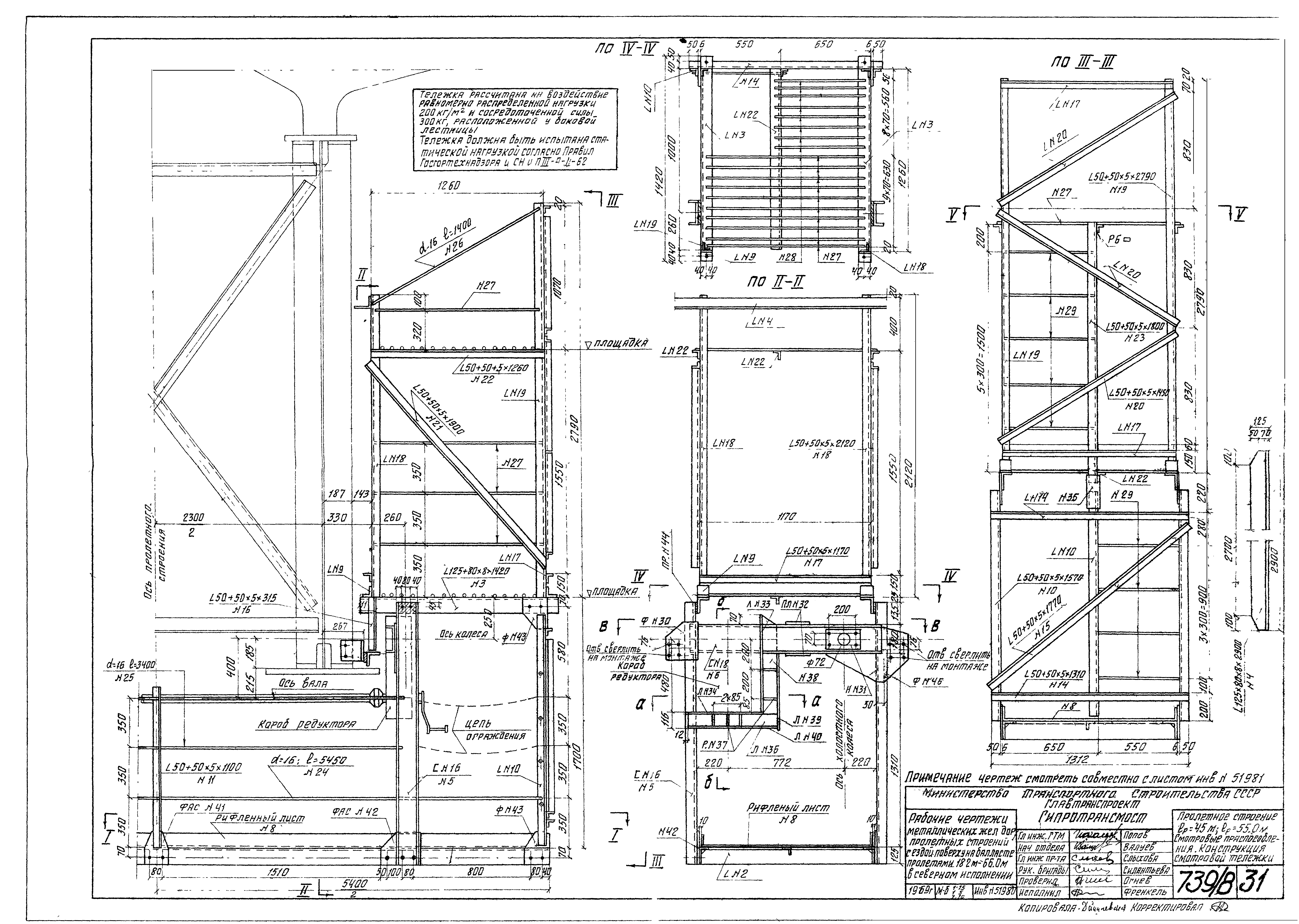
| Оглавление: | Титульный лист Состав проекта Пролетные строения Lр = 45,0 м, Lр = 55,0 м. Опалубочный чертеж плит балластного корыта с гибкими упорами Пролетные строения Lр = 45,0 м, Lр = 55,0 м. Опалубочный чертеж плит балластного корыта с жесткими упорами Пролетные строения Lр = 45,0 м, Lр = 55,0 м. Арматурный чертеж плиты П-1 с гибкими упорами Пролетные строения Lр = 45,0 м, Lр = 55,0 м. Арматурный чертеж плиты П-1а с гибкими упорами Пролетные строения Lр = 45,0 м, Lр = 55,0 м. Арматурный чертеж плиты П-2 с гибкими упорами Пролетные строения Lр = 45,0 м, Lр = 55,0 м. Арматурный чертеж плиты П-3, П-4 с гибкими упорами Пролетные строения Lр = 45,0 м, Lр = 55,0 м. Арматурный чертеж плиты П-1 с жесткими упорами Пролетные строения Lр = 45,0 м, Lр = 55,0 м. Арматурный чертеж плиты П-1а с жесткими упорами Пролетные строения Lр = 45,0 м, Lр = 55,0 м. Арматурный чертеж плиты П-2 с жесткими упорами Пролетные строения Lр = 45,0 м, Lр = 55,0 м. Арматурный чертеж плиты П-3 с жесткими упорами Пролетные строения Lр = 45,0 м, Lр = 55,0 м. Арматурный чертеж плиты П-4 с жесткими упорами Пролетные строения Lр = 45,0 м, Lр = 55,0 м. Конструкция гибких упоров Пролетные строения Lр = 45,0 м, Lр = 55,0 м. Конструкция жестких упоров Пролетные строения Lр = 45,0 м, Lр = 55,0 м. Конструкция изоляции. Перекрытие деформационного шва Пролетные строения Lр = 45,0 м, Lр = 55,0 м. Конструкция изоляции. Детали Пролетные строения Lр = 45,0 м, Lр = 55,0 м. Детали водопровода Пролетные строения Lр = 45,0 м, Lр = 55,0 м. Поперечные сечения мостового полотна Пролетные строения Lр = 45,0 м, Lр = 55,0 м. Конструкция мостового полотна. Детали перил Пролетное строение Lр = 45,0 м. Расчет плиты в продольном направлении Пролетное строение Lр = 55,0 м. Расчет плиты в продольном направлении Пролетное строение Lр = 55,0 м. Расчет упоров Пролетные строения Lр = 45,0 м, Lр = 55,0 м. Расчет плиты в поперечном направлении Пролетные строения Lр = 45,0 м, Lр = 55,0 м. Расчет стыка главных балок Пролетные строения Lр = 45,0 м, Lр = 55,0 м. Установка плит на пролетное строение Пролетное строение Lр = 55,0 м. Установка главных балок в пролет. Подкрановый путь Пролетные строения Lр = 45,0 м, Lр = 55,0 м. Конструкция убежища. Консоли. Схема расположения убежищ Пролетные строения Lр = 45,0 м, Lр = 55,0 м. Конструкция убежища. Железобетонная плита Пролетные строения Lр = 45,0 м, Lр = 55,0 м. Конструкция тротуарных плит. Схема разбивки Пролетные строения Lр = 45,0 м, Lр = 55,0 м. Конструкция смотровой тележки Пролетные строения Lр = 45,0 м, Lр = 55,0 м. Конструкция смотровой тележки. Детали |
| Разработан: | Гипротрансмост |
| Утверждён: | 05.06.1970 МПС (Ministry of Railroads П-15741) |
| Расположен в: |































