Информационная система
«Ёшкин Кот»

Скачать базу одним архивом
Скачать обновления
История создания базы
Карта сайта

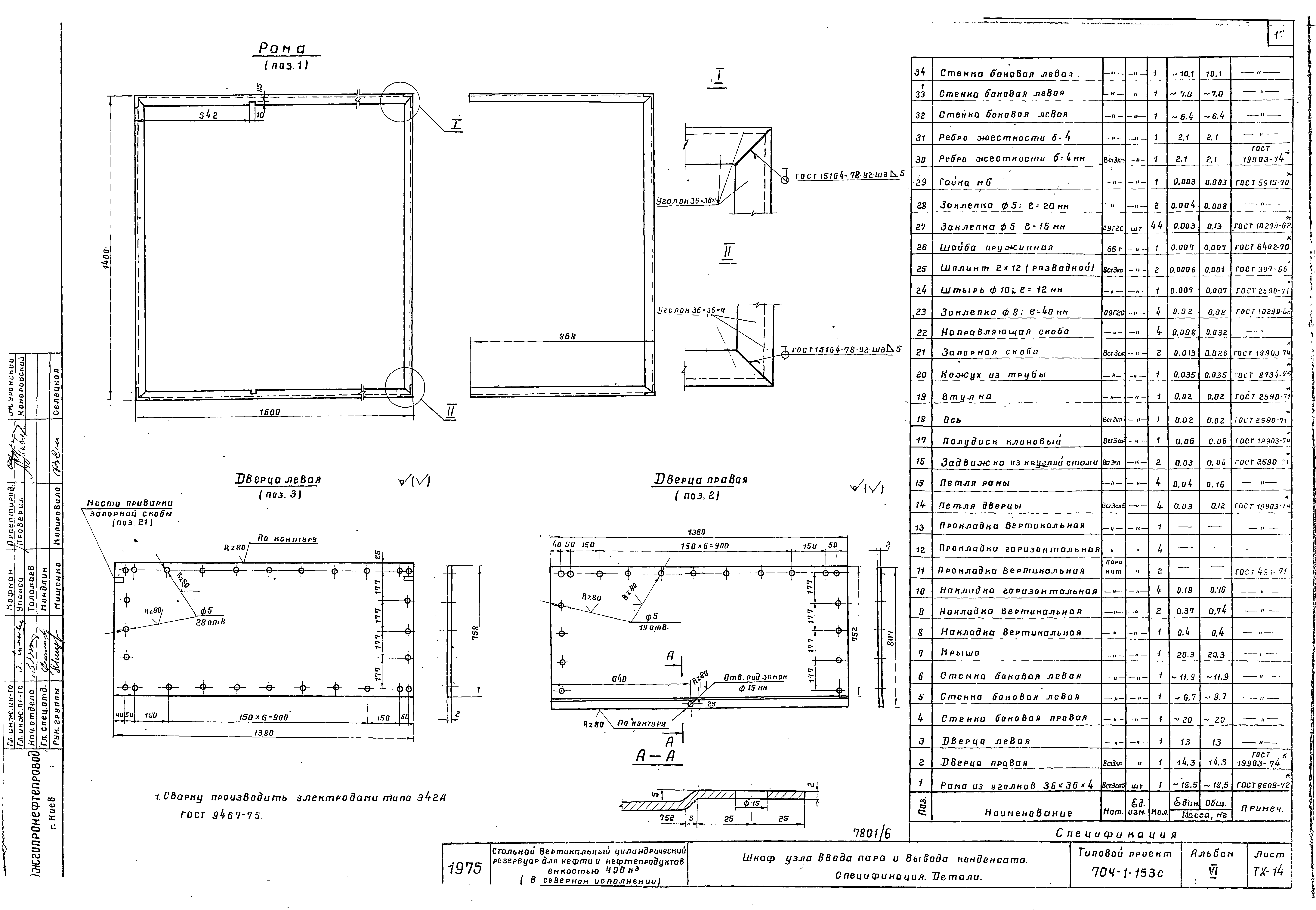
Скачать Типовой проект 704-1-153с Альбом VI. Оборудование резервуара для темных нефтепродуктов

Дата актуализации: 10.08.2017

Типовой проект 704-1-153с

Альбом VI. Оборудование резервуара для темных нефтепродуктов

Обозначение: Типовой проект 704-1-153с
Обозначение англ: 704-1-153с
Статус:не действует
Название рус.:Альбом VI. Оборудование резервуара для темных нефтепродуктов
Дата добавления в базу:01.09.2013
Дата актуализации:05.05.2017
Разработан: Южгипронефтепровод Миннефтепрома СССР
Утверждён:21.03.1977 Миннефтепром (Minnefteprom )
Расположен в:Техническая документация Строительство Справочные документы Типовые строительные конструкции, изделия и узлы Общероссийский строительный каталог Промышленные предприятия, здания и сооружения Предприятия, здания и сооружения складские Резервуары и склады для нефти и нефтепродуктов Резервуары стальные для нефти и нефтепродуктов
Типовой проект 704-1-153сТиповой проект 704-1-153сТиповой проект 704-1-153сТиповой проект 704-1-153сТиповой проект 704-1-153сТиповой проект 704-1-153сТиповой проект 704-1-153сТиповой проект 704-1-153сТиповой проект 704-1-153сТиповой проект 704-1-153сТиповой проект 704-1-153сТиповой проект 704-1-153сТиповой проект 704-1-153сТиповой проект 704-1-153сТиповой проект 704-1-153сТиповой проект 704-1-153сТиповой проект 704-1-153сТиповой проект 704-1-153сТиповой проект 704-1-153сТиповой проект 704-1-153сТиповой проект 704-1-153сТиповой проект 704-1-153сТиповой проект 704-1-153сТиповой проект 704-1-153сТиповой проект 704-1-153сТиповой проект 704-1-153сТиповой проект 704-1-153сТиповой проект 704-1-153сТиповой проект 704-1-153сТиповой проект 704-1-153сТиповой проект 704-1-153сТиповой проект 704-1-153сТиповой проект 704-1-153с

© 2013 Ёшкин Кот :-) Карта сайта