Информационная система
«Ёшкин Кот»

Скачать базу одним архивом
Скачать обновления
История создания базы
Карта сайта

Скачать Типовой проект 704-1-154с Альбом V. Оборудование резервуара без понтона для нефти и светлых нефтепродуктов

Дата актуализации: 10.08.2017

Типовой проект 704-1-154с

Альбом V. Оборудование резервуара без понтона для нефти и светлых нефтепродуктов

Обозначение: Типовой проект 704-1-154с
Обозначение англ: 704-1-154с
Статус:не действует
Название рус.:Альбом V. Оборудование резервуара без понтона для нефти и светлых нефтепродуктов
Дата добавления в базу:01.09.2013
Дата актуализации:05.05.2017
Оглавление:Обложка
Содержание альбома. Пояснительная записка
Технологическая часть
   Оборудование резервуара для хранения нефти и светлых нефтепродуктов. Общий вид
   Установка приемно-раздаточного устройства Ду=150
   Установка приемно-раздаточного устройства Ду=200
   Установка приемно-раздаточного устройства Ду=250
   Установка огнепреградителя ОПХ-200
   Установка огнепреградителя ОПХ-250
   Расположение секционных подогревателей F = 13 кв. м
   Подогревательный элемент ПЭ-07, ПЭ-1.6
   Стойка С-1. Стойка С-4. Стойка С-5
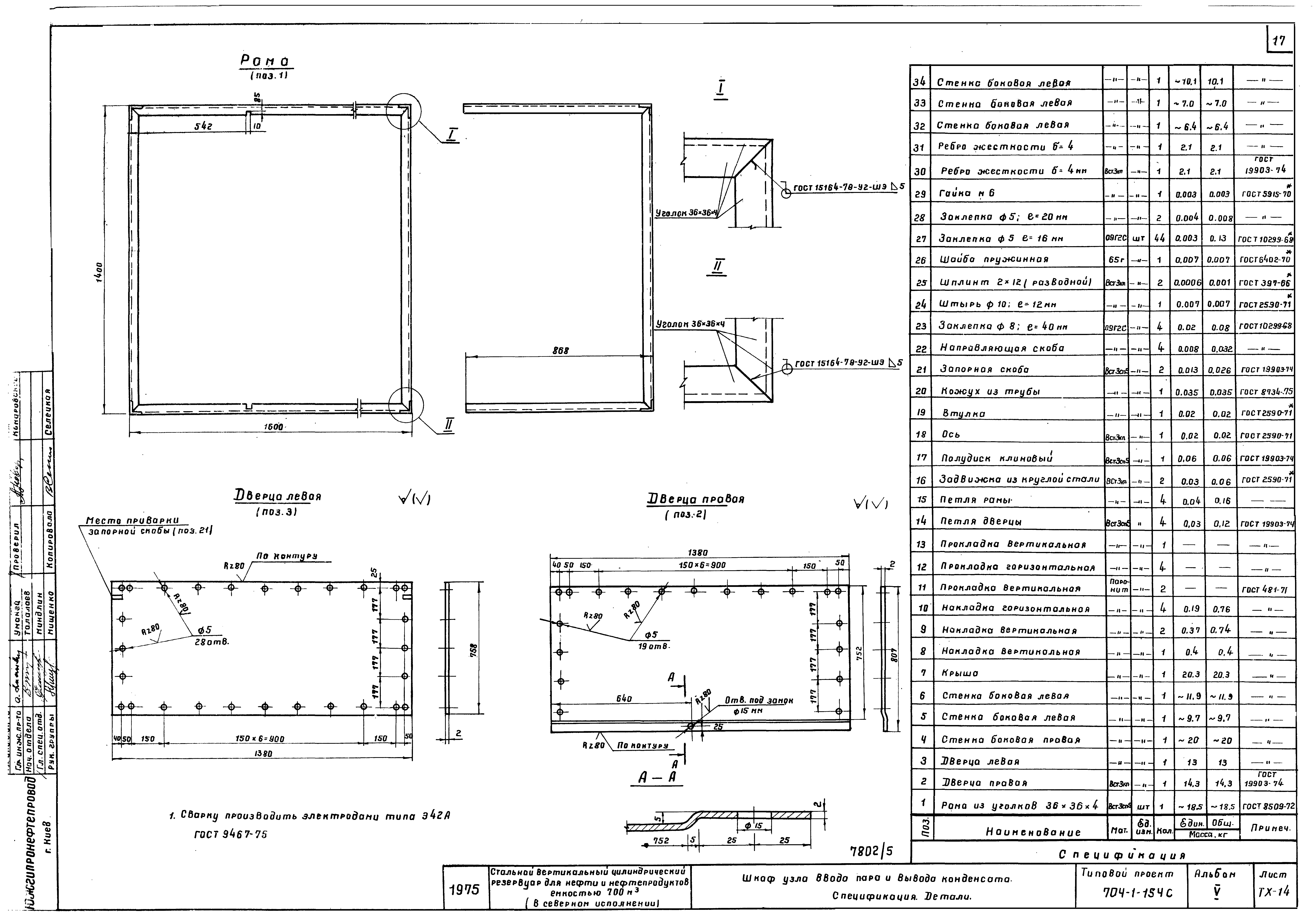
   Шкаф узла ввода пара и вывода конденсата
Теплотехническая часть
   Узел управления подогревателями
   Деталь присоединения шланга dу40 к трубопроводу
КиП и автоматика
   Функциональная схема автоматизации
   Установка указателя уровня типа УДУ-10
   Установка указателя уровня типа УДУ-10. Детали
   Установка пробоотборника типа ПСР-4
   Установка термометра сопротивления типа 4042
   Установка сигнализатора аварийного уровня СУЖ-1с
   Установка термометра на стенке резервуара
   Установка термометра на конденсатопроводе
   Установка термометра на конденсатопроводе. Детали
   Схема внешних электрических соединений
Электротехническая часть
   Молниезащита и защита от статического электричества
Строительная часть.
   Молниеотвод
Разработан: Южгипронефтепровод Миннефтепрома СССР
Утверждён:21.03.1977 Миннефтепром СССР
Расположен в:Техническая документация Строительство Справочные документы Типовые строительные конструкции, изделия и узлы Общероссийский строительный каталог Промышленные предприятия, здания и сооружения Предприятия, здания и сооружения складские Резервуары и склады для нефти и нефтепродуктов Резервуары стальные для нефти и нефтепродуктов
Типовой проект 704-1-154сТиповой проект 704-1-154сТиповой проект 704-1-154сТиповой проект 704-1-154сТиповой проект 704-1-154сТиповой проект 704-1-154сТиповой проект 704-1-154сТиповой проект 704-1-154сТиповой проект 704-1-154сТиповой проект 704-1-154сТиповой проект 704-1-154сТиповой проект 704-1-154сТиповой проект 704-1-154сТиповой проект 704-1-154сТиповой проект 704-1-154сТиповой проект 704-1-154сТиповой проект 704-1-154сТиповой проект 704-1-154сТиповой проект 704-1-154сТиповой проект 704-1-154сТиповой проект 704-1-154сТиповой проект 704-1-154сТиповой проект 704-1-154сТиповой проект 704-1-154сТиповой проект 704-1-154сТиповой проект 704-1-154сТиповой проект 704-1-154сТиповой проект 704-1-154сТиповой проект 704-1-154сТиповой проект 704-1-154сТиповой проект 704-1-154сТиповой проект 704-1-154сТиповой проект 704-1-154с

© 2013 Ёшкин Кот :-) Карта сайта