Информационная система
«Ёшкин Кот»

Скачать базу одним архивом
Скачать обновления
История создания базы
Карта сайта

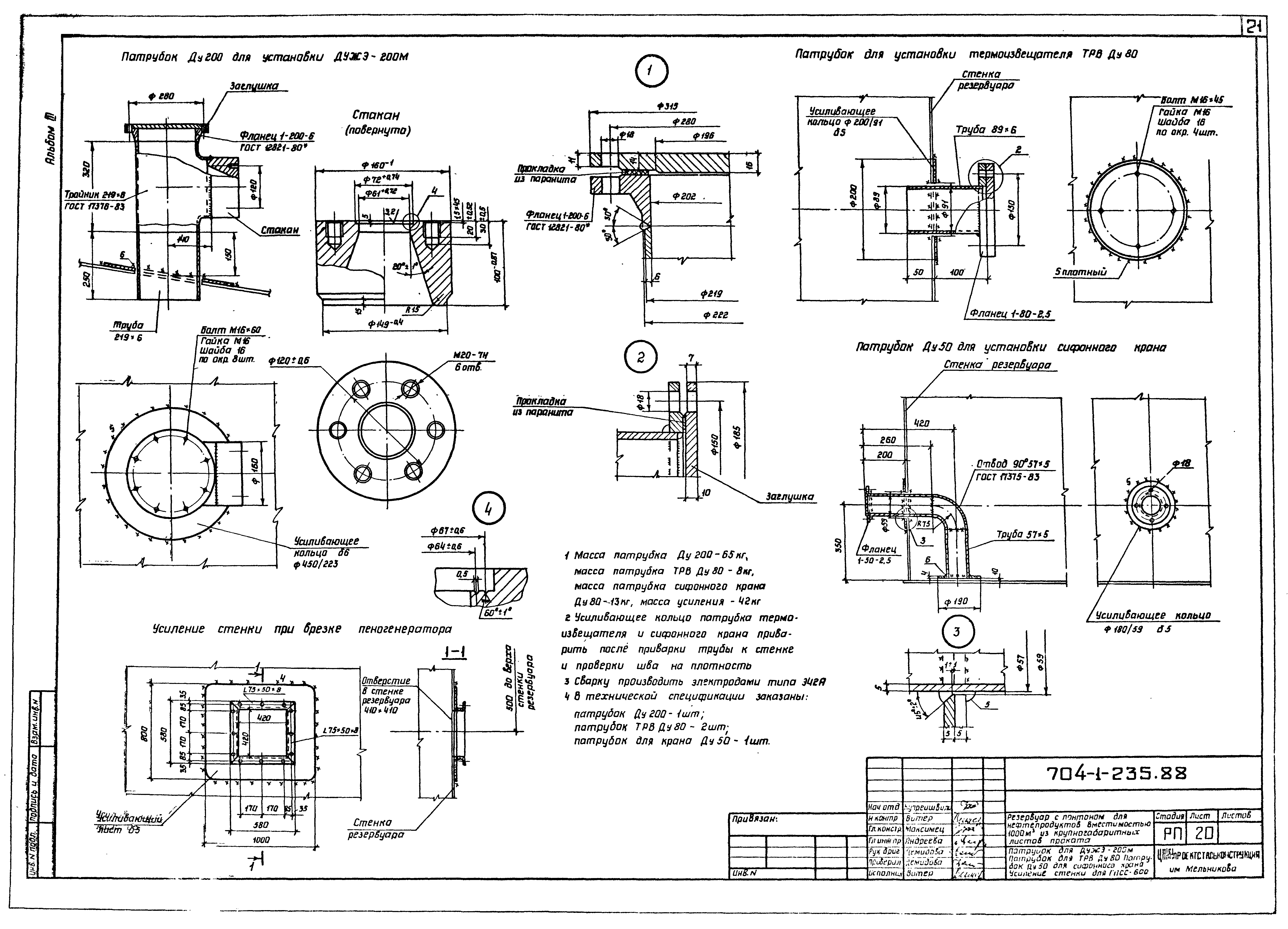
Скачать Типовой проект 704-1-235.88 Альбом III. Конструкции металлические резервуара

Дата актуализации: 10.08.2017

Типовой проект 704-1-235.88

Альбом III. Конструкции металлические резервуара

Обозначение: Типовой проект 704-1-235.88
Обозначение англ: 704-1-235.88
Статус:не действует
Название рус.:Альбом III. Конструкции металлические резервуара
Дата добавления в базу:01.09.2013
Дата актуализации:05.05.2017
Разработан: ЦНИИпроектстальконструкция
Утверждён:06.10.1988 Миннефтепром (Minnefteprom 180э)
Расположен в:Техническая документация Строительство Справочные документы Типовые строительные конструкции, изделия и узлы Общероссийский строительный каталог Промышленные предприятия, здания и сооружения Предприятия, здания и сооружения складские Резервуары и склады для нефти и нефтепродуктов Резервуары стальные для нефти и нефтепродуктов
Типовой проект 704-1-235.88Типовой проект 704-1-235.88Типовой проект 704-1-235.88Типовой проект 704-1-235.88Типовой проект 704-1-235.88Типовой проект 704-1-235.88Типовой проект 704-1-235.88Типовой проект 704-1-235.88Типовой проект 704-1-235.88Типовой проект 704-1-235.88Типовой проект 704-1-235.88Типовой проект 704-1-235.88Типовой проект 704-1-235.88Типовой проект 704-1-235.88Типовой проект 704-1-235.88Типовой проект 704-1-235.88Типовой проект 704-1-235.88Типовой проект 704-1-235.88Типовой проект 704-1-235.88Типовой проект 704-1-235.88Типовой проект 704-1-235.88Типовой проект 704-1-235.88Типовой проект 704-1-235.88Типовой проект 704-1-235.88

© 2013 Ёшкин Кот :-) Карта сайта