| ||||||||||||||||||||||||||||
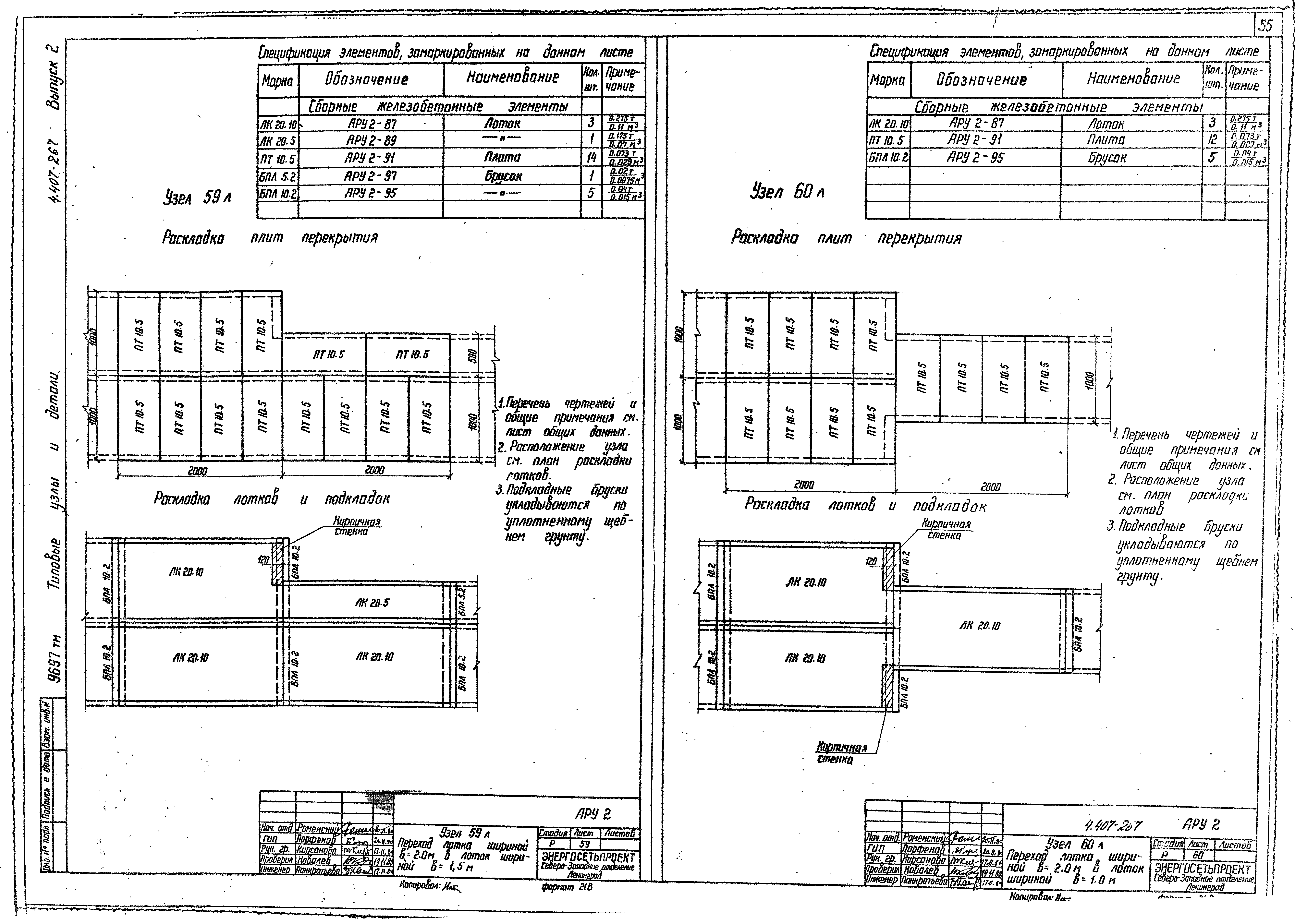
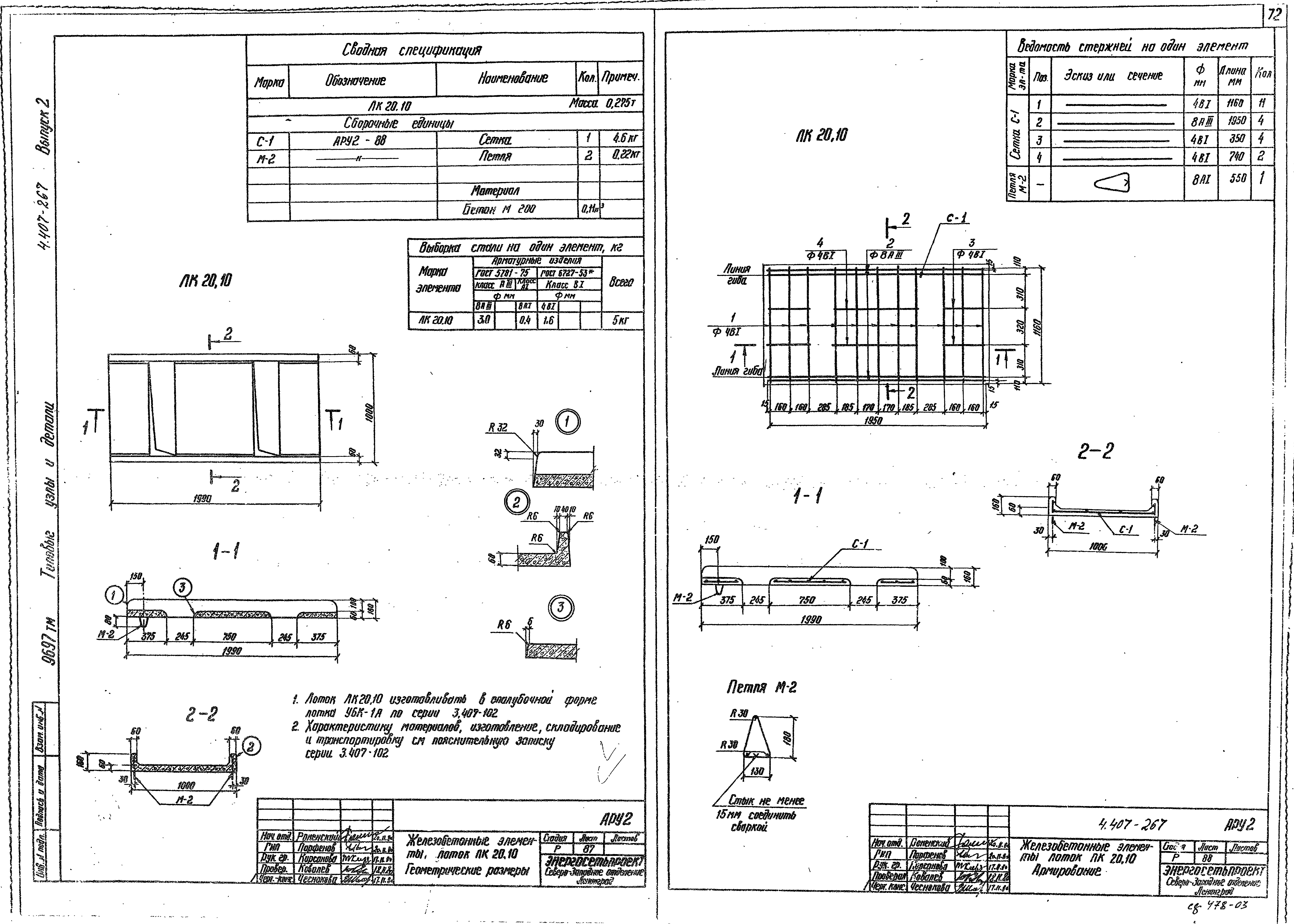
Скачать Серия 4.407-267 Выпуск 2. Узлы кабельных лотковДата актуализации: 10.08.2017
|
| Обозначение: | Серия 4.407-267 |
| Обозначение англ: | Series 4.407-267 |
| Статус: | не действует |
| Название рус.: | Выпуск 2. Узлы кабельных лотков |
| Дата добавления в базу: | 01.09.2013 |
| Дата актуализации: | 05.05.2017 |
| Дата окончания срока действия: | 01.10.1988 |
| Разработан: | Северо-западное отделение института Энергосетьпроект |
| Утверждён: | 29.01.1981 Минэнерго СССР (USSR Minenergo 9) |
| Издан: | ЦИТП Госстроя СССР (CITP, Gosstroy (USSR) 1981 г. ) |
| Расположен в: | |
| Чем заменён: |












































































