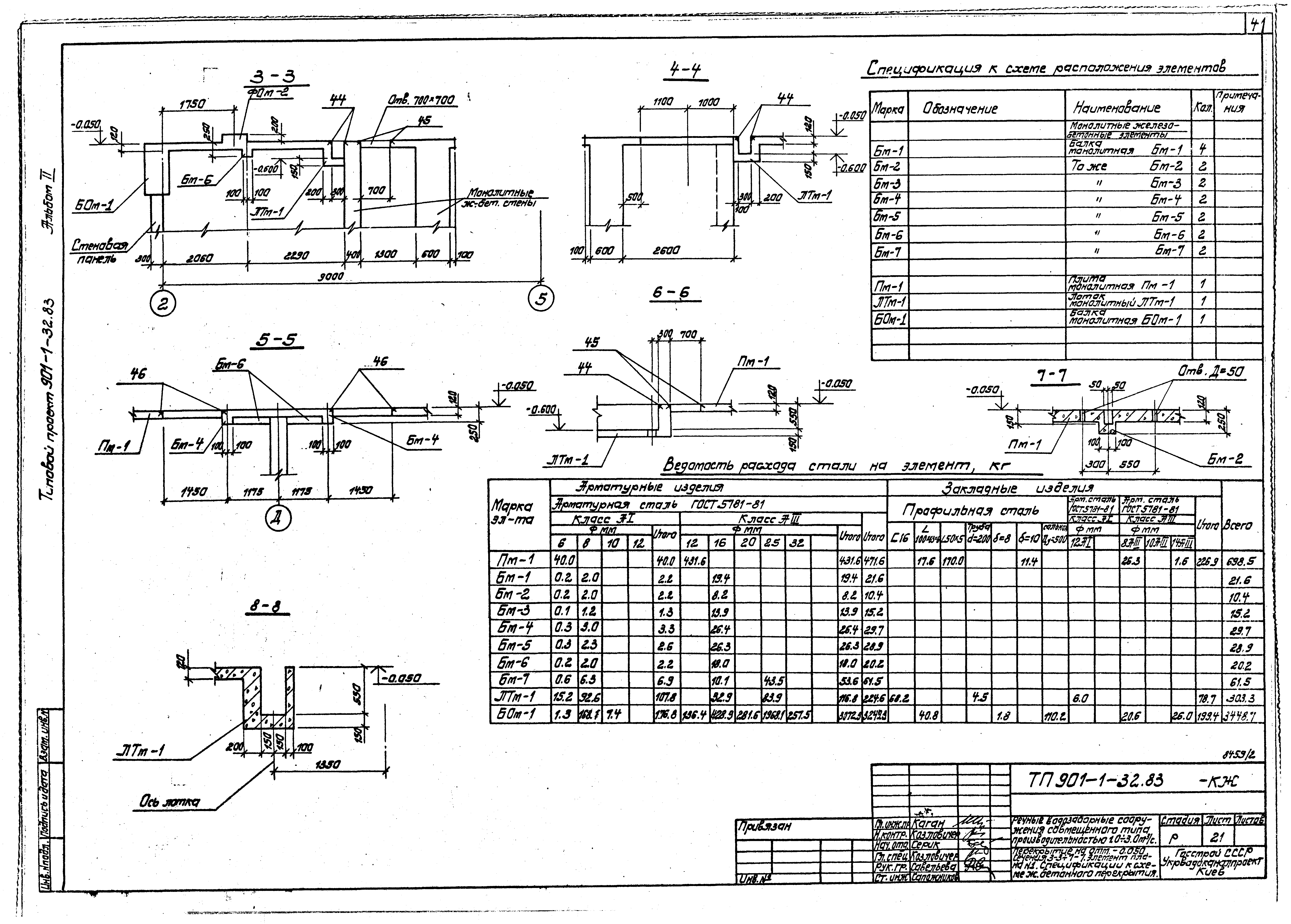
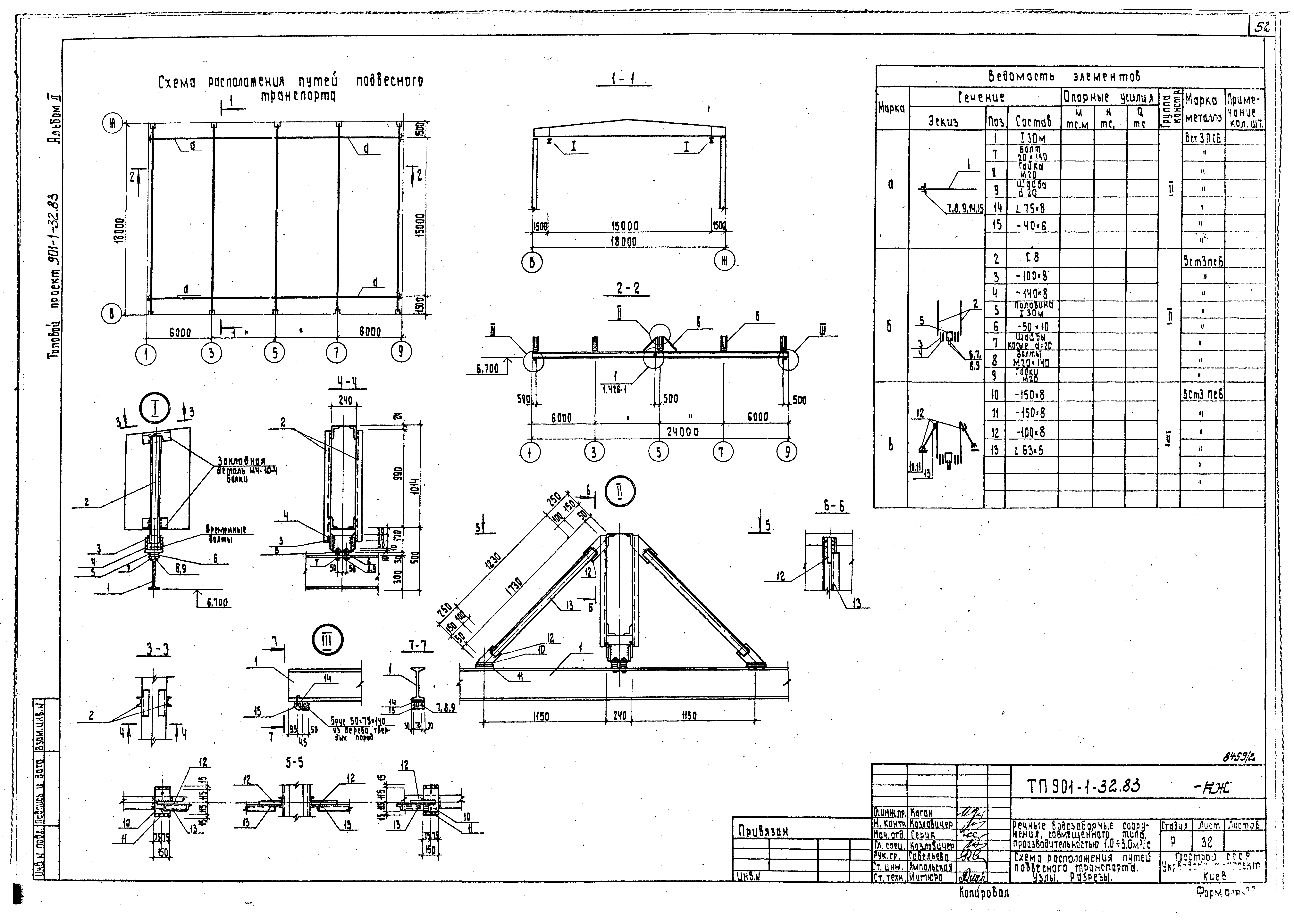
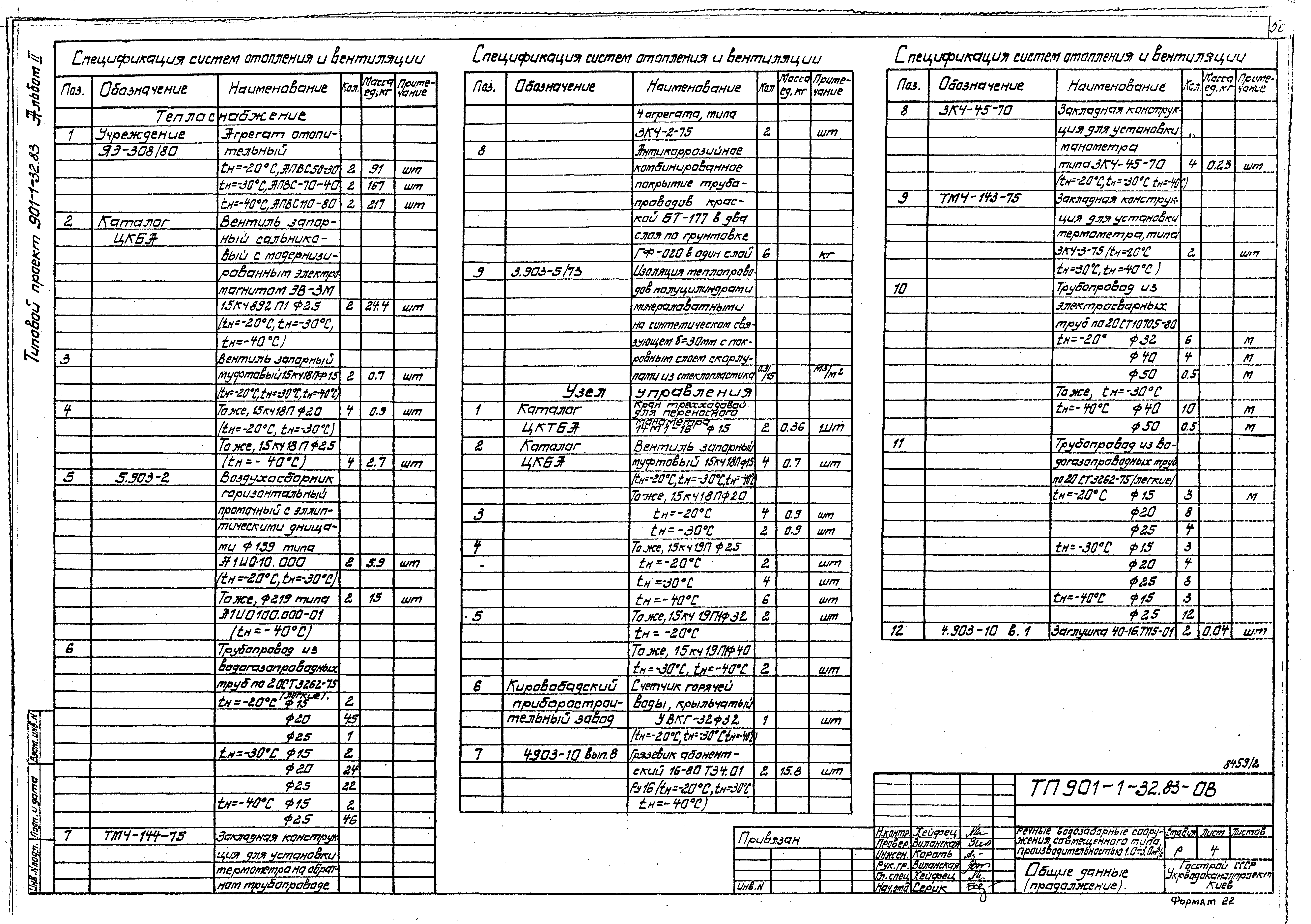
Скачать Типовой проект 901-1-69.87 Альбом II. Архитектурно-строительная часть, отопление и вентиляция, указания по производству строительных работ (из ТП 901-1-32.83)Дата актуализации: 10.08.2017 Типовой проект 901-1-69.87
Альбом II. Архитектурно-строительная часть, отопление и вентиляция, указания по производству строительных работ (из ТП 901-1-32.83)Обозначение: | Типовой проект 901-1-69.87 | Обозначение англ: | 901-1-69.87 | Статус: | не действует | Название рус.: | Альбом II. Архитектурно-строительная часть, отопление и вентиляция, указания по производству строительных работ (из ТП 901-1-32.83) | Дата добавления в базу: | 01.09.2013 | Дата актуализации: | 05.05.2017 | Разработан: | Укрводоканалпроект
| Утверждён: | 08.12.1982 Союзводоканалпроект (Soyuzvodokanalproject 80)
| Издан: | ЦИТП Госстроя СССР (CITP, Gosstroy (USSR) 1987 г. )
| Расположен в: |
|
                                                                             
|