Информационная система
«Ёшкин Кот»

Скачать базу одним архивом
Скачать обновления
История создания базы
Карта сайта

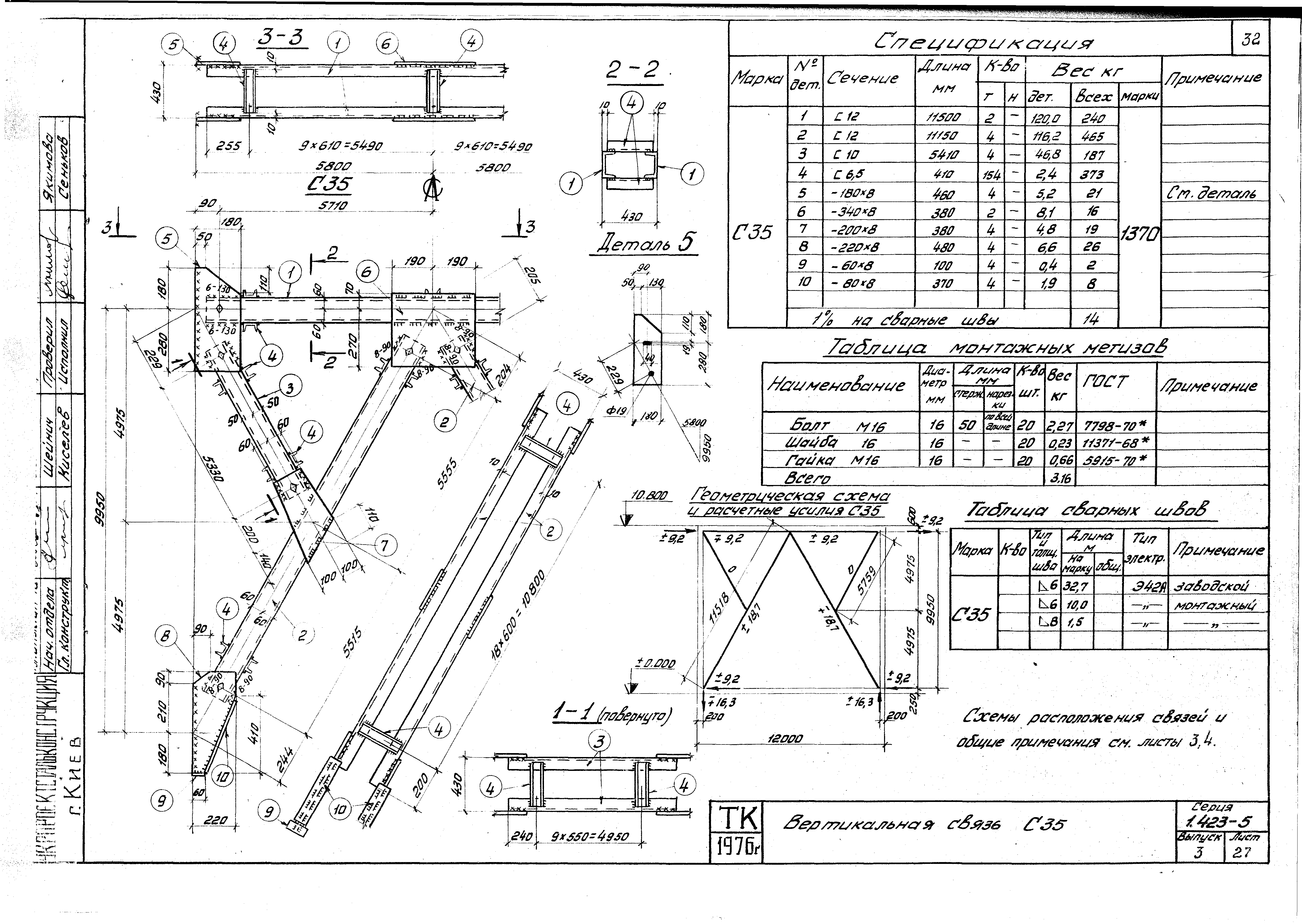
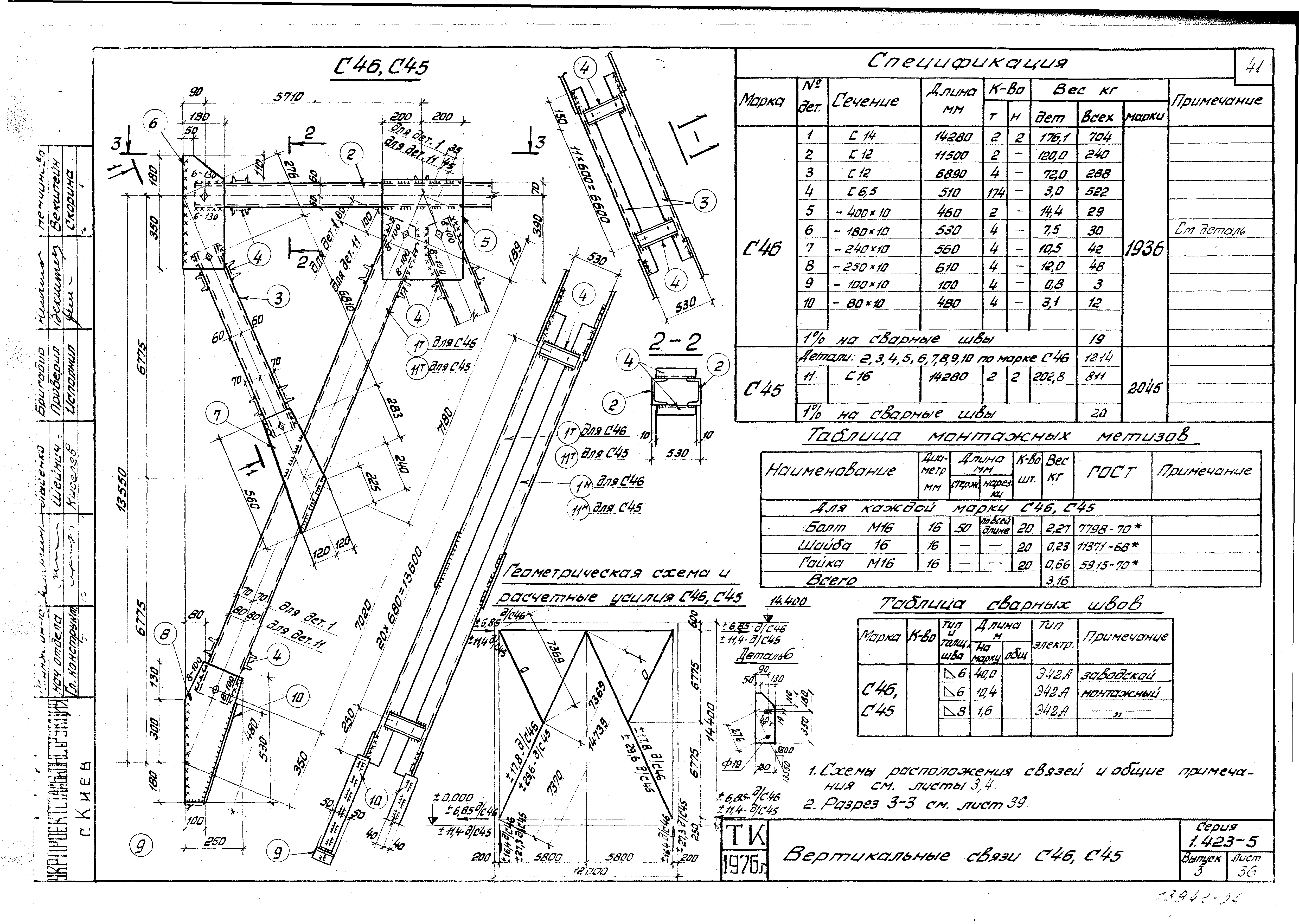
Скачать Серия 1.423-5 Выпуск 3. Стальные связи по колоннам. Рабочие чертежи

Дата актуализации: 10.08.2017

Серия 1.423-5

Выпуск 3. Стальные связи по колоннам. Рабочие чертежи

Обозначение: Серия 1.423-5
Обозначение англ: Series 1.423-5
Статус:не действует
Название рус.:Выпуск 3. Стальные связи по колоннам. Рабочие чертежи
Дата добавления в базу:01.09.2013
Дата актуализации:05.05.2017
Дата введения:01.01.1978
Дата окончания срока действия:01.05.1989
Разработан: ЦНИИпромзданий
Укрпроектстальконструкция
Утверждён:05.07.1977 Госстрой СССР (Государственный комитет Совета Министров СССР по делам строительства) (USSR Gosstroy 90)
Расположен в:Техническая документация Строительство Справочные документы Типовые строительные конструкции, изделия и узлы Общероссийский строительный каталог Строительные конструкции, изделия и узлы зданий и сооружений для всех видов строительства Конструкции, изделия и узлы зданий Несущие конструкции одноэтажных зданий Колонны Железобетонные
Чем заменён:
Серия 1.423-5Серия 1.423-5Серия 1.423-5Серия 1.423-5Серия 1.423-5Серия 1.423-5Серия 1.423-5Серия 1.423-5Серия 1.423-5Серия 1.423-5Серия 1.423-5Серия 1.423-5Серия 1.423-5Серия 1.423-5Серия 1.423-5Серия 1.423-5Серия 1.423-5Серия 1.423-5Серия 1.423-5Серия 1.423-5Серия 1.423-5Серия 1.423-5Серия 1.423-5Серия 1.423-5Серия 1.423-5Серия 1.423-5Серия 1.423-5Серия 1.423-5Серия 1.423-5Серия 1.423-5Серия 1.423-5Серия 1.423-5Серия 1.423-5Серия 1.423-5Серия 1.423-5Серия 1.423-5Серия 1.423-5Серия 1.423-5Серия 1.423-5Серия 1.423-5Серия 1.423-5Серия 1.423-5Серия 1.423-5Серия 1.423-5Серия 1.423-5Серия 1.423-5Серия 1.423-5Серия 1.423-5Серия 1.423-5Серия 1.423-5Серия 1.423-5Серия 1.423-5Серия 1.423-5Серия 1.423-5Серия 1.423-5Серия 1.423-5Серия 1.423-5Серия 1.423-5Серия 1.423-5Серия 1.423-5Серия 1.423-5Серия 1.423-5Серия 1.423-5Серия 1.423-5Серия 1.423-5Серия 1.423-5Серия 1.423-5Серия 1.423-5Серия 1.423-5Серия 1.423-5Серия 1.423-5Серия 1.423-5Серия 1.423-5

© 2013 Ёшкин Кот :-) Карта сайта