Информационная система
«Ёшкин Кот»

Скачать базу одним архивом
Скачать обновления
История создания базы
Карта сайта

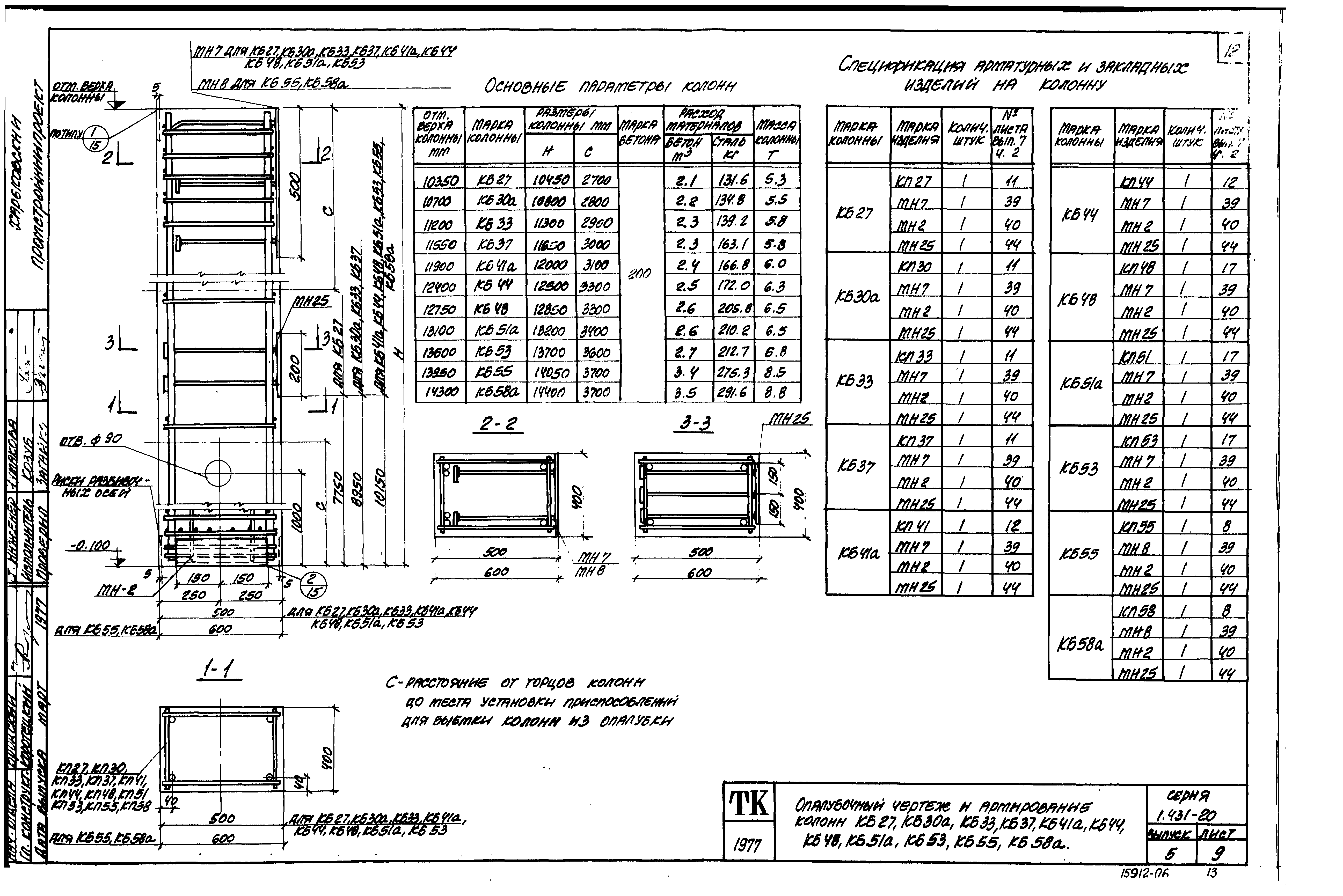
Скачать Серия 1.431-20 Выпуск 5. Колонны фахверка железобетонные. Рабочие чертежи

Дата актуализации: 10.08.2017

Серия 1.431-20

Выпуск 5. Колонны фахверка железобетонные. Рабочие чертежи

Обозначение: Серия 1.431-20
Обозначение англ: Series 1.431-20
Статус:заменен
Название рус.:Выпуск 5. Колонны фахверка железобетонные. Рабочие чертежи
Дата добавления в базу:01.09.2013
Дата актуализации:05.05.2017
Дата введения:01.07.1985
Область применения:В настоящем выпуске приведены рабочие чертежи железобетонных колонн фахверка
Оглавление:Пояснительная записка
Опалубочный чертеж и армирование колонн КБ1, КБ2, КБ3а, КБ5, КБ6а, КБ8, КБ9а, КБ11, КБ12а, КБ16, КБ17
Опалубочный чертеж и армирование колонн КБ3, КБ4, КБ5а, КБ6, КБ7, КБ8а, КБ9, КБ10, КБ11а, КБ12
Опалубочный чертеж и армирование колонн КБ13, КБ15, КБ18, КБ18а, КБ20, КБ20б, КБ23, КБ25, КБ26, КБ26а
Опалубочный чертеж и армирование колонн КБ14, КБ16а, КБ17, КБ19, КБ22а, КБ24
Опалубочный чертеж и армирование колонн КБ15а, КБ20а, КБ20а, КБ20в, КБ28а, КБ28в, КБ56а, КБ56в
Опалубочный чертеж и армирование колонн КБ21, КБ29, КБ29а, КБ32, КБ40, КБ40а, КБ43, КБ43а, КБ49, КБ49а, КБ52, КБ52а
Опалубочный чертеж и армирование колонн КБ22, КБ24а, КБ30, КБ31, КБ51, КБ58
Опалубочный чертеж и армирование колонн КБ26б, КБ28г, КБ36, КБ39, КБ46б, КБ47г, КБ54б, КБ56г
Опалубочный чертеж и армирование колонн КБ27, КБ30а, КБ33, КБ37, КБ41а, КБ44, КБ48, КБ51а, КБ53, КБ55, КБ58а
Опалубочный чертеж и армирование колонн КБ28, КБ28б, КБ31, КБ34, КБ35, КБ35а, КБ38, КБ38б, КБ42, КБ45
Опалубочный чертеж и армирование колонн КБ28д, КБ38а, КБ38в, КБ39а, КБ47д, КБ47а, КБ47в, КБ56д
Опалубочный чертеж и армирование колонн КБ40б, КБ50, КБ52б, КБ57б, КБ60, КБ61б, КБ62б, КБ63б
Опалубочный чертеж и армирование колонн КБ46, КБ46а, КБ47, КБ47б, КБ54, КБ54а, КБ56, КБ56б
Опалубочный чертеж и армирование колонн КБ57, КБ57а, КБ59, КБ59а, КБ61, КБ61а, КБ62, КБ62а, КБ63, КБ63а
Узлы 1, 2
Схемы установки строповочных петель. Узлы "А"/ "Г". Ключ для подбора строповочных петель
Выборка стали на колонны КБ1/ КБ14
Выборка стали на колонны КБ15/ КБ25
Выборка стали на колонны КБ26/ КБ35а
Выборка стали на колонны КБ36/ КБ47
Выборка стали на колонны КБ47а/ КБ56б
Выборка стали на колонны КБ56в/ КБ63б
Разработан: ЦНИИпромзданий
Харьковский Промстройниипроект
Утверждён:05.12.1978 Госстрой СССР (Государственный комитет Совета Министров СССР по делам строительства) (USSR Gosstroy 224)
Издан: ЦИТП Госстроя СССР (CITP, Gosstroy (USSR) 1979 г. )
Расположен в:Техническая документация Строительство Справочные документы Типовые строительные конструкции, изделия и узлы Общероссийский строительный каталог Строительные конструкции, изделия и узлы зданий и сооружений для всех видов строительства Конструкции, изделия и узлы зданий Ограждающие конструкции Перегородки
Чем заменён:
Нормативные ссылки:
Серия 1.431-20Серия 1.431-20Серия 1.431-20Серия 1.431-20Серия 1.431-20Серия 1.431-20Серия 1.431-20Серия 1.431-20Серия 1.431-20Серия 1.431-20Серия 1.431-20Серия 1.431-20Серия 1.431-20Серия 1.431-20Серия 1.431-20Серия 1.431-20Серия 1.431-20Серия 1.431-20Серия 1.431-20Серия 1.431-20Серия 1.431-20Серия 1.431-20Серия 1.431-20Серия 1.431-20Серия 1.431-20Серия 1.431-20Серия 1.431-20

© 2013 Ёшкин Кот :-) Карта сайта