| 
 | ||||||||||||||||||||||||||
| 
 Скачать Альбом РК 2201-82 Сборные железобетонные колодцы на подземных трубопроводах. Рабочие чертежиДата актуализации: 10.08.2017
 | 
| Обозначение: |  Альбом РК 2201-82 | 
| Обозначение англ: |  РК 2201-82 | 
| Статус: | не определен законодательством | 
| Название рус.: | Сборные железобетонные колодцы на подземных трубопроводах. Рабочие чертежи | 
| Дата добавления в базу: | 01.09.2013 | 
| Дата актуализации: | 05.05.2017 | 
| Дата введения: | 01.01.1982 | 
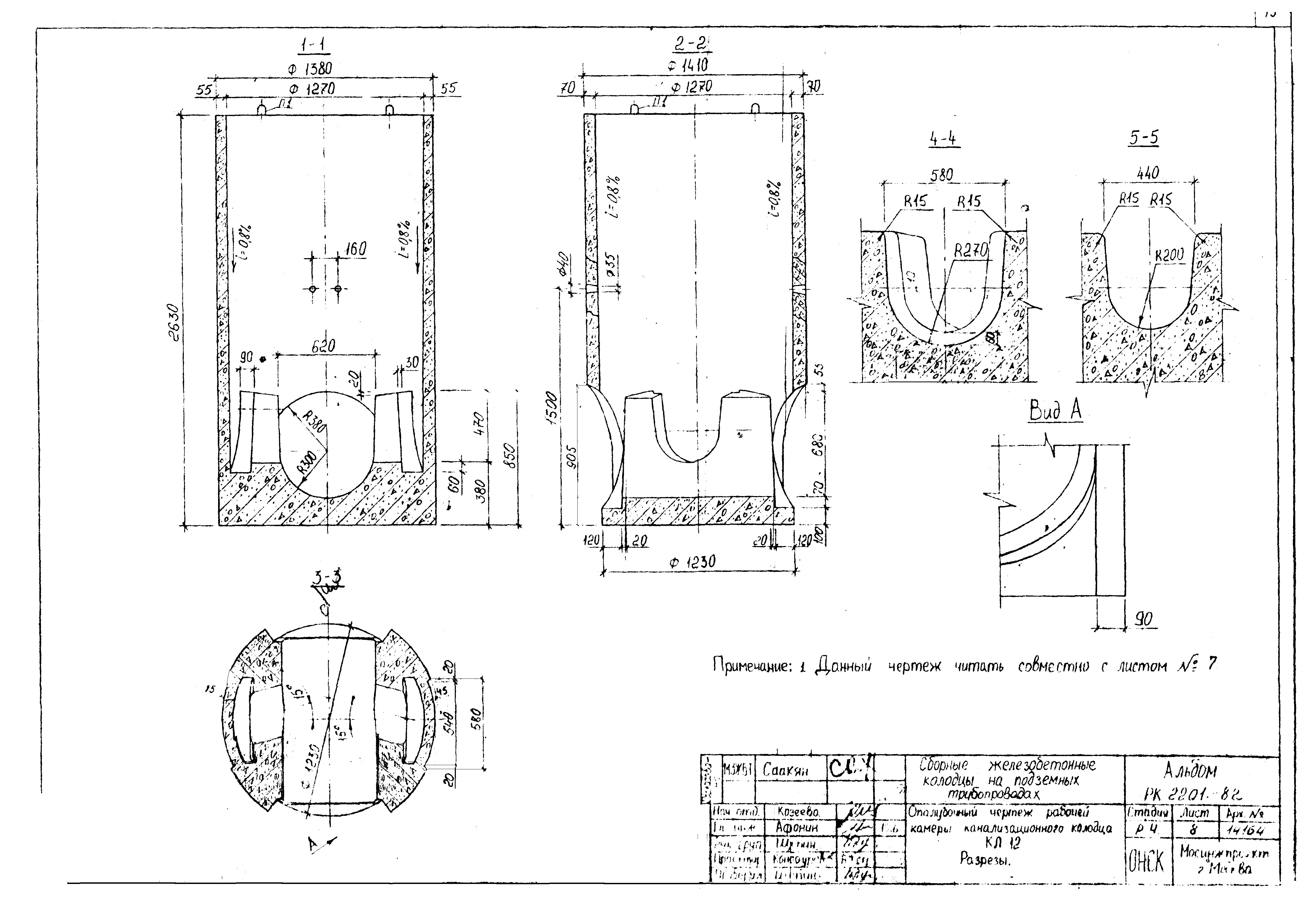
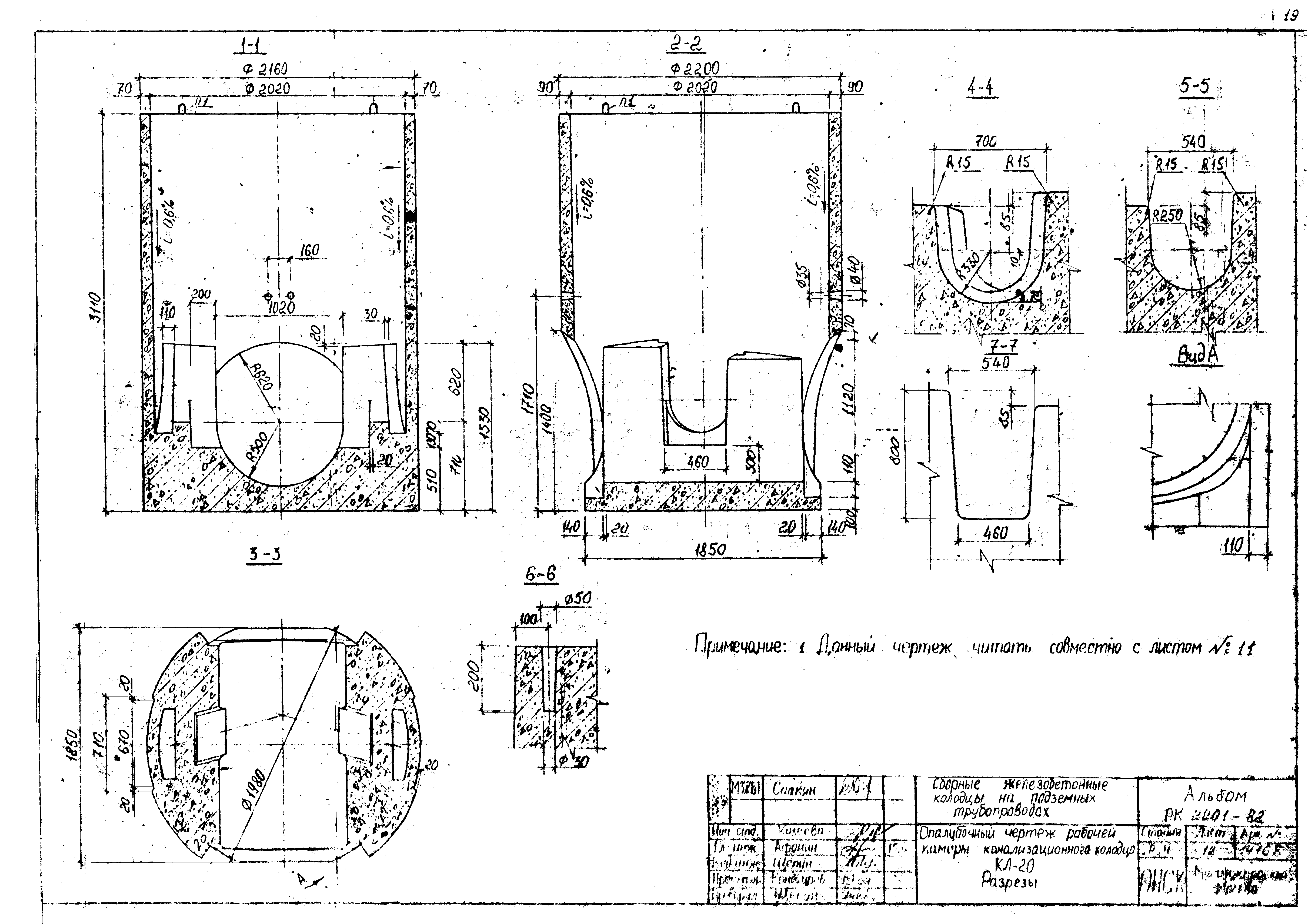
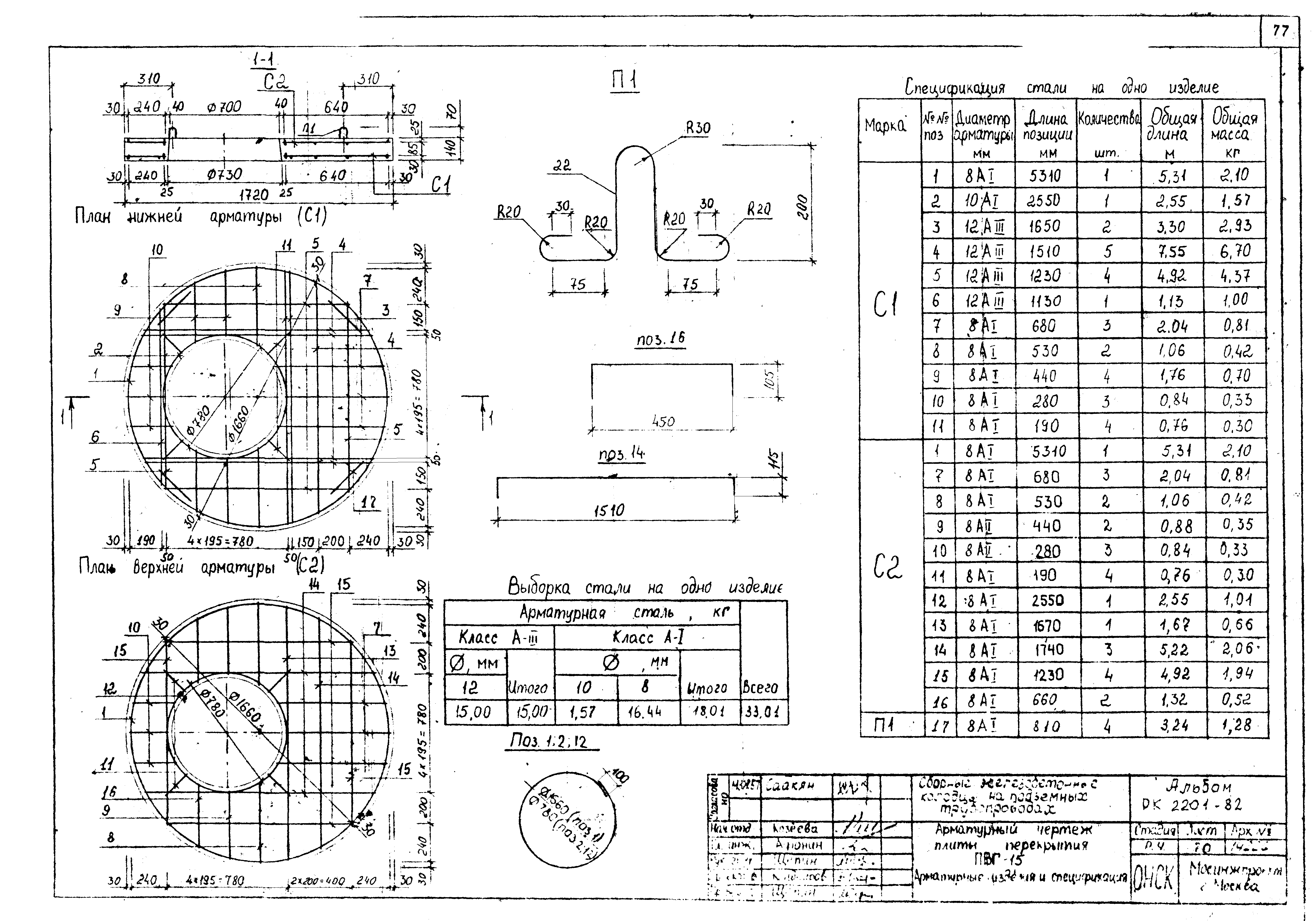
| Оглавление: | Пояснительная записка Характеристика изделий Опалубочный чертеж рабочей камеры канализационного колодца ДК-10. Общие виды Опалубочный чертеж рабочей камеры канализационного колодца ДК-10. Разрезы Опалубочный чертеж рабочей камеры канализационного колодца КЛ-10. Общие виды Опалубочный чертеж рабочей камеры канализационного колодца КЛ-10. Разрезы Опалубочный чертеж рабочей камеры канализационного колодца КЛ-12. Общие виды Опалубочный чертеж рабочей камеры канализационного колодца КЛ-12. Разрезы Опалубочный чертеж рабочей камеры канализационного колодца КЛ-15. Общие виды Опалубочный чертеж рабочей камеры канализационного колодца КЛ-15. Разрезы Опалубочный чертеж рабочей камеры канализационного колодца КЛ-20. Общие виды Опалубочный чертеж рабочей камеры канализационного колодца КЛ-20. Разрезы Опалубочный чертеж рабочей камеры водоприемного колодца ВД-8. Общие виды Опалубочный чертеж рабочей камеры водоприемного колодца ВД-8. Разрезы Опалубочный чертеж плиты перекрытия ПВК-8 Опалубочный чертеж рабочей камеры водосточного колодца ВС-10. Общие виды Опалубочный чертеж рабочей камеры водосточного колодца ВС-10. Разрезы Опалубочный чертеж рабочей камеры водосточного колодца ВС-12. Общие виды Опалубочный чертеж рабочей камеры водосточного колодца ВС-12. Разрезы Опалубочный чертеж рабочей камеры водосточного колодца ВС-15. Общие виды Опалубочный чертеж рабочей камеры водосточного колодца ВС-15. Разрезы Опалубочный чертеж рабочей камеры водопроводного и газового колодца ВГ-12. Общие виды Опалубочный чертеж рабочей камеры водопроводного и газового колодца ВГ-12. Разрезы Опалубочный чертеж рабочей камеры водопроводного и газового колодца ВГ-15. Общие виды Опалубочный чертеж рабочей камеры водопроводного и газового колодца ВГ-15. Разрезы Опалубочный чертеж рабочей камеры водопроводного и газового колодца ВГ-20. Общие виды Опалубочный чертеж рабочей камеры водопроводного и газового колодца ВГ-20. Разрезы Опалубочный чертеж рабочей камеры водопроводного и газового колодца ВГ-25. Общие виды Опалубочный чертеж рабочей камеры водопроводного и газового колодца ВГ-25. Разрезы Опалубочный чертеж плит перекрытия ПК-10, ПК-12,ПК-15,ПК-20, ПК-25 Опалубочный чертеж плит перекрытия ПВГ-15, ПВГ-20, ПВГ-25, ПК-15-10, ПК-20-10, ПК-25-15 Опалубочный чертеж колец горловин К-7-1,5; К-7-5; К-7-10; К-10-5; К-12-5; К-15-5; К-20-5; К-10-10; К-12-10; К-15-10 Опорное кольцо К-1 Опалубочный чертеж опорной плиты ОП-7 Опалубочный чертеж поворотного кольца ПК-7С Арматурный чертеж рабочей камеры канализационного колодца ДК-10. Разрезы Арматурный чертеж рабочей камеры канализационного колодца ДК-10. Арматурные изделия и спецификация Арматурный чертеж рабочей камеры канализационного колодца КЛ-10. Разрезы Арматурный чертеж рабочей камеры канализационного колодца КЛ-10. Арматурные изделия и спецификация Арматурный чертеж рабочей камеры канализационного колодца КЛ-12. Разрезы Арматурный чертеж рабочей камеры канализационного колодца КЛ-12. Арматурные изделия и спецификация Арматурный чертеж рабочей камеры канализационного колодца КЛ-15. Разрезы Арматурный чертеж рабочей камеры канализационного колодца КЛ-15. Арматурные изделия и спецификация Арматурный чертеж рабочей камеры канализационного колодца КЛ-20. Разрезы Арматурный чертеж рабочей камеры канализационного колодца КЛ-20. Арматурные изделия и спецификация Арматурный чертеж рабочей камеры водоприемного колодца ВД-8. Разрезы Арматурный чертеж рабочей камеры водоприемного колодца ВД-8. Арматурные изделия и спецификация Арматурный чертеж плиты перекрытия ПВК-8 для водоприемного колодца Арматурный чертеж рабочей камеры водосточного колодца ВС-10. Разрезы Арматурный чертеж рабочей камеры водосточного колодца ВС-10. Арматурные изделия и спецификация Арматурный чертеж рабочей камеры водосточного колодца ВС-10. Разрезы. Варианты Арматурный чертеж рабочей камеры водосточного колодца ВС-10. Арматурные изделия и спецификация Варианты Арматурный чертеж рабочей камеры водосточного колодца ВС-12. Разрезы Арматурный чертеж рабочей камеры водосточного колодца ВС-12. Арматурные изделия и спецификация Арматурный чертеж рабочей камеры водосточного колодца ВС-15. Разрезы Арматурный чертеж рабочей камеры водосточного колодца ВС-15. Арматурные изделия и спецификация Арматурный чертеж рабочей камеры водопроводного и газового колодца ВГ-12. Разрезы Арматурный чертеж рабочей камеры водопроводного и газового колодца ВГ-12. Арматурные изделия и спецификация Арматурный чертеж рабочей камеры водопроводного и газового колодца ВГ-15. Разрезы Арматурный чертеж рабочей камеры водопроводного и газового колодца ВГ-15. Арматурные изделия и спецификация Арматурный чертеж рабочей камеры водопроводного и газового колодца ВГ-20. Разрезы Арматурный чертеж рабочей камеры водопроводного и газового колодца ВГ-20. Арматурные изделия и спецификация Арматурный чертеж рабочей камеры водопроводного и газового колодца ВГ-25. Разрезы Арматурный чертеж рабочей камеры водопроводного и газового колодца ВГ-25. Арматурные изделия и спецификация Арматурный чертеж плиты перекрытия ПК-10 Арматурный чертеж плиты перекрытия ПК-12 Арматурный чертеж плиты перекрытия ПК-15 Арматурный чертеж плиты перекрытия ПК-20 Арматурный чертеж плиты перекрытия ПК-25 Арматурный чертеж плиты перекрытия ПВГ-15 Арматурный чертеж плиты перекрытия ПВГ-20 Арматурный чертеж плиты перекрытия ПВГ-25 Арматурный чертеж плиты перекрытия ПК-15-10 Арматурный чертеж плиты перекрытия ПК-20-10 Арматурный чертеж плиты перекрытия ПК-25-10 Арматурный чертеж колец горловин К-7-1,5; К-7-5; К-7-10; К-10-5; К-12-5; К-15-5; К-20-5; К-10-10; К-12-10; К-15-10 Арматурный чертеж опорной плиты ОП-7 Арматурный чертеж поворотного кольца ПК-7 | 
| Разработан: | Мосинжпроект | 
| Утверждён: | 01.01.1982 Мосинжпроект (Mosinzhproject ) | 
| Расположен в: | 




















































































