Информационная система
«Ёшкин Кот»

Скачать базу одним архивом
Скачать обновления
История создания базы
Карта сайта

Скачать ГОСТ Р 53256-2009 Техника пожарная. Аппараты дыхательные со сжатым кислородом с замкнутым циклом дыхания. Общие технические требования. Методы испытаний

Дата актуализации: 10.08.2017

ГОСТ Р 53256-2009

Техника пожарная. Аппараты дыхательные со сжатым кислородом с замкнутым циклом дыхания. Общие технические требования. Методы испытаний

Обозначение: ГОСТ Р 53256-2009
Обозначение англ: GOST R 53256-2009
Статус:введен впервые
Название рус.:Техника пожарная. Аппараты дыхательные со сжатым кислородом с замкнутым циклом дыхания. Общие технические требования. Методы испытаний
Название англ.:Eire equipment. Self-contained closed-circuit breathing apparatus with compressed oxygen. General technical requirements. Test methods
Дата добавления в базу:01.09.2013
Дата актуализации:05.05.2017
Дата введения:01.05.2009
Область применения:Стандарт распространяется на аппараты дыхательные со сжатым кислородом с замкнутым циклом дыхания для защиты органов дыхания и зрения пожарных от вредного воздействия непригодной для дыхания токсичной и задымленной газовой среды при тушении пожаров в зданиях, сооружениях и на производственных объектах различного назначения.
Оглавление:1 Область применения
2 Нормативные ссылки
3 Термины, определения и сокращения
4 Классификация
5 Общие технические требования
   5.1 Требования назначения
   5.2 Требования надежности
   5.3 Требования стойкости к внешним воздействиям
   5.4 Требования к органам управления
   5.5 Требования к баллонам
   5.6 Требования к вентилю баллона
   5.7 Требования к устройству (прибору) контроля давления кислорода в баллоне
   5.8 Требования к сигнальному устройству
   5.9 Требования к корпусу аппарата
   5.10 Требования к подвесной и амортизирующей системам
   5.11 Требования к лицевой части
   5.12 Требования к редуктору
   5.13 Требования к кислородоподающей и воздуховодной системам
   5.14 Требования к поглотительному патрону
   5.15 Требования к материалам
   5.16 Требования к комплектности
   5.17 Требования к маркировке
   5.18 Требования к содержанию эксплуатационной документации на аппарат
   5.19 Требования к упаковке
6 Требования безопасности
7 Правила приемки
   7.1 Стадии и этапы разработки и приемки
   7.2 Виды испытаний
      7.2.1 Предварительные испытания
      7.2.2 Приемочные испытания
      7.2.3 Квалификационные испытания
      7.2.4 Приемосдаточные испытания
      7.2.5 Периодические испытания
      7.2.6 Типовые испытания
8 Методы испытаний
   8.1 Проверка нормативно-технической документации на аппарат
   8.2 Проверка внешнего вида, комплектности и маркировки аппарата
   8.3 Проверка массы аппарата
   8.4 Проверка усилия срабатывания органов
   8.5 Проверка герметичности и износостойкости вентиля баллона
   8.6 Проверка работы сигнального устройства
      8.6.1 Проверка работы сигнального устройства аппарата при закрытом вентиле баллона
      8.6.2 Проверка давления кислорода, при котором срабатывает сигнальное устройство, и уровень звукового давления
   8.7 Проверка давления срабатывания легочного автомата
   8.8 Проверка расхода кислорода при работе устройства дополнительной подачи кислорода
   8.9 Проверка величины постоянной подачи
   8.10 Проверка герметичности воздуховодной системы аппарата
   8.11 Проверка срабатывания избыточного клапана
   8.12 Определение объема дыхательного мешка
   8.13 Испытания на стойкость аппарата к механическим и климатическим воздействиям
      8.13.1 Проверка сохранения работоспособности аппарата после вибронагрузки
      8.13.2 Проверка сохранения работоспособности аппарата после его падения
      8.13.3 Проверка сохранения работоспособности аппарата после воздействия на него климатических факторов
   8.14 Проверка сохранения работоспособности аппарата после пребывания в среде с температурой 200 °С
   8.15 Проверка устойчивости аппарата к воздействию открытого пламени с температурой (800 ± 50) °С
   8.16 Проверка устойчивости лицевой части, гофрированных шлангов, клапанной (соединительной коробки) аппарата к воздействию теплового потока плотностью (8,5 ± 0,5) кВт/м2
   8.17 Проверка поверхностного сопротивления корпуса аппарата
   8.18 Проверка устойчивости составных частей аппарата к воздействию дезинфицирующих растворов
   8.19 Проверка работоспособности аппарата при испытании на стенде-имитаторе внешнего дыхания человека
   8.20 Испытания аппарата с участием испытателей-добровольцев
      8.20.1 Испытания в эргометрическом зале, климатической камере
      8.20.2 Испытания в теплодымокамере и на свежем воздухе
      8.20.3 Определение коэффициента подсоса масляного тумана в подмасочное пространство лицевой части аппарата
   8.21 Испытания на надежность
Приложение А Методика испытаний по определению устойчивости аппарата дыхательного к воздействию открытого пламени с температурой (800 ± 50) °С на стенде «Термоманекен»
Приложение Б Метод испытаний по определению поверхностного сопротивления корпуса аппарата
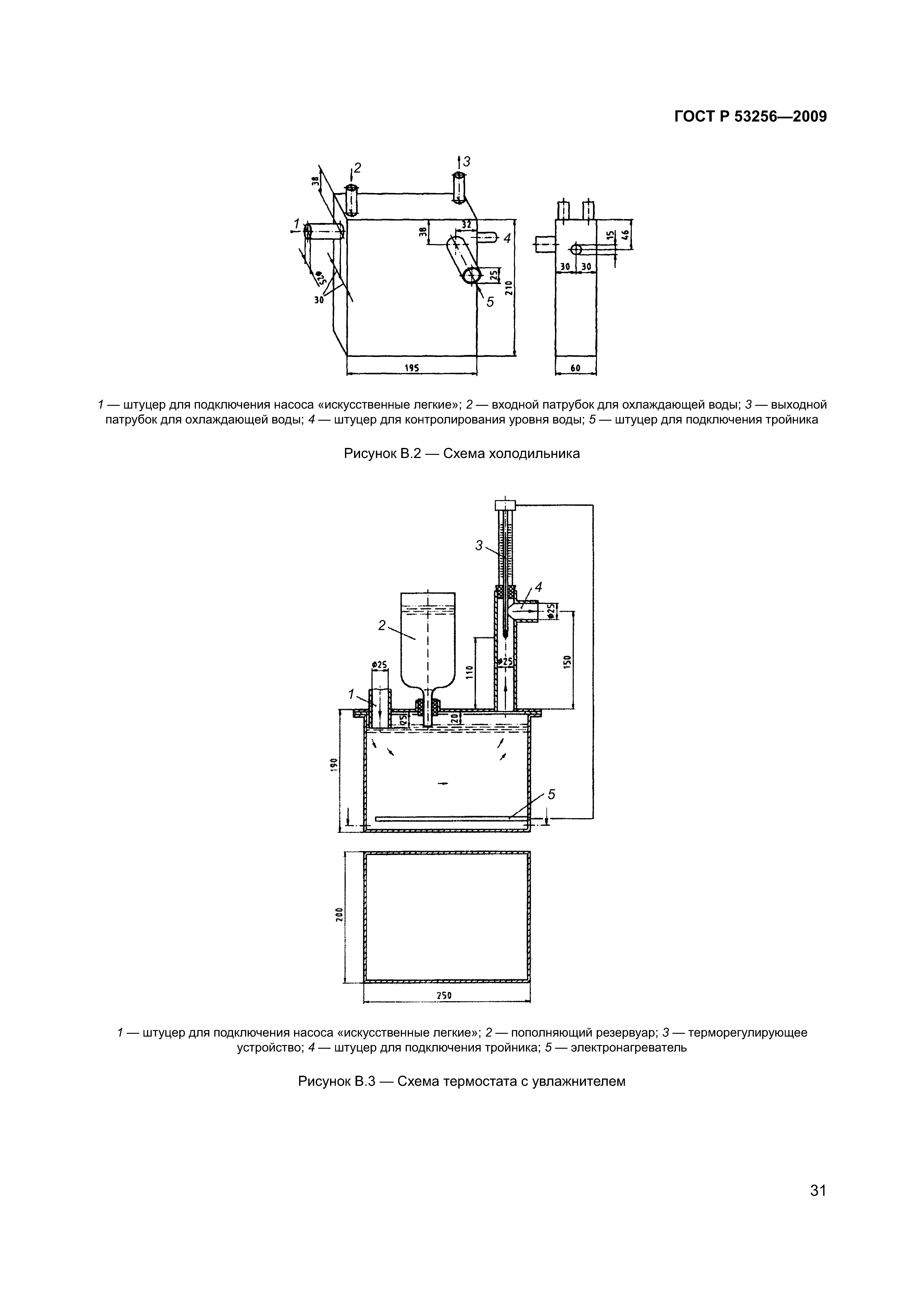
Приложение В Описание стенда-имитатора внешнего дыхания человека
Приложение Г Протокол испытаний дыхательного аппарата на стенде-имитаторе внешнего дыхания человека
Приложение Д Протокол лабораторных испытаний дыхательного аппарата с участием испытателей-добровольцев
Разработан: ФГУ ВНИИПО МЧС России
Утверждён:18.02.2009 Федеральное агентство по техническому регулированию и метрологии (27-ст)
Издан: Стандартинформ (2009 г. )
Расположен в:Техническая документация Электроэнергия ОХРАНА ОКРУЖАЮЩЕЙ СРЕДЫ, ЗАЩИТА ЧЕЛОВЕКА ОТ ВОЗДЕЙСТВИЯ ОКРУЖАЮЩЕЙ СРЕДЫ. БЕЗОПАСНОСТЬ Защитные средства Устройства для защиты органов дыхания Экология ОХРАНА ОКРУЖАЮЩЕЙ СРЕДЫ, ЗАЩИТА ЧЕЛОВЕКА ОТ ВОЗДЕЙСТВИЯ ОКРУЖАЮЩЕЙ СРЕДЫ. БЕЗОПАСНОСТЬ Защитные средства Устройства для защиты органов дыхания
Нормативные ссылки:
ГОСТ Р 53256-2009ГОСТ Р 53256-2009ГОСТ Р 53256-2009ГОСТ Р 53256-2009ГОСТ Р 53256-2009ГОСТ Р 53256-2009ГОСТ Р 53256-2009ГОСТ Р 53256-2009ГОСТ Р 53256-2009ГОСТ Р 53256-2009ГОСТ Р 53256-2009ГОСТ Р 53256-2009ГОСТ Р 53256-2009ГОСТ Р 53256-2009ГОСТ Р 53256-2009ГОСТ Р 53256-2009ГОСТ Р 53256-2009ГОСТ Р 53256-2009ГОСТ Р 53256-2009ГОСТ Р 53256-2009ГОСТ Р 53256-2009ГОСТ Р 53256-2009ГОСТ Р 53256-2009ГОСТ Р 53256-2009ГОСТ Р 53256-2009ГОСТ Р 53256-2009ГОСТ Р 53256-2009ГОСТ Р 53256-2009ГОСТ Р 53256-2009ГОСТ Р 53256-2009ГОСТ Р 53256-2009ГОСТ Р 53256-2009ГОСТ Р 53256-2009ГОСТ Р 53256-2009ГОСТ Р 53256-2009ГОСТ Р 53256-2009ГОСТ Р 53256-2009ГОСТ Р 53256-2009ГОСТ Р 53256-2009ГОСТ Р 53256-2009

© 2013 Ёшкин Кот :-) Карта сайта