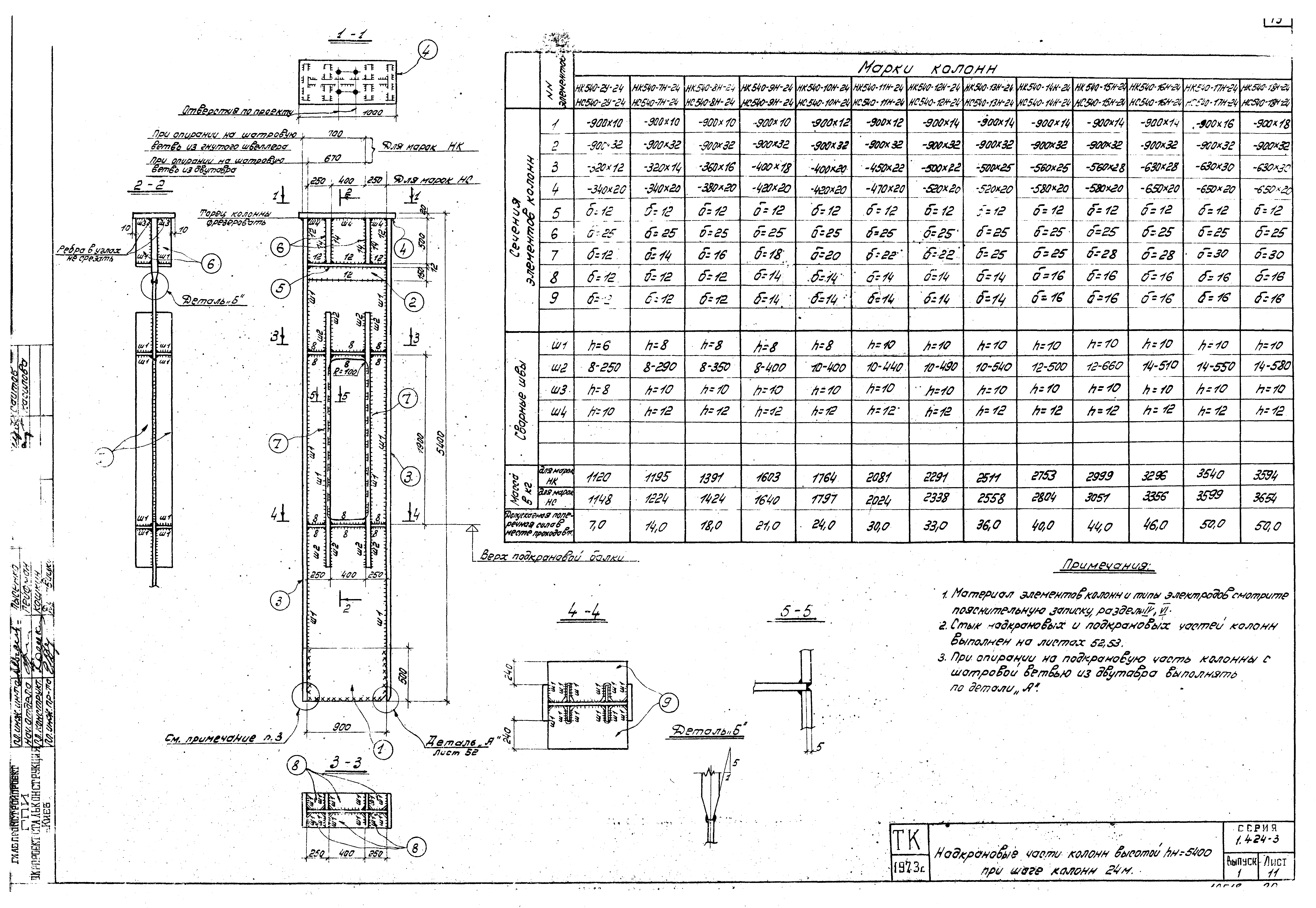
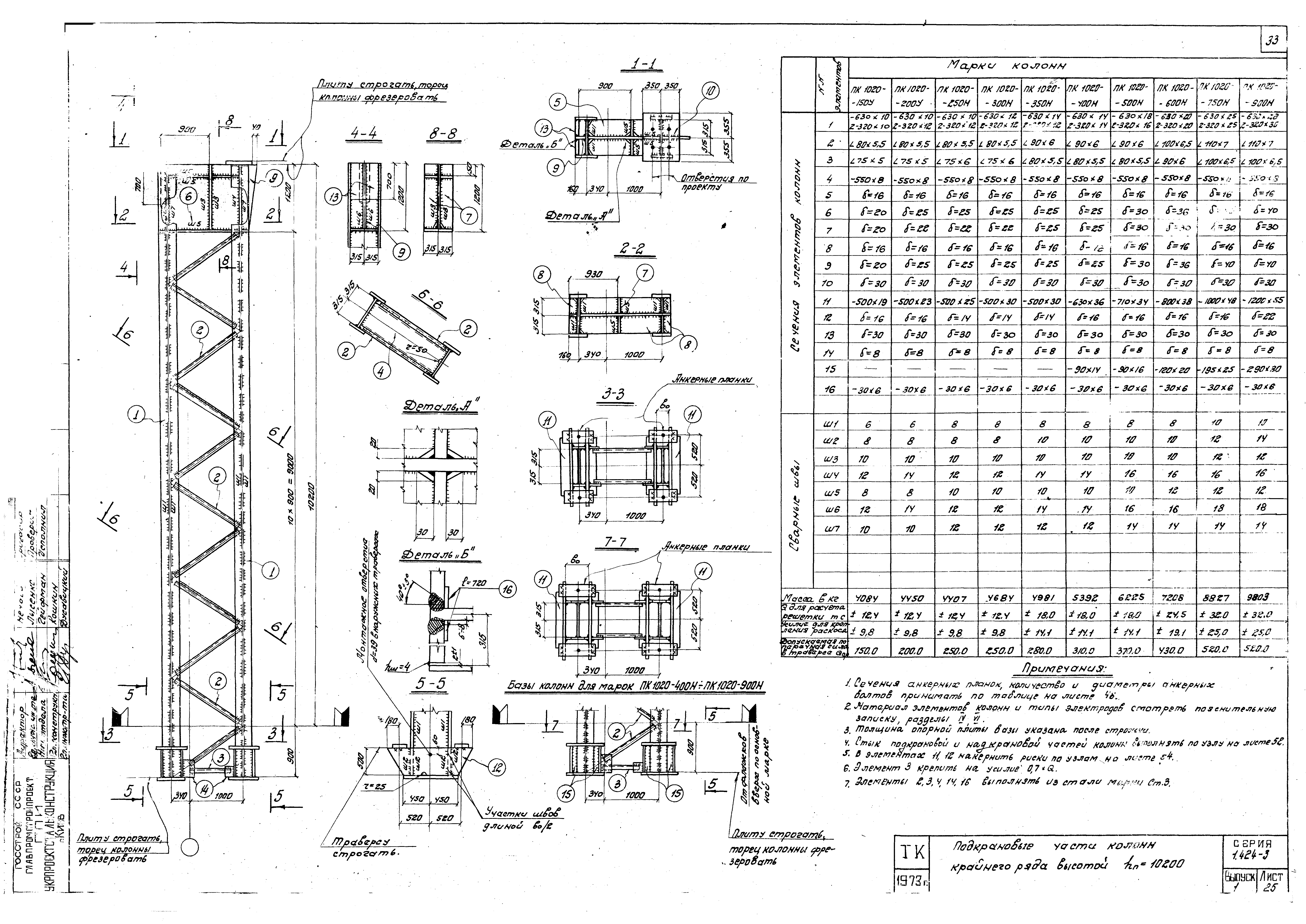
Скачать Серия 1.424-3 Выпуск 1. Стальные колонны в виде законченных заводских марок для одноэтажных производственных зданий с легкой кровлей, оборудованных мостовыми электрическими кранами специального назначения, для объектов черной металлургии: прокатные и трубопроводные цехи. Чертежи КМДата актуализации: 10.08.2017 Серия 1.424-3
Выпуск 1. Стальные колонны в виде законченных заводских марок для одноэтажных производственных зданий с легкой кровлей, оборудованных мостовыми электрическими кранами специального назначения, для объектов черной металлургии: прокатные и трубопроводные цехи. Чертежи КМ| Обозначение: | Серия 1.424-3 | | Обозначение англ: | Series 1.424-3 | | Статус: | заменен | | Название рус.: | Выпуск 1. Стальные колонны в виде законченных заводских марок для одноэтажных производственных зданий с легкой кровлей, оборудованных мостовыми электрическими кранами специального назначения, для объектов черной металлургии: прокатные и трубопроводные цехи. Чертежи КМ | | Дата добавления в базу: | 01.09.2013 | | Дата актуализации: | 05.05.2017 | | Дата введения: | 01.11.1989 | | Разработан: | ЦНИИпроектстальконструкция Гипромез Минметаллургии СССР Укрпроектстальконструкция
| | Утверждён: | 10.05.1973 Госстрой СССР (Государственный комитет Совета Министров СССР по делам строительства) (USSR Gosstroy )
| | Расположен в: |
| | Чем заменён: | |
                                                                                             
|