Обозначение: | Серия 1.432-14 |
Обозначение англ: | Series 1.432-14 |
Статус: | заменен |
Название рус.: | Выпуск 1. Стеновые панели. Рабочие чертежи |
Дата добавления в базу: | 01.09.2013 |
Дата актуализации: | 05.05.2017 |
Дата введения: | 01.03.1982 |
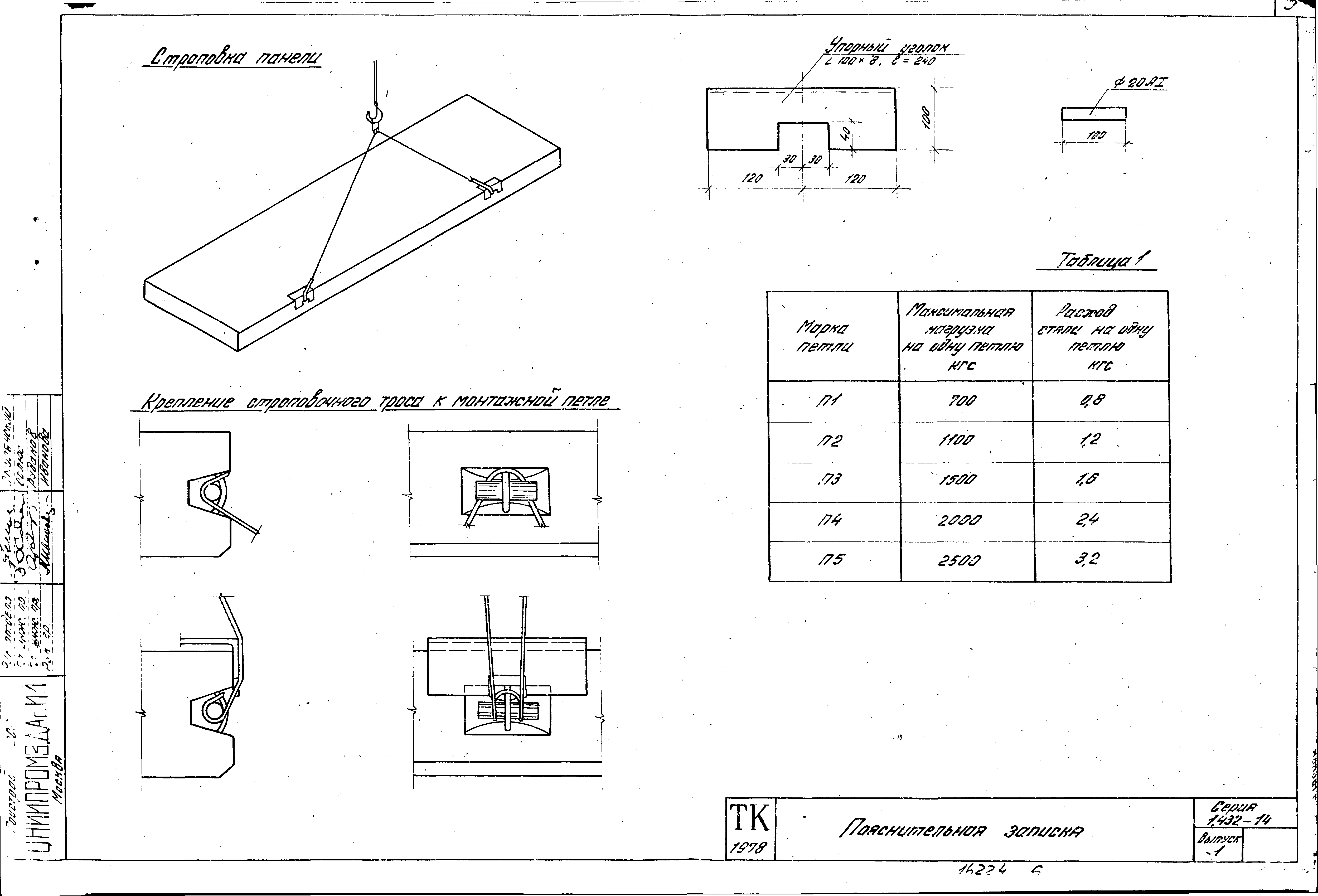
Область применения: | Настоящий выпуск содержит рабочие чертежи однослойных стеновых панелей для отапливаемых производственных зданий |
Оглавление: | Содержание Пояснительная записка Опалубка и армирование рядовых панелей Опалубка и армирование рядовых панелей для углов и температурных швов Опалубка и армирование рядовых панелей-перемычек при ленточном остеклении и при простенках длинной 3 м Опалубка и армирование рядовых панелей-перемычек при ленточном остеклении и при простенках длинной 3 м для углов и температурных швов Опалубка и армирование рядовых панелей-перемычек при простенках длинной 1,5 м Опалубка и армирование рядовых панелей-перемычек при простенках длинной 1,5 м для углов и температурных швов Опалубка и армирование подкарнизных панелей Опалубка и армирование подкарнизных панелей-перемычек при ленточном остеклении и при простенках длинной 3 м Опалубка и армирование подкарнизных панелей-перемычек при простенках 1,5 м Опалубка и армирование парапетных панелей Опалубка и армирование парапетных панелей для углов и температурных швов Опалубка и армирование парапетных панелей-перемычек при ленточном остеклении и при простенках длинной 3 м Опалубка и армирование парапетных панелей-перемычек при ленточном остеклении и при простенках длинной 3 м для температурных швов Опалубка и армирование парапетных панелей-перемычек при простенках длинной 1,5 м Опалубка и армирование парапетных панелей-перемычек при простенках длинной 1,5 м для углов и температурных швов Опалубка и армирование рядовых панелей-перемычек длинной 3 м Опалубка и армирование панелей для простенков длинной 3 и 1,5 м при ширине проема 3 м Опалубка и армирование панелей для простенков при ширине проема 3 м Опалубка и армирование панелей для простенков при ширине проема 4,5 м Узел 1/ 7 |
Разработан: | ЦНИИпромзданий Уральский ПромстройНИИпроект НИИЖБ
|
Утверждён: | 28.06.1979 Госстрой СССР (Государственный комитет Совета Министров СССР по делам строительства) (USSR Gosstroy 104)
|
Издан: | ЦИТП Госстроя СССР (CITP, Gosstroy (USSR) 1979 г. )
|
Расположен в: |
|
Чем заменён: | |
Нормативные ссылки: | |