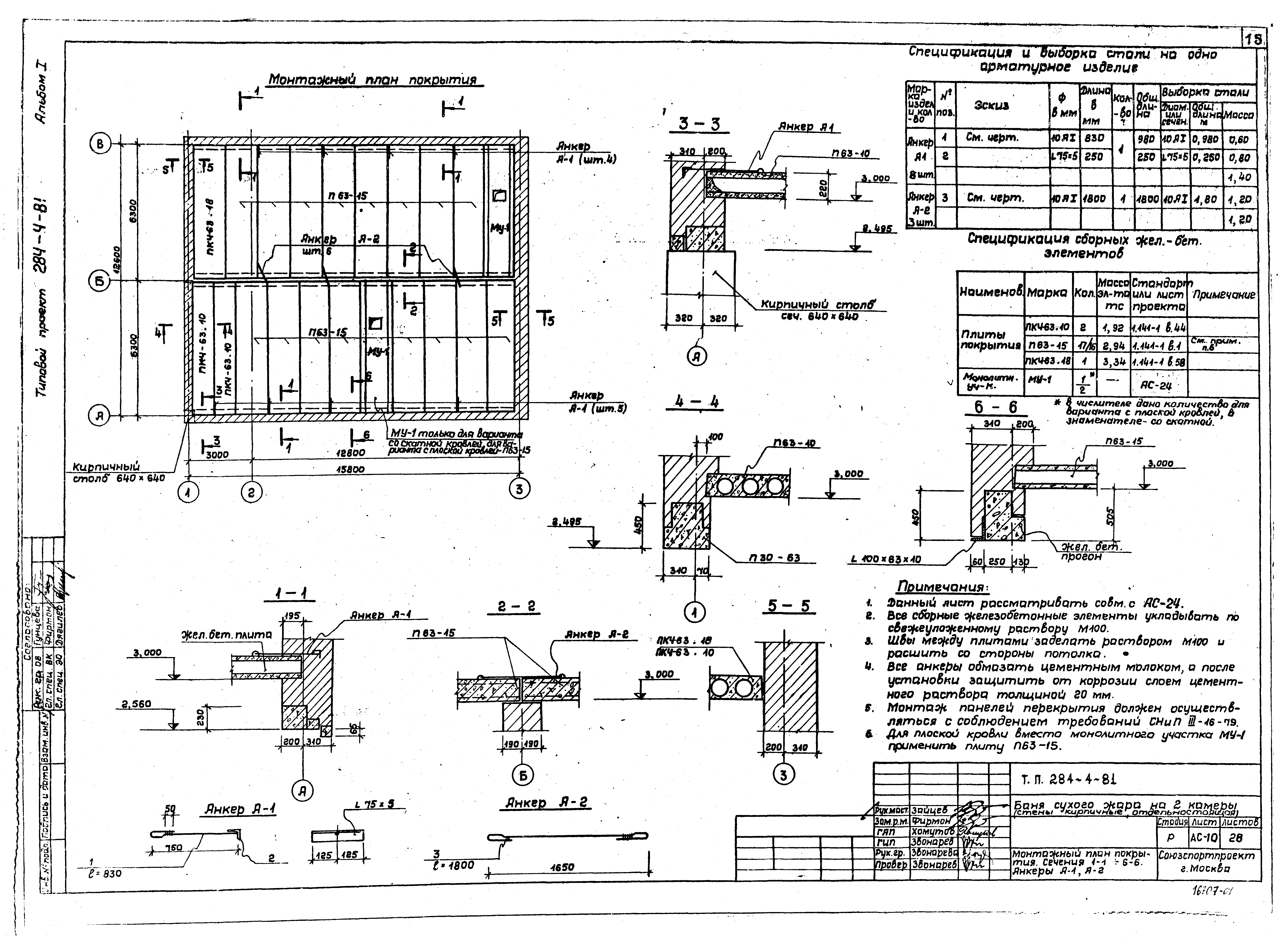
Скачать Типовой проект 284-4-81 Альбом I. Архитектурно-строительная, санитарно-техническая, электротехническая части и автоматикаДата актуализации: 10.08.2017 Типовой проект 284-4-81
Альбом I. Архитектурно-строительная, санитарно-техническая, электротехническая части и автоматикаОбозначение: | Типовой проект 284-4-81 | Обозначение англ: | 284-4-81 | Статус: | не определен законодательством | Название рус.: | Альбом I. Архитектурно-строительная, санитарно-техническая, электротехническая части и автоматика | Дата добавления в базу: | 01.09.2013 | Дата актуализации: | 05.05.2017 | Дата введения: | 09.01.1981 | Разработан: | Союзспортпроект Спорткомитета СССР
| Утверждён: | 27.11.1979 Госгражданстрой (Gosgrazhdanstroy 252)
| Расположен в: |
|
                                                          
|