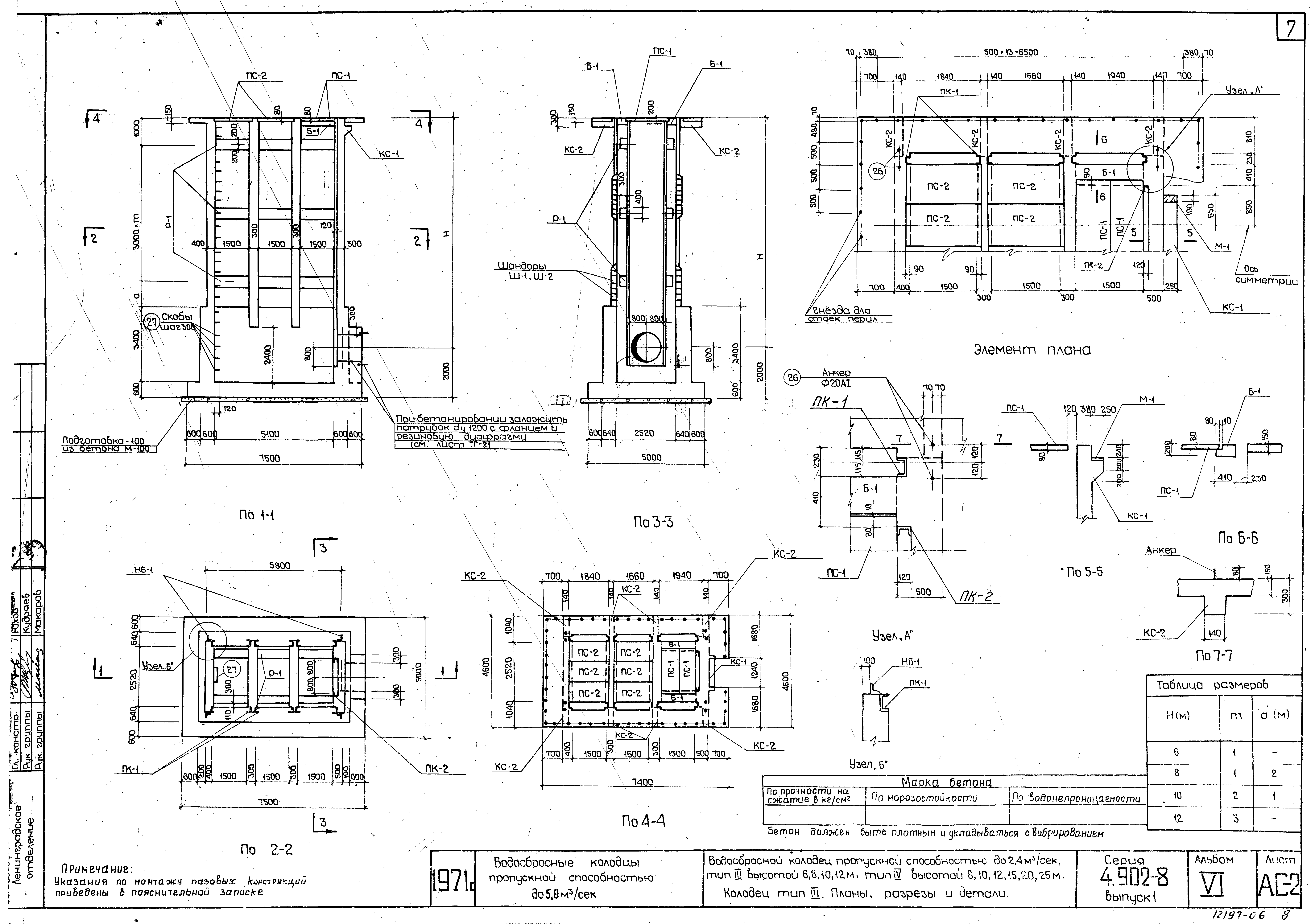
Скачать Серия 4.902-8 Альбом VI. Водосбросной колодец пропускной способностью до 2,4 куб. м/сек. Тип III высотой 6, 8, 10 и 12 м. Тип IV высотой 8, 10, 12, 15, 20 и 25 мДата актуализации: 10.08.2017 Серия 4.902-8
Альбом VI. Водосбросной колодец пропускной способностью до 2,4 куб. м/сек. Тип III высотой 6, 8, 10 и 12 м. Тип IV высотой 8, 10, 12, 15, 20 и 25 м| Обозначение: | Серия 4.902-8 | | Обозначение англ: | Series 4.902-8 | | Статус: | не действует | | Название рус.: | Альбом VI. Водосбросной колодец пропускной способностью до 2,4 куб. м/сек. Тип III высотой 6, 8, 10 и 12 м. Тип IV высотой 8, 10, 12, 15, 20 и 25 м | | Дата добавления в базу: | 01.09.2013 | | Дата актуализации: | 05.05.2017 | | Дата введения: | 15.08.1972 | | Дата окончания срока действия: | 01.02.1991 | | Разработан: | Союзводоканалпроект
| | Утверждён: | 28.06.1972 Главпромстройпроект Госстроя СССР (50)
| | Расположен в: |
|
                             
|