Информационная система
«Ёшкин Кот»

Скачать базу одним архивом
Скачать обновления
История создания базы
Карта сайта

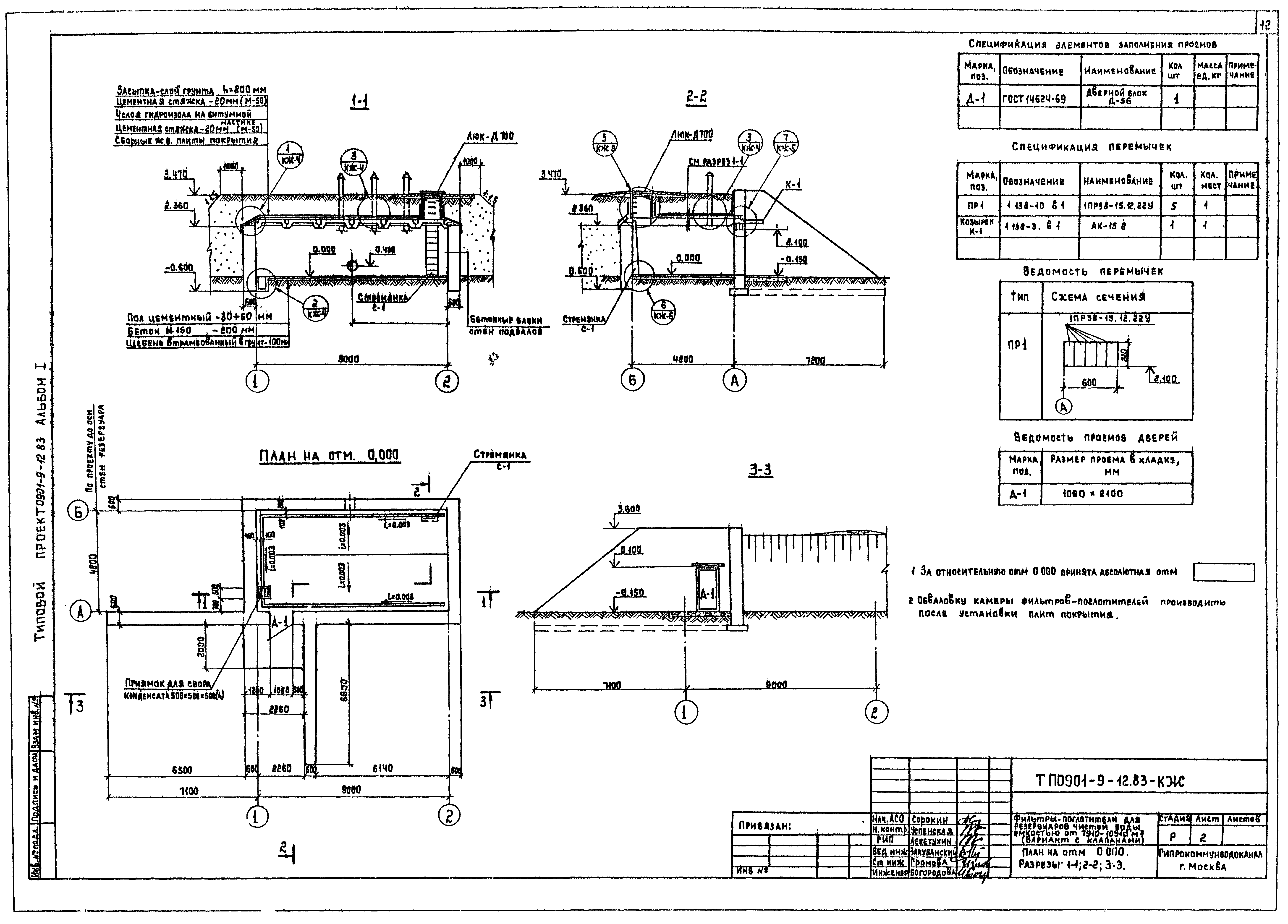
Скачать Типовой проект 0901-9-12.83 Альбом I. Общая пояснительная записка. Технологическая и строительная части

Дата актуализации: 10.08.2017

Типовой проект 0901-9-12.83

Альбом I. Общая пояснительная записка. Технологическая и строительная части

Обозначение: Типовой проект 0901-9-12.83
Обозначение англ: 0901-9-12.83
Статус:не действует
Название рус.:Альбом I. Общая пояснительная записка. Технологическая и строительная части
Дата добавления в базу:01.09.2013
Дата актуализации:05.05.2017
Область применения:Фильтры-поглотители предназначены для оборудования проектируемых и дооборудования существующих резервуаров питьевой воды
Оглавление:Содержание альбома
Технологическая часть
   Пояснительная записка
   Общие данные
   План 1-1. Разрезы 2-2; 3-3
   Спецификация
   План 1-1. Разрезы 2-2; 3-3
   Спецификация
Строительная часть
   Общие данные
   План. Разрезы
   Раскладка стеновых блоков по осям А; Б; 1; 2. Покрытие камеры
   Узлы 1 - 4
   Узлы 5 - 8
   Фильтры-поглотители ФП1; ФП1м
   Фильтры-поглотители ФП2к; ФП2б
   Ведомость расхода стали на элемент
Разработан: Гипрокоммунводоканал Минжилкомхоза РСФСР
Утверждён:02.11.1982 Минжилкомхоз РСФСР (Russian Federation Minzhilkomkhoz 18-ТД)
Расположен в:Техническая документация Строительство Справочные документы Типовые строительные конструкции, изделия и узлы Общероссийский строительный каталог Защитные сооружения гражданской обороны Конструкции и инженерное оборудование Фильтры-поглотители
Типовой проект 0901-9-12.83Типовой проект 0901-9-12.83Типовой проект 0901-9-12.83Типовой проект 0901-9-12.83Типовой проект 0901-9-12.83Типовой проект 0901-9-12.83Типовой проект 0901-9-12.83Типовой проект 0901-9-12.83Типовой проект 0901-9-12.83Типовой проект 0901-9-12.83Типовой проект 0901-9-12.83Типовой проект 0901-9-12.83Типовой проект 0901-9-12.83Типовой проект 0901-9-12.83Типовой проект 0901-9-12.83Типовой проект 0901-9-12.83Типовой проект 0901-9-12.83Типовой проект 0901-9-12.83

© 2013 Ёшкин Кот :-) Карта сайта