| ||||||||||||||||||||||||||||||
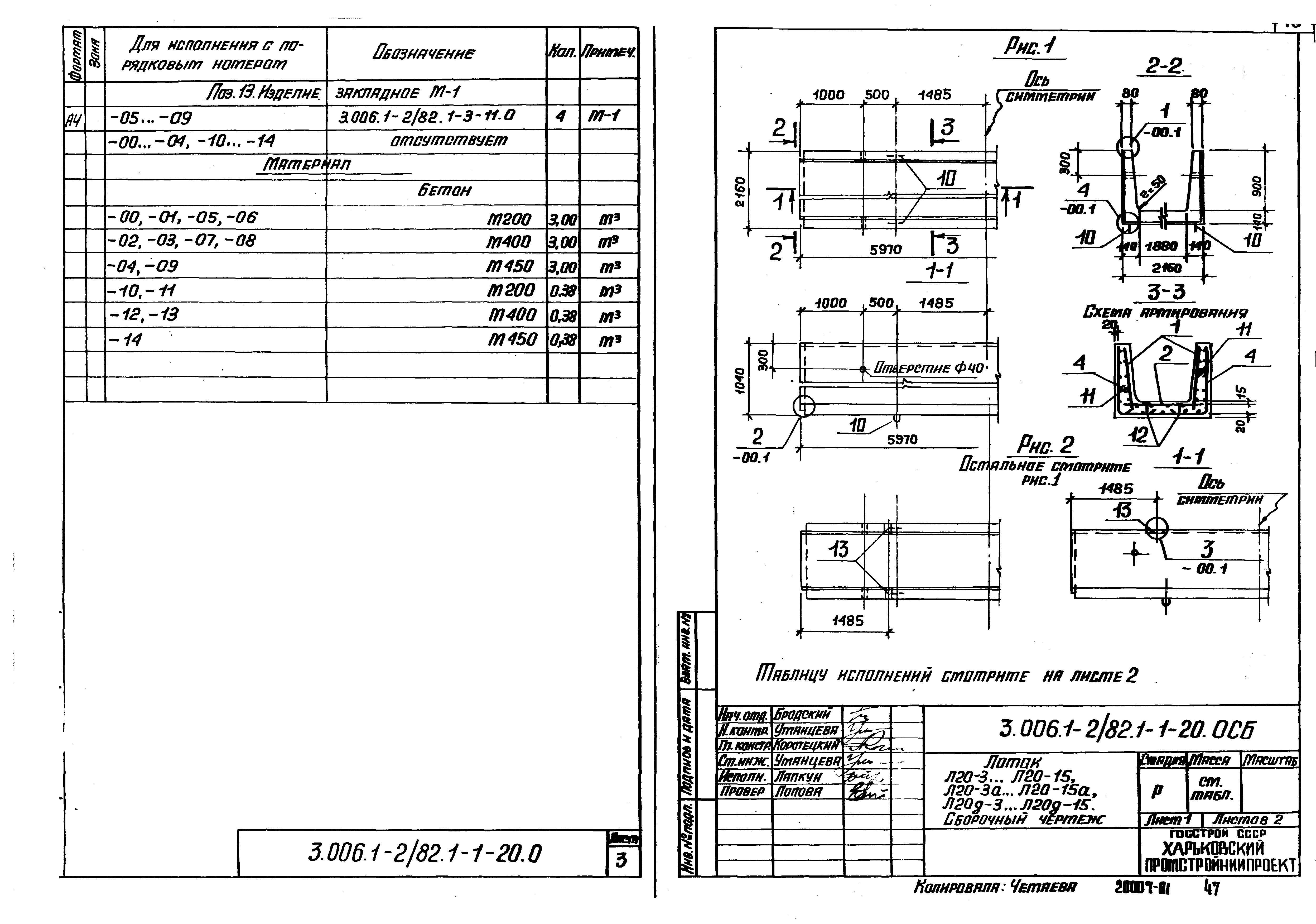
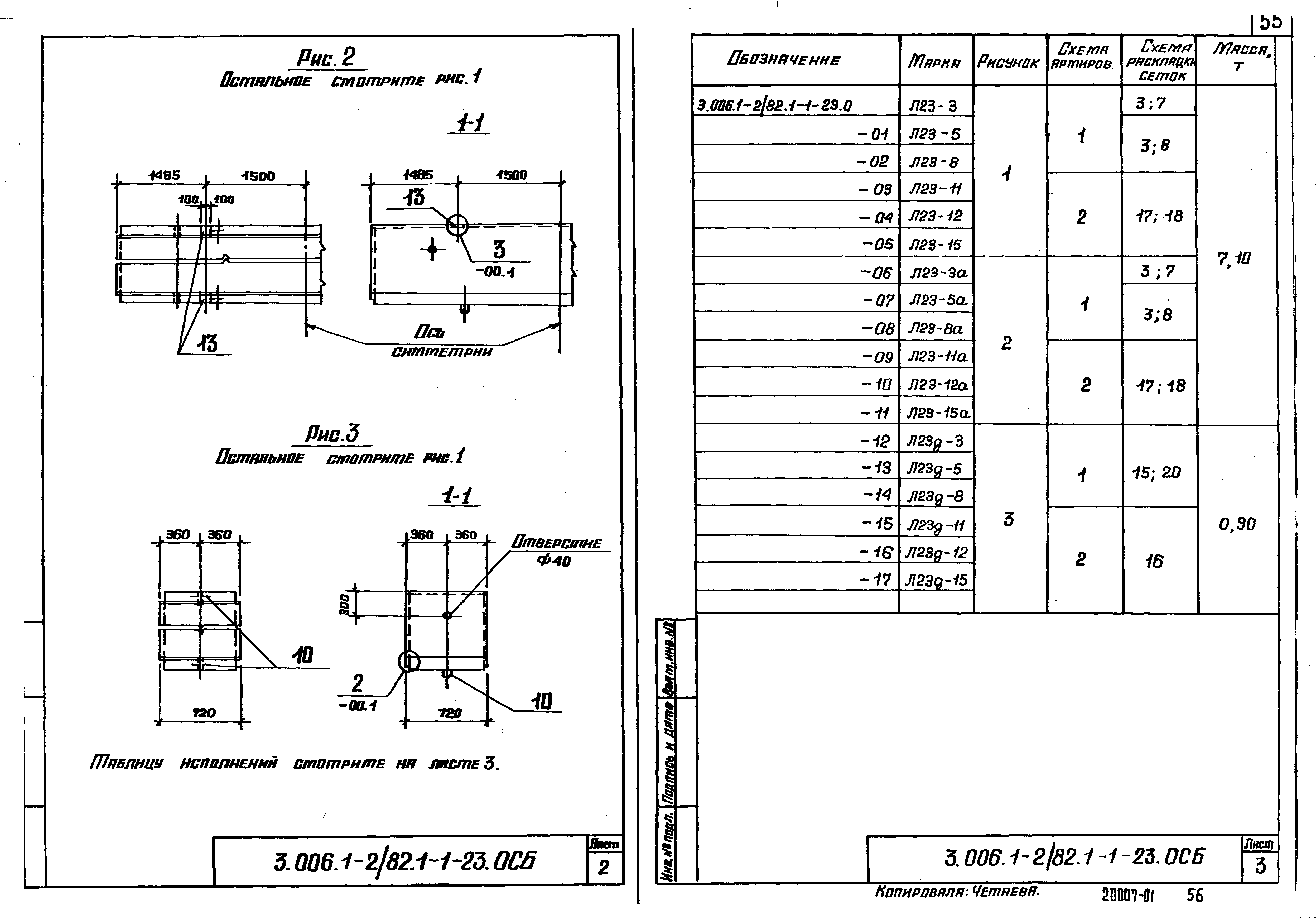
Скачать Серия 3.006.1-2/82 Выпуск 1-1. Лотки. Рабочие чертежиДата актуализации: 10.08.2017
|
| Обозначение: | Серия 3.006.1-2/82 |
| Обозначение англ: | Series 3.006.1-2/82 |
| Статус: | не действует |
| Название рус.: | Выпуск 1-1. Лотки. Рабочие чертежи |
| Дата добавления в базу: | 01.09.2013 |
| Дата актуализации: | 05.05.2017 |
| Дата введения: | 01.01.1985 |
| Дата окончания срока действия: | 01.05.1988 |
| Разработан: | НИИЖБ Госстроя СССР Харьковский Промстройниипроект |
| Утверждён: | 05.09.1984 Госстрой СССР (Государственный комитет Совета Министров СССР по делам строительства) (USSR Gosstroy 157) |
| Расположен в: | |
| Заменяет собой: | |
| Чем заменён: |
































































































































