Информационная система
«Ёшкин Кот»

Скачать базу одним архивом
Скачать обновления
История создания базы
Карта сайта

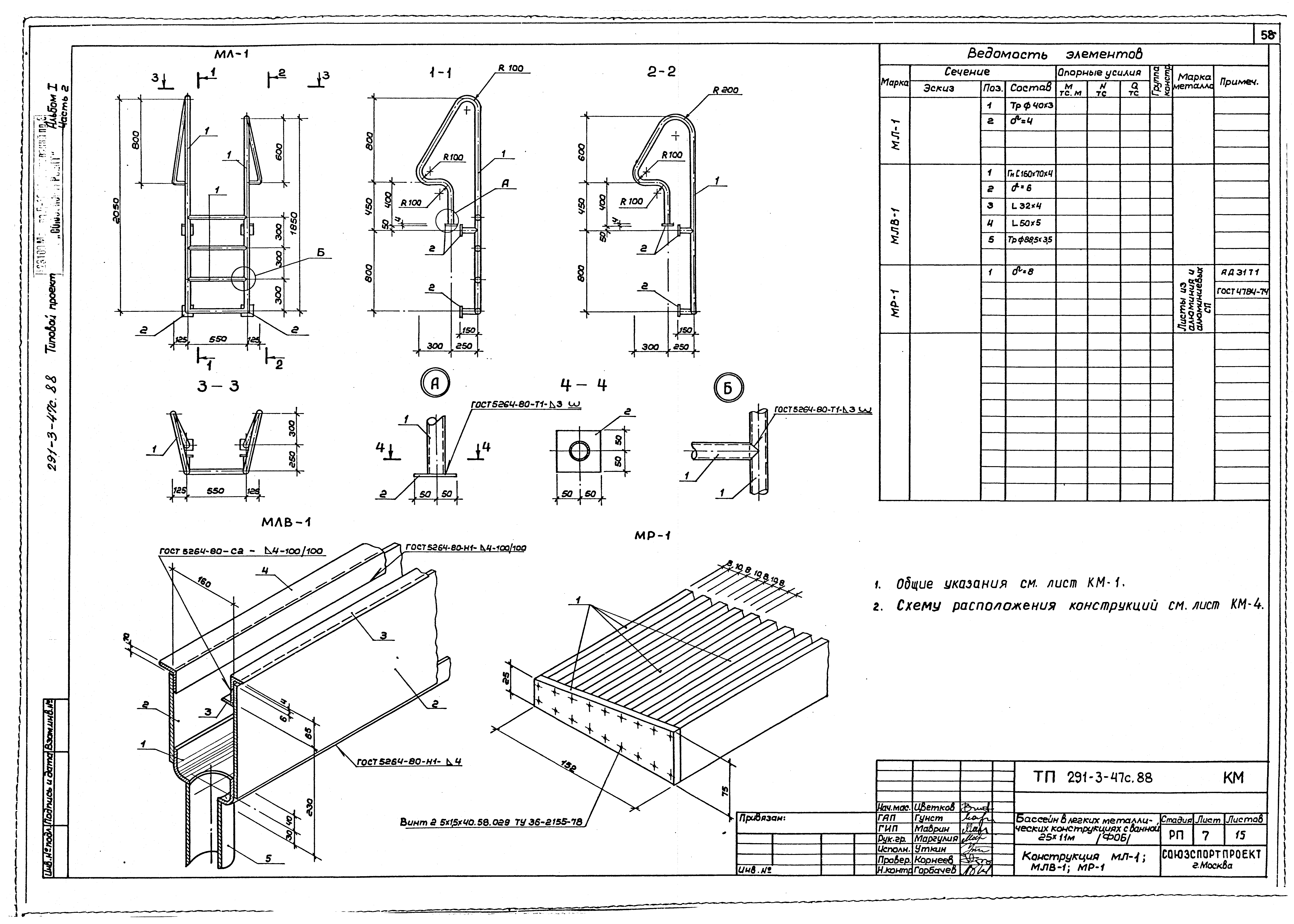
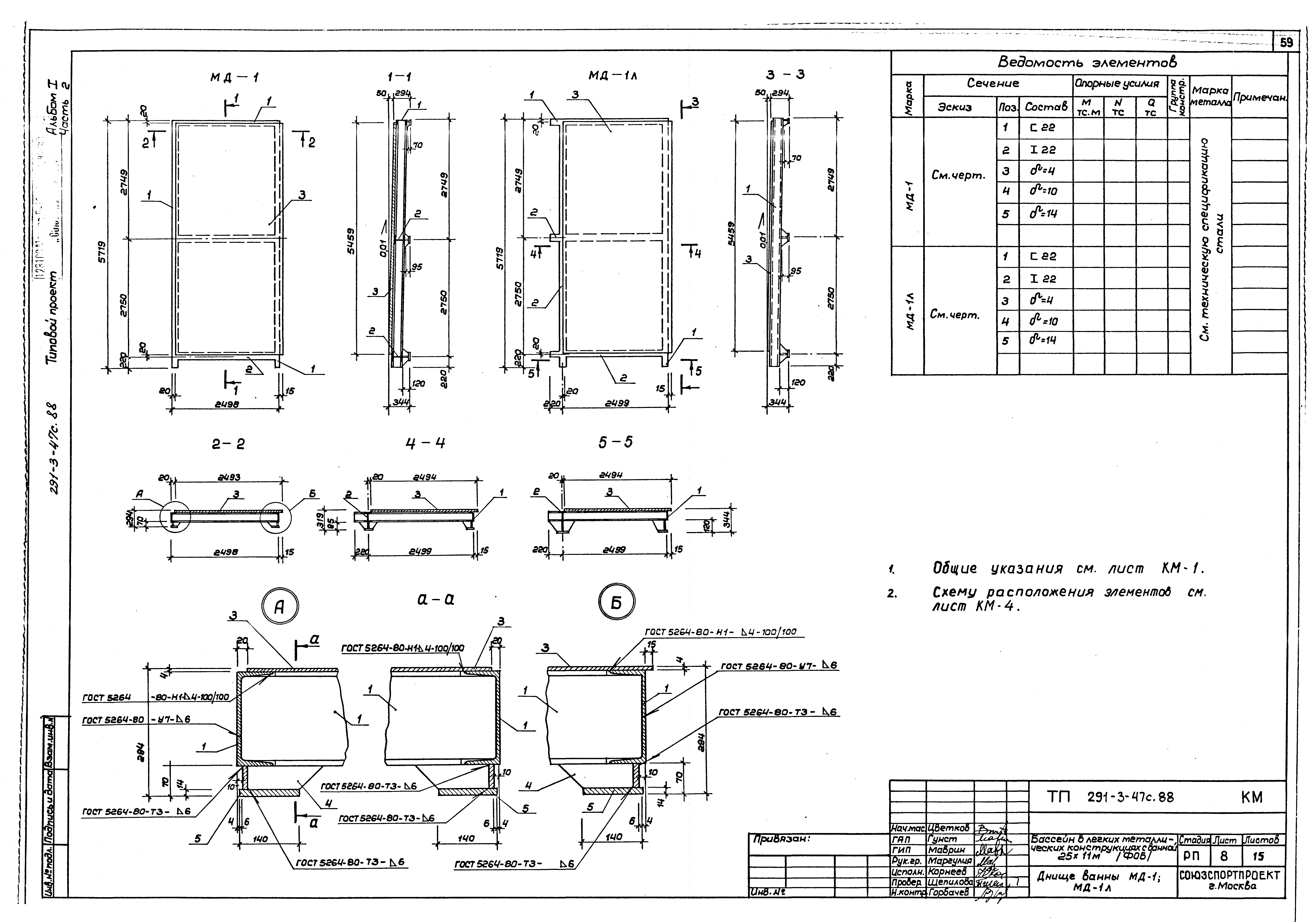
Скачать Типовой проект 291-3-47с.88 Альбом I. Часть 2. Конструкция металлической ванны

Дата актуализации: 10.08.2017

Типовой проект 291-3-47с.88

Альбом I. Часть 2. Конструкция металлической ванны

Обозначение: Типовой проект 291-3-47с.88
Обозначение англ: 291-3-47с.88
Статус:не определен законодательством
Название рус.:Альбом I. Часть 2. Конструкция металлической ванны
Дата добавления в базу:01.09.2013
Дата актуализации:05.05.2017
Дата введения:14.06.1988
Разработан: Союзспортпроект Спорткомитета СССР
Утверждён:03.11.1987 Госгражданстрой (Gosgrazhdanstroy 351)
Издан: ЦИТП Госстроя СССР (CITP, Gosstroy (USSR) 1988 г. )
Расположен в:Техническая документация Строительство Справочные документы Типовые строительные конструкции, изделия и узлы Общероссийский строительный каталог Общественные здания в городах и поселках городского типа Физкультурно-оздоровительные и спортивные здания и сооружения Сооружения для водных видов спорта
Типовой проект 291-3-47с.88Типовой проект 291-3-47с.88Типовой проект 291-3-47с.88Типовой проект 291-3-47с.88Типовой проект 291-3-47с.88Типовой проект 291-3-47с.88Типовой проект 291-3-47с.88Типовой проект 291-3-47с.88Типовой проект 291-3-47с.88Типовой проект 291-3-47с.88Типовой проект 291-3-47с.88Типовой проект 291-3-47с.88Типовой проект 291-3-47с.88Типовой проект 291-3-47с.88Типовой проект 291-3-47с.88Типовой проект 291-3-47с.88

© 2013 Ёшкин Кот :-) Карта сайта