Информационная система
«Ёшкин Кот»

Скачать базу одним архивом
Скачать обновления
История создания базы
Карта сайта

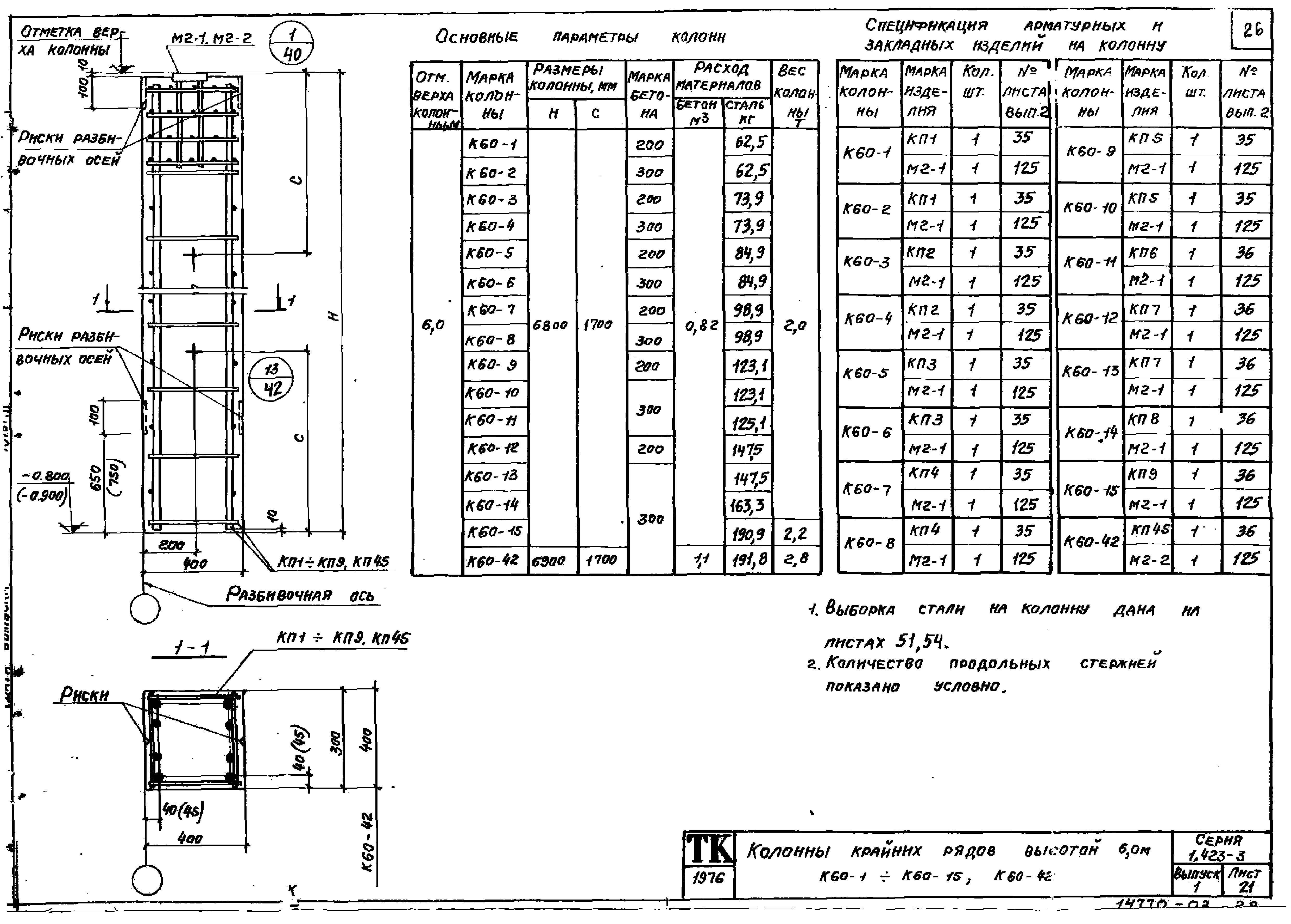
Скачать Серия 1.423-3 Выпуск 1. Рабочие чертежи колонн

Дата актуализации: 10.08.2017

Серия 1.423-3

Выпуск 1. Рабочие чертежи колонн

Обозначение: Серия 1.423-3
Обозначение англ: Series 1.423-3
Статус:заменен
Название рус.:Выпуск 1. Рабочие чертежи колонн
Дата добавления в базу:01.09.2013
Дата актуализации:05.05.2017
Дата введения:01.04.1989
Разработан: ЦНИИпромзданий
НИИЖБ
ГПИ Промстройпроект
Гипростроммаш
Утверждён:05.07.1977 Госстрой СССР (Государственный комитет Совета Министров СССР по делам строительства) (USSR Gosstroy 89)
Расположен в:Техническая документация Строительство Справочные документы Типовые строительные конструкции, изделия и узлы Общероссийский строительный каталог Строительные конструкции, изделия и узлы зданий и сооружений для всех видов строительства Конструкции, изделия и узлы зданий Несущие конструкции одноэтажных зданий Колонны Железобетонные
Заменяет собой:
Чем заменён:
Серия 1.423-3Серия 1.423-3Серия 1.423-3Серия 1.423-3Серия 1.423-3Серия 1.423-3Серия 1.423-3Серия 1.423-3Серия 1.423-3Серия 1.423-3Серия 1.423-3Серия 1.423-3Серия 1.423-3Серия 1.423-3Серия 1.423-3Серия 1.423-3Серия 1.423-3Серия 1.423-3Серия 1.423-3Серия 1.423-3Серия 1.423-3Серия 1.423-3Серия 1.423-3Серия 1.423-3Серия 1.423-3Серия 1.423-3Серия 1.423-3Серия 1.423-3Серия 1.423-3Серия 1.423-3Серия 1.423-3Серия 1.423-3Серия 1.423-3Серия 1.423-3Серия 1.423-3Серия 1.423-3Серия 1.423-3Серия 1.423-3Серия 1.423-3Серия 1.423-3Серия 1.423-3Серия 1.423-3Серия 1.423-3Серия 1.423-3Серия 1.423-3Серия 1.423-3Серия 1.423-3Серия 1.423-3Серия 1.423-3Серия 1.423-3Серия 1.423-3Серия 1.423-3Серия 1.423-3Серия 1.423-3Серия 1.423-3Серия 1.423-3Серия 1.423-3Серия 1.423-3Серия 1.423-3Серия 1.423-3Серия 1.423-3Серия 1.423-3Серия 1.423-3Серия 1.423-3Серия 1.423-3Серия 1.423-3Серия 1.423-3Серия 1.423-3Серия 1.423-3Серия 1.423-3Серия 1.423-3Серия 1.423-3Серия 1.423-3Серия 1.423-3Серия 1.423-3Серия 1.423-3Серия 1.423-3Серия 1.423-3

© 2013 Ёшкин Кот :-) Карта сайта