Скачать Типовой проект 901-3-153 Альбом II. Архитектурно-строительная, технологическая, электротехническая и другие частиДата актуализации: 10.08.2017 Типовой проект 901-3-153
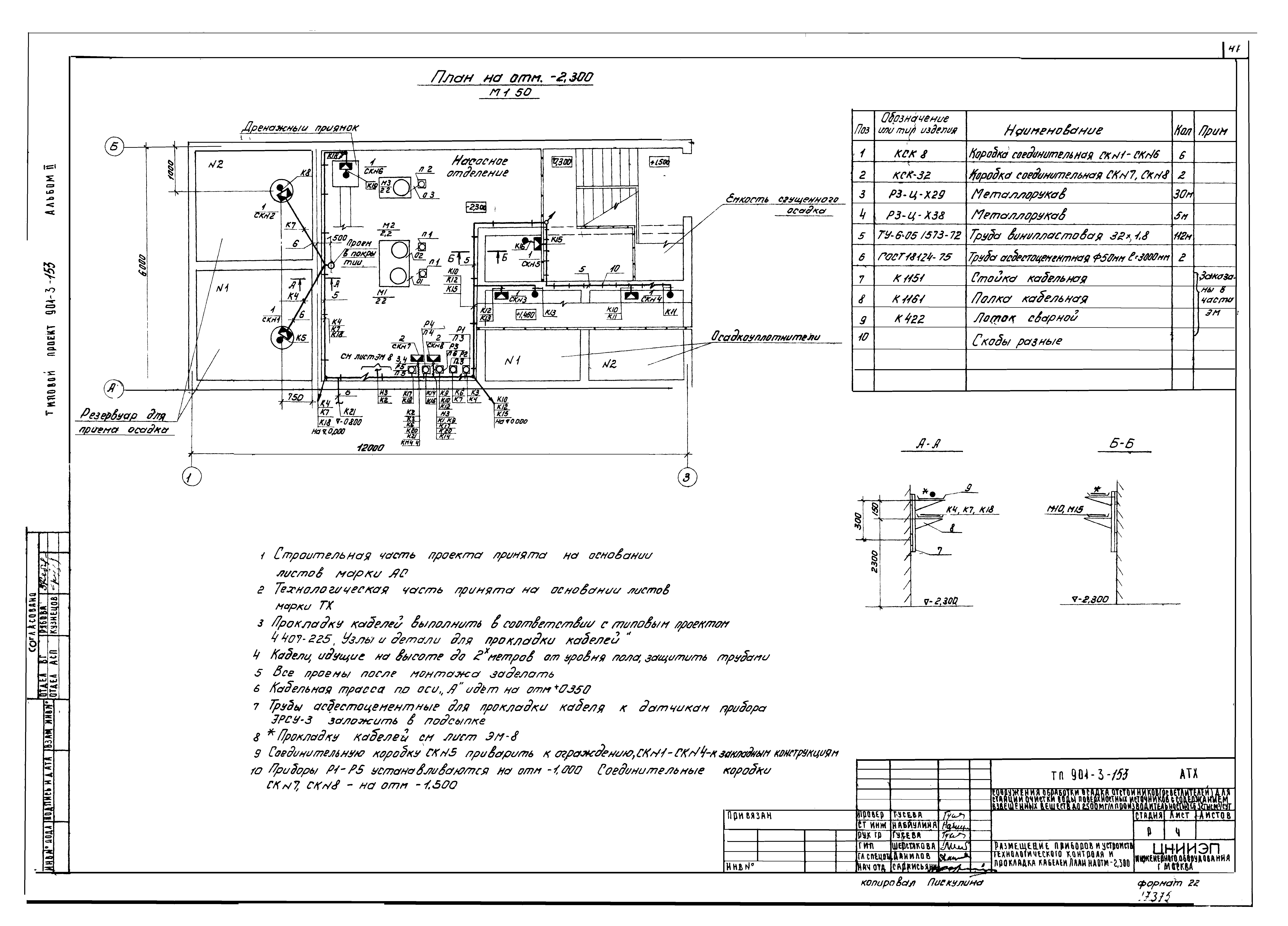
Альбом II. Архитектурно-строительная, технологическая, электротехническая и другие частиОбозначение: | Типовой проект 901-3-153 | Обозначение англ: | 901-3-153 | Статус: | не определен законодательством | Название рус.: | Альбом II. Архитектурно-строительная, технологическая, электротехническая и другие части | Дата добавления в базу: | 01.09.2013 | Дата актуализации: | 05.05.2017 | Дата введения: | 30.04.1981 | Оглавление: | Содержание Архитектурно-строительные решения Общие данные Планы на отм. 2.300 и 4.800. Разрезы 1-1; 2-2 Фасады Схема расположения плит покрытия. Разрезы. Узлы Опалубочный чертеж. План на отм. 1.300. Разрезы 1-1; 2-2 Опалубочный чертеж. Разрезы 3-3 - 7-7; 14-14 Опалубочный чертеж. Фундаменты под оборудование. Разрезы 8-8 - 13-13 Армирование днища. Схемы расположения нижних и верхних сеток Армирование стен. План на отм. - 0.200. Разрезы 1-1 - 3-3 Армирование стен. Разрезы 4-4 - 9-9. Узлы Армирование днища и стен. Спецификация Монолитная плита ПМ1. Опорная подушка ОП1 Плита покрытия П4 (ИП5-4А; ИП5-5А). Плита покрытия П5 (ИП5-46; ИП5-56) Конструкции металлические Общие данные Схемы расположения подвесных путей Переходные площадки Металлические марки Технологическая часть Общие данные Планы. Разрез 1-1. Деталь Разрезы 2-2; 3-3; 4-4. Детали Аксонометрическая схема трубопроводов Спецификация материалов и оборудования Установка медленного перемешивания. Чертеж общего вида Отопление и вентиляция Общие данные План на отм. 2.300 и 4.800. Схема системы отопления. Схема системы вентиляции ВЕ-1, ВЕ-2 Электротехническая часть Общие данные Ведомость электрооборудования кабельных изделий и материалов Схема электрическая принципиальная распределительной сети ~380/220В Схема электрическая принципиальная управления насосом М1(М2) перекачки сырого осадка Схемы электрические принципиальные управления насосом М3 перекачки сгущенного осадка и мешалкой М4 Схема электрическая принципиальная управления вентилем М5(М6) на осадкоуплотнителе Схема подключения электрооборудования. Кабельный журнал Размещение электрооборудования и прокладка кабелей. План на отм. - 2.300 Электрическое освещение. План на отм. - 2.300 и 1.500 Автоматизация технологического процесса Общие данные. Схема функциональная технологического процесса Ведомость приборов, кабельных изделий и материалов Схема подключения приборов и устройств технологического процесса Размещение приборов и устройств технологического контроля и прокладка кабелей. План на отм. - 2.300 Задание заводу-изготовителю Шкаф 1Ш. Технические данные аппаратов Шкаф 1Ш. Таблица перечней надписей Шкаф 1Ш. Чертеж общего вида Шкаф 1Ш. Схема электрических соединений | Разработан: | ЦНИИЭП инженерного оборудования
| Утверждён: | 06.05.1980 Госгражданстрой (Gosgrazhdanstroy 120)
| Расположен в: |
|
                                          
|