Информационная система
«Ёшкин Кот»

Скачать базу одним архивом
Скачать обновления
История создания базы
Карта сайта

Скачать Типовой проект 901-3-89 Альбом III. Электротехническая часть

Дата актуализации: 10.08.2017

Типовой проект 901-3-89

Альбом III. Электротехническая часть

Обозначение: Типовой проект 901-3-89
Обозначение англ: 901-3-89
Статус:не действует
Название рус.:Альбом III. Электротехническая часть
Дата добавления в базу:01.09.2013
Дата актуализации:05.05.2017
Оглавление:ТП 901-3-89 Обложка
ТП 901-3-89 Чертежи монтажной зоны и заготовительного участка. Содержание альбома
ТП 901-3-89 Заглавный лист с пояснительной запиской
ТП 901-3-89 АВ Электротехническая часть
ТП 901-3-89 АВ-1 Питание электрооборудования. Схема принципиальная электрическая
ТП 901-3-89 АВ-2 Управление и контроль. Схема функциональная
ТП 901-3-89 АВ-3 Схема питания приборов технологического контроля
ТП 901-3-89 АВ-4 Управление хозпротивопожарными насосами 1Д-5Д. Схема принципиальная электрическая
ТП 901-3-89 АВ-5 Приточная вентиляция П-1. Схема принципиальная электрическая
ТП 901-3-89 АВ-6 Сигнализация оператору. Схема принципиальная электрическая
ТП 901-3-89 АВ-7 Схема подключения электрооборудования
ТП 901-3-89 АВ-8 Приточная система П-1. Схема функциональная подключения приборов и электрооборудования
ТП 901-3-89 АВ-9 Схема подключения приборов и устройств технологического контроля
ТП 901-3-89 АВ-10 Кабельный журнал. Лист 1
ТП 901-3-89 АВ-11 Кабельный журнал. Лист 2
ТП 901-3-89 АВ-12 Размещение электрооборудования и прокладка кабеля. Щитовая. Насосная 2-го подъема. Зал фильтров и осветителей. План на отм. - 2.400 и 4.8000
ТП 901-3-89 АВ-13 Размещение электрооборудования и прокладка кабеля. Венткамера. Операторская. Склад ПЛЛ. План на отм. - 2.400, 0.900 и 3.600
ТП 901-3-89 АВ-14 Трансформаторные камеры. План, разрезы и однолинейная схема
ТП 901-3-89 АВ-15 Трансформаторные камеры. Установка разъединителя и 3-х предохранителей
ТП 901-3-89 АВ-16 Выводы н/н в камере трансформатора. Барьер
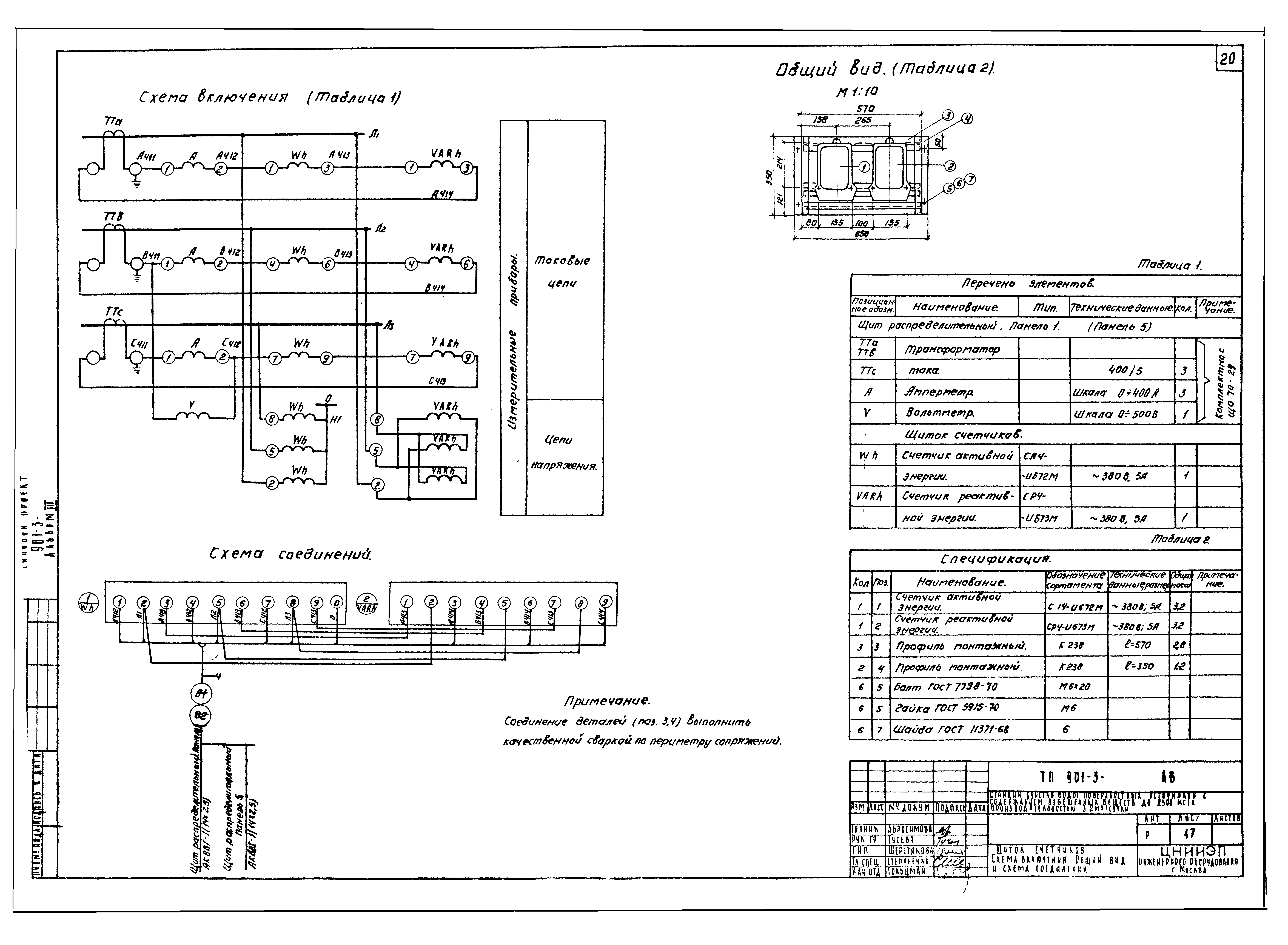
ТП 901-3-89 АВ-17 Щиток счетчиков. Схема включения. Общий вид и схема соединений
ТП 901-3-89 АВ-18 Опросный лист на распределительные щиты 380/220В из панелей серии ЩО-70
ТП 901-3-89 АВ-19 Опросный лист. Попанельная спецификация на аппаратуру шкафа ЩР1116-69
ТП 901-3-89 АВ-20 Данные для заполнения опросных листов на дифманометры - расходомеры
ТП 901-3-89 АВ-21 Электрическое освещение. План на отм. - 1.000 и 0.000. Фрагмент плана на отм. - 2.400
ТП 901-3-89 АВ-22 Электрическое освещение. План на отм. - 3.600;4.100 и 5.000
ТП 901-3-89 АВ-23 Заземление. План на отм. 0.000;1.000;3.600
ТП 901-3-89 СС Связь и сигнализация
ТП 901-3-89 СС План на отм. 0.000 и 3.600 с нанесением сетей связи
Разработан: ЦНИИЭП инженерного оборудования Госгражданстроя
Утверждён:31.07.1975 Госгражданстрой (Gosgrazhdanstroy 163)
Расположен в:Техническая документация Строительство Справочные документы Типовые строительные конструкции, изделия и узлы Общероссийский строительный каталог Промышленные предприятия, здания и сооружения Здания и сооружения санитарно-технические Водоснабжение Очистные сооружения Станции очистки воды
Типовой проект 901-3-89Типовой проект 901-3-89Типовой проект 901-3-89Типовой проект 901-3-89Типовой проект 901-3-89Типовой проект 901-3-89Типовой проект 901-3-89Типовой проект 901-3-89Типовой проект 901-3-89Типовой проект 901-3-89Типовой проект 901-3-89Типовой проект 901-3-89Типовой проект 901-3-89Типовой проект 901-3-89Типовой проект 901-3-89Типовой проект 901-3-89Типовой проект 901-3-89Типовой проект 901-3-89Типовой проект 901-3-89Типовой проект 901-3-89Типовой проект 901-3-89Типовой проект 901-3-89Типовой проект 901-3-89Типовой проект 901-3-89Типовой проект 901-3-89Типовой проект 901-3-89Типовой проект 901-3-89

© 2013 Ёшкин Кот :-) Карта сайта