| 
 Скачать Альбом СК 2106-81 Сборные железобетонные камеры на водоводах и водопроводных магистралях. Строительная частьДата актуализации: 10.08.2017   Альбом СК 2106-81
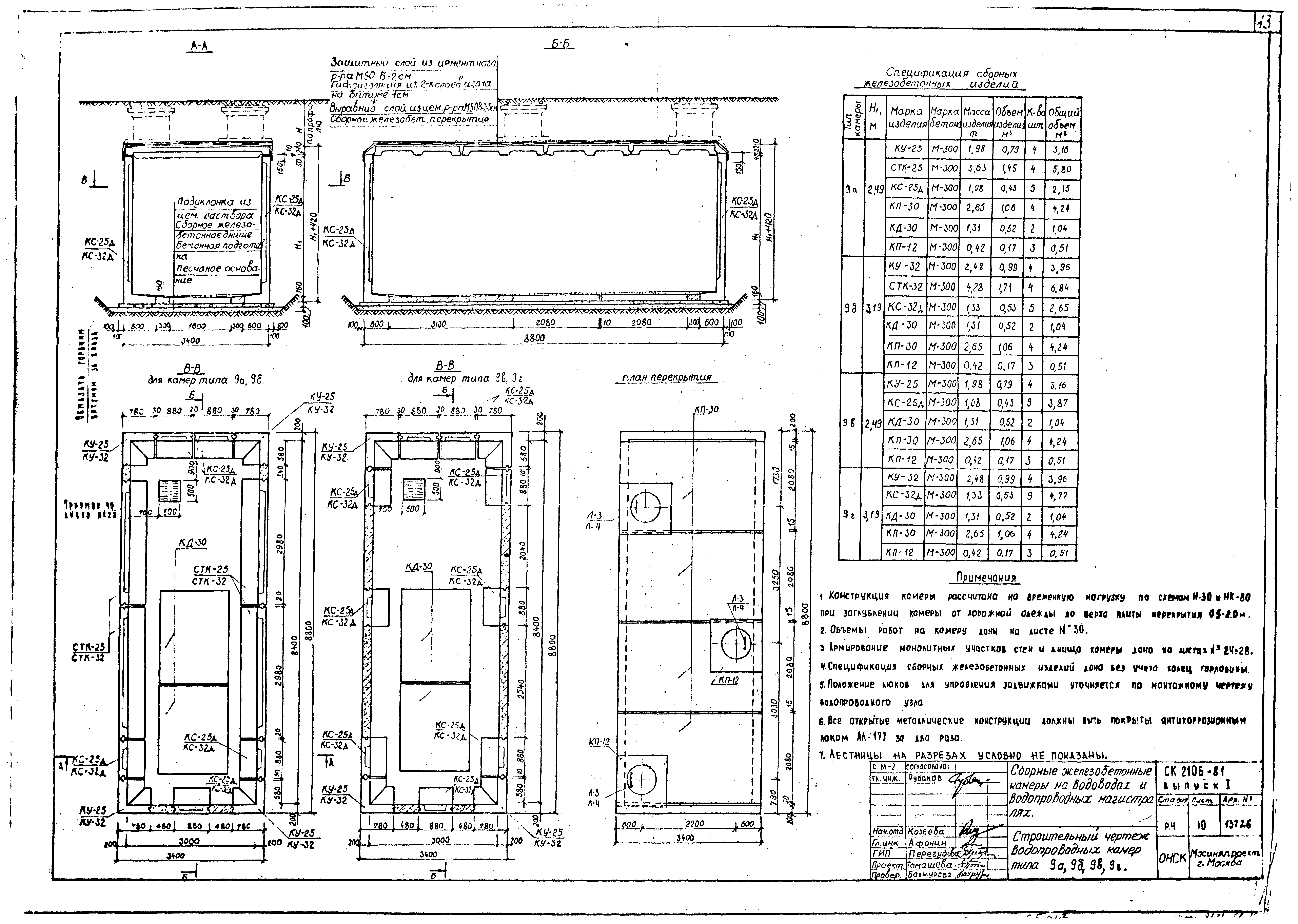
Сборные железобетонные камеры на водоводах и водопроводных магистралях. Строительная часть| Обозначение: |  Альбом СК 2106-81 |  | Обозначение англ: |  СК 2106-81 |  | Статус: | не определен законодательством |  | Название рус.: | Сборные железобетонные камеры на водоводах и водопроводных магистралях. Строительная часть |  | Дата добавления в базу: | 01.09.2013 |  | Дата актуализации: | 05.05.2017 |  | Дата введения: | 01.01.1981 |  | Разработан: | Мосинжпроект 
 |  | Утверждён: | 01.01.1981 Мосинжпроект (Mosinzhproject ) 
 |  | Расположен в: | 
 | 
                                              |