Информационная система
«Ёшкин Кот»

Скачать базу одним архивом
Скачать обновления
История создания базы
Карта сайта

Скачать Типовой проект 704-1-170.84 Альбом III. Основание и фундаменты. Крепежные узлы

Дата актуализации: 10.08.2017

Типовой проект 704-1-170.84

Альбом III. Основание и фундаменты. Крепежные узлы

Обозначение: Типовой проект 704-1-170.84
Обозначение англ: 704-1-170.84
Статус:не действует
Название рус.:Альбом III. Основание и фундаменты. Крепежные узлы
Дата добавления в базу:01.09.2013
Дата актуализации:05.05.2017
Оглавление:ТП 704-1-170.84 Содержание
ТП 704-1-170.84 Конструкции железобетонные
ТП 704-1-170.84 КЖ-1 Общие данные
ТП 704-1-170.84 КЖ-2 Пояснительная записка
ТП 704-1-170.84 КЖ-6 Расчетный лист
ТП 704-1-170.84 КЖ-9 Схемы оснований №№1-6
ТП 704-1-170.84 КЖ-10 Схемы оснований №№7-11
ТП 704-1-170.84 КЖ-11 Общий вид основания. Основная таблица привязки оснований
ТП 704-1-170.84 КЖ-12 Площадка и фундаменты под шахматную лестницу Ф-1
ТП 704-1-170.84 КЖ-13 Типы подушек, отмосток и покрытия площадок
ТП 704-1-170.84 КЖ-14 Узел А. Типы А1;А2;А3
ТП 704-1-170.84 КЖ-15 Узел А. Типы А4;А5;А6
ТП 704-1-170.84 КЖ-16 Узел Б. Типы Б1;Б2
ТП 704-1-107.84 КЖ-17 Фундаментное кольцо КФ-1
ТП 704-1-170.84 КЖ-18 Фундаментное кольцо КФ-2. Плита ПФ-1
ТП 704-1-170.84 КЖ-19 Контрольный колодец КК-1
ТП 704-1-170.84 КЖ-20 Плиты П-1,П-2
ТП 704-1-170.84 КЖ-21 Фундамент под шкаф узла управления системой подогрева
ТП 704-1-170.84 Крепежные узлы
ТП 704-1-170.84 М-1 Шкаф узла управления системой подогрева
ТП 704-1-170.84 М-2 Кронштейны крепления трубопроводов пожаротушения
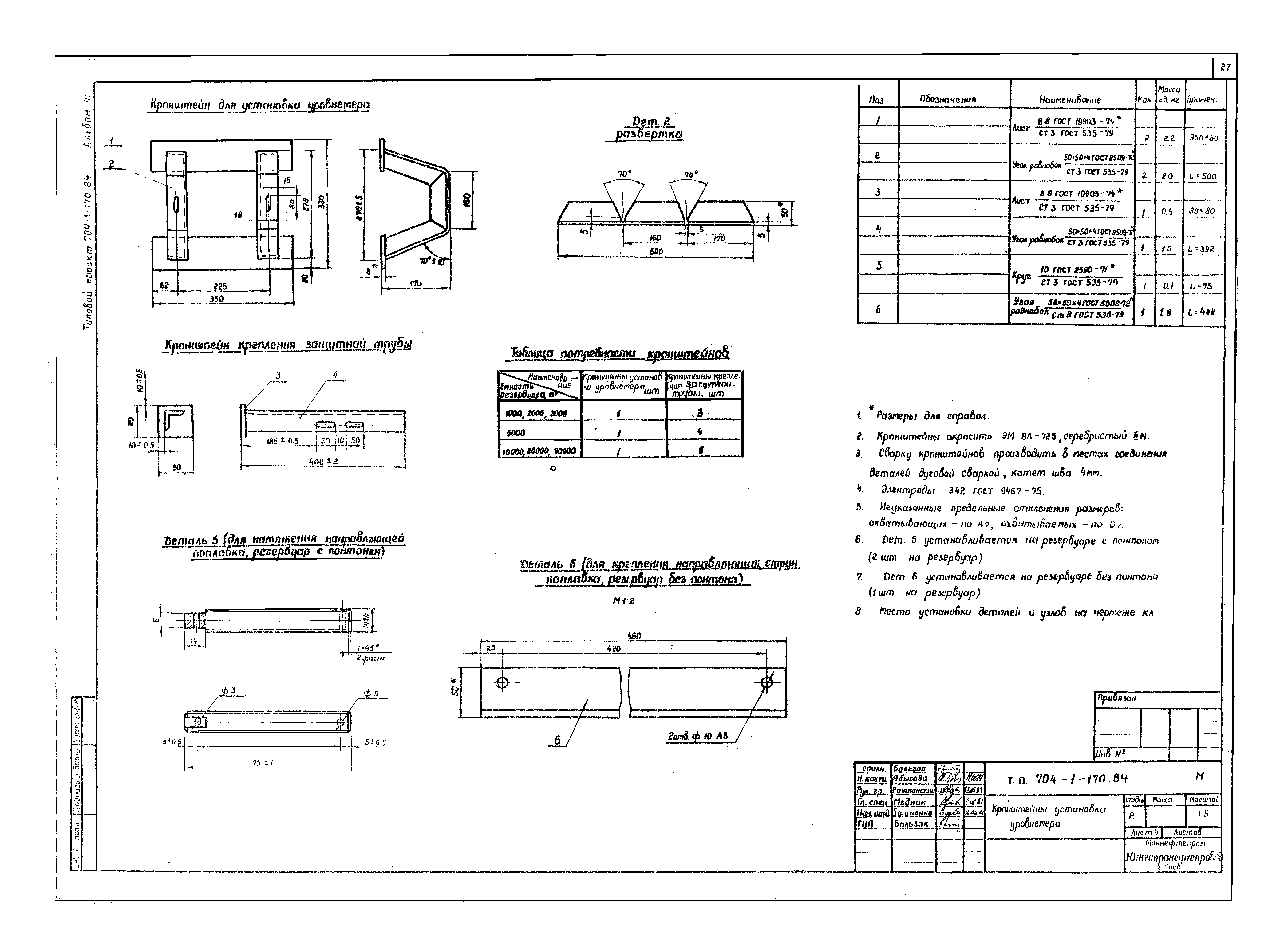
ТП 704-1-170.84 М-3 Кронштейн уровнемера
ТП 704-1-170.84 М-4 Кронштейн установки уровнемера
ТП 704-1-170.84 М-5 Люк уровнемера
ТП 704-1-170.84 М-6 Молниеотвод с креплением к стенке резервуара
ТП 704-1-170.84 М-7 Молниеприемник установленный на крыше резервуара
Разработан: Южгипронефтепровод Миннефтепрома СССР
Утверждён:16.06.1983 Миннефтепром (Minnefteprom )
Расположен в:Техническая документация Строительство Справочные документы Типовые строительные конструкции, изделия и узлы Общероссийский строительный каталог Промышленные предприятия, здания и сооружения Предприятия, здания и сооружения складские Резервуары и склады для нефти и нефтепродуктов Резервуары стальные для нефти и нефтепродуктов
Типовой проект 704-1-170.84Типовой проект 704-1-170.84Типовой проект 704-1-170.84Типовой проект 704-1-170.84Типовой проект 704-1-170.84Типовой проект 704-1-170.84Типовой проект 704-1-170.84Типовой проект 704-1-170.84Типовой проект 704-1-170.84Типовой проект 704-1-170.84Типовой проект 704-1-170.84Типовой проект 704-1-170.84Типовой проект 704-1-170.84Типовой проект 704-1-170.84Типовой проект 704-1-170.84Типовой проект 704-1-170.84Типовой проект 704-1-170.84Типовой проект 704-1-170.84Типовой проект 704-1-170.84Типовой проект 704-1-170.84Типовой проект 704-1-170.84Типовой проект 704-1-170.84Типовой проект 704-1-170.84Типовой проект 704-1-170.84Типовой проект 704-1-170.84Типовой проект 704-1-170.84Типовой проект 704-1-170.84Типовой проект 704-1-170.84Типовой проект 704-1-170.84Типовой проект 704-1-170.84Типовой проект 704-1-170.84

© 2013 Ёшкин Кот :-) Карта сайта